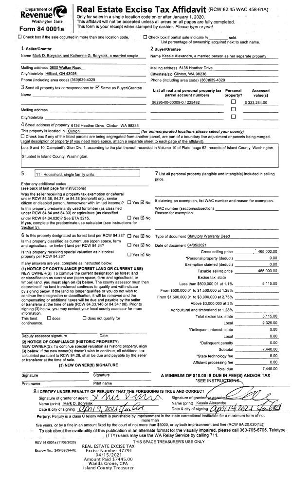
Property
Account |
| Property ID: | 354084 | Abbreviated Legal Description: | POSS SHORES 2 LOT 3 BLK 5 & LOT 7 BLK 5 |
| Geographic ID: | S7770-02-05003-0 | Agent Code: | |
| Type: | Real | | |
| Tax Area: | 710 - APPRAISER-S Whid Schl Dist, outside Langley, improved & 1 acre or less | Land Use Code | 11 |
| Open Space: | N | DFL | N |
| Historic Property: | N | Remodel Property: | N |
| Multi-Family Redevelopment: | N | | |
| Township: | | Section: | |
| Range: | |
Location |
| Address: | 8286 COHO WAY CLINTON, WA 98236 | Mapsco: | |
| Neighborhood: | Cycle 4 | Map ID: | 708 |
| Neighborhood CD: | 4 |
Owner |
| Name: | SKAAR, ALFRED L | Owner ID: | 265530 |
| Mailing Address: | JOYCE T TESHIMA 8286 COHO WAY CLINTON, WA 98236 | % Ownership: | 100.0000000000% |
| | | Exemptions: | |
Taxes and Assessment Details
Values
| (+) Improvement Homesite Value: | + | $0 | |
| (+) Improvement Non-Homesite Value: | + | $541,940 | |
| (+) Land Homesite Value: | + | $0 | |
| (+) Land Non-Homesite Value: | + | $360,000 | |
| (+) Curr Use (HS): | + | $0 | $0 |
| (+) Curr Use (NHS): | + | $0 | $0 |
| | | -------------------------- | |
| (=) Market Value: | = | $901,940 | |
| (–) Productivity Loss: | – | $0 | |
| | | -------------------------- | |
| (=) Subtotal: | = | $901,940 | |
| (+) Senior Appraised Value: | + | $0 | |
| (+) Non-Senior Appraised Value: | + | $901,940 | |
| | | -------------------------- | |
| (=) Total Appraised Value: | = | $901,940 | |
| (–) Senior Exemption Loss: | – | $0 | |
| (–) Exemption Loss: | – | $0 | |
| | | -------------------------- | |
| (=) Taxable Value: | = | $901,940 | |
Taxing Jurisdiction
| Owner: | SKAAR, ALFRED L | | |
| % Ownership: | 100.0000000000% | | |
| Total Value: | $901,940 | | |
| Tax Area: | 710 - APPRAISER-S Whid Schl Dist, outside Langley, improved & 1 acre or less |
| CF | Conservation Futures | 0.0316035091 | $901,940 | $901,940 | $28.50 | | |
| FIRE3 | Fire & Rescue Dist #3 S Whidbey GEN | 1.2004855531 | $901,940 | $901,940 | $1,082.77 | | |
| HOBOND | Hospital BOND | 0.1910887512 | $901,940 | $901,940 | $172.35 | | |
| HOGEN | Hospital GEN | 0.3902502903 | $901,940 | $901,940 | $351.98 | | |
| CE | County Current Expense | 0.3708482477 | $901,940 | $901,940 | $334.48 | | |
| CR | County Roads | 0.4584763726 | $901,940 | $901,940 | $413.52 | | |
| ISLANDEMS | Hospital GEN (EMS) | 0.5000000000 | $901,940 | $901,940 | $450.97 | | |
| LIB | Library Sno-Isle GEN | 0.3153421757 | $901,940 | $901,940 | $284.42 | | |
| PORTWHID | Port of S Whidbey GEN | 0.1094540357 | $901,940 | $901,940 | $98.72 | | |
| SCH206BOND | School 206 BOND | 0.3161759235 | $901,940 | $901,940 | $285.17 | | |
| SCH206MO | School 206 Enrichment | 0.4547169547 | $901,940 | $901,940 | $410.13 | | |
| ST | State School | 1.3035497053 | $901,940 | $901,940 | $1,175.72 | | |
| ST2 | State School Part 2 | 0.8169543533 | $901,940 | $901,940 | $736.84 | | |
| SWHIDPRBD | P & R S Whidbey BOND | 0.0152817568 | $901,940 | $901,940 | $13.78 | | |
| SWHIDPRBD2 | P & R S Whidbey BOND2 | 0.0138911264 | $901,940 | $901,940 | $12.53 | | |
| SWHIDPRMT | P & R S Whidbey GEN | 0.2053334452 | $901,940 | $901,940 | $185.20 | | |
| | Total Tax Rate: | 6.6934522006 | | | | | |
| | | | | Taxes w/Current Exemptions: | $6,037.08 | | |
| | | | | Taxes w/o Exemptions: | $6,037.08 | | |
Improvement / Building
| Improvement #1: | RESIDENTIAL | State Code: | Y | 4216.0 sqft | Value: | $541,940 |
| Bathrooms: | 3 | Bedrooms: | 2 | | Ceiling: | DRYWALL PAINTED | Exterior Wall/Cover: | WOOD SIDING | | Floor Covering: | CERAMIC TILE/CPT 40-60 | Floor Structure: | WOOD W/SUBFLOOR | | Foundation: | CONCRETE | Heating: | RADIANT FLOOR | | Interior Finish: | DRYWALL PAINT | Plumbing Fixture Cnt: | 13 | | Roof Slope: | 3" IN 12" | Roof Structure/Cover: | CJ ASPHALT |
|
| | Type | Description | Class CD | Sub Class CD | Year Built | Area |
| | BAS | BASE/MAIN FLOOR | 4 | 0 | 1989 | 2494.0 |
| | AGR | ATTACHED GARAGE | 4 | 0 | 1989 | 560.0 |
| | OWP | OPEN WOOD PORCH W/STEPS | 4 | 0 | 1989 | 111.0 |
| | OWP | OPEN WOOD PORCH W/STEPS | 4 | 0 | 1989 | 378.7 |
| | OWP | OPEN WOOD PORCH W/STEPS | 4 | 0 | 1989 | 535.0 |
| | DWN | DOWNSTAIRS LIVING AREA | 4 | 0 | 1989 | 1722.0 |
Sketch
| No sketches available for this property. |
Property Image
Land
| 1 | 15 | SQ (12001-21780) | 0.0000 | 0.00 | 0.00 | 0.00 | 1.00 | $360,000 | $0 |
Roll Value History
| 2026 | N/A | N/A | N/A | N/A | N/A |
| 2025 | $541,940 | $360,000 | $0 | $901,940 | $901,940 |
| 2024 | $547,585 | $340,000 | $0 | $887,585 | $887,585 |
| 2023 | $554,495 | $340,000 | $0 | $894,495 | $894,495 |
| 2022 | $508,358 | $300,000 | $0 | $808,358 | $808,358 |
| 2021 | $447,514 | $260,000 | $0 | $707,514 | $707,514 |
| 2020 | $424,138 | $260,000 | $0 | $684,138 | $684,138 |
| 2019 | $352,881 | $300,000 | $0 | $652,881 | $652,881 |
| 2018 | $353,966 | $240,000 | $0 | $593,966 | $593,966 |
| 2017 | $356,137 | $230,000 | $0 | $586,137 | $586,137 |
| 2016 | $360,480 | $200,000 | $0 | $560,480 | $560,480 |
| 2015 | $364,822 | $140,000 | $0 | $504,822 | $504,822 |
| 2014 | $304,753 | $85,000 | $0 | $389,753 | $389,753 |
| 2013 | $309,529 | $85,000 | $0 | $394,529 | $394,529 |
| 2012 | $313,602 | $129,200 | $0 | $442,802 | $442,802 |
| 2011 | $317,676 | $152,000 | $0 | $469,676 | $469,676 |
| 2010 | $320,419 | $152,000 | $0 | $472,419 | $472,419 |
| 2009 | $334,489 | $190,000 | $0 | $524,489 | $524,489 |
| 2008 | $362,418 | $215,000 | $0 | $577,418 | $577,418 |
| 2007 | $366,962 | $215,000 | $0 | $581,962 | $581,962 |
Deed and Sales History
| 1 | 03/25/2014 | WD | Warranty Deed | HOFFMAN, JOE D | SKAAR, ALFRED L | | | $499,995.00 | 14759 | 4357289 |
| 2 | 12/17/1999 | WD | Warranty Deed | EVANOFF, ELAINE M S | HOFFMAN, JOE D | | | $360,000.00 | 95181 | 99028838 |
| 3 | 08/26/1998 | PRD | Personal Representatives Deed | EVANOFF, GEORGE | EVANOFF, ELAINE M S | | | $0.00 | 83381 | 98017667 |
| 4 | 05/01/1986 | WD | Warranty Deed | JOHNSON, THEODORE J | EVANOFF, GEORGE | | | $23,500.00 | 61224 | 86005734 |
| 5 | 02/01/1984 | OTHER | Other - Misc. Documents | JOHNSON, THEODORE J | JOHNSON, THEODORE J | | | $0.00 | 60407 | 405167 |
| 6 | 03/01/1979 | OTHER | Other - Misc. Documents | EVANOFF, ELAINE M | JOHNSON, THEODORE J | | | $9,950.00 | 92013 | 351695 |
| 7 | 01/01/1900 | OTHER | Other - Misc. Documents | Unknown | EVANOFF, ELAINE M | | | $0.00 | 83381 | 98017667 |
Payout Agreement
| No payout information available.. |