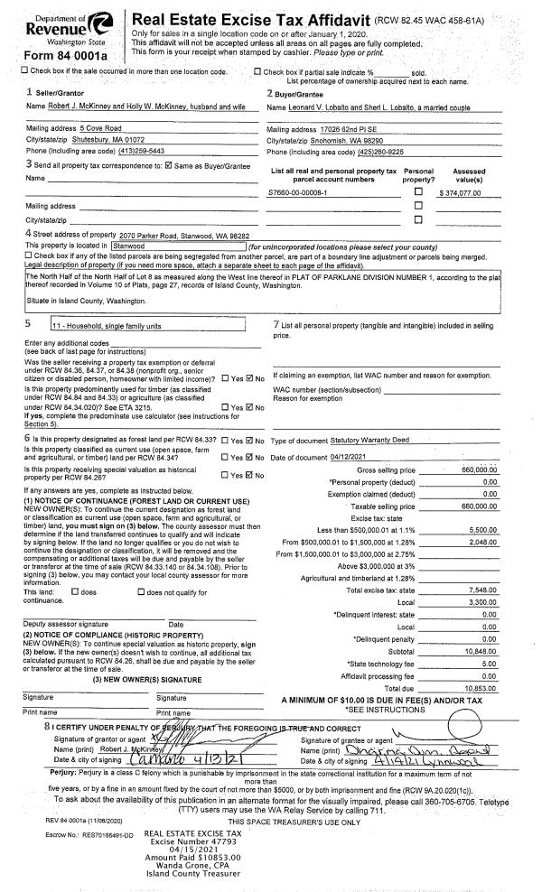
Property
Account |
| Property ID: | 354093 | Abbreviated Legal Description: | POSS SHORES 2 LOT 4 BLK 5 |
| Geographic ID: | S7770-02-05004-0 | Agent Code: | |
| Type: | Real | | |
| Tax Area: | 710 - APPRAISER-S Whid Schl Dist, outside Langley, improved & 1 acre or less | Land Use Code | 11 |
| Open Space: | N | DFL | N |
| Historic Property: | N | Remodel Property: | N |
| Multi-Family Redevelopment: | N | | |
| Township: | | Section: | |
| Range: | |
Location |
| Address: | 8292 COHO WAY CLINTON, WA 98236 | Mapsco: | |
| Neighborhood: | Cycle 4 | Map ID: | 708 |
| Neighborhood CD: | 4 |
Owner |
| Name: | GILBO, LINDA | Owner ID: | 289102 |
| Mailing Address: | 8292 COHO WAY CLINTON, WA 98236 | % Ownership: | 100.0000000000% |
| | | Exemptions: | |
Taxes and Assessment Details
Values
| (+) Improvement Homesite Value: | + | $0 | |
| (+) Improvement Non-Homesite Value: | + | $217,718 | |
| (+) Land Homesite Value: | + | $0 | |
| (+) Land Non-Homesite Value: | + | $340,000 | |
| (+) Curr Use (HS): | + | $0 | $0 |
| (+) Curr Use (NHS): | + | $0 | $0 |
| | | -------------------------- | |
| (=) Market Value: | = | $557,718 | |
| (–) Productivity Loss: | – | $0 | |
| | | -------------------------- | |
| (=) Subtotal: | = | $557,718 | |
| (+) Senior Appraised Value: | + | $0 | |
| (+) Non-Senior Appraised Value: | + | $557,718 | |
| | | -------------------------- | |
| (=) Total Appraised Value: | = | $557,718 | |
| (–) Senior Exemption Loss: | – | $0 | |
| (–) Exemption Loss: | – | $0 | |
| | | -------------------------- | |
| (=) Taxable Value: | = | $557,718 | |
Taxing Jurisdiction
| Owner: | GILBO, LINDA | | |
| % Ownership: | 100.0000000000% | | |
| Total Value: | $557,718 | | |
| Tax Area: | 710 - APPRAISER-S Whid Schl Dist, outside Langley, improved & 1 acre or less |
| CF | Conservation Futures | 0.0316035091 | $557,718 | $557,718 | $17.63 | | |
| FIRE3 | Fire & Rescue Dist #3 S Whidbey GEN | 1.2004855531 | $557,718 | $557,718 | $669.53 | | |
| HOBOND | Hospital BOND | 0.1910887512 | $557,718 | $557,718 | $106.57 | | |
| HOGEN | Hospital GEN | 0.3902502903 | $557,718 | $557,718 | $217.65 | | |
| CE | County Current Expense | 0.3708482477 | $557,718 | $557,718 | $206.83 | | |
| CR | County Roads | 0.4584763726 | $557,718 | $557,718 | $255.70 | | |
| ISLANDEMS | Hospital GEN (EMS) | 0.5000000000 | $557,718 | $557,718 | $278.86 | | |
| LIB | Library Sno-Isle GEN | 0.3153421757 | $557,718 | $557,718 | $175.87 | | |
| PORTWHID | Port of S Whidbey GEN | 0.1094540357 | $557,718 | $557,718 | $61.04 | | |
| SCH206BOND | School 206 BOND | 0.3161759235 | $557,718 | $557,718 | $176.34 | | |
| SCH206MO | School 206 Enrichment | 0.4547169547 | $557,718 | $557,718 | $253.60 | | |
| ST | State School | 1.3035497053 | $557,718 | $557,718 | $727.01 | | |
| ST2 | State School Part 2 | 0.8169543533 | $557,718 | $557,718 | $455.63 | | |
| SWHIDPRBD | P & R S Whidbey BOND | 0.0152817568 | $557,718 | $557,718 | $8.52 | | |
| SWHIDPRBD2 | P & R S Whidbey BOND2 | 0.0138911264 | $557,718 | $557,718 | $7.75 | | |
| SWHIDPRMT | P & R S Whidbey GEN | 0.2053334452 | $557,718 | $557,718 | $114.52 | | |
| | Total Tax Rate: | 6.6934522006 | | | | | |
| | | | | Taxes w/Current Exemptions: | $3,733.05 | | |
| | | | | Taxes w/o Exemptions: | $3,733.05 | | |
Improvement / Building
| Improvement #1: | RESIDENTIAL | State Code: | Y | 1372.0 sqft | Value: | $217,718 |
| Bathrooms: | 1 | Bedrooms: | 2 | | Ceiling: | BEAM PAINTED | Exterior Wall/Cover: | SHINGLE | | Floor Covering: | VINYL TILE | Floor Structure: | WOOD W/SUBFLOOR | | Foundation: | PIERS/CONCRETE | Heating: | WALL HEAT ELECTRIC | | Interior Finish: | DRYWALL PAINT | Plumbing Fixture Cnt: | 9 | | Roof Slope: | FLAT | Roof Structure/Cover: | CJ ASPHALT |
|
| | Type | Description | Class CD | Sub Class CD | Year Built | Area |
| | BAS | BASE/MAIN FLOOR | 3 | 0 | 1969 | 1372.0 |
| | OCP | OPEN CARPORT | 3 | 0 | 1969 | 408.0 |
| | UTY | STORAGE/UTILITY | 3 | 0 | 1969 | 25.0 |
| | OWP | OPEN WOOD PORCH W/STEPS | 3 | 0 | 1969 | 508.5 |
| | OWR | OPEN WOOD PORCH W/STEPS/ROOF | 3 | 0 | 1969 | 40.0 |
| | UTY | STORAGE/UTILITY | 3 | 0 | 1969 | 112.0 |
Sketch
| No sketches available for this property. |
Property Image
Land
| 1 | 13 | SQ (06001-08000) | 0.0000 | 0.00 | 0.00 | 0.00 | 1.00 | $340,000 | $0 |
Roll Value History
| 2026 | N/A | N/A | N/A | N/A | N/A |
| 2025 | $217,718 | $340,000 | $0 | $557,718 | $557,718 |
| 2024 | $216,526 | $340,000 | $0 | $556,526 | $556,526 |
| 2023 | $219,442 | $340,000 | $0 | $559,442 | $174,951 |
| 2022 | $201,335 | $300,000 | $0 | $501,335 | $367,378 |
| 2021 | $177,378 | $260,000 | $0 | $437,378 | $174,951 |
| 2020 | $153,476 | $260,000 | $0 | $413,476 | $413,476 |
| 2019 | $108,923 | $300,000 | $0 | $408,923 | $408,923 |
| 2018 | $109,281 | $240,000 | $0 | $349,281 | $349,281 |
| 2017 | $109,959 | $230,000 | $0 | $339,959 | $339,959 |
| 2016 | $111,387 | $200,000 | $0 | $311,387 | $311,387 |
| 2015 | $112,815 | $140,000 | $0 | $252,815 | $252,815 |
| 2014 | $98,061 | $85,000 | $0 | $183,061 | $183,061 |
| 2013 | $99,460 | $85,000 | $0 | $184,460 | $184,460 |
| 2012 | $100,862 | $129,200 | $0 | $230,062 | $230,062 |
| 2011 | $102,262 | $152,000 | $0 | $254,262 | $254,262 |
| 2010 | $108,275 | $152,000 | $0 | $260,275 | $260,275 |
| 2009 | $116,923 | $190,000 | $0 | $306,923 | $306,923 |
| 2008 | $113,743 | $215,000 | $0 | $328,743 | $328,743 |
| 2007 | $115,246 | $215,000 | $0 | $330,246 | $330,246 |
Deed and Sales History
| 1 | 03/20/2019 | | | GILBO, GUY | GILBO, LINDA | | | | 88010 | |
| 2 | 02/22/2012 | WD | Warranty Deed | VERZANI, DONALD W | GILBO, GUY | | | $300,000.00 | 6952 | 4310529 |
|   | |
Payout Agreement
| No payout information available.. |