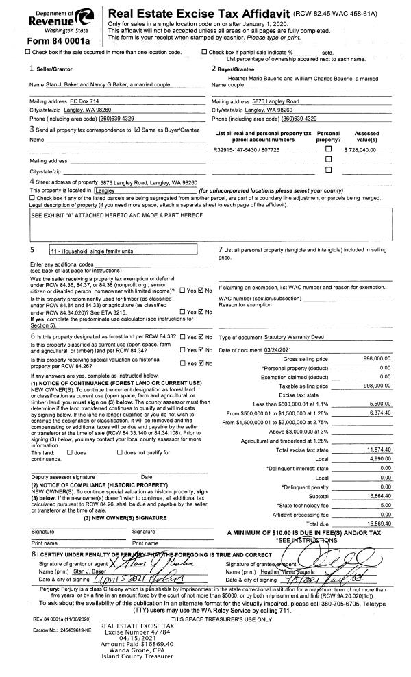
Property
Account |
| Property ID: | 354164 | Abbreviated Legal Description: | POSS SHORES 2 LOTS 1 & 2 BLK 6 |
| Geographic ID: | S7770-02-06002-0 | Agent Code: | |
| Type: | Real | | |
| Tax Area: | 710 - APPRAISER-S Whid Schl Dist, outside Langley, improved & 1 acre or less | Land Use Code | 11 |
| Open Space: | N | DFL | N |
| Historic Property: | N | Remodel Property: | N |
| Multi-Family Redevelopment: | N | | |
| Township: | | Section: | |
| Range: | |
Location |
| Address: | 8281 COHO WAY CLINTON, WA 98236 | Mapsco: | |
| Neighborhood: | Cycle 4 | Map ID: | 708 |
| Neighborhood CD: | 4 |
Owner |
| Name: | YOUNG, RONALD & JOCELYN J P | Owner ID: | 99645 |
| Mailing Address: | 8281 COHO WAY CLINTON, WA 98236-8902 | % Ownership: | 100.0000000000% |
| | | Exemptions: | |
Taxes and Assessment Details
Values
| (+) Improvement Homesite Value: | + | $0 | |
| (+) Improvement Non-Homesite Value: | + | $350,676 | |
| (+) Land Homesite Value: | + | $0 | |
| (+) Land Non-Homesite Value: | + | $340,000 | |
| (+) Curr Use (HS): | + | $0 | $0 |
| (+) Curr Use (NHS): | + | $0 | $0 |
| | | -------------------------- | |
| (=) Market Value: | = | $690,676 | |
| (–) Productivity Loss: | – | $0 | |
| | | -------------------------- | |
| (=) Subtotal: | = | $690,676 | |
| (+) Senior Appraised Value: | + | $0 | |
| (+) Non-Senior Appraised Value: | + | $690,676 | |
| | | -------------------------- | |
| (=) Total Appraised Value: | = | $690,676 | |
| (–) Senior Exemption Loss: | – | $0 | |
| (–) Exemption Loss: | – | $0 | |
| | | -------------------------- | |
| (=) Taxable Value: | = | $690,676 | |
Taxing Jurisdiction
| Owner: | YOUNG, RONALD & JOCELYN J P | | |
| % Ownership: | 100.0000000000% | | |
| Total Value: | $690,676 | | |
| Tax Area: | 710 - APPRAISER-S Whid Schl Dist, outside Langley, improved & 1 acre or less |
| CF | Conservation Futures | 0.0316035091 | $690,676 | $690,676 | $21.83 | | |
| FIRE3 | Fire & Rescue Dist #3 S Whidbey GEN | 1.2004855531 | $690,676 | $690,676 | $829.15 | | |
| HOBOND | Hospital BOND | 0.1910887512 | $690,676 | $690,676 | $131.98 | | |
| HOGEN | Hospital GEN | 0.3902502903 | $690,676 | $690,676 | $269.54 | | |
| CE | County Current Expense | 0.3708482477 | $690,676 | $690,676 | $256.14 | | |
| CR | County Roads | 0.4584763726 | $690,676 | $690,676 | $316.66 | | |
| ISLANDEMS | Hospital GEN (EMS) | 0.5000000000 | $690,676 | $690,676 | $345.34 | | |
| LIB | Library Sno-Isle GEN | 0.3153421757 | $690,676 | $690,676 | $217.80 | | |
| PORTWHID | Port of S Whidbey GEN | 0.1094540357 | $690,676 | $690,676 | $75.60 | | |
| SCH206BOND | School 206 BOND | 0.3161759235 | $690,676 | $690,676 | $218.38 | | |
| SCH206MO | School 206 Enrichment | 0.4547169547 | $690,676 | $690,676 | $314.06 | | |
| ST | State School | 1.3035497053 | $690,676 | $690,676 | $900.33 | | |
| ST2 | State School Part 2 | 0.8169543533 | $690,676 | $690,676 | $564.25 | | |
| SWHIDPRBD | P & R S Whidbey BOND | 0.0152817568 | $690,676 | $690,676 | $10.55 | | |
| SWHIDPRBD2 | P & R S Whidbey BOND2 | 0.0138911264 | $690,676 | $690,676 | $9.59 | | |
| SWHIDPRMT | P & R S Whidbey GEN | 0.2053334452 | $690,676 | $690,676 | $141.82 | | |
| | Total Tax Rate: | 6.6934522006 | | | | | |
| | | | | Taxes w/Current Exemptions: | $4,623.02 | | |
| | | | | Taxes w/o Exemptions: | $4,623.02 | | |
Improvement / Building
| Improvement #1: | RESIDENTIAL | State Code: | Y | 2830.0 sqft | Value: | $350,676 |
| Bathrooms: | 3 | Bedrooms: | 3 | | Ceiling: | BEAM PAINTED | Exterior Wall/Cover: | WOOD SIDING | | Floor Covering: | CARPET/VINYL 60-40 | Floor Structure: | WOOD W/SUBFLOOR | | Foundation: | CONCRETE | Heating: | WALL HEAT ELECTRIC | | Interior Finish: | DRYWALL PAINT | Plumbing Fixture Cnt: | 13 | | Roof Slope: | FLAT | Roof Structure/Cover: | BEAM ROLL COMPOSITION |
|
| | Type | Description | Class CD | Sub Class CD | Year Built | Area |
| | BAS | BASE/MAIN FLOOR | 3 | 0 | 1967 | 1030.0 |
| | OWP | OPEN WOOD PORCH W/STEPS | 3 | 0 | 1967 | 58.5 |
| | OWR | OPEN WOOD PORCH W/STEPS/ROOF | 3 | 0 | 1967 | 552.0 |
| | DWN | DOWNSTAIRS LIVING AREA | 3 | 0 | 1967 | 864.0 |
| | OWC | OPEN WOOD PORCH W/STEPS/ROOF/C | 3 | 0 | 1967 | 120.0 |
| | UTY | STORAGE/UTILITY | 3 | 0 | 1967 | 96.0 |
| | UPS | UPPER STORY | 3 | 0 | 2001 | 936.0 |
| | BIG | BUILT IN GARAGE | 3 | 0 | 2001 | 936.0 |
| | OWR | OPEN WOOD PORCH W/STEPS/ROOF | 3 | 0 | 2001 | 300.0 |
Sketch
| No sketches available for this property. |
Property Image
Land
| 1 | 13 | SQ (06001-08000) | 0.0000 | 0.00 | 0.00 | 0.00 | 1.00 | $340,000 | $0 |
Roll Value History
| 2026 | N/A | N/A | N/A | N/A | N/A |
| 2025 | $350,676 | $340,000 | $0 | $690,676 | $690,676 |
| 2024 | $347,844 | $340,000 | $0 | $687,844 | $687,844 |
| 2023 | $352,408 | $340,000 | $0 | $692,408 | $692,408 |
| 2022 | $323,242 | $300,000 | $0 | $623,242 | $623,242 |
| 2021 | $284,678 | $260,000 | $0 | $544,678 | $544,678 |
| 2020 | $310,449 | $140,000 | $0 | $450,449 | $450,449 |
| 2019 | $228,681 | $180,000 | $0 | $408,681 | $408,681 |
| 2018 | $229,418 | $170,000 | $0 | $399,418 | $399,418 |
| 2017 | $230,864 | $150,000 | $0 | $380,864 | $380,864 |
| 2016 | $233,813 | $130,000 | $0 | $363,813 | $363,813 |
| 2015 | $236,761 | $120,000 | $0 | $356,761 | $356,761 |
| 2014 | $236,630 | $122,400 | $0 | $359,030 | $359,030 |
| 2013 | $240,803 | $122,400 | $0 | $363,203 | $363,203 |
| 2012 | $243,752 | $122,400 | $0 | $366,152 | $366,152 |
| 2011 | $246,701 | $144,000 | $0 | $390,701 | $390,701 |
| 2010 | $252,580 | $144,000 | $0 | $396,580 | $396,580 |
| 2009 | $263,309 | $140,000 | $0 | $403,309 | $403,309 |
| 2008 | $183,738 | $215,000 | $0 | $398,738 | $398,738 |
| 2007 | $185,982 | $215,000 | $0 | $400,982 | $400,982 |
Deed and Sales History
| 1 | 03/01/1997 | BLA | DNU - Boundary Line Adjustment | YOUNG, RONALD & | YOUNG, RONALD & | | | $0.00 | 67264 | 96020333 |
| 2 | 07/01/1991 | WD | Warranty Deed | BROWN, TOMMY L | YOUNG, RONALD & | | | $107,250.00 | 12492 | 91010627 |
| 3 | 11/01/1968 | WD | Warranty Deed | MICKELSEN, HOWARD R | BROWN, TOMMY L | | | $0.00 | 62524 | 87008424 |
| 4 | 01/01/1900 | OTHER | Other - Misc. Documents | Unknown | MICKELSEN, HOWARD R | | | $0.00 | 0 | 0 |
Payout Agreement
| No payout information available.. |