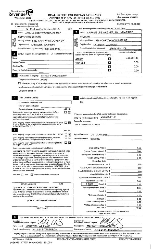
Property
Account |
| Property ID: | 354315 | Abbreviated Legal Description: | POSS SHORES 3 LOT 7 BLK 8 |
| Geographic ID: | S7770-03-08007-0 | Agent Code: | |
| Type: | Real | | |
| Tax Area: | 710 - APPRAISER-S Whid Schl Dist, outside Langley, improved & 1 acre or less | Land Use Code | 11 |
| Open Space: | N | DFL | N |
| Historic Property: | N | Remodel Property: | N |
| Multi-Family Redevelopment: | N | | |
| Township: | | Section: | |
| Range: | |
Location |
| Address: | 4191 WINDY COVE LN CLINTON, WA 98236 | Mapsco: | |
| Neighborhood: | Cycle 4 | Map ID: | 708 |
| Neighborhood CD: | 4 |
Owner |
| Name: | BELL, SHARON F | Owner ID: | 271791 |
| Mailing Address: | 4191 WINDY COVER LN CLINTON, WA 98236 | % Ownership: | 100.0000000000% |
| | | Exemptions: | |
Taxes and Assessment Details
Values
| (+) Improvement Homesite Value: | + | $0 | |
| (+) Improvement Non-Homesite Value: | + | $242,614 | |
| (+) Land Homesite Value: | + | $0 | |
| (+) Land Non-Homesite Value: | + | $360,000 | |
| (+) Curr Use (HS): | + | $0 | $0 |
| (+) Curr Use (NHS): | + | $0 | $0 |
| | | -------------------------- | |
| (=) Market Value: | = | $602,614 | |
| (–) Productivity Loss: | – | $0 | |
| | | -------------------------- | |
| (=) Subtotal: | = | $602,614 | |
| (+) Senior Appraised Value: | + | $0 | |
| (+) Non-Senior Appraised Value: | + | $602,614 | |
| | | -------------------------- | |
| (=) Total Appraised Value: | = | $602,614 | |
| (–) Senior Exemption Loss: | – | $0 | |
| (–) Exemption Loss: | – | $0 | |
| | | -------------------------- | |
| (=) Taxable Value: | = | $602,614 | |
Taxing Jurisdiction
| Owner: | BELL, SHARON F | | |
| % Ownership: | 100.0000000000% | | |
| Total Value: | $602,614 | | |
| Tax Area: | 710 - APPRAISER-S Whid Schl Dist, outside Langley, improved & 1 acre or less |
| CF | Conservation Futures | 0.0316035091 | $602,614 | $602,614 | $19.04 | | |
| FIRE3 | Fire & Rescue Dist #3 S Whidbey GEN | 1.2004855531 | $602,614 | $602,614 | $723.43 | | |
| HOBOND | Hospital BOND | 0.1910887512 | $602,614 | $602,614 | $115.15 | | |
| HOGEN | Hospital GEN | 0.3902502903 | $602,614 | $602,614 | $235.17 | | |
| CE | County Current Expense | 0.3708482477 | $602,614 | $602,614 | $223.48 | | |
| CR | County Roads | 0.4584763726 | $602,614 | $602,614 | $276.28 | | |
| ISLANDEMS | Hospital GEN (EMS) | 0.5000000000 | $602,614 | $602,614 | $301.31 | | |
| LIB | Library Sno-Isle GEN | 0.3153421757 | $602,614 | $602,614 | $190.03 | | |
| PORTWHID | Port of S Whidbey GEN | 0.1094540357 | $602,614 | $602,614 | $65.96 | | |
| SCH206BOND | School 206 BOND | 0.3161759235 | $602,614 | $602,614 | $190.53 | | |
| SCH206MO | School 206 Enrichment | 0.4547169547 | $602,614 | $602,614 | $274.02 | | |
| ST | State School | 1.3035497053 | $602,614 | $602,614 | $785.54 | | |
| ST2 | State School Part 2 | 0.8169543533 | $602,614 | $602,614 | $492.31 | | |
| SWHIDPRBD | P & R S Whidbey BOND | 0.0152817568 | $602,614 | $602,614 | $9.21 | | |
| SWHIDPRBD2 | P & R S Whidbey BOND2 | 0.0138911264 | $602,614 | $602,614 | $8.37 | | |
| SWHIDPRMT | P & R S Whidbey GEN | 0.2053334452 | $602,614 | $602,614 | $123.74 | | |
| | Total Tax Rate: | 6.6934522006 | | | | | |
| | | | | Taxes w/Current Exemptions: | $4,033.57 | | |
| | | | | Taxes w/o Exemptions: | $4,033.57 | | |
Improvement / Building
| Improvement #1: | RESIDENTIAL | State Code: | Y | 2010.0 sqft | Value: | $242,614 |
| Bathrooms: | 2 | Bedrooms: | 2 | | Ceiling: | TONGUE & GROOVE | Cooling: | HEAT PUMP/CONV/V | | Exterior Wall/Cover: | WOOD SIDING | Floor Covering: | VINYL/HARDWOOD 60-40 | | Floor Structure: | WOOD W/SUBFLOOR | Foundation: | CONCRETE | | Interior Finish: | DRYWALL PAINT | Plumbing Fixture Cnt: | 9 | | Roof Slope: | 4" IN 12" | Roof Structure/Cover: | CJ ASPHALT |
|
| | Type | Description | Class CD | Sub Class CD | Year Built | Area |
| | BAS | BASE/MAIN FLOOR | 3 | 0 | 1968 | 1005.0 |
| | OP1 | OPEN PORCH SLAB | 3 | 0 | 1968 | 200.0 |
| | OCP | OPEN CARPORT | 3 | 0 | 1968 | 554.0 |
| | UTY | STORAGE/UTILITY | 3 | 0 | 1968 | 22.0 |
| | OWP | OPEN WOOD PORCH W/STEPS | 3 | 0 | 1968 | 969.9 |
| | OWC | OPEN WOOD PORCH W/STEPS/ROOF/C | 3 | 0 | 1968 | 31.5 |
| | DWN | DOWNSTAIRS LIVING AREA | 3 | 0 | 1968 | 1005.0 |
Sketch
| No sketches available for this property. |
Property Image
Land
| 1 | 15 | SQ (12001-21780) | 0.0000 | 0.00 | 0.00 | 0.00 | 1.00 | $360,000 | $0 |
Roll Value History
| 2026 | N/A | N/A | N/A | N/A | N/A |
| 2025 | $242,614 | $360,000 | $0 | $602,614 | $602,614 |
| 2024 | $246,334 | $340,000 | $0 | $586,334 | $586,334 |
| 2023 | $245,764 | $340,000 | $0 | $585,764 | $585,764 |
| 2022 | $225,845 | $300,000 | $0 | $525,845 | $525,845 |
| 2021 | $199,279 | $260,000 | $0 | $459,279 | $459,279 |
| 2020 | $176,589 | $260,000 | $0 | $436,589 | $436,589 |
| 2019 | $136,069 | $300,000 | $0 | $436,069 | $436,069 |
| 2018 | $136,560 | $240,000 | $0 | $376,560 | $376,560 |
| 2017 | $135,528 | $230,000 | $0 | $365,528 | $365,528 |
| 2016 | $137,464 | $200,000 | $0 | $337,464 | $337,464 |
| 2015 | $139,400 | $120,000 | $0 | $259,400 | $259,400 |
| 2014 | $128,933 | $125,800 | $0 | $254,733 | $254,733 |
| 2013 | $130,879 | $125,800 | $0 | $256,679 | $256,679 |
| 2012 | $132,826 | $125,800 | $0 | $258,626 | $258,626 |
| 2011 | $134,770 | $148,000 | $0 | $282,770 | $282,770 |
| 2010 | $147,048 | $148,000 | $0 | $295,048 | $295,048 |
| 2009 | $153,569 | $185,000 | $0 | $338,569 | $338,569 |
| 2008 | $152,918 | $215,000 | $0 | $367,918 | $367,918 |
| 2007 | $154,913 | $215,000 | $0 | $369,913 | $369,913 |
Deed and Sales History
| 1 | 08/13/2015 | OTHER | Other - Misc. Documents | BELL, DONALD K | BELL, SHARON F | | | $0.00 | 20955 | 4384217 |
| 2 | 07/01/1987 | WD | Warranty Deed | ACKER, CHARLES A | BELL, DONALD K | | | $76,500.00 | 72101 | 87009544 |
| 3 | 04/01/1980 | EXECUTORD | Executor Deed | TRIBOU, ROBERT J | ACKER, CHARLES A | | | $67,000.00 | 1359 | 367910 |
| 4 | 01/01/1900 | OTHER | Other - Misc. Documents | Unknown | TRIBOU, ROBERT J | | | $0.00 | 0 | 0 |
Payout Agreement
| No payout information available.. |