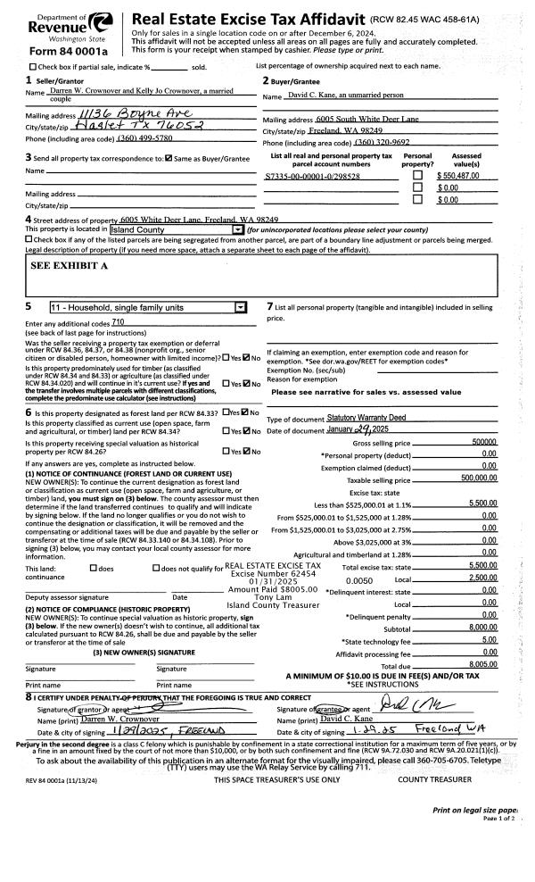
Property
Account |
| Property ID: | 355092 | Abbreviated Legal Description: | RACE LAGOON LOT 6 BLK A INCL ADJ TIDES |
| Geographic ID: | S8005-00-0A006-0 | Agent Code: | |
| Type: | Real | | |
| Tax Area: | 310 - APPRAISER-Cpvl Schl Dist, outside Cpvl, improved & 1 acre or less | Land Use Code | 11 |
| Open Space: | N | DFL | N |
| Historic Property: | N | Remodel Property: | N |
| Multi-Family Redevelopment: | N | | |
| Township: | | Section: | |
| Range: | |
Location |
| Address: | 577 RACE RD COUPEVILLE, WA 98239 | Mapsco: | |
| Neighborhood: | Cycle 2 | Map ID: | 465 |
| Neighborhood CD: | 2 |
Owner |
| Name: | BOTTOLFSON, BRUCE L | Owner ID: | 197214 |
| Mailing Address: | MARGOT BOTTOLFSON 577 RACE RD COUPEVILLE, WA 98239-4006 | % Ownership: | 100.0000000000% |
| | | Exemptions: | |
Taxes and Assessment Details
Values
| (+) Improvement Homesite Value: | + | $0 | |
| (+) Improvement Non-Homesite Value: | + | $661,312 | |
| (+) Land Homesite Value: | + | $0 | |
| (+) Land Non-Homesite Value: | + | $650,700 | |
| (+) Curr Use (HS): | + | $0 | $0 |
| (+) Curr Use (NHS): | + | $0 | $0 |
| | | -------------------------- | |
| (=) Market Value: | = | $1,312,012 | |
| (–) Productivity Loss: | – | $0 | |
| | | -------------------------- | |
| (=) Subtotal: | = | $1,312,012 | |
| (+) Senior Appraised Value: | + | $0 | |
| (+) Non-Senior Appraised Value: | + | $1,312,012 | |
| | | -------------------------- | |
| (=) Total Appraised Value: | = | $1,312,012 | |
| (–) Senior Exemption Loss: | – | $0 | |
| (–) Exemption Loss: | – | $0 | |
| | | -------------------------- | |
| (=) Taxable Value: | = | $1,312,012 | |
Taxing Jurisdiction
| Owner: | BOTTOLFSON, BRUCE L | | |
| % Ownership: | 100.0000000000% | | |
| Total Value: | $1,312,012 | | |
| Tax Area: | 310 - APPRAISER-Cpvl Schl Dist, outside Cpvl, improved & 1 acre or less |
| CF | Conservation Futures | 0.0316035091 | $1,312,012 | $1,312,012 | $41.46 | | |
| CEM2 | Cemetery #2 | 0.0095056933 | $1,312,012 | $1,312,012 | $12.47 | | |
| FIRE5 | Fire & Rescue Dist #5 C Whidbey GEN | 1.2008080668 | $1,312,012 | $1,312,012 | $1,575.47 | | |
| FIRE5BOND | Fire & Rescue Dist #5 C Whidbey BOND | 0.1400090713 | $1,312,012 | $1,312,012 | $183.69 | | |
| HOBOND | Hospital BOND | 0.1910887512 | $1,312,012 | $1,312,012 | $250.71 | | |
| HOGEN | Hospital GEN | 0.3902502903 | $1,312,012 | $1,312,012 | $512.01 | | |
| CE | County Current Expense | 0.3708482477 | $1,312,012 | $1,312,012 | $486.56 | | |
| CR | County Roads | 0.4584763726 | $1,312,012 | $1,312,012 | $601.53 | | |
| ISLANDEMS | Hospital GEN (EMS) | 0.5000000000 | $1,312,012 | $1,312,012 | $656.01 | | |
| LIB | Library Sno-Isle GEN | 0.3153421757 | $1,312,012 | $1,312,012 | $413.73 | | |
| LIBCAP | Library Sno-Isle BOND (Cap Fac Imp Area) | 0.0543427938 | $1,312,012 | $1,312,012 | $71.30 | | |
| POCOUP | Port of Coupeville GEN | 0.1093371703 | $1,312,012 | $1,312,012 | $143.45 | | |
| POCOUPIDD | Port of Coupeville IDD | 0.3409740022 | $1,312,012 | $1,312,012 | $447.36 | | |
| COUPSDTECH | School 204 CP (TECH) | 0.7545480007 | $1,312,012 | $1,312,012 | $989.98 | | |
| SCH204MO | School 204 Enrichment | 0.6716186034 | $1,312,012 | $1,312,012 | $881.17 | | |
| ST | State School | 1.3035497053 | $1,312,012 | $1,312,012 | $1,710.27 | | |
| ST2 | State School Part 2 | 0.8169543533 | $1,312,012 | $1,312,012 | $1,071.85 | | |
| | Total Tax Rate: | 7.6592568070 | | | | | |
| | | | | Taxes w/Current Exemptions: | $10,049.02 | | |
| | | | | Taxes w/o Exemptions: | $10,049.02 | | |
Improvement / Building
| Improvement #1: | RESIDENTIAL | State Code: | Y | 3438.0 sqft | Value: | $661,312 |
| Bathrooms: | 2.5 | Bedrooms: | 2 | | Ceiling: | DRYWALL PAINTED | Exterior Wall/Cover: | CEMENT FIBER | | Floor Covering: | HARDWOOD/CARP 60-40 | Floor Structure: | WOOD W/SUBFLOOR | | Foundation: | CONCRETE | Heating: | FHA GAS | | Interior Finish: | DRYWALL PAINT | Plumbing Fixture Cnt: | 14 | | Roof Slope: | 6" IN 12" | Roof Structure/Cover: | CJ ASPHALT |
|
| | Type | Description | Class CD | Sub Class CD | Year Built | Area |
| | BAS | BASE/MAIN FLOOR | 5 | 0 | 2006 | 1530.0 |
| | DWN | DOWNSTAIRS LIVING AREA | 5 | 0 | 2006 | 542.5 |
| | AGR | ATTACHED GARAGE | 5 | 0 | 2006 | 724.4 |
| | UPS | UPPER STORY | 5 | 0 | 2006 | 1365.5 |
| | OWP | OPEN WOOD PORCH W/STEPS | 5 | 0 | 2006 | 432.2 |
| | OWP | OPEN WOOD PORCH W/STEPS | 5 | 0 | 2006 | 109.2 |
| | OWC | OPEN WOOD PORCH W/STEPS/ROOF/C | 5 | 0 | 2006 | 105.0 |
| | OWC | OPEN WOOD PORCH W/STEPS/ROOF/C | 5 | 0 | 2006 | 117.0 |
Sketch
| No sketches available for this property. |
Property Image
Land
| 1 | MB | MEDIUM BANK | 0.9700 | 42253.20 | 85.00 | 0.00 | 1.00 | $650,000 | $0 |
| 2 | 55 | TIDES | 0.0000 | 0.00 | 70.00 | 0.00 | 1.00 | $700 | $0 |
Roll Value History
| 2026 | N/A | N/A | N/A | N/A | N/A |
| 2025 | $661,312 | $650,700 | $0 | $1,312,012 | $1,312,012 |
| 2024 | $654,704 | $625,700 | $0 | $1,280,404 | $1,280,404 |
| 2023 | $662,296 | $600,700 | $0 | $1,262,996 | $1,262,996 |
| 2022 | $606,581 | $475,700 | $0 | $1,082,281 | $1,082,281 |
| 2021 | $533,420 | $375,700 | $0 | $909,120 | $909,120 |
| 2020 | $518,559 | $300,700 | $0 | $819,259 | $819,259 |
| 2019 | $442,300 | $350,700 | $0 | $793,000 | $793,000 |
| 2018 | $414,856 | $350,700 | $0 | $765,556 | $765,556 |
| 2017 | $417,116 | $300,700 | $0 | $717,816 | $717,816 |
| 2016 | $421,857 | $300,700 | $0 | $722,557 | $722,557 |
| 2015 | $426,596 | $250,700 | $0 | $677,296 | $677,296 |
| 2014 | $431,337 | $250,700 | $0 | $682,037 | $682,037 |
| 2013 | $436,076 | $260,510 | $0 | $696,586 | $696,586 |
| 2012 | $473,774 | $260,510 | $0 | $734,284 | $734,284 |
| 2011 | $478,868 | $260,510 | $0 | $739,378 | $739,378 |
| 2010 | $486,741 | $260,510 | $0 | $747,251 | $747,251 |
| 2009 | $507,080 | $361,317 | $0 | $868,397 | $868,397 |
| 2008 | $512,742 | $361,317 | $0 | $874,059 | $874,059 |
| 2007 | $513,384 | $360,827 | $0 | $874,211 | $874,211 |
Deed and Sales History
| 1 | 09/09/2004 | WD | Warranty Deed | MILLS, MICHAEL R | BOTTOLFSON, BRUCE L | | | $314,000.00 | 44308 | 4112796 |
| 2 | 07/01/1993 | QCD | Quit Claim Deed | MILLS, MICHAEL | MILLS, MICHAEL R | | | $700.00 | 32628 | 93013593 |
| 3 | 08/01/1992 | OTHER | Other - Misc. Documents | MILLS, MICHAEL R | MILLS, MICHAEL | | | $60,000.00 | 11111111 | 0 |
| 4 | 08/01/1990 | WD | Warranty Deed | RASMUSSEN, BENEDICT O | MILLS, MICHAEL R | | | $85,000.00 | 5276 | 90017608 |
| 5 | 01/01/1900 | OTHER | Other - Misc. Documents | Unknown | RASMUSSEN, BENEDICT O | | | $0.00 | 0 | 0 |
Payout Agreement
| No payout information available.. |