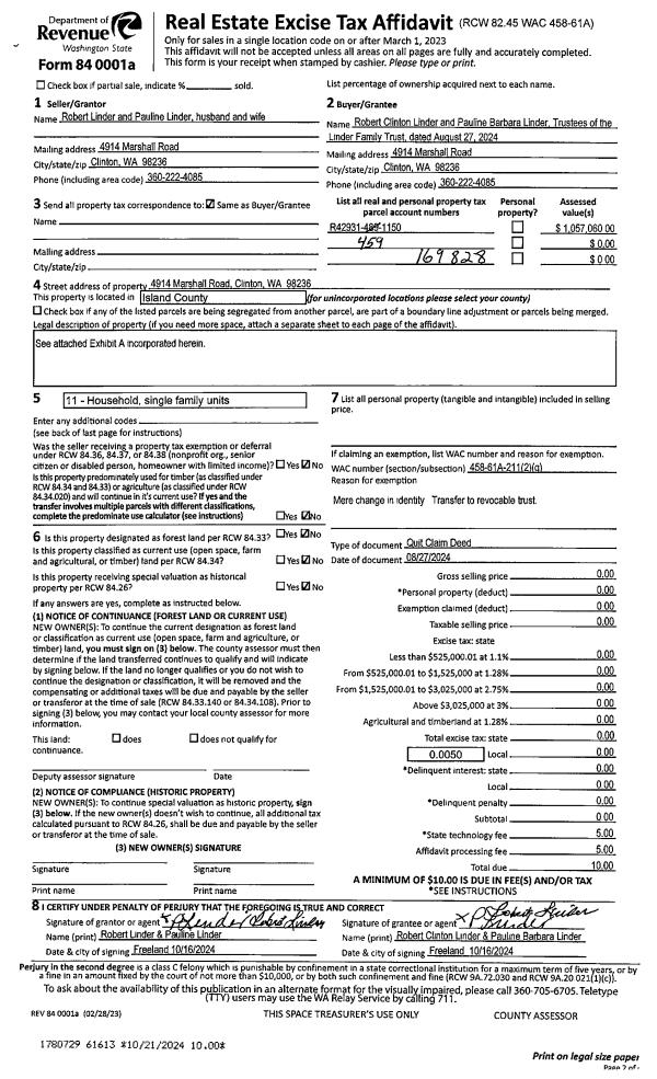
Property
Account |
| Property ID: | 355644 | Abbreviated Legal Description: | RHODENA BCH LOTS 53, 54 & 55 |
| Geographic ID: | S8010-00-00053-0 | Agent Code: | |
| Type: | Real | | |
| Tax Area: | 352 - APPRAISER-Cpvl Schl Dist, Special Dist, improved, greater than 1 acre | Land Use Code | 11 |
| Open Space: | N | DFL | N |
| Historic Property: | N | Remodel Property: | N |
| Multi-Family Redevelopment: | N | | |
| Township: | | Section: | |
| Range: | |
Location |
| Address: | 166 RHODENA DR COUPEVILLE, WA 98239 | Mapsco: | |
| Neighborhood: | Cycle 2 | Map ID: | 188 |
| Neighborhood CD: | 2 |
Owner |
| Name: | ARNOLD, STEVEN ELLIOTT | Owner ID: | 293571 |
| Mailing Address: | 4105 WESLIN AVE SHERMAN OAKS, CA 91423 | % Ownership: | 100.0000000000% |
| | | Exemptions: | |
Taxes and Assessment Details
Values
| (+) Improvement Homesite Value: | + | $0 | |
| (+) Improvement Non-Homesite Value: | + | $251,167 | |
| (+) Land Homesite Value: | + | $0 | |
| (+) Land Non-Homesite Value: | + | $510,000 | |
| (+) Curr Use (HS): | + | $0 | $0 |
| (+) Curr Use (NHS): | + | $0 | $0 |
| | | -------------------------- | |
| (=) Market Value: | = | $761,167 | |
| (–) Productivity Loss: | – | $0 | |
| | | -------------------------- | |
| (=) Subtotal: | = | $761,167 | |
| (+) Senior Appraised Value: | + | $0 | |
| (+) Non-Senior Appraised Value: | + | $761,167 | |
| | | -------------------------- | |
| (=) Total Appraised Value: | = | $761,167 | |
| (–) Senior Exemption Loss: | – | $0 | |
| (–) Exemption Loss: | – | $0 | |
| | | -------------------------- | |
| (=) Taxable Value: | = | $761,167 | |
Taxing Jurisdiction
| Owner: | ARNOLD, STEVEN ELLIOTT | | |
| % Ownership: | 100.0000000000% | | |
| Total Value: | $761,167 | | |
| Tax Area: | 352 - APPRAISER-Cpvl Schl Dist, Special Dist, improved, greater than 1 acre |
| CF | Conservation Futures | 0.0316035091 | $761,167 | $761,167 | $24.06 | | |
| CEM2 | Cemetery #2 | 0.0095056933 | $761,167 | $761,167 | $7.24 | | |
| FIRE5 | Fire & Rescue Dist #5 C Whidbey GEN | 1.2008080668 | $761,167 | $761,167 | $914.02 | | |
| FIRE5BOND | Fire & Rescue Dist #5 C Whidbey BOND | 0.1400090713 | $761,167 | $761,167 | $106.57 | | |
| HOBOND | Hospital BOND | 0.1910887512 | $761,167 | $761,167 | $145.45 | | |
| HOGEN | Hospital GEN | 0.3902502903 | $761,167 | $761,167 | $297.05 | | |
| CE | County Current Expense | 0.3708482477 | $761,167 | $761,167 | $282.28 | | |
| CR | County Roads | 0.4584763726 | $761,167 | $761,167 | $348.98 | | |
| ISLANDEMS | Hospital GEN (EMS) | 0.5000000000 | $761,167 | $761,167 | $380.58 | | |
| LIB | Library Sno-Isle GEN | 0.3153421757 | $761,167 | $761,167 | $240.03 | | |
| LIBCAP | Library Sno-Isle BOND (Cap Fac Imp Area) | 0.0543427938 | $761,167 | $761,167 | $41.36 | | |
| POCOUP | Port of Coupeville GEN | 0.1093371703 | $761,167 | $761,167 | $83.22 | | |
| POCOUPIDD | Port of Coupeville IDD | 0.3409740022 | $761,167 | $761,167 | $259.54 | | |
| COUPSDTECH | School 204 CP (TECH) | 0.7545480007 | $761,167 | $761,167 | $574.34 | | |
| SCH204MO | School 204 Enrichment | 0.6716186034 | $761,167 | $761,167 | $511.21 | | |
| ST | State School | 1.3035497053 | $761,167 | $761,167 | $992.22 | | |
| ST2 | State School Part 2 | 0.8169543533 | $761,167 | $761,167 | $621.84 | | |
| | Total Tax Rate: | 7.6592568070 | | | | | |
| | | | | Taxes w/Current Exemptions: | $5,829.99 | | |
| | | | | Taxes w/o Exemptions: | $5,829.99 | | |
Improvement / Building
| Improvement #1: | RESIDENTIAL | State Code: | Y | 1037.0 sqft | Value: | $251,167 |
| Bathrooms: | 1 | Bedrooms: | 1 | | Ceiling: | TONGUE & GROOVE | Exterior Wall/Cover: | PLY/HARDBOARD T-111 | | Floor Covering: | VINYL 100% | Floor Structure: | WOOD W/SUBFLOOR | | Foundation: | CONCRETE | Heating: | RADIANT FLOOR | | Interior Finish: | DRYWALL PAINT | Plumbing Fixture Cnt: | 6 | | Roof Slope: | 3" IN 12" | Roof Structure/Cover: | CJ ALUMINIUM HEAVY |
|
| | Type | Description | Class CD | Sub Class CD | Year Built | Area |
| | BAS | BASE/MAIN FLOOR | 3 | 0 | 2022 | 1037.0 |
| | UTY | STORAGE/UTILITY | 3 | 0 | 2022 | 286.0 |
| | OWC | OPEN WOOD PORCH W/STEPS/ROOF/C | 3 | 0 | 2022 | 45.0 |
Sketch
Property Image
Land
| 1 | HB | HIGH BLUFF | 0.0000 | 0.00 | 73.00 | 0.00 | 1.00 | $510,000 | $0 |
Roll Value History
| 2026 | N/A | N/A | N/A | N/A | N/A |
| 2025 | $251,167 | $510,000 | $0 | $761,167 | $761,167 |
| 2024 | $253,804 | $315,000 | $0 | $568,804 | $568,804 |
| 2023 | $258,418 | $315,000 | $0 | $573,418 | $573,418 |
| 2022 | $33,351 | $300,000 | $0 | $333,351 | $333,351 |
| 2021 | $0 | $255,000 | $0 | $255,000 | $255,000 |
| 2020 | $0 | $255,000 | $0 | $255,000 | $255,000 |
| 2019 | $0 | $225,000 | $0 | $225,000 | $225,000 |
| 2018 | $0 | $225,000 | $0 | $225,000 | $225,000 |
| 2017 | $0 | $200,000 | $0 | $200,000 | $200,000 |
| 2016 | $0 | $200,000 | $0 | $200,000 | $200,000 |
| 2015 | $0 | $195,000 | $0 | $195,000 | $195,000 |
| 2014 | $0 | $195,000 | $0 | $195,000 | $195,000 |
| 2013 | $0 | $213,315 | $0 | $213,315 | $213,315 |
| 2012 | $0 | $213,315 | $0 | $213,315 | $213,315 |
| 2011 | $0 | $213,315 | $0 | $213,315 | $213,315 |
| 2010 | $0 | $213,315 | $0 | $213,315 | $213,315 |
| 2009 | $0 | $220,923 | $0 | $220,923 | $220,923 |
| 2008 | $0 | $220,923 | $0 | $220,923 | $220,923 |
| 2007 | $0 | $220,923 | $0 | $220,923 | $220,923 |
Deed and Sales History
| 1 | 02/22/2020 | WD | Warranty Deed | RUNK, ALICE | ARNOLD, STEVEN ELLIOTT | | | $290,000.00 | 42203 | 4481881 |
| 2 | 04/06/2017 | WD | Warranty Deed | SCHAFER, DOUGLAS R | RUNK, ALICE | | | $252,000.00 | 28826 | 4420492 |
| 3 | 08/28/2003 | WD | Warranty Deed | ROWE, RICHARD A | SCHAFER, DOUGLAS R | | | $155,000.00 | 33985 | 4073998 |
| 4 | 05/01/1987 | WD | Warranty Deed | ROWE, RICHARD M | ROWE, RICHARD A | | | $0.00 | 73844 | 87016716 |
| 5 | 01/01/1900 | OTHER | Other - Misc. Documents | Unknown | ROWE, RICHARD M | | | $0.00 | 0 | 0 |
Payout Agreement
| No payout information available.. |