Property
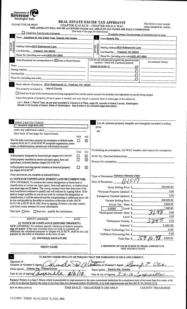
Account |
| Property ID: | 3560 | Abbreviated Legal Description: | 34 - IN GL5 & NW NE: BG SECR NW NE W1650' N315' TO OLD ST HWY ELY ALG SD HWY TO ELN NW NE S TPB EX ST HWY 525 EX E976' |
| Geographic ID: | R13103-419-2630 | Agent Code: | |
| Type: | Real | | |
| Tax Area: | 312 - APPRAISER-Cpvl Schl Dist, outside Cpvl, improved, greater than 1 acre | Land Use Code | 11 |
| Open Space: | N | DFL | N |
| Historic Property: | N | Remodel Property: | N |
| Multi-Family Redevelopment: | N | | |
| Township: | 31 | Section: | 03 |
| Range: | R1 |
Location |
| Address: | 987 W TERRY RD COUPEVILLE, WA 98239 | Mapsco: | |
| Neighborhood: | Cycle 2 | Map ID: | 27 |
| Neighborhood CD: | 2 |
Owner |
| Name: | JEFFERS, STEPHEN R | Owner ID: | 297514 |
| Mailing Address: | REAGAN N JEFFERS 987 W TERRY RD COUPEVILLE, WA 98239 | % Ownership: | 100.0000000000% |
| | | Exemptions: | |
Taxes and Assessment Details
Values
| (+) Improvement Homesite Value: | + | $0 | |
| (+) Improvement Non-Homesite Value: | + | $451,425 | |
| (+) Land Homesite Value: | + | $0 | |
| (+) Land Non-Homesite Value: | + | $340,881 | |
| (+) Curr Use (HS): | + | $0 | $0 |
| (+) Curr Use (NHS): | + | $0 | $0 |
| | | -------------------------- | |
| (=) Market Value: | = | $792,306 | |
| (–) Productivity Loss: | – | $0 | |
| | | -------------------------- | |
| (=) Subtotal: | = | $792,306 | |
| (+) Senior Appraised Value: | + | $0 | |
| (+) Non-Senior Appraised Value: | + | $792,306 | |
| | | -------------------------- | |
| (=) Total Appraised Value: | = | $792,306 | |
| (–) Senior Exemption Loss: | – | $0 | |
| (–) Exemption Loss: | – | $0 | |
| | | -------------------------- | |
| (=) Taxable Value: | = | $792,306 | |
Taxing Jurisdiction
| Owner: | JEFFERS, STEPHEN R | | |
| % Ownership: | 100.0000000000% | | |
| Total Value: | $792,306 | | |
| Tax Area: | 312 - APPRAISER-Cpvl Schl Dist, outside Cpvl, improved, greater than 1 acre |
| CF | Conservation Futures | 0.0316035091 | $792,306 | $792,306 | $25.04 | | |
| CEM2 | Cemetery #2 | 0.0095056933 | $792,306 | $792,306 | $7.53 | | |
| FIRE5 | Fire & Rescue Dist #5 C Whidbey GEN | 1.2008080668 | $792,306 | $792,306 | $951.41 | | |
| FIRE5BOND | Fire & Rescue Dist #5 C Whidbey BOND | 0.1400090713 | $792,306 | $792,306 | $110.93 | | |
| HOBOND | Hospital BOND | 0.1910887512 | $792,306 | $792,306 | $151.40 | | |
| HOGEN | Hospital GEN | 0.3902502903 | $792,306 | $792,306 | $309.20 | | |
| CE | County Current Expense | 0.3708482477 | $792,306 | $792,306 | $293.83 | | |
| CR | County Roads | 0.4584763726 | $792,306 | $792,306 | $363.25 | | |
| ISLANDEMS | Hospital GEN (EMS) | 0.5000000000 | $792,306 | $792,306 | $396.15 | | |
| LIB | Library Sno-Isle GEN | 0.3153421757 | $792,306 | $792,306 | $249.85 | | |
| LIBCAP | Library Sno-Isle BOND (Cap Fac Imp Area) | 0.0543427938 | $792,306 | $792,306 | $43.06 | | |
| POCOUP | Port of Coupeville GEN | 0.1093371703 | $792,306 | $792,306 | $86.63 | | |
| POCOUPIDD | Port of Coupeville IDD | 0.3409740022 | $792,306 | $792,306 | $270.16 | | |
| COUPSDTECH | School 204 CP (TECH) | 0.7545480007 | $792,306 | $792,306 | $597.83 | | |
| SCH204MO | School 204 Enrichment | 0.6716186034 | $792,306 | $792,306 | $532.13 | | |
| ST | State School | 1.3035497053 | $792,306 | $792,306 | $1,032.81 | | |
| ST2 | State School Part 2 | 0.8169543533 | $792,306 | $792,306 | $647.28 | | |
| | Total Tax Rate: | 7.6592568070 | | | | | |
| | | | | Taxes w/Current Exemptions: | $6,068.49 | | |
| | | | | Taxes w/o Exemptions: | $6,068.49 | | |
Improvement / Building
| Improvement #1: | RESIDENTIAL | State Code: | Y | 2422.0 sqft | Value: | $451,425 |
| Bathrooms: | 2 | Bedrooms: | 3 | | Ceiling: | DRYWALL PAINTED | Exterior Wall/Cover: | WOOD SIDING | | Floor Covering: | CARPET/VINYL 20-80 | Floor Structure: | WOOD W/SUBFLOOR | | Foundation: | CONCRETE BLOCKS | Heating: | FHA GAS | | Interior Finish: | DRYWALL PAINT | Plumbing Fixture Cnt: | 11 | | Roof Slope: | 5" IN 12" | Roof Structure/Cover: | CJ ASPHALT |
|
| | Type | Description | Class CD | Sub Class CD | Year Built | Area |
| | BAS | BASE/MAIN FLOOR | 3 | 0 | 1960 | 2134.0 |
| | OP4 | OPEN PORCH W/CEILING-ROOF | 3 | 0 | 1960 | 64.0 |
| | AGR | ATTACHED GARAGE | 3 | 0 | 1960 | 734.0 |
| | OWP | OPEN WOOD PORCH W/STEPS | 3 | 0 | 1960 | 124.0 |
| | OWR | OPEN WOOD PORCH W/STEPS/ROOF | 3 | 0 | 1960 | 99.2 |
| | ENP | ENCLOSED PORCH | 3 | 0 | 1960 | 297.6 |
| | LOF | LOFT | 3 | 0 | 1960 | 288.0 |
| | UTY | STORAGE/UTILITY | 3 | 0 | 1960 | 1080.0 |
| | OCP | OPEN CARPORT | 3 | 0 | 1960 | 360.0 |
| | UTY | STORAGE/UTILITY | 3 | 0 | 1960 | 640.0 |
Sketch
Property Image
Land
| 1 | HS | HOMESITE | 1.0000 | 43560.00 | 0.00 | 0.00 | 1.00 | $270,000 | $0 |
| 2 | 91 | UNDEVELOPED LAND-METES AND BOUNDS | 5.6000 | 243936.00 | 0.00 | 0.00 | 1.00 | $70,881 | $0 |
Roll Value History
| 2026 | N/A | N/A | N/A | N/A | N/A |
| 2025 | $451,425 | $340,881 | $0 | $792,306 | $792,306 |
| 2024 | $453,111 | $320,000 | $0 | $773,111 | $773,111 |
| 2023 | $458,619 | $310,000 | $0 | $768,619 | $768,619 |
| 2022 | $420,246 | $290,000 | $0 | $710,246 | $710,246 |
| 2021 | $369,768 | $220,000 | $0 | $589,768 | $589,768 |
| 2020 | $344,123 | $200,000 | $0 | $544,123 | $544,123 |
| 2019 | $266,901 | $250,000 | $0 | $516,901 | $516,901 |
| 2018 | $208,739 | $210,000 | $0 | $418,739 | $418,739 |
| 2017 | $208,739 | $180,000 | $0 | $388,739 | $388,739 |
| 2016 | $211,208 | $180,000 | $0 | $391,208 | $391,208 |
| 2015 | $213,680 | $165,000 | $0 | $378,680 | $378,680 |
| 2014 | $216,150 | $165,000 | $0 | $381,150 | $381,150 |
| 2013 | $218,620 | $200,000 | $0 | $418,620 | $418,620 |
| 2012 | $201,313 | $160,380 | $0 | $361,693 | $361,693 |
| 2011 | $203,783 | $178,200 | $0 | $381,983 | $381,983 |
| 2010 | $217,269 | $178,200 | $0 | $395,469 | $395,469 |
| 2009 | $226,148 | $264,000 | $0 | $490,148 | $490,148 |
| 2008 | $229,617 | $132,000 | $0 | $361,617 | $361,617 |
| 2007 | $233,323 | $132,000 | $0 | $365,323 | $365,323 |
Deed and Sales History
| 1 | 12/23/2020 | WD | Warranty Deed | CANNIZZARO CO-TTEE, KENNETH | JEFFERS, STEPHEN R | | | $699,000.00 | 46319 | 4506448 |
| 2 | 05/02/2018 | WD | Warranty Deed | BARTELS TRUSTEE, HANS | CANNIZZARO CO-TTEE, KENNETH | | | $575,000.00 | 33945 | 4443699 |
| 3 | 10/02/2014 | WD | Warranty Deed | BARTELS, HANS J | BARTELS TRUSTEE, HANS | | | $0.00 | 17211 | 4367106 |
| 4 | 12/01/1994 | WD | Warranty Deed | SHERMAN, VINCENT R | BARTELS, HANS J | | | $195,000.00 | 44980 | 94025388 |
| 5 | 11/01/1984 | WD | Warranty Deed | GREEN, ANNA F | SHERMAN, VINCENT R | | | $100,000.00 | 43362 | 84005794 |
| 6 | 08/01/1984 | QCD | Quit Claim Deed | GREEN, L F | GREEN, ANNA F | | | $0.00 | 42693 | 84003148 |
| 7 | 01/01/1900 | OTHER | Other - Misc. Documents | Unknown | GREEN, L F | | | $0.00 | 0 | 0 |
Payout Agreement
| No payout information available.. |