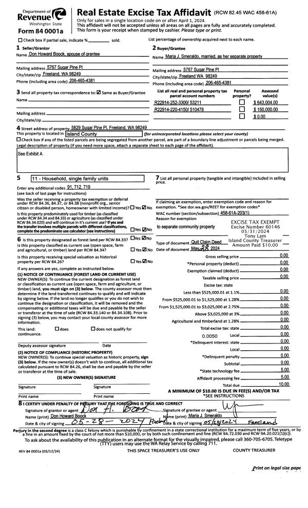
Property
Account |
| Property ID: | 356064 | Abbreviated Legal Description: | RIDGEWOOD LOT 9 |
| Geographic ID: | S8015-00-00009-0 | Agent Code: | |
| Type: | Real | | |
| Tax Area: | 100 - APPRAISER-OH Schl Dist, in OH | Land Use Code | 11 |
| Open Space: | N | DFL | N |
| Historic Property: | N | Remodel Property: | N |
| Multi-Family Redevelopment: | N | | |
| Township: | | Section: | |
| Range: | |
Location |
| Address: | 1563 NE NARROWS AVE OAK HARBOR, WA 98277 | Mapsco: | |
| Neighborhood: | Cycle 1 | Map ID: | 259 |
| Neighborhood CD: | 1 |
Owner |
| Name: | FERNANDO, DANILO F / NORMA J | Owner ID: | 79679 |
| Mailing Address: | 1563 NE NARROWS AVE OAK HARBOR, WA 98277-4841 | % Ownership: | 100.0000000000% |
| | | Exemptions: | |
Taxes and Assessment Details
Values
| (+) Improvement Homesite Value: | + | $0 | |
| (+) Improvement Non-Homesite Value: | + | $344,016 | |
| (+) Land Homesite Value: | + | $0 | |
| (+) Land Non-Homesite Value: | + | $180,000 | |
| (+) Curr Use (HS): | + | $0 | $0 |
| (+) Curr Use (NHS): | + | $0 | $0 |
| | | -------------------------- | |
| (=) Market Value: | = | $524,016 | |
| (–) Productivity Loss: | – | $0 | |
| | | -------------------------- | |
| (=) Subtotal: | = | $524,016 | |
| (+) Senior Appraised Value: | + | $0 | |
| (+) Non-Senior Appraised Value: | + | $524,016 | |
| | | -------------------------- | |
| (=) Total Appraised Value: | = | $524,016 | |
| (–) Senior Exemption Loss: | – | $0 | |
| (–) Exemption Loss: | – | $0 | |
| | | -------------------------- | |
| (=) Taxable Value: | = | $524,016 | |
Taxing Jurisdiction
| Owner: | FERNANDO, DANILO F / NORMA J | | |
| % Ownership: | 100.0000000000% | | |
| Total Value: | $524,016 | | |
| Tax Area: | 100 - APPRAISER-OH Schl Dist, in OH |
| CF | Conservation Futures | 0.0316035091 | $524,016 | $524,016 | $16.56 | | |
| CEM1 | Cemetery #1 | 0.0040320932 | $524,016 | $524,016 | $2.11 | | |
| COH | City of Oak Harbor | 2.3001546061 | $524,016 | $524,016 | $1,205.32 | | |
| OAKBOND | City of Oak Harbor BOND | 0.1926904192 | $524,016 | $524,016 | $100.97 | | |
| HOBOND | Hospital BOND | 0.1910887512 | $524,016 | $524,016 | $100.13 | | |
| HOGEN | Hospital GEN | 0.3902502903 | $524,016 | $524,016 | $204.50 | | |
| CE | County Current Expense | 0.3708482477 | $524,016 | $524,016 | $194.33 | | |
| ISLANDEMS | Hospital GEN (EMS) | 0.5000000000 | $524,016 | $524,016 | $262.01 | | |
| LIB | Library Sno-Isle GEN | 0.3153421757 | $524,016 | $524,016 | $165.24 | | |
| NWHIDPRMT | P & R N Whidbey GEN | 0.2004466701 | $524,016 | $524,016 | $105.04 | | |
| SCH201MO | School 201 Enrichment | 1.8559231640 | $524,016 | $524,016 | $972.53 | | |
| ST | State School | 1.3035497053 | $524,016 | $524,016 | $683.08 | | |
| ST2 | State School Part 2 | 0.8169543533 | $524,016 | $524,016 | $428.10 | | |
| | Total Tax Rate: | 8.4728839852 | | | | | |
| | | | | Taxes w/Current Exemptions: | $4,439.92 | | |
| | | | | Taxes w/o Exemptions: | $4,439.92 | | |
Improvement / Building
| Improvement #1: | RESIDENTIAL | State Code: | Y | 2428.0 sqft | Value: | $344,016 |
| Bathrooms: | 2 | Bedrooms: | 5 | | Ceiling: | BEAM PAINTED | Cooling: | HEAT PUMP/CONV/V | | Exterior Wall/Cover: | VINYL | Floor Covering: | CARPET/VINYL 80-20 | | Floor Structure: | WOOD W/SUBFLOOR | Foundation: | CONCRETE | | Interior Finish: | DRYWALL PAINT | Plumbing Fixture Cnt: | 9 | | Roof Slope: | 4" IN 12" | Roof Structure/Cover: | BEAM ALUMINUM HEAVY |
|
| | Type | Description | Class CD | Sub Class CD | Year Built | Area |
| | BAS | BASE/MAIN FLOOR | 3 | 0 | 1968 | 1214.0 |
| | AGR | ATTACHED GARAGE | 3 | 0 | 1968 | 576.0 |
| | BAW | BALCONY WOOD RAIL | 3 | 0 | 1968 | 64.0 |
| | OWP | OPEN WOOD PORCH W/STEPS | 3 | 0 | 1968 | 472.0 |
| | DWN | DOWNSTAIRS LIVING AREA | 3 | 0 | 1968 | 1214.0 |
Sketch
Property Image
Land
| 1 | 14 | SQ (08001-12000) | 0.0000 | 0.00 | 0.00 | 0.00 | 1.00 | $180,000 | $0 |
Roll Value History
| 2026 | N/A | N/A | N/A | N/A | N/A |
| 2025 | $344,016 | $180,000 | $0 | $524,016 | $524,016 |
| 2024 | $342,265 | $170,000 | $0 | $512,265 | $512,265 |
| 2023 | $327,078 | $170,000 | $0 | $497,078 | $497,078 |
| 2022 | $300,110 | $160,000 | $0 | $460,110 | $460,110 |
| 2021 | $264,385 | $125,000 | $0 | $389,385 | $389,385 |
| 2020 | $258,643 | $100,000 | $0 | $358,643 | $358,643 |
| 2019 | $202,464 | $140,000 | $0 | $342,464 | $342,464 |
| 2018 | $203,104 | $125,000 | $0 | $328,104 | $328,104 |
| 2017 | $138,109 | $110,000 | $0 | $248,109 | $248,109 |
| 2016 | $140,533 | $90,000 | $0 | $230,533 | $230,533 |
| 2015 | $142,956 | $70,000 | $0 | $212,956 | $212,956 |
| 2014 | $145,378 | $55,000 | $0 | $200,378 | $200,378 |
| 2013 | $147,800 | $55,000 | $0 | $202,800 | $202,800 |
| 2012 | $150,224 | $65,000 | $0 | $215,224 | $215,224 |
| 2011 | $150,182 | $65,000 | $0 | $215,182 | $215,182 |
| 2010 | $164,596 | $65,000 | $0 | $229,596 | $229,596 |
| 2009 | $173,165 | $89,206 | $0 | $262,371 | $262,371 |
| 2008 | $171,933 | $109,000 | $0 | $280,933 | $280,933 |
| 2007 | $164,545 | $109,000 | $0 | $273,545 | $273,545 |
Deed and Sales History
| 1 | 08/01/1995 | WD | Warranty Deed | LENGYEL, SHIRLEY A | FERNANDO, DANILO F | | | $155,950.00 | 53309 | 95015234 |
| 2 | 07/01/1993 | OTHER | Other - Misc. Documents | LENGYEL, JOHN | LENGYEL, SHIRLEY A | | | $0.00 | 65486 | 93005771 |
| 3 | 01/01/1900 | OTHER | Other - Misc. Documents | Unknown | LENGYEL, JOHN | | | $0.00 | 0 | 0 |
Payout Agreement
| No payout information available.. |