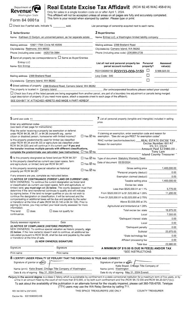
Property
Account |
| Property ID: | 356144 | Abbreviated Legal Description: | RIDGEWOOD 2 LOT 16 |
| Geographic ID: | S8015-02-00016-0 | Agent Code: | |
| Type: | Real | | |
| Tax Area: | 100 - APPRAISER-OH Schl Dist, in OH | Land Use Code | 11 |
| Open Space: | N | DFL | N |
| Historic Property: | N | Remodel Property: | N |
| Multi-Family Redevelopment: | N | | |
| Township: | | Section: | |
| Range: | |
Location |
| Address: | 1233 NE PATRICK LN OAK HARBOR, WA 98277 | Mapsco: | |
| Neighborhood: | Cycle 1 | Map ID: | 259 |
| Neighborhood CD: | 1 |
Owner |
| Name: | TURNER, MICHAEL J | Owner ID: | 79687 |
| Mailing Address: | 1233 NE PATRICK LN OAK HARBOR, WA 98277-4849 | % Ownership: | 100.0000000000% |
| | | Exemptions: | |
Taxes and Assessment Details
Values
| (+) Improvement Homesite Value: | + | $0 | |
| (+) Improvement Non-Homesite Value: | + | $253,088 | |
| (+) Land Homesite Value: | + | $0 | |
| (+) Land Non-Homesite Value: | + | $180,000 | |
| (+) Curr Use (HS): | + | $0 | $0 |
| (+) Curr Use (NHS): | + | $0 | $0 |
| | | -------------------------- | |
| (=) Market Value: | = | $433,088 | |
| (–) Productivity Loss: | – | $0 | |
| | | -------------------------- | |
| (=) Subtotal: | = | $433,088 | |
| (+) Senior Appraised Value: | + | $0 | |
| (+) Non-Senior Appraised Value: | + | $433,088 | |
| | | -------------------------- | |
| (=) Total Appraised Value: | = | $433,088 | |
| (–) Senior Exemption Loss: | – | $0 | |
| (–) Exemption Loss: | – | $0 | |
| | | -------------------------- | |
| (=) Taxable Value: | = | $433,088 | |
Taxing Jurisdiction
| Owner: | TURNER, MICHAEL J | | |
| % Ownership: | 100.0000000000% | | |
| Total Value: | $433,088 | | |
| Tax Area: | 100 - APPRAISER-OH Schl Dist, in OH |
| CF | Conservation Futures | 0.0316035091 | $433,088 | $433,088 | $13.69 | | |
| CEM1 | Cemetery #1 | 0.0040320932 | $433,088 | $433,088 | $1.75 | | |
| COH | City of Oak Harbor | 2.3001546061 | $433,088 | $433,088 | $996.17 | | |
| OAKBOND | City of Oak Harbor BOND | 0.1926904192 | $433,088 | $433,088 | $83.45 | | |
| HOBOND | Hospital BOND | 0.1910887512 | $433,088 | $433,088 | $82.76 | | |
| HOGEN | Hospital GEN | 0.3902502903 | $433,088 | $433,088 | $169.01 | | |
| CE | County Current Expense | 0.3708482477 | $433,088 | $433,088 | $160.61 | | |
| ISLANDEMS | Hospital GEN (EMS) | 0.5000000000 | $433,088 | $433,088 | $216.54 | | |
| LIB | Library Sno-Isle GEN | 0.3153421757 | $433,088 | $433,088 | $136.57 | | |
| NWHIDPRMT | P & R N Whidbey GEN | 0.2004466701 | $433,088 | $433,088 | $86.81 | | |
| SCH201MO | School 201 Enrichment | 1.8559231640 | $433,088 | $433,088 | $803.78 | | |
| ST | State School | 1.3035497053 | $433,088 | $433,088 | $564.55 | | |
| ST2 | State School Part 2 | 0.8169543533 | $433,088 | $433,088 | $353.81 | | |
| | Total Tax Rate: | 8.4728839852 | | | | | |
| | | | | Taxes w/Current Exemptions: | $3,669.50 | | |
| | | | | Taxes w/o Exemptions: | $3,669.50 | | |
Improvement / Building
| Improvement #1: | RESIDENTIAL | State Code: | Y | 2132.0 sqft | Value: | $253,088 |
| Bathrooms: | 3 | Bedrooms: | 3 | | Ceiling: | DRY WALL SPRAYED | Exterior Wall/Cover: | PLY/HARDBOARD T-111 | | Floor Covering: | CARPET/VINYL 80-20 | Floor Structure: | WOOD W/SUBFLOOR | | Foundation: | CONCRETE | Heating: | BASEBOARD ELECTRIC | | Interior Finish: | DRYWALL PAINT | Plumbing Fixture Cnt: | 12 | | Roof Slope: | 5" IN 12" | Roof Structure/Cover: | CJ ASPHALT |
|
| | Type | Description | Class CD | Sub Class CD | Year Built | Area |
| | BAS | BASE/MAIN FLOOR | 3 | 0 | 1971 | 1456.0 |
| | DWN | DOWNSTAIRS LIVING AREA | 3 | 0 | 1971 | 676.0 |
| | OP1 | OPEN PORCH SLAB | 3 | 0 | 1971 | 38.0 |
| | BGR | BASEMENT GARAGE | 3 | 0 | 1971 | 676.0 |
| | OWP | OPEN WOOD PORCH W/STEPS | 3 | 0 | 1971 | 115.0 |
Sketch
Property Image
Land
| 1 | 14 | SQ (08001-12000) | 0.0000 | 0.00 | 0.00 | 0.00 | 1.00 | $180,000 | $0 |
Roll Value History
| 2026 | N/A | N/A | N/A | N/A | N/A |
| 2025 | $253,088 | $180,000 | $0 | $433,088 | $433,088 |
| 2024 | $262,239 | $170,000 | $0 | $432,239 | $432,239 |
| 2023 | $243,878 | $170,000 | $0 | $413,878 | $413,878 |
| 2022 | $224,121 | $160,000 | $0 | $384,121 | $384,121 |
| 2021 | $197,742 | $125,000 | $0 | $322,742 | $322,742 |
| 2020 | $193,189 | $100,000 | $0 | $293,189 | $293,189 |
| 2019 | $147,500 | $140,000 | $0 | $287,500 | $287,500 |
| 2018 | $148,019 | $125,000 | $0 | $273,019 | $273,019 |
| 2017 | $114,830 | $110,000 | $0 | $224,830 | $224,830 |
| 2016 | $116,844 | $90,000 | $0 | $206,844 | $206,844 |
| 2015 | $118,859 | $70,000 | $0 | $188,859 | $188,859 |
| 2014 | $120,873 | $55,000 | $0 | $175,873 | $175,873 |
| 2013 | $122,888 | $55,000 | $0 | $177,888 | $177,888 |
| 2012 | $124,902 | $65,000 | $0 | $189,902 | $189,902 |
| 2011 | $124,238 | $65,000 | $0 | $189,238 | $189,238 |
| 2010 | $139,372 | $65,000 | $0 | $204,372 | $204,372 |
| 2009 | $145,548 | $90,470 | $0 | $236,018 | $236,018 |
| 2008 | $145,548 | $109,000 | $0 | $254,548 | $254,548 |
| 2007 | $147,583 | $109,000 | $0 | $256,583 | $256,583 |
Deed and Sales History
| 1 | 08/01/1987 | WD | Warranty Deed | GRIGGS, BEDFORD L | TURNER, MICHAEL J | | | $85,000.00 | 72474 | 87011344 |
| 2 | 12/01/1984 | WD | Warranty Deed | ANDERSON, ROBERT P | GRIGGS, BEDFORD L | | | $78,000.00 | 50012 | 85000046 |
| 3 | 05/01/1984 | QCD | Quit Claim Deed | ANDERSON, ROBERT P | ANDERSON, ROBERT P | | | $0.00 | 41376 | 424706 |
| 4 | 01/01/1900 | OTHER | Other - Misc. Documents | Unknown | ANDERSON, ROBERT P | | | $0.00 | 0 | 0 |
Payout Agreement
| No payout information available.. |