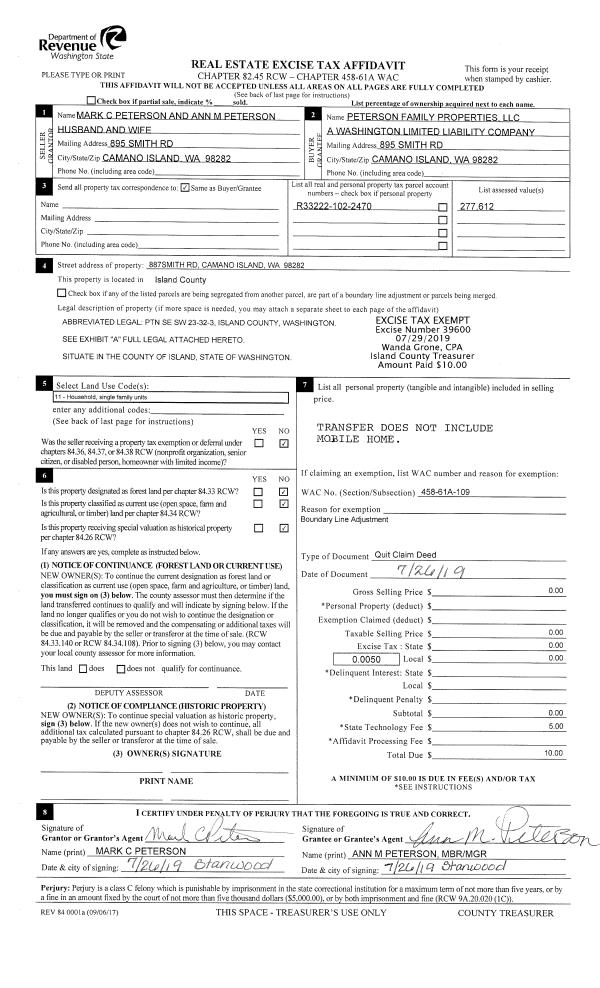
Property
Account |
| Property ID: | 356297 | Abbreviated Legal Description: | RIDGEWOOD 2 LOT 31 |
| Geographic ID: | S8015-02-00031-0 | Agent Code: | |
| Type: | Real | | |
| Tax Area: | 100 - APPRAISER-OH Schl Dist, in OH | Land Use Code | 11 |
| Open Space: | N | DFL | N |
| Historic Property: | N | Remodel Property: | N |
| Multi-Family Redevelopment: | N | | |
| Township: | | Section: | |
| Range: | |
Location |
| Address: | 1245 NE O'LEARY ST OAK HARBOR, WA 98277 | Mapsco: | |
| Neighborhood: | Cycle 1 | Map ID: | 259 |
| Neighborhood CD: | 1 |
Owner |
| Name: | MASCHO, VALERIE | Owner ID: | 290980 |
| Mailing Address: | DAVID MASCHO 1245 NE O'LEARY ST OAK HARBOR, WA 98277 | % Ownership: | 100.0000000000% |
| | | Exemptions: | |
Taxes and Assessment Details
Values
| (+) Improvement Homesite Value: | + | $0 | |
| (+) Improvement Non-Homesite Value: | + | $298,093 | |
| (+) Land Homesite Value: | + | $0 | |
| (+) Land Non-Homesite Value: | + | $180,000 | |
| (+) Curr Use (HS): | + | $0 | $0 |
| (+) Curr Use (NHS): | + | $0 | $0 |
| | | -------------------------- | |
| (=) Market Value: | = | $478,093 | |
| (–) Productivity Loss: | – | $0 | |
| | | -------------------------- | |
| (=) Subtotal: | = | $478,093 | |
| (+) Senior Appraised Value: | + | $0 | |
| (+) Non-Senior Appraised Value: | + | $478,093 | |
| | | -------------------------- | |
| (=) Total Appraised Value: | = | $478,093 | |
| (–) Senior Exemption Loss: | – | $0 | |
| (–) Exemption Loss: | – | $0 | |
| | | -------------------------- | |
| (=) Taxable Value: | = | $478,093 | |
Taxing Jurisdiction
| Owner: | MASCHO, VALERIE | | |
| % Ownership: | 100.0000000000% | | |
| Total Value: | $478,093 | | |
| Tax Area: | 100 - APPRAISER-OH Schl Dist, in OH |
| CF | Conservation Futures | 0.0316035091 | $478,093 | $478,093 | $15.11 | | |
| CEM1 | Cemetery #1 | 0.0040320932 | $478,093 | $478,093 | $1.93 | | |
| COH | City of Oak Harbor | 2.3001546061 | $478,093 | $478,093 | $1,099.69 | | |
| OAKBOND | City of Oak Harbor BOND | 0.1926904192 | $478,093 | $478,093 | $92.12 | | |
| HOBOND | Hospital BOND | 0.1910887512 | $478,093 | $478,093 | $91.36 | | |
| HOGEN | Hospital GEN | 0.3902502903 | $478,093 | $478,093 | $186.58 | | |
| CE | County Current Expense | 0.3708482477 | $478,093 | $478,093 | $177.30 | | |
| ISLANDEMS | Hospital GEN (EMS) | 0.5000000000 | $478,093 | $478,093 | $239.05 | | |
| LIB | Library Sno-Isle GEN | 0.3153421757 | $478,093 | $478,093 | $150.76 | | |
| NWHIDPRMT | P & R N Whidbey GEN | 0.2004466701 | $478,093 | $478,093 | $95.83 | | |
| SCH201MO | School 201 Enrichment | 1.8559231640 | $478,093 | $478,093 | $887.30 | | |
| ST | State School | 1.3035497053 | $478,093 | $478,093 | $623.22 | | |
| ST2 | State School Part 2 | 0.8169543533 | $478,093 | $478,093 | $390.58 | | |
| | Total Tax Rate: | 8.4728839852 | | | | | |
| | | | | Taxes w/Current Exemptions: | $4,050.83 | | |
| | | | | Taxes w/o Exemptions: | $4,050.83 | | |
Improvement / Building
| Improvement #1: | RESIDENTIAL | State Code: | Y | 2358.8 sqft | Value: | $298,093 |
| Bathrooms: | 2.5 | Bedrooms: | 3 | | Ceiling: | DRY WALL SPRAYED | Exterior Wall/Cover: | WOOD SIDING | | Floor Covering: | CARPET/VINYL 20-80 | Floor Structure: | WOOD W/SUBFLOOR | | Foundation: | CONCRETE | Heating: | FHA GAS | | Interior Finish: | DRYWALL PAINT | Plumbing Fixture Cnt: | 11 | | Roof Slope: | 4" IN 12" | Roof Structure/Cover: | CJ ASPHALT |
|
| | Type | Description | Class CD | Sub Class CD | Year Built | Area |
| | BAS | BASE/MAIN FLOOR | 3 | 0 | 1972 | 1392.4 |
| | DWN | DOWNSTAIRS LIVING AREA | 3 | 0 | 1972 | 966.4 |
| | BIG | BUILT IN GARAGE | 3 | 0 | 1972 | 629.2 |
| | OWP | OPEN WOOD PORCH W/STEPS | 3 | 0 | 1972 | 276.0 |
| | OWP | OPEN WOOD PORCH W/STEPS | 3 | 0 | 1972 | 81.3 |
Sketch
Property Image
Land
| 1 | 14 | SQ (08001-12000) | 0.0000 | 0.00 | 0.00 | 0.00 | 1.00 | $180,000 | $0 |
Roll Value History
| 2026 | N/A | N/A | N/A | N/A | N/A |
| 2025 | $298,093 | $180,000 | $0 | $478,093 | $478,093 |
| 2024 | $302,056 | $170,000 | $0 | $472,056 | $472,056 |
| 2023 | $270,191 | $170,000 | $0 | $440,191 | $440,191 |
| 2022 | $248,204 | $160,000 | $0 | $408,204 | $408,204 |
| 2021 | $218,895 | $125,000 | $0 | $343,895 | $343,895 |
| 2020 | $214,039 | $100,000 | $0 | $314,039 | $314,039 |
| 2019 | $145,329 | $140,000 | $0 | $285,329 | $285,329 |
| 2018 | $145,877 | $125,000 | $0 | $270,877 | $270,877 |
| 2017 | $124,244 | $110,000 | $0 | $234,244 | $234,244 |
| 2016 | $126,386 | $90,000 | $0 | $216,386 | $216,386 |
| 2015 | $128,528 | $70,000 | $0 | $198,528 | $198,528 |
| 2014 | $130,670 | $55,000 | $0 | $185,670 | $185,670 |
| 2013 | $132,813 | $55,000 | $0 | $187,813 | $187,813 |
| 2012 | $134,954 | $65,000 | $0 | $199,954 | $199,954 |
| 2011 | $135,458 | $65,000 | $0 | $200,458 | $200,458 |
| 2010 | $148,532 | $65,000 | $0 | $213,532 | $213,532 |
| 2009 | $155,123 | $90,470 | $0 | $245,593 | $245,593 |
| 2008 | $157,272 | $109,000 | $0 | $266,272 | $266,272 |
| 2007 | $159,421 | $109,000 | $0 | $268,421 | $268,421 |
Deed and Sales History
| 1 | 07/19/2019 | WD | Warranty Deed | DENNISON-SCOTT, CHARLENE | MASCHO, VALERIE | | | $329,900.00 | 39488 | 4467577 |
| 2 | 07/18/2019 | QCD | Quit Claim Deed | TSOSIE, DAVID JR / CHARLENE | DENNISON-SCOTT, CHARLENE | | | $0.00 | 39732 | 4468776 |
| 3 | 07/18/2019 | QCD | Quit Claim Deed | TSOSIE, DAVID JR / CHARLENE | DENNISON-SCOTT, CHARLENE | | | $0.00 | 39483 | 4467576 |
| 4 | 10/01/1993 | WD | Warranty Deed | HOOVER, ROBERT C | TSOSIE, DAVID J | | | $131,000.00 | 34196 | 93021931 |
| 5 | 04/01/1985 | WD | Warranty Deed | CRATER, GEORGE H | HOOVER, ROBERT C | | | $74,000.00 | 50785 | 85003309 |
| 6 | 01/01/1900 | OTHER | Other - Misc. Documents | Unknown | CRATER, GEORGE H | | | $0.00 | 0 | 0 |
Payout Agreement
| No payout information available.. |