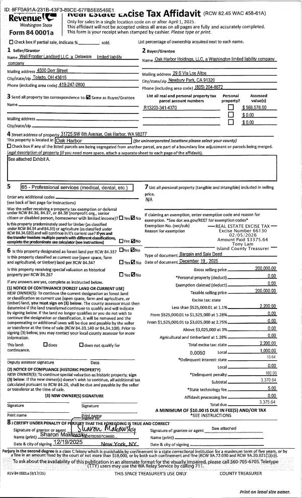
Property
Account |
| Property ID: | 356386 | Abbreviated Legal Description: | RIV TERR LOT 8 BLK 1 |
| Geographic ID: | S8020-00-01008-0 | Agent Code: | |
| Type: | Real | | |
| Tax Area: | 720 - APPRAISER-S Whid Schl Dist, Special District, improved & less than 1 acre | Land Use Code | 11 |
| Open Space: | N | DFL | N |
| Historic Property: | N | Remodel Property: | N |
| Multi-Family Redevelopment: | N | | |
| Township: | | Section: | |
| Range: | |
Location |
| Address: | 6765 COLUMBIA BEACH DR CLINTON, WA 98236 | Mapsco: | |
| Neighborhood: | Cycle 4 | Map ID: | 1001 |
| Neighborhood CD: | 4 |
Owner |
| Name: | LUTHY, DANA H | Owner ID: | 291658 |
| Mailing Address: | 6765 COLUMBIA BEACH DR CLINTON, WA 98236 | % Ownership: | 100.0000000000% |
| | | Exemptions: | |
Taxes and Assessment Details
Values
| (+) Improvement Homesite Value: | + | $0 | |
| (+) Improvement Non-Homesite Value: | + | $814,107 | |
| (+) Land Homesite Value: | + | $0 | |
| (+) Land Non-Homesite Value: | + | $850,000 | |
| (+) Curr Use (HS): | + | $0 | $0 |
| (+) Curr Use (NHS): | + | $0 | $0 |
| | | -------------------------- | |
| (=) Market Value: | = | $1,664,107 | |
| (–) Productivity Loss: | – | $0 | |
| | | -------------------------- | |
| (=) Subtotal: | = | $1,664,107 | |
| (+) Senior Appraised Value: | + | $0 | |
| (+) Non-Senior Appraised Value: | + | $1,664,107 | |
| | | -------------------------- | |
| (=) Total Appraised Value: | = | $1,664,107 | |
| (–) Senior Exemption Loss: | – | $0 | |
| (–) Exemption Loss: | – | $0 | |
| | | -------------------------- | |
| (=) Taxable Value: | = | $1,664,107 | |
Taxing Jurisdiction
| Owner: | LUTHY, DANA H | | |
| % Ownership: | 100.0000000000% | | |
| Total Value: | $1,664,107 | | |
| Tax Area: | 720 - APPRAISER-S Whid Schl Dist, Special District, improved & less than 1 acre |
| CF | Conservation Futures | 0.0316035091 | $1,664,107 | $1,664,107 | $52.59 | | |
| FIRE3 | Fire & Rescue Dist #3 S Whidbey GEN | 1.2004855531 | $1,664,107 | $1,664,107 | $1,997.74 | | |
| HOBOND | Hospital BOND | 0.1910887512 | $1,664,107 | $1,664,107 | $317.99 | | |
| HOGEN | Hospital GEN | 0.3902502903 | $1,664,107 | $1,664,107 | $649.42 | | |
| CE | County Current Expense | 0.3708482477 | $1,664,107 | $1,664,107 | $617.13 | | |
| CR | County Roads | 0.4584763726 | $1,664,107 | $1,664,107 | $762.95 | | |
| ISLANDEMS | Hospital GEN (EMS) | 0.5000000000 | $1,664,107 | $1,664,107 | $832.05 | | |
| LIB | Library Sno-Isle GEN | 0.3153421757 | $1,664,107 | $1,664,107 | $524.76 | | |
| PORTWHID | Port of S Whidbey GEN | 0.1094540357 | $1,664,107 | $1,664,107 | $182.14 | | |
| SCH206BOND | School 206 BOND | 0.3161759235 | $1,664,107 | $1,664,107 | $526.15 | | |
| SCH206MO | School 206 Enrichment | 0.4547169547 | $1,664,107 | $1,664,107 | $756.70 | | |
| ST | State School | 1.3035497053 | $1,664,107 | $1,664,107 | $2,169.25 | | |
| ST2 | State School Part 2 | 0.8169543533 | $1,664,107 | $1,664,107 | $1,359.50 | | |
| SWHIDPRBD | P & R S Whidbey BOND | 0.0152817568 | $1,664,107 | $1,664,107 | $25.43 | | |
| SWHIDPRBD2 | P & R S Whidbey BOND2 | 0.0138911264 | $1,664,107 | $1,664,107 | $23.12 | | |
| SWHIDPRMT | P & R S Whidbey GEN | 0.2053334452 | $1,664,107 | $1,664,107 | $341.70 | | |
| | Total Tax Rate: | 6.6934522006 | | | | | |
| | | | | Taxes w/Current Exemptions: | $11,138.62 | | |
| | | | | Taxes w/o Exemptions: | $11,138.62 | | |
Improvement / Building
| Improvement #1: | RESIDENTIAL | State Code: | Y | 2997.0 sqft | Value: | $814,107 |
| Bathrooms: | 2.5 | Bedrooms: | 3 | | Ceiling: | DRYWALL PAINTED | Exterior Wall/Cover: | SHINGLE | | Floor Covering: | CERAMIC TILE/CPT 40-60 | Floor Structure: | WOOD W/SUBFLOOR | | Foundation: | CONCRETE | Heating: | HEAT PUMP | | Interior Finish: | DRYWALL PAINT | Plumbing Fixture Cnt: | 15 | | Roof Slope: | 8" IN 12" | Roof Structure/Cover: | CJ ASPHALT |
|
| | Type | Description | Class CD | Sub Class CD | Year Built | Area |
| | BAS | BASE/MAIN FLOOR | 6 | 0 | 1997 | 1530.0 |
| | OP2 | OPEN PORCH W/STEPS | 6 | 0 | 1997 | 40.0 |
| | OP4 | OPEN PORCH W/CEILING-ROOF | 6 | 0 | 1997 | 36.0 |
| | BIG | BUILT IN GARAGE | 6 | 0 | 1997 | 528.0 |
| | UPS | UPPER STORY | 6 | 0 | 1997 | 1467.0 |
| | OWP | OPEN WOOD PORCH W/STEPS | 6 | 0 | 1997 | 557.0 |
Sketch
Property Image
Land
| 1 | LB | LOW BANK | 0.0000 | 0.00 | 60.00 | 0.00 | 1.00 | $850,000 | $0 |
Roll Value History
| 2026 | N/A | N/A | N/A | N/A | N/A |
| 2025 | $814,107 | $850,000 | $0 | $1,664,107 | $1,664,107 |
| 2024 | $759,068 | $800,000 | $0 | $1,559,068 | $1,559,068 |
| 2023 | $768,077 | $800,000 | $0 | $1,568,077 | $1,568,077 |
| 2022 | $703,641 | $750,000 | $0 | $1,453,641 | $1,453,641 |
| 2021 | $618,963 | $675,000 | $0 | $1,293,963 | $1,293,963 |
| 2020 | $583,256 | $600,000 | $0 | $1,183,256 | $1,183,256 |
| 2019 | $524,116 | $500,000 | $0 | $1,024,116 | $1,024,116 |
| 2018 | $525,637 | $500,000 | $0 | $1,025,637 | $1,025,637 |
| 2017 | $528,675 | $500,000 | $0 | $1,028,675 | $1,028,675 |
| 2016 | $534,751 | $500,000 | $0 | $1,034,751 | $1,034,751 |
| 2015 | $540,825 | $500,000 | $0 | $1,040,825 | $1,040,825 |
| 2014 | $405,220 | $500,000 | $0 | $905,220 | $905,220 |
| 2013 | $409,948 | $500,000 | $0 | $909,948 | $909,948 |
| 2012 | $414,677 | $512,168 | $0 | $926,845 | $926,845 |
| 2011 | $419,408 | $602,550 | $0 | $1,021,958 | $1,021,958 |
| 2010 | $427,011 | $602,550 | $0 | $1,029,561 | $1,029,561 |
| 2009 | $445,129 | $750,870 | $0 | $1,195,999 | $1,195,999 |
| 2008 | $450,546 | $750,870 | $0 | $1,201,416 | $1,201,416 |
| 2007 | $455,880 | $750,870 | $0 | $1,206,750 | $1,206,750 |
Deed and Sales History
| 1 | 06/14/2019 | QCD | Quit Claim Deed | NOSIGLIA, MAXWELL A | LUTHY, DANA H | | | $538,908.00 | 40151 | 4470884 |
|   | |
| 2 | 08/03/2016 | WD | Warranty Deed | ZOOK, DOUGLAS A / JEAN A | NOSIGLIA, MAXWELL A | | | $1,100,000.00 | 25560 | 4404601 |
|   | |
| 3 | 08/01/1978 | OTHER | Other - Misc. Documents | Unknown | ZOOK, DOUGLAS A | | | $76,950.00 | 83851 | 337843 |
Payout Agreement
| No payout information available.. |