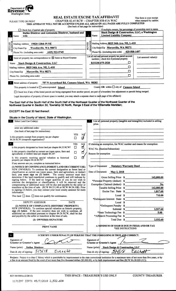
Property
Account |
| Property ID: | 356634 | Abbreviated Legal Description: | ROCKAWAY BCH LOT 1 |
| Geographic ID: | S8025-00-00001-0 | Agent Code: | |
| Type: | Real | | |
| Tax Area: | 510 - APPRAISER-Stan/Cam Schl Dist, improved & 1 acre or less | Land Use Code | 11 |
| Open Space: | N | DFL | N |
| Historic Property: | N | Remodel Property: | N |
| Multi-Family Redevelopment: | N | | |
| Township: | | Section: | |
| Range: | |
Location |
| Address: | 88 S SUNSET DR CAMANO ISLAND, WA 98282 | Mapsco: | |
| Neighborhood: | Cycle 5 | Map ID: | 458 |
| Neighborhood CD: | 5 |
Owner |
| Name: | STERLING, AARON LEE | Owner ID: | 315955 |
| Mailing Address: | TRINA STERLING 88 S SUNSET DR CAMANO ISLAND, WA 98282 | % Ownership: | 100.0000000000% |
| | | Exemptions: | |
Taxes and Assessment Details
Values
| (+) Improvement Homesite Value: | + | $0 | |
| (+) Improvement Non-Homesite Value: | + | $485,751 | |
| (+) Land Homesite Value: | + | $0 | |
| (+) Land Non-Homesite Value: | + | $220,000 | |
| (+) Curr Use (HS): | + | $0 | $0 |
| (+) Curr Use (NHS): | + | $0 | $0 |
| | | -------------------------- | |
| (=) Market Value: | = | $705,751 | |
| (–) Productivity Loss: | – | $0 | |
| | | -------------------------- | |
| (=) Subtotal: | = | $705,751 | |
| (+) Senior Appraised Value: | + | $0 | |
| (+) Non-Senior Appraised Value: | + | $705,751 | |
| | | -------------------------- | |
| (=) Total Appraised Value: | = | $705,751 | |
| (–) Senior Exemption Loss: | – | $0 | |
| (–) Exemption Loss: | – | $0 | |
| | | -------------------------- | |
| (=) Taxable Value: | = | $705,751 | |
Taxing Jurisdiction
| Owner: | STERLING, AARON LEE | | |
| % Ownership: | 100.0000000000% | | |
| Total Value: | $705,751 | | |
| Tax Area: | 510 - APPRAISER-Stan/Cam Schl Dist, improved & 1 acre or less |
| CF | Conservation Futures | 0.0316035091 | $705,751 | $705,751 | $22.30 | | |
| EMS1 | Fire & Rescue Dist #1 Camano GEN (EMS) | 0.3677864386 | $705,751 | $705,751 | $259.57 | | |
| FIRE1 | Fire & Rescue Dist #1 Camano GEN | 1.2502910536 | $705,751 | $705,751 | $882.39 | | |
| FIRE1BOND | Fire & Rescue Dist #1 Camano BOND | 0.1570001679 | $705,751 | $705,751 | $110.80 | | |
| CE | County Current Expense | 0.3708482477 | $705,751 | $705,751 | $261.73 | | |
| CR | County Roads | 0.4584763726 | $705,751 | $705,751 | $323.57 | | |
| LCIB | Library Sno-Isle BOND (Camano Island) | 0.0396325772 | $705,751 | $705,751 | $27.97 | | |
| LIB | Library Sno-Isle GEN | 0.3153421757 | $705,751 | $705,751 | $222.55 | | |
| SCH205_401 | School 205-401 Enrichment | 1.2698420524 | $705,751 | $705,751 | $896.19 | | |
| SCH205BOND | School 205-401 BOND | 0.9396497583 | $705,751 | $705,751 | $663.16 | | |
| ST | State School | 1.3035497053 | $705,751 | $705,751 | $919.98 | | |
| ST2 | State School Part 2 | 0.8169543533 | $705,751 | $705,751 | $576.57 | | |
| | Total Tax Rate: | 7.3209764117 | | | | | |
| | | | | Taxes w/Current Exemptions: | $5,166.78 | | |
| | | | | Taxes w/o Exemptions: | $5,166.78 | | |
Improvement / Building
| Improvement #1: | RESIDENTIAL | State Code: | Y | 2296.2 sqft | Value: | $485,751 |
| Bathrooms: | 2.5 | Bedrooms: | 2 | | Ceiling: | DRYWALL PAINTED | Cooling: | HEAT PUMP/CONV/V | | Exterior Wall/Cover: | CEMENT FIBER | Floor Covering: | HARDWOOD/CARP 60-40 | | Floor Structure: | WOOD W/SUBFLOOR | Foundation: | CONCRETE | | Interior Finish: | DRYWALL PAINT | Plumbing Fixture Cnt: | 14 | | Roof Slope: | 6" IN 12" | Roof Structure/Cover: | CJ ASPHALT |
|
| | Type | Description | Class CD | Sub Class CD | Year Built | Area |
| | BAS | BASE/MAIN FLOOR | 4 | 0 | 2019 | 977.2 |
| | UPS | UPPER STORY | 4 | 0 | 2019 | 1319.0 |
| | AGR | ATTACHED GARAGE | 4 | 0 | 2019 | 524.5 |
| | OP4 | OPEN PORCH W/CEILING-ROOF | 4 | 0 | 2019 | 160.0 |
Sketch
Property Image
Land
| 1 | 14 | SQ (08001-12000) | 0.0000 | 0.00 | 0.00 | 0.00 | 1.00 | $220,000 | $0 |
Roll Value History
| 2026 | N/A | N/A | N/A | N/A | N/A |
| 2025 | $485,751 | $220,000 | $0 | $705,751 | $705,751 |
| 2024 | $489,669 | $220,000 | $0 | $709,669 | $709,669 |
| 2023 | $493,587 | $240,000 | $0 | $733,587 | $733,587 |
| 2022 | $450,501 | $200,000 | $0 | $650,501 | $650,501 |
| 2021 | $395,847 | $120,000 | $0 | $515,847 | $515,847 |
| 2020 | $387,957 | $140,000 | $0 | $527,957 | $527,957 |
| 2019 | $289,440 | $170,000 | $0 | $459,440 | $459,440 |
| 2018 | $0 | $70,000 | $0 | $70,000 | $70,000 |
| 2017 | $0 | $5,000 | $0 | $5,000 | $5,000 |
| 2016 | $0 | $5,000 | $0 | $5,000 | $5,000 |
| 2015 | $0 | $5,000 | $0 | $5,000 | $5,000 |
| 2014 | $0 | $5,000 | $0 | $5,000 | $5,000 |
| 2013 | $0 | $5,000 | $0 | $5,000 | $5,000 |
| 2012 | $0 | $9,400 | $0 | $9,400 | $9,400 |
| 2011 | $0 | $9,400 | $0 | $9,400 | $9,400 |
| 2010 | $0 | $9,400 | $0 | $9,400 | $9,400 |
Deed and Sales History
| 1 | 03/25/2025 | WD | Warranty Deed | BRIER-GOHL, SAM | STERLING, AARON LEE | | | $690,000.00 | 62955 | 4583793 |
| 2 | 06/01/2021 | QCD | Quit Claim Deed | BRIER-GOHL, HAILEY | BRIER-GOHL, SAM | | | $0.00 | 48622 | 4512525 |
| 3 | 06/01/2021 | WD | Warranty Deed | MACKNICKI, JACOB I | BRIER-GOHL, SAM | | | $555,000.00 | 48621 | 4512524 |
| 4 | 07/24/2019 | WD | Warranty Deed | TITAN FRAMING, LLC | MACKNICKI, JACOB I | | | $464,000.00 | 39553 | 4467973 |
| 5 | 03/09/2018 | WD | Warranty Deed | TITAN FRAMING, LLC | TITAN FRAMING, LLC | | | $0.00 | 33362 | 4441194 |
| 6 | 03/09/2018 | WD | Warranty Deed | MADONNA E DOCKEN AND ROGER D DOCKEN REVOCABLE LIVING TRUST | TITAN FRAMING, LLC | | | $195,000.00 | 33287 | 4440766 |
|   | |
| 7 | 03/13/2013 | TRUSTEED | Trustee's Deed | DOCKEN, ROGER | MADONNA E DOCKEN AND ROGER D DOCKEN REVOCABLE LIVING TRUST | | | $0.00 | 10669 | 4335456 |
| 8 | 02/08/2010 | WD | Warranty Deed | NEWHARD TRUST, VIC | DOCKEN, ROGER | | | $13,336.00 | 269 | 4268300 |
| 9 | 07/16/2002 | QCD | Quit Claim Deed | Unknown | NEWHARD TRUST, VIC | | | $0.00 | 22729 | 4025718 |
Payout Agreement
| No payout information available.. |