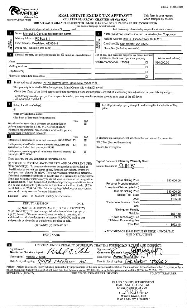
Property
Account |
| Property ID: | 356732 | Abbreviated Legal Description: | ROCKAWAY BCH LOT 11 |
| Geographic ID: | S8025-00-00011-0 | Agent Code: | |
| Type: | Real | | |
| Tax Area: | 510 - APPRAISER-Stan/Cam Schl Dist, improved & 1 acre or less | Land Use Code | 11 |
| Open Space: | N | DFL | N |
| Historic Property: | N | Remodel Property: | N |
| Multi-Family Redevelopment: | N | | |
| Township: | | Section: | |
| Range: | |
Location |
| Address: | 86 PLEASANT LN CAMANO ISLAND, WA 98282 | Mapsco: | |
| Neighborhood: | Cycle 5 | Map ID: | 458 |
| Neighborhood CD: | 5 |
Owner |
| Name: | SINGER TTEE, DAVID ALLEN | Owner ID: | 288003 |
| Mailing Address: | 370 NE CAMANO DR STE 5-40 CAMANO ISLAND, WA 98282 | % Ownership: | 100.0000000000% |
| | | Exemptions: | |
Taxes and Assessment Details
Values
| (+) Improvement Homesite Value: | + | $0 | |
| (+) Improvement Non-Homesite Value: | + | $749,695 | |
| (+) Land Homesite Value: | + | $0 | |
| (+) Land Non-Homesite Value: | + | $575,000 | |
| (+) Curr Use (HS): | + | $0 | $0 |
| (+) Curr Use (NHS): | + | $0 | $0 |
| | | -------------------------- | |
| (=) Market Value: | = | $1,324,695 | |
| (–) Productivity Loss: | – | $0 | |
| | | -------------------------- | |
| (=) Subtotal: | = | $1,324,695 | |
| (+) Senior Appraised Value: | + | $0 | |
| (+) Non-Senior Appraised Value: | + | $1,324,695 | |
| | | -------------------------- | |
| (=) Total Appraised Value: | = | $1,324,695 | |
| (–) Senior Exemption Loss: | – | $0 | |
| (–) Exemption Loss: | – | $0 | |
| | | -------------------------- | |
| (=) Taxable Value: | = | $1,324,695 | |
Taxing Jurisdiction
| Owner: | SINGER TTEE, DAVID ALLEN | | |
| % Ownership: | 100.0000000000% | | |
| Total Value: | $1,324,695 | | |
| Tax Area: | 510 - APPRAISER-Stan/Cam Schl Dist, improved & 1 acre or less |
| CF | Conservation Futures | 0.0316035091 | $1,324,695 | $1,324,695 | $41.87 | | |
| EMS1 | Fire & Rescue Dist #1 Camano GEN (EMS) | 0.3677864386 | $1,324,695 | $1,324,695 | $487.20 | | |
| FIRE1 | Fire & Rescue Dist #1 Camano GEN | 1.2502910536 | $1,324,695 | $1,324,695 | $1,656.25 | | |
| FIRE1BOND | Fire & Rescue Dist #1 Camano BOND | 0.1570001679 | $1,324,695 | $1,324,695 | $207.98 | | |
| CE | County Current Expense | 0.3708482477 | $1,324,695 | $1,324,695 | $491.26 | | |
| CR | County Roads | 0.4584763726 | $1,324,695 | $1,324,695 | $607.34 | | |
| LCIB | Library Sno-Isle BOND (Camano Island) | 0.0396325772 | $1,324,695 | $1,324,695 | $52.50 | | |
| LIB | Library Sno-Isle GEN | 0.3153421757 | $1,324,695 | $1,324,695 | $417.73 | | |
| SCH205_401 | School 205-401 Enrichment | 1.2698420524 | $1,324,695 | $1,324,695 | $1,682.15 | | |
| SCH205BOND | School 205-401 BOND | 0.9396497583 | $1,324,695 | $1,324,695 | $1,244.75 | | |
| ST | State School | 1.3035497053 | $1,324,695 | $1,324,695 | $1,726.81 | | |
| ST2 | State School Part 2 | 0.8169543533 | $1,324,695 | $1,324,695 | $1,082.22 | | |
| | Total Tax Rate: | 7.3209764117 | | | | | |
| | | | | Taxes w/Current Exemptions: | $9,698.06 | | |
| | | | | Taxes w/o Exemptions: | $9,698.06 | | |
Improvement / Building
| Improvement #1: | RESIDENTIAL | State Code: | Y | 2410.8 sqft | Value: | $749,695 |
| Bathrooms: | 2.5 | Bedrooms: | 3 | | Ceiling: | TONGUE & GROOVE | Cooling: | HEAT PUMP/CONV/V | | Exterior Wall/Cover: | CEMENT FIBER | Floor Covering: | SLATE | | Floor Structure: | SLAB ON GRADE | Foundation: | SLAB/CONCRETE | | Interior Finish: | DRYWALL PAINT | Plumbing Fixture Cnt: | 13 | | Roof Slope: | 5" IN 12" | Roof Structure/Cover: | BEAM ASPHALT |
|
| | Type | Description | Class CD | Sub Class CD | Year Built | Area |
| | BAS | BASE/MAIN FLOOR | 5 | 0 | 2018 | 2410.8 |
| | DGR | DETACHED GARAGE | 5 | 0 | 2018 | 816.0 |
| | OWP | OPEN WOOD PORCH W/STEPS | 5 | 0 | 2018 | 380.1 |
Sketch
Property Image
Land
| 1 | HB | HIGH BLUFF | 0.0000 | 0.00 | 66.00 | 0.00 | 1.00 | $575,000 | $0 |
Roll Value History
| 2026 | N/A | N/A | N/A | N/A | N/A |
| 2025 | $749,695 | $575,000 | $0 | $1,324,695 | $1,324,695 |
| 2024 | $755,791 | $575,000 | $0 | $1,330,791 | $1,330,791 |
| 2023 | $761,886 | $575,000 | $0 | $1,336,886 | $1,336,886 |
| 2022 | $695,402 | $500,000 | $0 | $1,195,402 | $1,195,402 |
| 2021 | $489,376 | $300,000 | $0 | $789,376 | $789,376 |
| 2020 | $476,553 | $300,000 | $0 | $776,553 | $776,553 |
| 2019 | $365,805 | $300,000 | $0 | $665,805 | $665,805 |
| 2018 | $331,713 | $150,000 | $0 | $481,713 | $481,713 |
| 2017 | $0 | $150,000 | $0 | $150,000 | $150,000 |
| 2016 | $0 | $150,000 | $0 | $150,000 | $150,000 |
| 2015 | $1,314 | $150,000 | $0 | $151,314 | $151,314 |
| 2014 | $1,314 | $150,000 | $0 | $151,314 | $151,314 |
| 2013 | $1,314 | $109,248 | $0 | $110,562 | $110,562 |
| 2012 | $1,314 | $109,248 | $0 | $110,562 | $110,562 |
| 2011 | $1,314 | $136,560 | $0 | $137,874 | $137,874 |
| 2010 | $2,154 | $166,539 | $0 | $168,693 | $168,693 |
| 2009 | $2,154 | $179,044 | $0 | $181,198 | $181,198 |
| 2008 | $2,154 | $126,523 | $0 | $128,677 | $128,677 |
| 2007 | $2,154 | $143,946 | $0 | $146,100 | $146,100 |
Deed and Sales History
| 1 | 11/17/2018 | QCD | Quit Claim Deed | SINGER, DAVID ALAN | SINGER TTEE, DAVID ALLEN | | | $0.00 | 36746 | 4455447 |
| 2 | 07/01/2018 | WD | Warranty Deed | SOUTHPAW CREEK HOMES, LLC | SINGER, DAVID ALAN | | | $985,000.00 | 35032 | 4448120 |
| 3 | 05/18/2018 | QCD | Quit Claim Deed | HUBER, CLAYTE | SOUTHPAW CREEK HOMES, LLC | | | $0.00 | 34219 | 4444913 |
| 4 | 08/01/2017 | WD | Warranty Deed | BARLIA, DAVID | HUBER, CLAYTE | | | $225,000.00 | 30481 | 4427516 |
|   | |
| 5 | 12/04/2015 | QCD | Quit Claim Deed | KENDALL, ROBERT L | BARLIA, DAVID | | | $0.00 | 23055 | 4393617 |
Payout Agreement
| No payout information available.. |