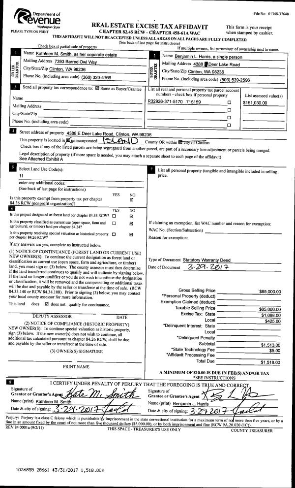
Property
Account |
| Property ID: | 356849 | Abbreviated Legal Description: | ROCKAWAY BCH LOT 22 |
| Geographic ID: | S8025-00-00022-0 | Agent Code: | |
| Type: | Real | | |
| Tax Area: | 510 - APPRAISER-Stan/Cam Schl Dist, improved & 1 acre or less | Land Use Code | 11 |
| Open Space: | N | DFL | N |
| Historic Property: | N | Remodel Property: | N |
| Multi-Family Redevelopment: | N | | |
| Township: | | Section: | |
| Range: | |
Location |
| Address: | 931 COOL RD CAMANO ISLAND, WA 98282 | Mapsco: | |
| Neighborhood: | Cycle 5 | Map ID: | 458 |
| Neighborhood CD: | 5 |
Owner |
| Name: | IRISH, DANIEL W | Owner ID: | 279745 |
| Mailing Address: | REBECCA A IRISH 315 BAKER WAY CAMANO ISLAND, WA 98282 | % Ownership: | 100.0000000000% |
| | | Exemptions: | |
Taxes and Assessment Details
Values
| (+) Improvement Homesite Value: | + | $0 | |
| (+) Improvement Non-Homesite Value: | + | $40,200 | |
| (+) Land Homesite Value: | + | $0 | |
| (+) Land Non-Homesite Value: | + | $12,000 | |
| (+) Curr Use (HS): | + | $0 | $0 |
| (+) Curr Use (NHS): | + | $0 | $0 |
| | | -------------------------- | |
| (=) Market Value: | = | $52,200 | |
| (–) Productivity Loss: | – | $0 | |
| | | -------------------------- | |
| (=) Subtotal: | = | $52,200 | |
| (+) Senior Appraised Value: | + | $0 | |
| (+) Non-Senior Appraised Value: | + | $52,200 | |
| | | -------------------------- | |
| (=) Total Appraised Value: | = | $52,200 | |
| (–) Senior Exemption Loss: | – | $0 | |
| (–) Exemption Loss: | – | $0 | |
| | | -------------------------- | |
| (=) Taxable Value: | = | $52,200 | |
Taxing Jurisdiction
| Owner: | IRISH, DANIEL W | | |
| % Ownership: | 100.0000000000% | | |
| Total Value: | $52,200 | | |
| Tax Area: | 510 - APPRAISER-Stan/Cam Schl Dist, improved & 1 acre or less |
| CF | Conservation Futures | 0.0316035091 | $52,200 | $52,200 | $1.65 | | |
| EMS1 | Fire & Rescue Dist #1 Camano GEN (EMS) | 0.3677864386 | $52,200 | $52,200 | $19.20 | | |
| FIRE1 | Fire & Rescue Dist #1 Camano GEN | 1.2502910536 | $52,200 | $52,200 | $65.27 | | |
| FIRE1BOND | Fire & Rescue Dist #1 Camano BOND | 0.1570001679 | $52,200 | $52,200 | $8.20 | | |
| CE | County Current Expense | 0.3708482477 | $52,200 | $52,200 | $19.36 | | |
| CR | County Roads | 0.4584763726 | $52,200 | $52,200 | $23.93 | | |
| LCIB | Library Sno-Isle BOND (Camano Island) | 0.0396325772 | $52,200 | $52,200 | $2.07 | | |
| LIB | Library Sno-Isle GEN | 0.3153421757 | $52,200 | $52,200 | $16.46 | | |
| SCH205_401 | School 205-401 Enrichment | 1.2698420524 | $52,200 | $52,200 | $66.29 | | |
| SCH205BOND | School 205-401 BOND | 0.9396497583 | $52,200 | $52,200 | $49.05 | | |
| ST | State School | 1.3035497053 | $52,200 | $52,200 | $68.05 | | |
| ST2 | State School Part 2 | 0.8169543533 | $52,200 | $52,200 | $42.65 | | |
| | Total Tax Rate: | 7.3209764117 | | | | | |
| | | | | Taxes w/Current Exemptions: | $382.18 | | |
| | | | | Taxes w/o Exemptions: | $382.18 | | |
Improvement / Building
| Improvement #1: | RESIDENTIAL | State Code: | Y | 0.0 sqft | Value: | $40,200 |
| | Type | Description | Class CD | Sub Class CD | Year Built | Area |
| | DGR | DETACHED GARAGE | 1 | 0 | 1900 | 1200.0 |
| | CPD | OPEN CARPORT DIRT FLOOR | 1 | 0 | 1900 | 420.0 |
Sketch
Property Image
Land
| 1 | 14 | SQ (08001-12000) | 0.0000 | 0.00 | 0.00 | 0.00 | 1.00 | $12,000 | $0 |
Roll Value History
| 2026 | N/A | N/A | N/A | N/A | N/A |
| 2025 | $40,200 | $12,000 | $0 | $52,200 | $52,200 |
| 2024 | $40,200 | $9,000 | $0 | $49,200 | $49,200 |
| 2023 | $40,200 | $9,000 | $0 | $49,200 | $49,200 |
| 2022 | $40,200 | $9,000 | $0 | $49,200 | $49,200 |
| 2021 | $30,000 | $7,000 | $0 | $37,000 | $37,000 |
| 2020 | $30,000 | $7,000 | $0 | $37,000 | $37,000 |
| 2019 | $30,000 | $7,000 | $0 | $37,000 | $37,000 |
| 2018 | $30,000 | $7,000 | $0 | $37,000 | $37,000 |
| 2017 | $30,000 | $5,000 | $0 | $35,000 | $35,000 |
| 2016 | $30,000 | $5,000 | $0 | $35,000 | $35,000 |
| 2015 | $43,836 | $5,000 | $0 | $48,836 | $48,836 |
| 2014 | $43,836 | $5,000 | $0 | $48,836 | $48,836 |
| 2013 | $43,836 | $5,000 | $0 | $48,836 | $48,836 |
| 2012 | $43,836 | $8,320 | $0 | $52,156 | $52,156 |
| 2011 | $43,836 | $10,400 | $0 | $54,236 | $54,236 |
| 2010 | $44,032 | $10,400 | $0 | $54,432 | $54,432 |
| 2009 | $45,114 | $18,000 | $0 | $63,114 | $63,114 |
| 2008 | $46,196 | $25,740 | $0 | $71,936 | $71,936 |
| 2007 | $47,278 | $18,720 | $0 | $65,998 | $65,998 |
Deed and Sales History
| 1 | 05/03/2017 | WD | Warranty Deed | DEDONKER, MIKE | IRISH, DANIEL W | | | $95,000.00 | 29158 | 4421904 |
| 2 | 04/12/2017 | WD | Warranty Deed | GARTNER, JAMES A | DEDONKER, MIKE | | | $125,000.00 | 28873 | 4420724 |
|   | |
| 3 | 08/15/2011 | WD | Warranty Deed | THOMAS, GARY E | GARTNER, JAMES A | | | $65,000.00 | 5318 | 4299908 |
| 4 | 12/01/1991 | TTAXD | Treasurer's Tax Deed | SHULTZ, NICK | THOMAS, GARY E | | | $0.00 | 64611 | 91018938 |
| 5 | 02/01/1981 | CD | DNU - Correction Deed | SHULTZ, NICK | SHULTZ, NICK | | | $0.00 | 10808 | 380794 |
| 6 | 01/01/1900 | OTHER | Other - Misc. Documents | Unknown | SHULTZ, NICK | | | $0.00 | 0 | 0 |
Payout Agreement
| No payout information available.. |