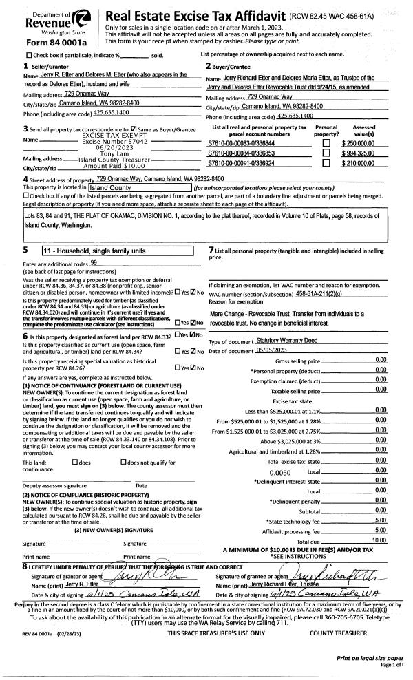
Property
Account |
| Property ID: | 356956 | Abbreviated Legal Description: | ROCKY PT HTS LOT 6 |
| Geographic ID: | S8030-00-00006-0 | Agent Code: | |
| Type: | Real | | |
| Tax Area: | 510 - APPRAISER-Stan/Cam Schl Dist, improved & 1 acre or less | Land Use Code | 11 |
| Open Space: | N | DFL | N |
| Historic Property: | N | Remodel Property: | N |
| Multi-Family Redevelopment: | N | | |
| Township: | | Section: | |
| Range: | |
Location |
| Address: | 970 CAMROSE CT CAMANO ISLAND, WA 98282 | Mapsco: | |
| Neighborhood: | North Camano | Map ID: | 555 |
| Neighborhood CD: | 06-C |
Owner |
| Name: | LUDWIG, GARY W | Owner ID: | 17060 |
| Mailing Address: | SUSAN A GATES-LUDWIG 970 CAMROSE CT CAMANO ISLAND, WA 98282-8629 | % Ownership: | 100.0000000000% |
| | | Exemptions: | |
Taxes and Assessment Details
Values
| (+) Improvement Homesite Value: | + | $0 | |
| (+) Improvement Non-Homesite Value: | + | $309,600 | |
| (+) Land Homesite Value: | + | $0 | |
| (+) Land Non-Homesite Value: | + | $275,000 | |
| (+) Curr Use (HS): | + | $0 | $0 |
| (+) Curr Use (NHS): | + | $0 | $0 |
| | | -------------------------- | |
| (=) Market Value: | = | $584,600 | |
| (–) Productivity Loss: | – | $0 | |
| | | -------------------------- | |
| (=) Subtotal: | = | $584,600 | |
| (+) Senior Appraised Value: | + | $0 | |
| (+) Non-Senior Appraised Value: | + | $584,600 | |
| | | -------------------------- | |
| (=) Total Appraised Value: | = | $584,600 | |
| (–) Senior Exemption Loss: | – | $0 | |
| (–) Exemption Loss: | – | $0 | |
| | | -------------------------- | |
| (=) Taxable Value: | = | $584,600 | |
Taxing Jurisdiction
| Owner: | LUDWIG, GARY W | | |
| % Ownership: | 100.0000000000% | | |
| Total Value: | $584,600 | | |
| Tax Area: | 510 - APPRAISER-Stan/Cam Schl Dist, improved & 1 acre or less |
| CF | Conservation Futures | 0.0316035091 | $584,600 | $584,600 | $18.48 | | |
| EMS1 | Fire & Rescue Dist #1 Camano GEN (EMS) | 0.3677864386 | $584,600 | $584,600 | $215.01 | | |
| FIRE1 | Fire & Rescue Dist #1 Camano GEN | 1.2502910536 | $584,600 | $584,600 | $730.92 | | |
| FIRE1BOND | Fire & Rescue Dist #1 Camano BOND | 0.1570001679 | $584,600 | $584,600 | $91.78 | | |
| CE | County Current Expense | 0.3708482477 | $584,600 | $584,600 | $216.80 | | |
| CR | County Roads | 0.4584763726 | $584,600 | $584,600 | $268.03 | | |
| LCIB | Library Sno-Isle BOND (Camano Island) | 0.0396325772 | $584,600 | $584,600 | $23.17 | | |
| LIB | Library Sno-Isle GEN | 0.3153421757 | $584,600 | $584,600 | $184.35 | | |
| SCH205_401 | School 205-401 Enrichment | 1.2698420524 | $584,600 | $584,600 | $742.35 | | |
| SCH205BOND | School 205-401 BOND | 0.9396497583 | $584,600 | $584,600 | $549.32 | | |
| ST | State School | 1.3035497053 | $584,600 | $584,600 | $762.06 | | |
| ST2 | State School Part 2 | 0.8169543533 | $584,600 | $584,600 | $477.59 | | |
| | Total Tax Rate: | 7.3209764117 | | | | | |
| | | | | Taxes w/Current Exemptions: | $4,279.86 | | |
| | | | | Taxes w/o Exemptions: | $4,279.86 | | |
Improvement / Building
| Improvement #1: | RESIDENTIAL | State Code: | Y | 1666.5 sqft | Value: | $309,600 |
| Bathrooms: | 2 | Bedrooms: | 3 | | Ceiling: | DRYWALL PAINTED | Exterior Wall/Cover: | CEMENT FIBER | | Floor Covering: | HARDWOOD/CARP 20-80 | Floor Structure: | WOOD W/SUBFLOOR | | Foundation: | CONCRETE | Heating: | FHA GAS | | Interior Finish: | DRYWALL PAINT | Plumbing Fixture Cnt: | 10 | | Roof Slope: | 6" IN 12" | Roof Structure/Cover: | CJ ASPHALT |
|
| | Type | Description | Class CD | Sub Class CD | Year Built | Area |
| | BAS | BASE/MAIN FLOOR | 3 | 0 | 2001 | 1666.5 |
| | OP4 | OPEN PORCH W/CEILING-ROOF | 3 | 0 | 2001 | 15.0 |
| | AGR | ATTACHED GARAGE | 3 | 0 | 2001 | 440.0 |
| | OWP | OPEN WOOD PORCH W/STEPS | 3 | 0 | 2001 | 160.0 |
Sketch
Property Image
Land
| 1 | 15 | SQ (12001-21780) | 0.0000 | 0.00 | 0.00 | 0.00 | 1.00 | $275,000 | $0 |
Roll Value History
| 2026 | N/A | N/A | N/A | N/A | N/A |
| 2025 | $309,600 | $275,000 | $0 | $584,600 | $584,600 |
| 2024 | $313,363 | $290,000 | $0 | $603,363 | $603,363 |
| 2023 | $317,127 | $250,000 | $0 | $567,127 | $567,127 |
| 2022 | $280,350 | $210,000 | $0 | $490,350 | $490,350 |
| 2021 | $246,747 | $140,000 | $0 | $386,747 | $386,747 |
| 2020 | $240,405 | $130,000 | $0 | $370,405 | $370,405 |
| 2019 | $175,952 | $170,000 | $0 | $345,952 | $345,952 |
| 2018 | $176,468 | $150,000 | $0 | $326,468 | $326,468 |
| 2017 | $177,499 | $120,000 | $0 | $297,499 | $297,499 |
| 2016 | $172,707 | $100,000 | $0 | $272,707 | $272,707 |
| 2015 | $174,764 | $100,000 | $0 | $274,764 | $274,764 |
| 2014 | $176,820 | $85,000 | $0 | $261,820 | $261,820 |
| 2013 | $178,875 | $85,000 | $0 | $263,875 | $263,875 |
| 2012 | $180,932 | $80,000 | $0 | $260,932 | $260,932 |
| 2011 | $182,989 | $100,000 | $0 | $282,989 | $282,989 |
| 2010 | $192,242 | $93,400 | $0 | $285,642 | $285,642 |
| 2009 | $200,330 | $140,000 | $0 | $340,330 | $340,330 |
| 2008 | $200,480 | $125,000 | $0 | $325,480 | $325,480 |
| 2007 | $202,730 | $125,000 | $0 | $327,730 | $327,730 |
Deed and Sales History
| 1 | 03/06/2002 | WD | Warranty Deed | GRAND MARQUEE LLC, DBA, | LUDWIG, GARY W | | | $197,500.00 | 20947 | 4014044 |
| 2 | 05/24/2000 | WD | Warranty Deed | MOKHTARI, ESFANDIAR A | GRAND MARQUEE LLC, DBA, | | | $41,000.00 | 2405 | 20011444 |
| 3 | 01/01/1990 | WD | Warranty Deed | HERRGESELL, NORBERT P | MOKHTARI, ESFANDIAR A | | | $12,750.00 | 351 | 90001068 |
| 4 | 01/01/1900 | OTHER | Other - Misc. Documents | Unknown | HERRGESELL, NORBERT P | | | $0.00 | 0 | 0 |
Payout Agreement
| No payout information available.. |