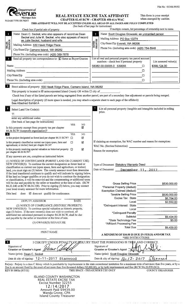
Property
Account |
| Property ID: | 357045 | Abbreviated Legal Description: | ROCKY PT HTS LOT 15 |
| Geographic ID: | S8030-00-00015-0 | Agent Code: | |
| Type: | Real | | |
| Tax Area: | 510 - APPRAISER-Stan/Cam Schl Dist, improved & 1 acre or less | Land Use Code | 11 |
| Open Space: | N | DFL | N |
| Historic Property: | N | Remodel Property: | N |
| Multi-Family Redevelopment: | N | | |
| Township: | | Section: | |
| Range: | |
Location |
| Address: | 664 ISLAND VIEW DR CAMANO IS, WA 98282 | Mapsco: | |
| Neighborhood: | North Camano | Map ID: | 555 |
| Neighborhood CD: | 06-C |
Owner |
| Name: | WIEDMANN, BRIAN | Owner ID: | 282327 |
| Mailing Address: | 664 ISLAND VIEW DR CAMANO ISLAND, WA 98282 | % Ownership: | 100.0000000000% |
| | | Exemptions: | |
Taxes and Assessment Details
Values
| (+) Improvement Homesite Value: | + | $0 | |
| (+) Improvement Non-Homesite Value: | + | $421,087 | |
| (+) Land Homesite Value: | + | $0 | |
| (+) Land Non-Homesite Value: | + | $290,000 | |
| (+) Curr Use (HS): | + | $0 | $0 |
| (+) Curr Use (NHS): | + | $0 | $0 |
| | | -------------------------- | |
| (=) Market Value: | = | $711,087 | |
| (–) Productivity Loss: | – | $0 | |
| | | -------------------------- | |
| (=) Subtotal: | = | $711,087 | |
| (+) Senior Appraised Value: | + | $0 | |
| (+) Non-Senior Appraised Value: | + | $711,087 | |
| | | -------------------------- | |
| (=) Total Appraised Value: | = | $711,087 | |
| (–) Senior Exemption Loss: | – | $0 | |
| (–) Exemption Loss: | – | $0 | |
| | | -------------------------- | |
| (=) Taxable Value: | = | $711,087 | |
Taxing Jurisdiction
| Owner: | WIEDMANN, BRIAN | | |
| % Ownership: | 100.0000000000% | | |
| Total Value: | $711,087 | | |
| Tax Area: | 510 - APPRAISER-Stan/Cam Schl Dist, improved & 1 acre or less |
| CF | Conservation Futures | 0.0316035091 | $711,087 | $711,087 | $22.47 | | |
| EMS1 | Fire & Rescue Dist #1 Camano GEN (EMS) | 0.3677864386 | $711,087 | $711,087 | $261.53 | | |
| FIRE1 | Fire & Rescue Dist #1 Camano GEN | 1.2502910536 | $711,087 | $711,087 | $889.07 | | |
| FIRE1BOND | Fire & Rescue Dist #1 Camano BOND | 0.1570001679 | $711,087 | $711,087 | $111.64 | | |
| CE | County Current Expense | 0.3708482477 | $711,087 | $711,087 | $263.71 | | |
| CR | County Roads | 0.4584763726 | $711,087 | $711,087 | $326.02 | | |
| LCIB | Library Sno-Isle BOND (Camano Island) | 0.0396325772 | $711,087 | $711,087 | $28.18 | | |
| LIB | Library Sno-Isle GEN | 0.3153421757 | $711,087 | $711,087 | $224.24 | | |
| SCH205_401 | School 205-401 Enrichment | 1.2698420524 | $711,087 | $711,087 | $902.97 | | |
| SCH205BOND | School 205-401 BOND | 0.9396497583 | $711,087 | $711,087 | $668.17 | | |
| ST | State School | 1.3035497053 | $711,087 | $711,087 | $926.94 | | |
| ST2 | State School Part 2 | 0.8169543533 | $711,087 | $711,087 | $580.93 | | |
| | Total Tax Rate: | 7.3209764117 | | | | | |
| | | | | Taxes w/Current Exemptions: | $5,205.87 | | |
| | | | | Taxes w/o Exemptions: | $5,205.87 | | |
Improvement / Building
| Improvement #1: | RESIDENTIAL | State Code: | Y | 2370.0 sqft | Value: | $421,087 |
| Bathrooms: | 2.5 | Bedrooms: | 3 | | Ceiling: | DRYWALL PAINTED | Exterior Wall/Cover: | PLY/HARDBOARD T-111 | | Floor Covering: | VINYL TILE | Floor Structure: | WOOD W/SUBFLOOR | | Foundation: | CONCRETE | Heating: | FHA GAS | | Interior Finish: | DRYWALL PAINT | Plumbing Fixture Cnt: | 12 | | Roof Slope: | 4" IN 12" | Roof Structure/Cover: | CJ ASPHALT |
|
| | Type | Description | Class CD | Sub Class CD | Year Built | Area |
| | BAS | BASE/MAIN FLOOR | 3 | 0 | 2021 | 1551.0 |
| | AGR | ATTACHED GARAGE | 3 | 0 | 2021 | 528.0 |
| | DWN | DOWNSTAIRS LIVING AREA | 3 | 0 | 2021 | 819.0 |
| | OP1 | OPEN PORCH SLAB | 3 | 0 | 2021 | 273.0 |
| | OWC | OPEN WOOD PORCH W/STEPS/ROOF/C | 3 | 0 | 2021 | 312.0 |
Sketch
Property Image
Land
| 1 | 14 | SQ (08001-12000) | 0.0000 | 0.00 | 0.00 | 0.00 | 1.00 | $290,000 | $0 |
Roll Value History
| 2026 | N/A | N/A | N/A | N/A | N/A |
| 2025 | $421,087 | $290,000 | $0 | $711,087 | $711,087 |
| 2024 | $424,428 | $300,000 | $0 | $724,428 | $724,428 |
| 2023 | $428,886 | $310,000 | $0 | $738,886 | $738,886 |
| 2022 | $395,413 | $260,000 | $0 | $655,413 | $655,413 |
| 2021 | $309,138 | $160,000 | $0 | $469,138 | $469,138 |
| 2020 | $0 | $120,000 | $0 | $120,000 | $120,000 |
| 2019 | $0 | $120,000 | $0 | $120,000 | $120,000 |
| 2018 | $0 | $120,000 | $0 | $120,000 | $120,000 |
| 2017 | $0 | $135,000 | $0 | $135,000 | $135,000 |
| 2016 | $0 | $125,000 | $0 | $125,000 | $125,000 |
| 2015 | $0 | $125,000 | $0 | $125,000 | $125,000 |
| 2014 | $0 | $100,000 | $0 | $100,000 | $100,000 |
| 2013 | $0 | $100,000 | $0 | $100,000 | $100,000 |
| 2012 | $0 | $150,000 | $0 | $150,000 | $150,000 |
| 2011 | $0 | $150,000 | $0 | $150,000 | $150,000 |
| 2010 | $0 | $150,000 | $0 | $150,000 | $150,000 |
| 2009 | $0 | $180,000 | $0 | $180,000 | $180,000 |
| 2008 | $0 | $200,000 | $0 | $200,000 | $200,000 |
| 2007 | $0 | $200,000 | $0 | $200,000 | $200,000 |
Deed and Sales History
| 1 | 10/04/2017 | WD | Warranty Deed | TEDROW TRUSTEE OR, JAMES | WIEDMANN, BRIAN | | | $112,000.00 | 31422 | 4431604 |
| 2 | 05/03/2012 | GRANTD | Grant Deed | TEDROW, MARGARET A | TEDROW TRUSTEE OR, JAMES | | | $0.00 | 7823 | 4316334 |
| 3 | 07/01/1995 | QCD | Quit Claim Deed | TEDROW, GEORGE E | TEDROW, MARGARET A | | | $0.00 | 52905 | 95012282 |
| 4 | 11/01/1988 | WD | Warranty Deed | TEDROW, GEORGE E | TEDROW, GEORGE E | | | $0.00 | 84264 | 88015906 |
| 5 | 01/01/1900 | OTHER | Other - Misc. Documents | Unknown | TEDROW, GEORGE E | | | $0.00 | 0 | 0 |
Payout Agreement
| No payout information available.. |