Property
Account |
| Property ID: | 357205 | Abbreviated Legal Description: | ROCKY PT HTS LOTS 32 & 33 EX N20' OF LOT 32 |
| Geographic ID: | S8030-00-00032-0 | Agent Code: | |
| Type: | Real | | |
| Tax Area: | 510 - APPRAISER-Stan/Cam Schl Dist, improved & 1 acre or less | Land Use Code | 11 |
| Open Space: | N | DFL | N |
| Historic Property: | N | Remodel Property: | N |
| Multi-Family Redevelopment: | N | | |
| Township: | | Section: | |
| Range: | |
Location |
| Address: | 910 VICKY PLACE CAMANO ISLAND, WA 98282 | Mapsco: | |
| Neighborhood: | North Camano | Map ID: | 555 |
| Neighborhood CD: | 06-C |
Owner |
| Name: | BOWMAN III, GORDON LEE | Owner ID: | 283961 |
| Mailing Address: | NICOLE C BOWMAN 910 VICKY PLACE CAMANO ISLAND, WA 98282 | % Ownership: | 100.0000000000% |
| | | Exemptions: | |
Taxes and Assessment Details
Values
| (+) Improvement Homesite Value: | + | $0 | |
| (+) Improvement Non-Homesite Value: | + | $448,391 | |
| (+) Land Homesite Value: | + | $0 | |
| (+) Land Non-Homesite Value: | + | $290,000 | |
| (+) Curr Use (HS): | + | $0 | $0 |
| (+) Curr Use (NHS): | + | $0 | $0 |
| | | -------------------------- | |
| (=) Market Value: | = | $738,391 | |
| (–) Productivity Loss: | – | $0 | |
| | | -------------------------- | |
| (=) Subtotal: | = | $738,391 | |
| (+) Senior Appraised Value: | + | $0 | |
| (+) Non-Senior Appraised Value: | + | $738,391 | |
| | | -------------------------- | |
| (=) Total Appraised Value: | = | $738,391 | |
| (–) Senior Exemption Loss: | – | $0 | |
| (–) Exemption Loss: | – | $0 | |
| | | -------------------------- | |
| (=) Taxable Value: | = | $738,391 | |
Taxing Jurisdiction
| Owner: | BOWMAN III, GORDON LEE | | |
| % Ownership: | 100.0000000000% | | |
| Total Value: | $738,391 | | |
| Tax Area: | 510 - APPRAISER-Stan/Cam Schl Dist, improved & 1 acre or less |
| CF | Conservation Futures | 0.0316035091 | $738,391 | $738,391 | $23.34 | | |
| EMS1 | Fire & Rescue Dist #1 Camano GEN (EMS) | 0.3677864386 | $738,391 | $738,391 | $271.57 | | |
| FIRE1 | Fire & Rescue Dist #1 Camano GEN | 1.2502910536 | $738,391 | $738,391 | $923.20 | | |
| FIRE1BOND | Fire & Rescue Dist #1 Camano BOND | 0.1570001679 | $738,391 | $738,391 | $115.93 | | |
| CE | County Current Expense | 0.3708482477 | $738,391 | $738,391 | $273.83 | | |
| CR | County Roads | 0.4584763726 | $738,391 | $738,391 | $338.53 | | |
| LCIB | Library Sno-Isle BOND (Camano Island) | 0.0396325772 | $738,391 | $738,391 | $29.26 | | |
| LIB | Library Sno-Isle GEN | 0.3153421757 | $738,391 | $738,391 | $232.85 | | |
| SCH205_401 | School 205-401 Enrichment | 1.2698420524 | $738,391 | $738,391 | $937.64 | | |
| SCH205BOND | School 205-401 BOND | 0.9396497583 | $738,391 | $738,391 | $693.83 | | |
| ST | State School | 1.3035497053 | $738,391 | $738,391 | $962.53 | | |
| ST2 | State School Part 2 | 0.8169543533 | $738,391 | $738,391 | $603.23 | | |
| | Total Tax Rate: | 7.3209764117 | | | | | |
| | | | | Taxes w/Current Exemptions: | $5,405.74 | | |
| | | | | Taxes w/o Exemptions: | $5,405.74 | | |
Improvement / Building
| Improvement #1: | RESIDENTIAL | State Code: | Y | 2061.1 sqft | Value: | $448,391 |
| Bathrooms: | 2.5 | Bedrooms: | 3 | | Ceiling: | DRYWALL PAINTED | Cooling: | HEAT PUMP/CONV/V | | Exterior Wall/Cover: | WOOD SIDING | Floor Covering: | HARDWOOD/CARP 20-80 | | Floor Structure: | WOOD W/SUBFLOOR | Foundation: | CONCRETE | | Interior Finish: | DRYWALL PAINT | Plumbing Fixture Cnt: | 14 | | Roof Slope: | 6" IN 12" | Roof Structure/Cover: | CJ ASPHALT |
|
| | Type | Description | Class CD | Sub Class CD | Year Built | Area |
| | BAS | BASE/MAIN FLOOR | 4 | 0 | 2003 | 2061.1 |
| | BIG | BUILT IN GARAGE | 4 | 0 | 2003 | 672.0 |
| | OWP | OPEN WOOD PORCH W/STEPS | 4 | 0 | 2003 | 192.0 |
| | OWP | OPEN WOOD PORCH W/STEPS | 4 | 0 | 2003 | 225.9 |
Sketch
Property Image
Land
| 1 | 15 | SQ (12001-21780) | 0.0000 | 0.00 | 0.00 | 0.00 | 1.00 | $290,000 | $0 |
Roll Value History
| 2026 | N/A | N/A | N/A | N/A | N/A |
| 2025 | $448,391 | $290,000 | $0 | $738,391 | $738,391 |
| 2024 | $453,778 | $300,000 | $0 | $753,778 | $753,778 |
| 2023 | $459,164 | $310,000 | $0 | $769,164 | $769,164 |
| 2022 | $410,903 | $260,000 | $0 | $670,903 | $670,903 |
| 2021 | $361,545 | $160,000 | $0 | $521,545 | $521,545 |
| 2020 | $351,715 | $160,000 | $0 | $511,715 | $511,715 |
| 2019 | $258,366 | $210,000 | $0 | $468,366 | $468,366 |
| 2018 | $259,108 | $180,000 | $0 | $439,108 | $439,108 |
| 2017 | $245,008 | $135,000 | $0 | $380,008 | $380,008 |
| 2016 | $241,779 | $100,000 | $0 | $341,779 | $341,779 |
| 2015 | $244,590 | $100,000 | $0 | $344,590 | $344,590 |
| 2014 | $247,401 | $100,000 | $0 | $347,401 | $347,401 |
| 2013 | $250,213 | $100,000 | $0 | $350,213 | $350,213 |
| 2012 | $253,024 | $100,000 | $0 | $353,024 | $353,024 |
| 2011 | $255,834 | $125,000 | $0 | $380,834 | $380,834 |
| 2010 | $288,511 | $124,908 | $0 | $413,419 | $413,419 |
| 2009 | $300,590 | $150,000 | $0 | $450,590 | $450,590 |
| 2008 | $318,210 | $150,000 | $0 | $468,210 | $468,210 |
| 2007 | $318,379 | $150,000 | $0 | $468,379 | $468,379 |
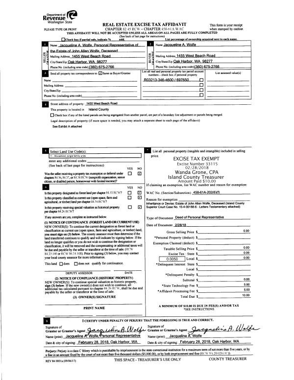
Deed and Sales History
| 1 | 02/01/2018 | WD | Warranty Deed | ZUEKSDORF JTWROS, RANDOLPH EDWARD | BOWMAN III, GORDON LEE | | | $475,000.00 | 33009 | 4439523 |
| 2 | 07/31/2013 | TRUSTEED | Trustee's Deed | ZIELSDORF TRUSTEE, RANDOLPH EDWARD | ZUEKSDORF JTWROS, RANDOLPH EDWARD | | | $0.00 | 12355 | 4348022 |
| 3 | 08/17/2010 | WD | Warranty Deed | ZIELSDORF, RANDOLPH E | ZIELSDORF TRUSTEE, RANDOLPH EDWARD | | | $0.00 | 2627 | 4283183 |
| 4 | 05/23/2003 | WD | Warranty Deed | BALTIC BUILDERS, | ZIELSDORF, RANDOLPH E | | | $279,000.00 | 32373 | 4061680 |
| 5 | 05/22/2002 | WD | Warranty Deed | NIMS, HILDA | BALTIC BUILDERS, | | | $67,000.00 | 22229 | 4022673 |
| 6 | 04/07/1999 | BLA | DNU - Boundary Line Adjustment | NIMS, HILDA | NIMS, HILDA | | | $0.00 | 68224 | 98023505 |
| 7 | 08/01/1990 | OTHER | Other - Misc. Documents | NIMS, HILDA | NIMS, HILDA | | | $0.00 | 63785 | 90014714 |
| 8 | 01/01/1900 | OTHER | Other - Misc. Documents | Unknown | NIMS, HILDA | | | $0.00 | 0 | 0 |
Payout Agreement
| No payout information available.. |