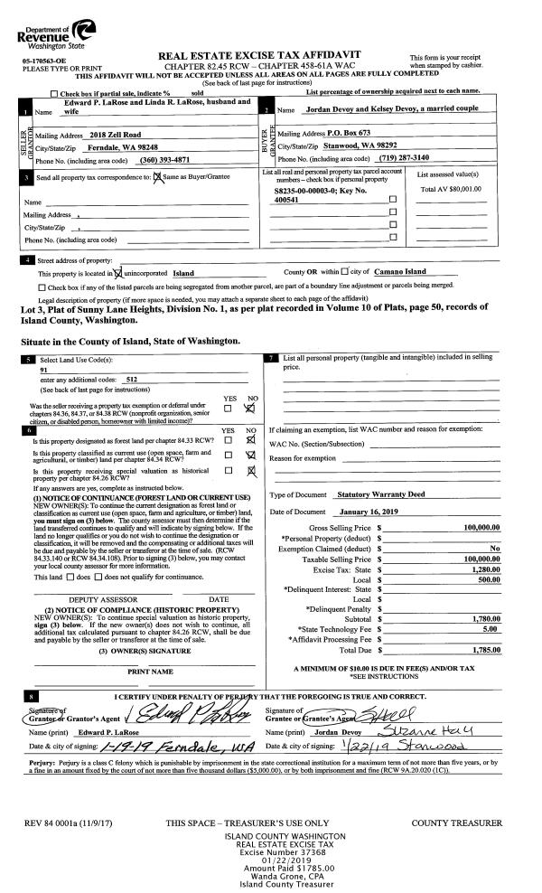
Property
Account |
| Property ID: | 357394 | Abbreviated Legal Description: | ROCKY PT HTS LOT 51 |
| Geographic ID: | S8030-00-00051-0 | Agent Code: | |
| Type: | Real | | |
| Tax Area: | 510 - APPRAISER-Stan/Cam Schl Dist, improved & 1 acre or less | Land Use Code | 11 |
| Open Space: | N | DFL | N |
| Historic Property: | N | Remodel Property: | N |
| Multi-Family Redevelopment: | N | | |
| Township: | | Section: | |
| Range: | |
Location |
| Address: | 939 JAMES WAY CAMANO ISLAND, WA 98282 | Mapsco: | |
| Neighborhood: | North Camano | Map ID: | 554 |
| Neighborhood CD: | 06-C |
Owner |
| Name: | NYBO, JACQUELINE SUE | Owner ID: | 288275 |
| Mailing Address: | 939 JAMES WAY CAMANO ISLAND, WA 98282 | % Ownership: | 100.0000000000% |
| | | Exemptions: | |
Taxes and Assessment Details
Values
| (+) Improvement Homesite Value: | + | $0 | |
| (+) Improvement Non-Homesite Value: | + | $247,513 | |
| (+) Land Homesite Value: | + | $0 | |
| (+) Land Non-Homesite Value: | + | $275,000 | |
| (+) Curr Use (HS): | + | $0 | $0 |
| (+) Curr Use (NHS): | + | $0 | $0 |
| | | -------------------------- | |
| (=) Market Value: | = | $522,513 | |
| (–) Productivity Loss: | – | $0 | |
| | | -------------------------- | |
| (=) Subtotal: | = | $522,513 | |
| (+) Senior Appraised Value: | + | $0 | |
| (+) Non-Senior Appraised Value: | + | $522,513 | |
| | | -------------------------- | |
| (=) Total Appraised Value: | = | $522,513 | |
| (–) Senior Exemption Loss: | – | $0 | |
| (–) Exemption Loss: | – | $0 | |
| | | -------------------------- | |
| (=) Taxable Value: | = | $522,513 | |
Taxing Jurisdiction
| Owner: | NYBO, JACQUELINE SUE | | |
| % Ownership: | 100.0000000000% | | |
| Total Value: | $522,513 | | |
| Tax Area: | 510 - APPRAISER-Stan/Cam Schl Dist, improved & 1 acre or less |
| CF | Conservation Futures | 0.0316035091 | $522,513 | $522,513 | $16.51 | | |
| EMS1 | Fire & Rescue Dist #1 Camano GEN (EMS) | 0.3677864386 | $522,513 | $522,513 | $192.17 | | |
| FIRE1 | Fire & Rescue Dist #1 Camano GEN | 1.2502910536 | $522,513 | $522,513 | $653.29 | | |
| FIRE1BOND | Fire & Rescue Dist #1 Camano BOND | 0.1570001679 | $522,513 | $522,513 | $82.03 | | |
| CE | County Current Expense | 0.3708482477 | $522,513 | $522,513 | $193.77 | | |
| CR | County Roads | 0.4584763726 | $522,513 | $522,513 | $239.56 | | |
| LCIB | Library Sno-Isle BOND (Camano Island) | 0.0396325772 | $522,513 | $522,513 | $20.71 | | |
| LIB | Library Sno-Isle GEN | 0.3153421757 | $522,513 | $522,513 | $164.77 | | |
| SCH205_401 | School 205-401 Enrichment | 1.2698420524 | $522,513 | $522,513 | $663.51 | | |
| SCH205BOND | School 205-401 BOND | 0.9396497583 | $522,513 | $522,513 | $490.98 | | |
| ST | State School | 1.3035497053 | $522,513 | $522,513 | $681.12 | | |
| ST2 | State School Part 2 | 0.8169543533 | $522,513 | $522,513 | $426.87 | | |
| | Total Tax Rate: | 7.3209764117 | | | | | |
| | | | | Taxes w/Current Exemptions: | $3,825.29 | | |
| | | | | Taxes w/o Exemptions: | $3,825.29 | | |
Improvement / Building
| Improvement #1: | RESIDENTIAL | State Code: | Y | 1289.7 sqft | Value: | $247,513 |
| Bathrooms: | 2 | Bedrooms: | 2 | | Ceiling: | DRYWALL PAINTED | Exterior Wall/Cover: | WOOD SIDING | | Floor Covering: | CARPET/VINYL 80-20 | Floor Structure: | WOOD W/SUBFLOOR | | Foundation: | CONCRETE | Heating: | WALL HEAT ELECTRIC | | Interior Finish: | DRYWALL PAINT | Plumbing Fixture Cnt: | 10 | | Roof Slope: | 6" IN 12" | Roof Structure/Cover: | CJ ASPHALT |
|
| | Type | Description | Class CD | Sub Class CD | Year Built | Area |
| | BAS | BASE/MAIN FLOOR | 3 | 0 | 1990 | 1289.7 |
| | AGR | ATTACHED GARAGE | 3 | 0 | 1990 | 504.0 |
| | OP4 | OPEN PORCH W/CEILING-ROOF | 3 | 0 | 1990 | 28.0 |
| | OWP | OPEN WOOD PORCH W/STEPS | 3 | 0 | 1990 | 285.4 |
Sketch
Property Image
Land
| 1 | 14 | SQ (08001-12000) | 0.0000 | 0.00 | 0.00 | 0.00 | 1.00 | $275,000 | $0 |
Roll Value History
| 2026 | N/A | N/A | N/A | N/A | N/A |
| 2025 | $247,513 | $275,000 | $0 | $522,513 | $522,513 |
| 2024 | $250,559 | $290,000 | $0 | $540,559 | $540,559 |
| 2023 | $253,605 | $250,000 | $0 | $503,605 | $503,605 |
| 2022 | $221,364 | $210,000 | $0 | $431,364 | $431,364 |
| 2021 | $194,883 | $140,000 | $0 | $334,883 | $334,883 |
| 2020 | $189,529 | $130,000 | $0 | $319,529 | $319,529 |
| 2019 | $134,598 | $170,000 | $0 | $304,598 | $304,598 |
| 2018 | $135,002 | $150,000 | $0 | $285,002 | $285,002 |
| 2017 | $135,266 | $120,000 | $0 | $255,266 | $255,266 |
| 2016 | $133,640 | $85,000 | $0 | $218,640 | $218,640 |
| 2015 | $135,249 | $85,000 | $0 | $220,249 | $220,249 |
| 2014 | $136,860 | $85,000 | $0 | $221,860 | $221,860 |
| 2013 | $138,469 | $85,000 | $0 | $223,469 | $223,469 |
| 2012 | $140,080 | $80,000 | $0 | $220,080 | $220,080 |
| 2011 | $141,692 | $100,000 | $0 | $241,692 | $241,692 |
| 2010 | $143,643 | $100,000 | $0 | $243,643 | $243,643 |
| 2009 | $149,858 | $130,000 | $0 | $279,858 | $279,858 |
| 2008 | $151,713 | $125,000 | $0 | $276,713 | $276,713 |
| 2007 | $153,592 | $125,000 | $0 | $278,592 | $278,592 |
Deed and Sales History
| 1 | 12/12/2018 | WD | Warranty Deed | MEDINA, ALEXANDRO M | NYBO, JACQUELINE SUE | | | $296,000.00 | 37031 | 4456783 |
| 2 | 06/14/2005 | WD | Warranty Deed | KROEZE, RANDELL E | MEDINA, ALEXANDRO M | | | $230,129.00 | 52774 | 4137654 |
| 3 | 12/01/1989 | WD | Warranty Deed | WILSON, CARL V | KROEZE, RANDELL E | | | $16,500.00 | 96041 | 89019483 |
| 4 | 12/01/1978 | OTHER | Other - Misc. Documents | Unknown | WILSON, CARL V | | | $7,400.00 | 85970 | 344210 |
Payout Agreement
| No payout information available.. |