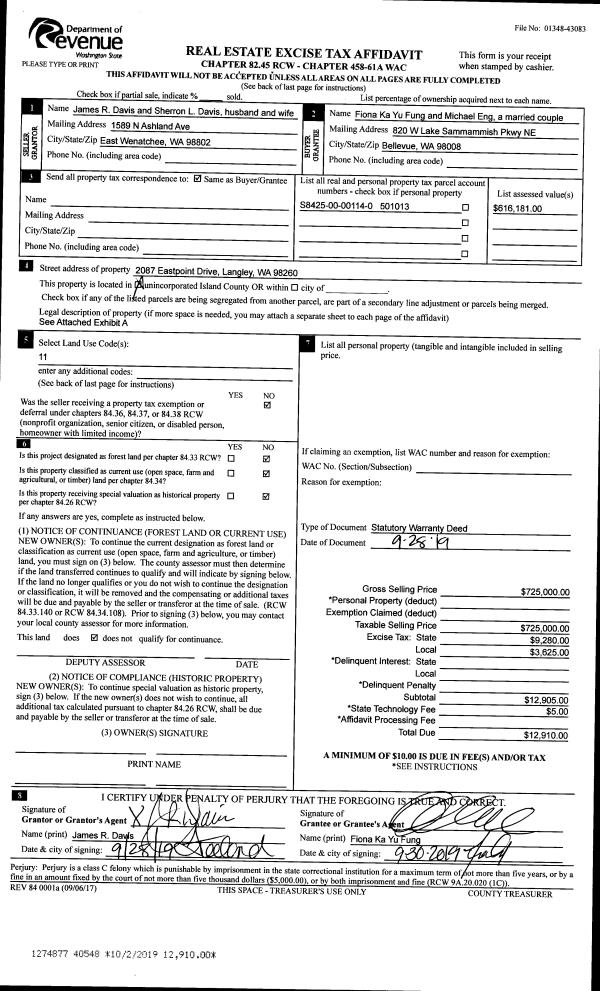
Property
Account |
| Property ID: | 357777 | Abbreviated Legal Description: | ROCKY PT HTS 3 LOT 10 & PT NE SE SEC 23-32-2E: BG NWCR LOT 10 RPH#3 S51*E117' N7*E55.35' N79*W99.83' TPB |
| Geographic ID: | S8030-03-00010-0 | Agent Code: | |
| Type: | Real | | |
| Tax Area: | 510 - APPRAISER-Stan/Cam Schl Dist, improved & 1 acre or less | Land Use Code | 11 |
| Open Space: | N | DFL | N |
| Historic Property: | N | Remodel Property: | N |
| Multi-Family Redevelopment: | N | | |
| Township: | | Section: | |
| Range: | |
Location |
| Address: | 910 VALERIE DR CAMANO ISLAND, WA 98282 | Mapsco: | |
| Neighborhood: | North Camano | Map ID: | 555 |
| Neighborhood CD: | 06-C |
Owner |
| Name: | LAWSETH TTEE, DWIGHT H | Owner ID: | 293550 |
| Mailing Address: | 910 VALERIE DR CAMANO ISLAND, WA 98282 | % Ownership: | 100.0000000000% |
| | | Exemptions: | |
Taxes and Assessment Details
Values
| (+) Improvement Homesite Value: | + | $0 | |
| (+) Improvement Non-Homesite Value: | + | $63,474 | |
| (+) Land Homesite Value: | + | $0 | |
| (+) Land Non-Homesite Value: | + | $275,000 | |
| (+) Curr Use (HS): | + | $0 | $0 |
| (+) Curr Use (NHS): | + | $0 | $0 |
| | | -------------------------- | |
| (=) Market Value: | = | $338,474 | |
| (–) Productivity Loss: | – | $0 | |
| | | -------------------------- | |
| (=) Subtotal: | = | $338,474 | |
| (+) Senior Appraised Value: | + | $0 | |
| (+) Non-Senior Appraised Value: | + | $338,474 | |
| | | -------------------------- | |
| (=) Total Appraised Value: | = | $338,474 | |
| (–) Senior Exemption Loss: | – | $0 | |
| (–) Exemption Loss: | – | $0 | |
| | | -------------------------- | |
| (=) Taxable Value: | = | $338,474 | |
Taxing Jurisdiction
| Owner: | LAWSETH TTEE, DWIGHT H | | |
| % Ownership: | 100.0000000000% | | |
| Total Value: | $338,474 | | |
| Tax Area: | 510 - APPRAISER-Stan/Cam Schl Dist, improved & 1 acre or less |
| CF | Conservation Futures | 0.0316035091 | $338,474 | $338,474 | $10.70 | | |
| EMS1 | Fire & Rescue Dist #1 Camano GEN (EMS) | 0.3677864386 | $338,474 | $338,474 | $124.49 | | |
| FIRE1 | Fire & Rescue Dist #1 Camano GEN | 1.2502910536 | $338,474 | $338,474 | $423.19 | | |
| FIRE1BOND | Fire & Rescue Dist #1 Camano BOND | 0.1570001679 | $338,474 | $338,474 | $53.14 | | |
| CE | County Current Expense | 0.3708482477 | $338,474 | $338,474 | $125.52 | | |
| CR | County Roads | 0.4584763726 | $338,474 | $338,474 | $155.18 | | |
| LCIB | Library Sno-Isle BOND (Camano Island) | 0.0396325772 | $338,474 | $338,474 | $13.41 | | |
| LIB | Library Sno-Isle GEN | 0.3153421757 | $338,474 | $338,474 | $106.74 | | |
| SCH205_401 | School 205-401 Enrichment | 1.2698420524 | $338,474 | $338,474 | $429.81 | | |
| SCH205BOND | School 205-401 BOND | 0.9396497583 | $338,474 | $338,474 | $318.05 | | |
| ST | State School | 1.3035497053 | $338,474 | $338,474 | $441.22 | | |
| ST2 | State School Part 2 | 0.8169543533 | $338,474 | $338,474 | $276.52 | | |
| | Total Tax Rate: | 7.3209764117 | | | | | |
| | | | | Taxes w/Current Exemptions: | $2,477.97 | | |
| | | | | Taxes w/o Exemptions: | $2,477.97 | | |
Improvement / Building
| Improvement #1: | MANUFACTURED HOME | State Code: | Y | 2055.0 sqft | Value: | $63,474 |
| Bathrooms: | 0 | Bedrooms: | 0 | | Ceiling: | PLASTER PAINTED | Cooling: | EVAP NO DUCT | | Exterior Wall/Cover: | VINYL | Floor Covering: | CARPET 100% | | Floor Structure: | SLAB ON GRADE | Foundation: | SLAB | | Heating: | FHA ELECTRIC | Interior Finish: | PLASTER | | Plumbing Fixture Cnt: | 1 | Roof Slope: | FLAT | | Roof Structure/Cover: | CJ ALUMINIUM HEAVY |   |   |
|
| | Type | Description | Class CD | Sub Class CD | Year Built | Area |
| | BAS | BASE/MAIN FLOOR | 4 | 0 | 1978 | 2055.0 |
| | OCP | OPEN CARPORT | 4 | 0 | 1978 | 475.0 |
| | UTY | STORAGE/UTILITY | 4 | 0 | 1978 | 1104.0 |
| | OWP | OPEN WOOD PORCH W/STEPS | 4 | 0 | 1978 | 192.0 |
Sketch
Property Image
Land
| 1 | 15 | SQ (12001-21780) | 0.0000 | 0.00 | 0.00 | 0.00 | 1.00 | $275,000 | $0 |
Roll Value History
| 2026 | N/A | N/A | N/A | N/A | N/A |
| 2025 | $63,474 | $275,000 | $0 | $338,474 | $338,474 |
| 2024 | $68,009 | $290,000 | $0 | $358,009 | $358,009 |
| 2023 | $61,107 | $250,000 | $0 | $311,107 | $311,107 |
| 2022 | $48,418 | $210,000 | $0 | $258,418 | $258,418 |
| 2021 | $44,823 | $140,000 | $0 | $184,823 | $184,823 |
| 2020 | $46,149 | $130,000 | $0 | $176,149 | $176,149 |
| 2019 | $39,468 | $170,000 | $0 | $209,468 | $209,468 |
| 2018 | $41,545 | $150,000 | $0 | $191,545 | $191,545 |
| 2017 | $43,622 | $120,000 | $0 | $163,622 | $163,622 |
| 2016 | $22,086 | $85,000 | $0 | $107,086 | $107,086 |
| 2015 | $23,512 | $85,000 | $0 | $108,512 | $108,512 |
| 2014 | $24,936 | $85,000 | $0 | $109,936 | $109,936 |
| 2013 | $27,074 | $85,000 | $0 | $112,074 | $112,074 |
| 2012 | $28,498 | $80,000 | $0 | $108,498 | $108,498 |
| 2011 | $29,924 | $100,000 | $0 | $129,924 | $129,924 |
| 2010 | $55,948 | $93,400 | $0 | $149,348 | $149,348 |
| 2009 | $58,937 | $130,000 | $0 | $188,937 | $188,937 |
| 2008 | $60,989 | $125,000 | $0 | $185,989 | $185,989 |
| 2007 | $63,319 | $125,000 | $0 | $188,319 | $188,319 |
Deed and Sales History
| 1 | 02/13/2020 | QCD | Quit Claim Deed | LAWSETH, DWIGHT | LAWSETH TTEE, DWIGHT H | | | $0.00 | 42184 | 4481722 |
| 2 | 12/19/2019 | QCD | Quit Claim Deed | LAWSETH, DWIGHT | LAWSETH, DWIGHT | | | $0.00 | 41902 | 4480046 |
| 3 | 09/16/2019 | OTHER | Other - Misc. Documents | LAWSETH, DWIGHT H / DIANE M | LAWSETH, DWIGHT | | | | 88178 | |
| 4 | 09/01/1995 | OTHER | Other - Misc. Documents | ROGERS, NORMAN T | LAWSETH, DWIGHT H | | | $74,000.00 | 53207 | 0 |
| 5 | 09/01/1995 | WD | Warranty Deed | LAWSETH, DWIGHT H | LAWSETH, DWIGHT H | | | $44,000.00 | 53206 | 95014801 |
| 6 | 03/01/1995 | WD | Warranty Deed | ARNOLD, GLENN L | ROGERS, NORMAN T | | | $68,600.00 | 50931 | 95004482 |
| 7 | 01/01/1900 | OTHER | Other - Misc. Documents | Unknown | ARNOLD, GLENN L | | | $0.00 | 0 | 0 |
Payout Agreement
| No payout information available.. |