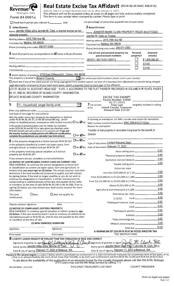
Property
Account |
| Property ID: | 357937 | Abbreviated Legal Description: | ROCKY PT TR LOT 6 BLK 1 |
| Geographic ID: | S8035-00-01006-0 | Agent Code: | |
| Type: | Real | | |
| Tax Area: | 510 - APPRAISER-Stan/Cam Schl Dist, improved & 1 acre or less | Land Use Code | 11 |
| Open Space: | N | DFL | N |
| Historic Property: | N | Remodel Property: | N |
| Multi-Family Redevelopment: | N | | |
| Township: | | Section: | |
| Range: | |
Location |
| Address: | 823 ROCKY POINT DR CAMANO ISLAND, WA 98282 | Mapsco: | |
| Neighborhood: | North Camano | Map ID: | 552 |
| Neighborhood CD: | 06-C |
Owner |
| Name: | POLLITT, CHRISTOPHER K | Owner ID: | 295223 |
| Mailing Address: | LALEAN I POLLITT 823 ROCKY POINT DR CAMANO ISLAND, WA 98282 | % Ownership: | 100.0000000000% |
| | | Exemptions: | |
Taxes and Assessment Details
Values
| (+) Improvement Homesite Value: | + | $0 | |
| (+) Improvement Non-Homesite Value: | + | $589,031 | |
| (+) Land Homesite Value: | + | $0 | |
| (+) Land Non-Homesite Value: | + | $340,000 | |
| (+) Curr Use (HS): | + | $0 | $0 |
| (+) Curr Use (NHS): | + | $0 | $0 |
| | | -------------------------- | |
| (=) Market Value: | = | $929,031 | |
| (–) Productivity Loss: | – | $0 | |
| | | -------------------------- | |
| (=) Subtotal: | = | $929,031 | |
| (+) Senior Appraised Value: | + | $0 | |
| (+) Non-Senior Appraised Value: | + | $929,031 | |
| | | -------------------------- | |
| (=) Total Appraised Value: | = | $929,031 | |
| (–) Senior Exemption Loss: | – | $0 | |
| (–) Exemption Loss: | – | $0 | |
| | | -------------------------- | |
| (=) Taxable Value: | = | $929,031 | |
Taxing Jurisdiction
| Owner: | POLLITT, CHRISTOPHER K | | |
| % Ownership: | 100.0000000000% | | |
| Total Value: | $929,031 | | |
| Tax Area: | 510 - APPRAISER-Stan/Cam Schl Dist, improved & 1 acre or less |
| CF | Conservation Futures | 0.0316035091 | $929,031 | $929,031 | $29.36 | | |
| EMS1 | Fire & Rescue Dist #1 Camano GEN (EMS) | 0.3677864386 | $929,031 | $929,031 | $341.69 | | |
| FIRE1 | Fire & Rescue Dist #1 Camano GEN | 1.2502910536 | $929,031 | $929,031 | $1,161.56 | | |
| FIRE1BOND | Fire & Rescue Dist #1 Camano BOND | 0.1570001679 | $929,031 | $929,031 | $145.86 | | |
| CE | County Current Expense | 0.3708482477 | $929,031 | $929,031 | $344.53 | | |
| CR | County Roads | 0.4584763726 | $929,031 | $929,031 | $425.94 | | |
| LCIB | Library Sno-Isle BOND (Camano Island) | 0.0396325772 | $929,031 | $929,031 | $36.82 | | |
| LIB | Library Sno-Isle GEN | 0.3153421757 | $929,031 | $929,031 | $292.96 | | |
| SCH205_401 | School 205-401 Enrichment | 1.2698420524 | $929,031 | $929,031 | $1,179.72 | | |
| SCH205BOND | School 205-401 BOND | 0.9396497583 | $929,031 | $929,031 | $872.96 | | |
| ST | State School | 1.3035497053 | $929,031 | $929,031 | $1,211.04 | | |
| ST2 | State School Part 2 | 0.8169543533 | $929,031 | $929,031 | $758.98 | | |
| | Total Tax Rate: | 7.3209764117 | | | | | |
| | | | | Taxes w/Current Exemptions: | $6,801.42 | | |
| | | | | Taxes w/o Exemptions: | $6,801.42 | | |
Improvement / Building
| Improvement #1: | RESIDENTIAL | State Code: | Y | 3302.0 sqft | Value: | $589,031 |
| Bathrooms: | 2.75 | Bedrooms: | 2 | | Ceiling: | DRYWALL PAINTED | Cooling: | HEAT PUMP/CONV/V | | Exterior Wall/Cover: | CEMENT FIBER | Floor Covering: | CARPET/VINYL 60-40 | | Floor Structure: | WOOD W/SUBFLOOR | Foundation: | CONCRETE | | Interior Finish: | DRYWALL PAINT | Plumbing Fixture Cnt: | 12 | | Roof Slope: | 6" IN 12" | Roof Structure/Cover: | CJ ASPHALT |
|
| | Type | Description | Class CD | Sub Class CD | Year Built | Area |
| | BAS | BASE/MAIN FLOOR | 4 | 0 | 2015 | 1574.0 |
| | DWN | DOWNSTAIRS LIVING AREA | 4 | 0 | 2015 | 960.0 |
| | BIG | BUILT IN GARAGE | 4 | 0 | 2015 | 576.0 |
| | OWP | OPEN WOOD PORCH W/STEPS | 4 | 0 | 2015 | 322.0 |
| | UPS | UPPER STORY | 4 | 0 | 2015 | 768.0 |
| | OP4 | OPEN PORCH W/CEILING-ROOF | 4 | 0 | 2015 | 300.0 |
| | OWP | OPEN WOOD PORCH W/STEPS | 4 | 0 | 2015 | 468.0 |
Sketch
Property Image
Land
| 1 | 14 | SQ (08001-12000) | 0.0000 | 0.00 | 0.00 | 0.00 | 1.00 | $340,000 | $0 |
Roll Value History
| 2026 | N/A | N/A | N/A | N/A | N/A |
| 2025 | $589,031 | $340,000 | $0 | $929,031 | $929,031 |
| 2024 | $593,820 | $330,000 | $0 | $923,820 | $923,820 |
| 2023 | $598,609 | $360,000 | $0 | $958,609 | $958,609 |
| 2022 | $533,344 | $260,000 | $0 | $793,344 | $793,344 |
| 2021 | $467,484 | $220,000 | $0 | $687,484 | $687,484 |
| 2020 | $410,594 | $190,000 | $0 | $600,594 | $600,594 |
| 2019 | $332,784 | $230,000 | $0 | $562,784 | $562,784 |
| 2018 | $333,631 | $200,000 | $0 | $533,631 | $533,631 |
| 2017 | $273,185 | $150,000 | $0 | $423,185 | $423,185 |
| 2016 | $110,191 | $100,000 | $0 | $210,191 | $210,191 |
| 2015 | $66,071 | $100,000 | $0 | $166,071 | $166,071 |
| 2014 | $0 | $85,000 | $0 | $85,000 | $85,000 |
| 2013 | $0 | $85,000 | $0 | $85,000 | $85,000 |
| 2012 | $0 | $80,000 | $0 | $80,000 | $80,000 |
| 2011 | $0 | $100,000 | $0 | $100,000 | $100,000 |
| 2010 | $0 | $100,000 | $0 | $100,000 | $100,000 |
| 2009 | $0 | $120,000 | $0 | $120,000 | $120,000 |
| 2008 | $0 | $150,000 | $0 | $150,000 | $150,000 |
| 2007 | $0 | $25,000 | $0 | $25,000 | $25,000 |
Deed and Sales History
| 1 | 07/10/2020 | WD | Warranty Deed | ALLISON, JEFFERY D | POLLITT, CHRISTOPHER K | | | $795,000.00 | 43838 | 4491478 |
| 2 | 01/28/2004 | WD | Warranty Deed | SMITH, BEVERLEY M | ALLISON, JEFFERY D | | | $20,000.00 | 40388 | 4089947 |
| 3 | 03/01/1988 | QCD | Quit Claim Deed | SWIRSKY, WATSON M | SMITH, BEVERLEY M | | | $0.00 | 80609 | 88002455 |
| 4 | 01/01/1900 | OTHER | Other - Misc. Documents | Unknown | SWIRSKY, WATSON M | | | $0.00 | 0 | 0 |
Payout Agreement
| No payout information available.. |