Property
Account |
| Property ID: | 357955 | Abbreviated Legal Description: | ROCKY PT TR LOT 8 BLK 1 |
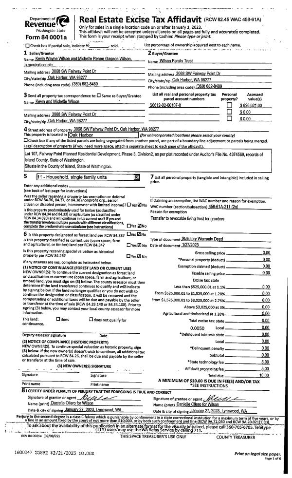
| Geographic ID: | S8035-00-01008-0 | Agent Code: | |
| Type: | Real | | |
| Tax Area: | 510 - APPRAISER-Stan/Cam Schl Dist, improved & 1 acre or less | Land Use Code | 11 |
| Open Space: | N | DFL | N |
| Historic Property: | N | Remodel Property: | N |
| Multi-Family Redevelopment: | N | | |
| Township: | | Section: | |
| Range: | |
Location |
| Address: | 815 ROCKY POINT DR CAMANO ISLAND, WA 98282 | Mapsco: | |
| Neighborhood: | North Camano | Map ID: | 552 |
| Neighborhood CD: | 06-C |
Owner |
| Name: | MCKETTA, STELLIN T | Owner ID: | 308158 |
| Mailing Address: | SUZANNE B MCKETTA 815 ROCKY POINT DR CAMANO ISLAND, WA 98282 | % Ownership: | 100.0000000000% |
| | | Exemptions: | |
Taxes and Assessment Details
Values
| (+) Improvement Homesite Value: | + | $0 | |
| (+) Improvement Non-Homesite Value: | + | $174,563 | |
| (+) Land Homesite Value: | + | $0 | |
| (+) Land Non-Homesite Value: | + | $340,000 | |
| (+) Curr Use (HS): | + | $0 | $0 |
| (+) Curr Use (NHS): | + | $0 | $0 |
| | | -------------------------- | |
| (=) Market Value: | = | $514,563 | |
| (–) Productivity Loss: | – | $0 | |
| | | -------------------------- | |
| (=) Subtotal: | = | $514,563 | |
| (+) Senior Appraised Value: | + | $0 | |
| (+) Non-Senior Appraised Value: | + | $514,563 | |
| | | -------------------------- | |
| (=) Total Appraised Value: | = | $514,563 | |
| (–) Senior Exemption Loss: | – | $0 | |
| (–) Exemption Loss: | – | $0 | |
| | | -------------------------- | |
| (=) Taxable Value: | = | $514,563 | |
Taxing Jurisdiction
| Owner: | MCKETTA, STELLIN T | | |
| % Ownership: | 100.0000000000% | | |
| Total Value: | $514,563 | | |
| Tax Area: | 510 - APPRAISER-Stan/Cam Schl Dist, improved & 1 acre or less |
| CF | Conservation Futures | 0.0316035091 | $514,563 | $514,563 | $16.26 | | |
| EMS1 | Fire & Rescue Dist #1 Camano GEN (EMS) | 0.3677864386 | $514,563 | $514,563 | $189.25 | | |
| FIRE1 | Fire & Rescue Dist #1 Camano GEN | 1.2502910536 | $514,563 | $514,563 | $643.35 | | |
| FIRE1BOND | Fire & Rescue Dist #1 Camano BOND | 0.1570001679 | $514,563 | $514,563 | $80.79 | | |
| CE | County Current Expense | 0.3708482477 | $514,563 | $514,563 | $190.82 | | |
| CR | County Roads | 0.4584763726 | $514,563 | $514,563 | $235.91 | | |
| LCIB | Library Sno-Isle BOND (Camano Island) | 0.0396325772 | $514,563 | $514,563 | $20.39 | | |
| LIB | Library Sno-Isle GEN | 0.3153421757 | $514,563 | $514,563 | $162.26 | | |
| SCH205_401 | School 205-401 Enrichment | 1.2698420524 | $514,563 | $514,563 | $653.41 | | |
| SCH205BOND | School 205-401 BOND | 0.9396497583 | $514,563 | $514,563 | $483.51 | | |
| ST | State School | 1.3035497053 | $514,563 | $514,563 | $670.76 | | |
| ST2 | State School Part 2 | 0.8169543533 | $514,563 | $514,563 | $420.37 | | |
| | Total Tax Rate: | 7.3209764117 | | | | | |
| | | | | Taxes w/Current Exemptions: | $3,767.08 | | |
| | | | | Taxes w/o Exemptions: | $3,767.08 | | |
Improvement / Building
| Improvement #1: | RESIDENTIAL | State Code: | Y | 1124.0 sqft | Value: | $174,563 |
| Bathrooms: | 1 | Bedrooms: | 2 | | Ceiling: | DRY WALL SPRAYED | Cooling: | HEAT PUMP/CONV/V | | Exterior Wall/Cover: | WOOD SIDING | Floor Covering: | CARPET/VINYL 80-20 | | Floor Structure: | WOOD W/SUBFLOOR | Foundation: | CONCRETE | | Interior Finish: | DRYWALL PAINT | Plumbing Fixture Cnt: | 6 | | Roof Slope: | 6" IN 12" | Roof Structure/Cover: | CJ ALUMINIUM HEAVY |
|
| | Type | Description | Class CD | Sub Class CD | Year Built | Area |
| | BAS | BASE/MAIN FLOOR | 3 | 0 | 1978 | 804.0 |
| | AGR | ATTACHED GARAGE | 3 | 0 | 1978 | 376.0 |
| | UPH | HALF STORY | 3 | 0 | 1978 | 320.0 |
| | OWP | OPEN WOOD PORCH W/STEPS | 3 | 0 | 1978 | 395.0 |
Sketch
Property Image
Land
| 1 | 14 | SQ (08001-12000) | 0.0000 | 0.00 | 0.00 | 0.00 | 1.00 | $340,000 | $0 |
Roll Value History
| 2026 | N/A | N/A | N/A | N/A | N/A |
| 2025 | $174,563 | $340,000 | $0 | $514,563 | $514,563 |
| 2024 | $177,084 | $330,000 | $0 | $507,084 | $507,084 |
| 2023 | $179,604 | $360,000 | $0 | $539,604 | $539,604 |
| 2022 | $172,492 | $260,000 | $0 | $432,492 | $432,492 |
| 2021 | $152,036 | $220,000 | $0 | $372,036 | $372,036 |
| 2020 | $148,510 | $190,000 | $0 | $338,510 | $338,510 |
| 2019 | $107,508 | $230,000 | $0 | $337,508 | $337,508 |
| 2018 | $107,860 | $200,000 | $0 | $307,860 | $307,860 |
| 2017 | $108,566 | $150,000 | $0 | $258,566 | $258,566 |
| 2016 | $105,845 | $100,000 | $0 | $205,845 | $205,845 |
| 2015 | $107,295 | $100,000 | $0 | $207,295 | $207,295 |
| 2014 | $108,746 | $85,000 | $0 | $193,746 | $193,746 |
| 2013 | $110,196 | $85,000 | $0 | $195,196 | $195,196 |
| 2012 | $111,647 | $80,000 | $0 | $191,647 | $191,647 |
| 2011 | $113,095 | $100,000 | $0 | $213,095 | $213,095 |
| 2010 | $121,873 | $100,000 | $0 | $221,873 | $221,873 |
| 2009 | $127,299 | $120,000 | $0 | $247,299 | $247,299 |
| 2008 | $129,076 | $150,000 | $0 | $279,076 | $279,076 |
| 2007 | $130,894 | $150,000 | $0 | $280,894 | $280,894 |
Deed and Sales History
| 1 | 03/23/2023 | WD | Warranty Deed | CLAYTON, FAYE A | MCKETTA, STELLIN T | | | $515,000.00 | 56284 | 4558333 |
| 2 | 08/26/2020 | QCD | Quit Claim Deed | CLAYTON, GAYLE E | CLAYTON, FAYE A | | | $0.00 | 44470 | 4495119 |
| 3 | 08/29/2017 | QCD | Quit Claim Deed | CLAYTON, KENNETH R | CLAYTON, GAYLE E | | | $0.00 | 31037 | 4429951 |
| 4 | 11/28/2005 | WD | Warranty Deed | DYKE, PATRICK A | CLAYTON, KENNETH R | | | $227,137.00 | 56145 | 4156645 |
| 5 | 06/02/2000 | WD | Warranty Deed | PURCELL, JAMES R | DYKE, PATRICK A | | | $134,574.00 | 2104 | 20010023 |
| 6 | 07/01/1996 | WD | Warranty Deed | TAYLOR, RICHARD B | PURCELL, JAMES R | | | $110,400.00 | 62574 | 96012744 |
| 7 | 05/01/1990 | WD | Warranty Deed | YEAGER, TERRANCE L | TAYLOR, RICHARD B | | | $79,500.00 | 2700 | 90008874 |
| 8 | 09/01/1984 | WD | Warranty Deed | CARLSON, HARRY G | YEAGER, TERRANCE L | | | $73,500.00 | 42691 | 84003138 |
| 9 | 01/01/1900 | OTHER | Other - Misc. Documents | Unknown | CARLSON, HARRY G | | | $0.00 | 0 | 0 |
Payout Agreement
| No payout information available.. |