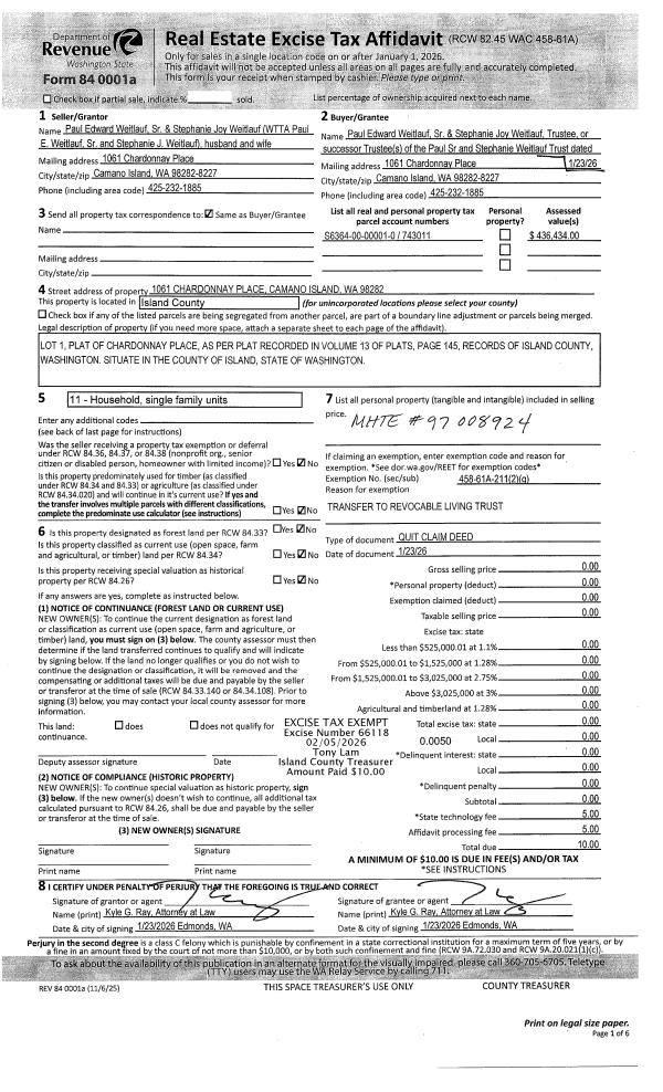
Property
Account |
| Property ID: | 35811 | Abbreviated Legal Description: | 56 - E/2 SW SW NE SE EX RD SUB EZ |
| Geographic ID: | R13324-150-4210 | Agent Code: | |
| Type: | Real | | |
| Tax Area: | 110 - APPRAISER-OH Schl Dist, outside OH, improved & 1 acre or less | Land Use Code | 11 |
| Open Space: | N | DFL | N |
| Historic Property: | N | Remodel Property: | N |
| Multi-Family Redevelopment: | N | | |
| Township: | 33 | Section: | 24 |
| Range: | R1 |
Location |
| Address: | 3309 STELLAR LN OAK HARBOR, WA 98277 | Mapsco: | |
| Neighborhood: | Cycle 6 | Map ID: | 223 |
| Neighborhood CD: | 6 |
Owner |
| Name: | HEANEY, KEVIN S | Owner ID: | 254694 |
| Mailing Address: | KAREN L HEANEY 1912 SPRINGHILL DR NW ALBANY, OR 97321 | % Ownership: | 100.0000000000% |
| | | Exemptions: | |
Taxes and Assessment Details
Values
| (+) Improvement Homesite Value: | + | $0 | |
| (+) Improvement Non-Homesite Value: | + | $156,055 | |
| (+) Land Homesite Value: | + | $0 | |
| (+) Land Non-Homesite Value: | + | $210,000 | |
| (+) Curr Use (HS): | + | $0 | $0 |
| (+) Curr Use (NHS): | + | $0 | $0 |
| | | -------------------------- | |
| (=) Market Value: | = | $366,055 | |
| (–) Productivity Loss: | – | $0 | |
| | | -------------------------- | |
| (=) Subtotal: | = | $366,055 | |
| (+) Senior Appraised Value: | + | $0 | |
| (+) Non-Senior Appraised Value: | + | $366,055 | |
| | | -------------------------- | |
| (=) Total Appraised Value: | = | $366,055 | |
| (–) Senior Exemption Loss: | – | $0 | |
| (–) Exemption Loss: | – | $0 | |
| | | -------------------------- | |
| (=) Taxable Value: | = | $366,055 | |
Taxing Jurisdiction
| Owner: | HEANEY, KEVIN S | | |
| % Ownership: | 100.0000000000% | | |
| Total Value: | $366,055 | | |
| Tax Area: | 110 - APPRAISER-OH Schl Dist, outside OH, improved & 1 acre or less |
| CF | Conservation Futures | 0.0316035091 | $366,055 | $366,055 | $11.57 | | |
| CEM1 | Cemetery #1 | 0.0040320932 | $366,055 | $366,055 | $1.48 | | |
| FIRE2 | Fire & Rescue Dist #2 N Whidbey GEN | 0.5475949600 | $366,055 | $366,055 | $200.45 | | |
| HOBOND | Hospital BOND | 0.1910887512 | $366,055 | $366,055 | $69.95 | | |
| HOGEN | Hospital GEN | 0.3902502903 | $366,055 | $366,055 | $142.85 | | |
| CE | County Current Expense | 0.3708482477 | $366,055 | $366,055 | $135.75 | | |
| CR | County Roads | 0.4584763726 | $366,055 | $366,055 | $167.83 | | |
| ISLANDEMS | Hospital GEN (EMS) | 0.5000000000 | $366,055 | $366,055 | $183.03 | | |
| LIB | Library Sno-Isle GEN | 0.3153421757 | $366,055 | $366,055 | $115.43 | | |
| NWHIDPRMT | P & R N Whidbey GEN | 0.2004466701 | $366,055 | $366,055 | $73.37 | | |
| SCH201MO | School 201 Enrichment | 1.8559231640 | $366,055 | $366,055 | $679.37 | | |
| ST | State School | 1.3035497053 | $366,055 | $366,055 | $477.17 | | |
| ST2 | State School Part 2 | 0.8169543533 | $366,055 | $366,055 | $299.05 | | |
| | Total Tax Rate: | 6.9861102925 | | | | | |
| | | | | Taxes w/Current Exemptions: | $2,557.30 | | |
| | | | | Taxes w/o Exemptions: | $2,557.30 | | |
Improvement / Building
| Improvement #1: | RESIDENTIAL | State Code: | Y | 1050.0 sqft | Value: | $156,055 |
| Bathrooms: | 1 | Bedrooms: | 3 | | Ceiling: | DRY WALL SPRAYED | Exterior Wall/Cover: | WOOD SIDING | | Floor Covering: | CARPET/VINYL 80-20 | Floor Structure: | WOOD W/SUBFLOOR | | Foundation: | CONCRETE | Heating: | BASEBOARD ELECTRIC | | Interior Finish: | DRYWALL PAINT | Plumbing Fixture Cnt: | 6 | | Roof Slope: | 4" IN 12" | Roof Structure/Cover: | CJ ASPHALT |
|
| | Type | Description | Class CD | Sub Class CD | Year Built | Area |
| | BAS | BASE/MAIN FLOOR | 3 | 0 | 1973 | 1050.0 |
| | AGR | ATTACHED GARAGE | 3 | 0 | 1973 | 350.0 |
Sketch
Property Image
Land
| 1 | 17 | AC (01.01-02.00) | 1.1400 | 49658.40 | 0.00 | 0.00 | 1.00 | $210,000 | $0 |
Roll Value History
| 2026 | N/A | N/A | N/A | N/A | N/A |
| 2025 | $156,055 | $210,000 | $0 | $366,055 | $366,055 |
| 2024 | $161,636 | $210,000 | $0 | $371,636 | $371,636 |
| 2023 | $169,027 | $210,000 | $0 | $379,027 | $379,027 |
| 2022 | $150,414 | $200,000 | $0 | $350,414 | $350,414 |
| 2021 | $132,555 | $140,000 | $0 | $272,555 | $272,555 |
| 2020 | $129,357 | $130,000 | $0 | $259,357 | $259,357 |
| 2019 | $92,258 | $165,000 | $0 | $257,258 | $257,258 |
| 2018 | $92,557 | $150,000 | $0 | $242,557 | $242,557 |
| 2017 | $93,154 | $120,000 | $0 | $213,154 | $213,154 |
| 2016 | $87,348 | $100,000 | $0 | $187,348 | $187,348 |
| 2015 | $88,615 | $100,000 | $0 | $188,615 | $188,615 |
| 2014 | $89,880 | $90,000 | $0 | $179,880 | $179,880 |
| 2013 | $91,147 | $90,000 | $0 | $181,147 | $181,147 |
| 2012 | $92,412 | $68,000 | $0 | $160,412 | $160,412 |
| 2011 | $93,678 | $80,000 | $0 | $173,678 | $173,678 |
| 2010 | $97,824 | $80,000 | $0 | $177,824 | $177,824 |
| 2009 | $102,020 | $118,000 | $0 | $220,020 | $220,020 |
| 2008 | $103,279 | $118,000 | $0 | $221,279 | $221,279 |
| 2007 | $104,538 | $118,000 | $0 | $222,538 | $222,538 |
Deed and Sales History
| 1 | 06/20/2011 | QCD | Quit Claim Deed | TRASK, KAREN L | HEANEY, KEVIN S | | | $0.00 | 4766 | 4297081 |
| 2 | 11/21/2000 | WD | Warranty Deed | NEWTON, ANDREW D | TRASK, KAREN L | | | $124,500.00 | 4539 | 20020905 |
| 3 | 06/01/1996 | WD | Warranty Deed | CAPITAL, MANAGEMENT G | NEWTON, ANDREW D | | | $102,500.00 | 62323 | 96011405 |
| 4 | 11/01/1995 | TRUSTEED | Trustee's Deed | MANIBUSAN, GEORGE | CAPITAL, MANAGEMENT G | | | $0.00 | 54113 | 95018884 |
| 5 | 08/01/1988 | PRD | Personal Representatives Deed | MANIBUSAN, PEARL | MANIBUSAN, GEORGE | | | $0.00 | 50291 | 95001339 |
| 6 | 01/01/1900 | OTHER | Other - Misc. Documents | Unknown | MANIBUSAN, PEARL | | | $0.00 | 0 | 0 |
Payout Agreement
| No payout information available.. |