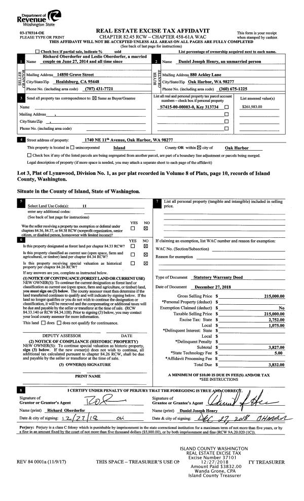
Property
Account |
| Property ID: | 358455 | Abbreviated Legal Description: | ROCKY PT TR LOTS 14 & 15 BLK 2 |
| Geographic ID: | S8035-00-02014-0 | Agent Code: | |
| Type: | Real | | |
| Tax Area: | 510 - APPRAISER-Stan/Cam Schl Dist, improved & 1 acre or less | Land Use Code | 11 |
| Open Space: | N | DFL | N |
| Historic Property: | N | Remodel Property: | N |
| Multi-Family Redevelopment: | N | | |
| Township: | | Section: | |
| Range: | |
Location |
| Address: | 913 ROCKY POINT DR CAMANO ISLAND, WA 98282 | Mapsco: | |
| Neighborhood: | North Camano | Map ID: | 552 |
| Neighborhood CD: | 06-C |
Owner |
| Name: | DANNERBECK TTEE, PETER GEORGE | Owner ID: | 288325 |
| Mailing Address: | KATHRYN SHULL DANNERBECK, TTEE 913 ROCKY POINT DR CAMANO ISLAND, WA 98282 | % Ownership: | 100.0000000000% |
| | | Exemptions: | |
Taxes and Assessment Details
Values
| (+) Improvement Homesite Value: | + | $0 | |
| (+) Improvement Non-Homesite Value: | + | $521,089 | |
| (+) Land Homesite Value: | + | $0 | |
| (+) Land Non-Homesite Value: | + | $700,000 | |
| (+) Curr Use (HS): | + | $0 | $0 |
| (+) Curr Use (NHS): | + | $0 | $0 |
| | | -------------------------- | |
| (=) Market Value: | = | $1,221,089 | |
| (–) Productivity Loss: | – | $0 | |
| | | -------------------------- | |
| (=) Subtotal: | = | $1,221,089 | |
| (+) Senior Appraised Value: | + | $0 | |
| (+) Non-Senior Appraised Value: | + | $1,221,089 | |
| | | -------------------------- | |
| (=) Total Appraised Value: | = | $1,221,089 | |
| (–) Senior Exemption Loss: | – | $0 | |
| (–) Exemption Loss: | – | $0 | |
| | | -------------------------- | |
| (=) Taxable Value: | = | $1,221,089 | |
Taxing Jurisdiction
| Owner: | DANNERBECK TTEE, PETER GEORGE | | |
| % Ownership: | 100.0000000000% | | |
| Total Value: | $1,221,089 | | |
| Tax Area: | 510 - APPRAISER-Stan/Cam Schl Dist, improved & 1 acre or less |
| CF | Conservation Futures | 0.0316035091 | $1,221,089 | $1,221,089 | $38.59 | | |
| EMS1 | Fire & Rescue Dist #1 Camano GEN (EMS) | 0.3677864386 | $1,221,089 | $1,221,089 | $449.10 | | |
| FIRE1 | Fire & Rescue Dist #1 Camano GEN | 1.2502910536 | $1,221,089 | $1,221,089 | $1,526.72 | | |
| FIRE1BOND | Fire & Rescue Dist #1 Camano BOND | 0.1570001679 | $1,221,089 | $1,221,089 | $191.71 | | |
| CE | County Current Expense | 0.3708482477 | $1,221,089 | $1,221,089 | $452.84 | | |
| CR | County Roads | 0.4584763726 | $1,221,089 | $1,221,089 | $559.84 | | |
| LCIB | Library Sno-Isle BOND (Camano Island) | 0.0396325772 | $1,221,089 | $1,221,089 | $48.39 | | |
| LIB | Library Sno-Isle GEN | 0.3153421757 | $1,221,089 | $1,221,089 | $385.06 | | |
| SCH205_401 | School 205-401 Enrichment | 1.2698420524 | $1,221,089 | $1,221,089 | $1,550.59 | | |
| SCH205BOND | School 205-401 BOND | 0.9396497583 | $1,221,089 | $1,221,089 | $1,147.40 | | |
| ST | State School | 1.3035497053 | $1,221,089 | $1,221,089 | $1,591.75 | | |
| ST2 | State School Part 2 | 0.8169543533 | $1,221,089 | $1,221,089 | $997.57 | | |
| | Total Tax Rate: | 7.3209764117 | | | | | |
| | | | | Taxes w/Current Exemptions: | $8,939.56 | | |
| | | | | Taxes w/o Exemptions: | $8,939.56 | | |
Improvement / Building
| Improvement #1: | RESIDENTIAL | State Code: | Y | 3942.0 sqft | Value: | $521,089 |
| Bathrooms: | 3.5 | Bedrooms: | 3 | | Ceiling: | DRYWALL PAINTED | Cooling: | HEAT PUMP/CONV/V | | Exterior Wall/Cover: | WOOD SIDING | Floor Covering: | HARDWOOD/CARP 20-80 | | Floor Structure: | WOOD W/SUBFLOOR | Foundation: | CONCRETE | | Interior Finish: | DRYWALL PAINT | Plumbing Fixture Cnt: | 15 | | Roof Slope: | 6" IN 12" | Roof Structure/Cover: | CJ ASPHALT |
|
| | Type | Description | Class CD | Sub Class CD | Year Built | Area |
| | BAS | BASE/MAIN FLOOR | 4 | 0 | 1971 | 1971.0 |
| | DWN | DOWNSTAIRS LIVING AREA | 4 | 0 | 1971 | 1971.0 |
| | OP1 | OPEN PORCH SLAB | 4 | 0 | 1971 | 485.0 |
| | AGR | ATTACHED GARAGE | 4 | 0 | 1971 | 676.0 |
| | OWP | OPEN WOOD PORCH W/STEPS | 4 | 0 | 1971 | 520.0 |
| | OWC | OPEN WOOD PORCH W/STEPS/ROOF/C | 4 | 0 | 1971 | 110.0 |
| | OWC | OPEN WOOD PORCH W/STEPS/ROOF/C | 4 | 0 | 1971 | 100.0 |
Sketch
Property Image
Land
| 1 | HB | HIGH BLUFF | 0.0000 | 0.00 | 160.00 | 0.00 | 1.00 | $700,000 | $0 |
Roll Value History
| 2026 | N/A | N/A | N/A | N/A | N/A |
| 2025 | $521,089 | $700,000 | $0 | $1,221,089 | $1,221,089 |
| 2024 | $527,835 | $700,000 | $0 | $1,227,835 | $1,227,835 |
| 2023 | $534,581 | $700,000 | $0 | $1,234,581 | $1,234,581 |
| 2022 | $466,819 | $675,000 | $0 | $1,141,819 | $1,141,819 |
| 2021 | $413,243 | $450,000 | $0 | $863,243 | $863,243 |
| 2020 | $404,067 | $450,000 | $0 | $854,067 | $854,067 |
| 2019 | $331,174 | $450,000 | $0 | $781,174 | $781,174 |
| 2018 | $332,217 | $400,000 | $0 | $732,217 | $732,217 |
| 2017 | $334,306 | $400,000 | $0 | $734,306 | $734,306 |
| 2016 | $330,877 | $400,000 | $0 | $730,877 | $730,877 |
| 2015 | $335,120 | $400,000 | $0 | $735,120 | $735,120 |
| 2014 | $339,362 | $400,000 | $0 | $739,362 | $739,362 |
| 2013 | $343,604 | $400,000 | $0 | $743,604 | $743,604 |
| 2012 | $347,845 | $404,127 | $0 | $751,972 | $751,972 |
| 2011 | $352,088 | $425,397 | $0 | $777,485 | $777,485 |
| 2010 | $269,574 | $425,397 | $0 | $694,971 | $694,971 |
| 2009 | $291,506 | $462,387 | $0 | $753,893 | $753,893 |
| 2008 | $305,607 | $514,174 | $0 | $819,781 | $819,781 |
| 2007 | $309,913 | $514,174 | $0 | $824,087 | $824,087 |
Deed and Sales History
| 1 | 12/14/2018 | QCD | Quit Claim Deed | DANNERBECK, PETER | DANNERBECK TTEE, PETER GEORGE | | | $0.00 | 37081 | 4457002 |
| 2 | 09/09/2008 | WD | Warranty Deed | YOUNGREN, STEVEN M | DANNERBECK, PETER | | | $749,500.00 | 82489 | 4237035 |
| 3 | 04/17/2007 | WD | Warranty Deed | ARTIS, ALAN W | YOUNGREN, STEVEN M | | | $825,000.00 | 71355 | 4200576 |
| 4 | 12/20/2004 | WD | Warranty Deed | SMITH, GORDON A | ARTIS, ALAN W | | | $599,000.00 | 45966 | 4121610 |
| 5 | 05/01/1992 | QCD | Quit Claim Deed | SMITH, GORDON A | SMITH, GORDON A | | | $0.00 | 23032 | 92014717 |
| 6 | 12/01/1987 | WD | Warranty Deed | WHITTINGTON, FLOYD L | SMITH, GORDON A | | | $212,000.00 | 73926 | 87017072 |
| 7 | 11/01/1986 | OTHER | Other - Misc. Documents | WHITTINGTON, FLOYD L | WHITTINGTON, FLOYD L | | | $0.00 | 61925 | 86013108 |
| 8 | 10/01/1985 | QCD | Quit Claim Deed | WHITTINGTON, FLOYD L | WHITTINGTON, FLOYD L | | | $0.00 | 53529 | 85013977 |
| 9 | 01/01/1900 | OTHER | Other - Misc. Documents | Unknown | WHITTINGTON, FLOYD L | | | $0.00 | 0 | 0 |
Payout Agreement
| No payout information available.. |