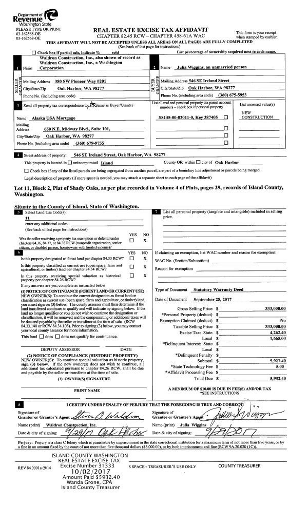
Property
Account |
| Property ID: | 358516 | Abbreviated Legal Description: | Rocky Point Tracts - 1,s Lot 20,s Blk 2;s LOT B BLC AF#4436612s |
| Geographic ID: | S8035-00-02020-0 | Agent Code: | |
| Type: | Real | | |
| Tax Area: | 510 - APPRAISER-Stan/Cam Schl Dist, improved & 1 acre or less | Land Use Code | 11 |
| Open Space: | N | DFL | N |
| Historic Property: | N | Remodel Property: | N |
| Multi-Family Redevelopment: | N | | |
| Township: | | Section: | |
| Range: | |
Location |
| Address: | 923 ROCKY POINT DR CAMANO ISLAND, WA 98282 | Mapsco: | |
| Neighborhood: | North Camano | Map ID: | 552 |
| Neighborhood CD: | 06-C |
Owner |
| Name: | WRIGHT JTWROS, JANET | Owner ID: | 268188 |
| Mailing Address: | NORMAN KREGER JTWROS 923 ROCKY POINT DR CAMANO ISLAND, WA 98282 | % Ownership: | 100.0000000000% |
| | | Exemptions: | |
Taxes and Assessment Details
Values
| (+) Improvement Homesite Value: | + | $0 | |
| (+) Improvement Non-Homesite Value: | + | $374,342 | |
| (+) Land Homesite Value: | + | $0 | |
| (+) Land Non-Homesite Value: | + | $340,000 | |
| (+) Curr Use (HS): | + | $0 | $0 |
| (+) Curr Use (NHS): | + | $0 | $0 |
| | | -------------------------- | |
| (=) Market Value: | = | $714,342 | |
| (–) Productivity Loss: | – | $0 | |
| | | -------------------------- | |
| (=) Subtotal: | = | $714,342 | |
| (+) Senior Appraised Value: | + | $0 | |
| (+) Non-Senior Appraised Value: | + | $714,342 | |
| | | -------------------------- | |
| (=) Total Appraised Value: | = | $714,342 | |
| (–) Senior Exemption Loss: | – | $0 | |
| (–) Exemption Loss: | – | $0 | |
| | | -------------------------- | |
| (=) Taxable Value: | = | $714,342 | |
Taxing Jurisdiction
| Owner: | WRIGHT JTWROS, JANET | | |
| % Ownership: | 100.0000000000% | | |
| Total Value: | $714,342 | | |
| Tax Area: | 510 - APPRAISER-Stan/Cam Schl Dist, improved & 1 acre or less |
| CF | Conservation Futures | 0.0316035091 | $714,342 | $714,342 | $22.58 | | |
| EMS1 | Fire & Rescue Dist #1 Camano GEN (EMS) | 0.3677864386 | $714,342 | $714,342 | $262.73 | | |
| FIRE1 | Fire & Rescue Dist #1 Camano GEN | 1.2502910536 | $714,342 | $714,342 | $893.14 | | |
| FIRE1BOND | Fire & Rescue Dist #1 Camano BOND | 0.1570001679 | $714,342 | $714,342 | $112.15 | | |
| CE | County Current Expense | 0.3708482477 | $714,342 | $714,342 | $264.91 | | |
| CR | County Roads | 0.4584763726 | $714,342 | $714,342 | $327.51 | | |
| LCIB | Library Sno-Isle BOND (Camano Island) | 0.0396325772 | $714,342 | $714,342 | $28.31 | | |
| LIB | Library Sno-Isle GEN | 0.3153421757 | $714,342 | $714,342 | $225.26 | | |
| SCH205_401 | School 205-401 Enrichment | 1.2698420524 | $714,342 | $714,342 | $907.10 | | |
| SCH205BOND | School 205-401 BOND | 0.9396497583 | $714,342 | $714,342 | $671.23 | | |
| ST | State School | 1.3035497053 | $714,342 | $714,342 | $931.18 | | |
| ST2 | State School Part 2 | 0.8169543533 | $714,342 | $714,342 | $583.58 | | |
| | Total Tax Rate: | 7.3209764117 | | | | | |
| | | | | Taxes w/Current Exemptions: | $5,229.68 | | |
| | | | | Taxes w/o Exemptions: | $5,229.68 | | |
Improvement / Building
| Improvement #1: | RESIDENTIAL | State Code: | Y | 2288.0 sqft | Value: | $374,342 |
| Bathrooms: | 3 | Bedrooms: | 2 | | Ceiling: | DRYWALL PAINTED | Cooling: | HEAT PUMP/CONV/V | | Exterior Wall/Cover: | VINYL | Floor Covering: | HARDWOOD/CARP 60-40 | | Floor Structure: | WOOD W/SUBFLOOR | Foundation: | CONCRETE | | Interior Finish: | DRYWALL PAINT | Plumbing Fixture Cnt: | 13 | | Roof Slope: | 4" IN 12" | Roof Structure/Cover: | CJ ALUMINIUM HEAVY |
|
| | Type | Description | Class CD | Sub Class CD | Year Built | Area |
| | BAS | BASE/MAIN FLOOR | 3 | 0 | 1990 | 1588.0 |
| | UB8 | BASEMENT UNFINISHED 8" | 3 | 0 | 1990 | 812.0 |
| | DWN | DOWNSTAIRS LIVING AREA | 3 | 0 | 1990 | 700.0 |
| | AGR | ATTACHED GARAGE | 3 | 0 | 1990 | 576.0 |
| | OWP | OPEN WOOD PORCH W/STEPS | 3 | 0 | 1990 | 498.0 |
Sketch
Property Image
Land
| 1 | 14 | SQ (08001-12000) | 0.0000 | 0.00 | 1.00 | 0.00 | 1.00 | $340,000 | $0 |
Roll Value History
| 2026 | N/A | N/A | N/A | N/A | N/A |
| 2025 | $374,342 | $340,000 | $0 | $714,342 | $714,342 |
| 2024 | $379,188 | $330,000 | $0 | $709,188 | $709,188 |
| 2023 | $384,034 | $360,000 | $0 | $744,034 | $744,034 |
| 2022 | $344,773 | $260,000 | $0 | $604,773 | $604,773 |
| 2021 | $303,634 | $220,000 | $0 | $523,634 | $523,634 |
| 2020 | $296,376 | $190,000 | $0 | $486,376 | $486,376 |
| 2019 | $228,115 | $230,000 | $0 | $458,115 | $458,115 |
| 2018 | $228,818 | $200,000 | $0 | $428,818 | $428,818 |
| 2017 | $230,139 | $165,000 | $0 | $395,139 | $395,139 |
| 2016 | $228,109 | $135,000 | $0 | $363,109 | $363,109 |
| 2015 | $230,996 | $125,000 | $0 | $355,996 | $355,996 |
| 2014 | $233,885 | $125,000 | $0 | $358,885 | $358,885 |
| 2013 | $236,772 | $125,000 | $0 | $361,772 | $120,375 |
| 2012 | $239,660 | $120,000 | $0 | $359,660 | $120,375 |
| 2011 | $242,547 | $150,000 | $0 | $392,547 | $120,375 |
| 2010 | $224,668 | $204,413 | $0 | $429,081 | $120,375 |
| 2009 | $234,337 | $222,188 | $0 | $456,525 | $120,375 |
| 2008 | $247,914 | $247,073 | $0 | $494,987 | $120,375 |
| 2007 | $250,857 | $247,073 | $0 | $497,930 | $120,375 |
Deed and Sales History
| 1 | 12/07/2017 | QCD | Quit Claim Deed | HUSSEY, PAMILA S | WRIGHT JTWROS, JANET | | | $0.00 | 32469 | 4436611 |
| 2 | 10/16/2014 | QCD | Quit Claim Deed | WRIGHT, JANET | WRIGHT JTWROS, JANET | | | $146,000.00 | 17181 | 4367022 |
| 3 | 11/17/2000 | OTHER | Other - Misc. Documents | WRIGHT, LARRY W | WRIGHT, JANET | | | $0.00 | 68849 | 0 |
| 4 | 06/01/1988 | WD | Warranty Deed | LINDBECK, HARRY L | WRIGHT, LARRY W | | | $29,450.00 | 81985 | 88007351 |
| 5 | 01/01/1900 | OTHER | Other - Misc. Documents | Unknown | LINDBECK, HARRY L | | | $0.00 | 0 | 0 |
Payout Agreement
| No payout information available.. |