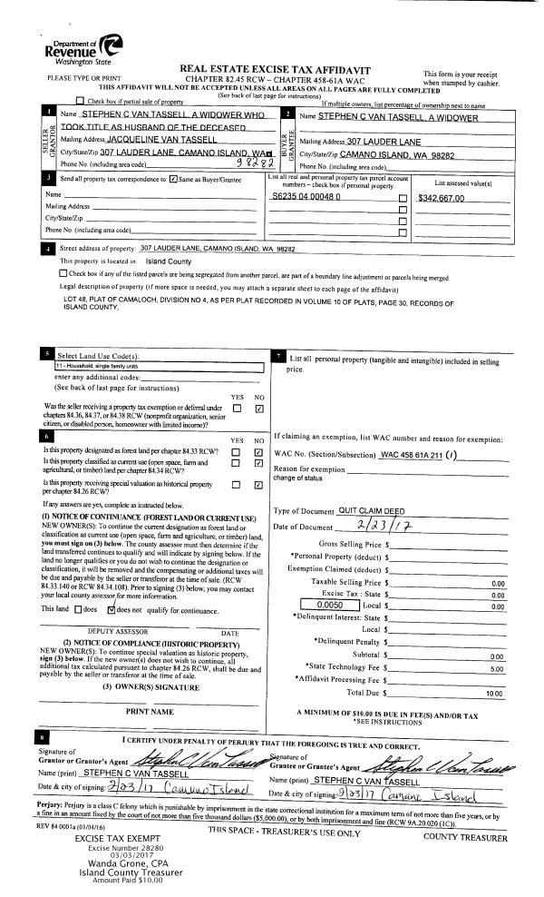
Property
Account |
| Property ID: | 359132 | Abbreviated Legal Description: | ROCKY PT TR 2 LOT 21 |
| Geographic ID: | S8035-02-00021-0 | Agent Code: | |
| Type: | Real | | |
| Tax Area: | 510 - APPRAISER-Stan/Cam Schl Dist, improved & 1 acre or less | Land Use Code | 11 |
| Open Space: | N | DFL | N |
| Historic Property: | N | Remodel Property: | N |
| Multi-Family Redevelopment: | N | | |
| Township: | | Section: | |
| Range: | |
Location |
| Address: | 995 N SUNSET DR CAMANO ISLAND, WA 98282 | Mapsco: | |
| Neighborhood: | North Camano | Map ID: | 554 |
| Neighborhood CD: | 06-C |
Owner |
| Name: | GILES, KRISTI SUE | Owner ID: | 312819 |
| Mailing Address: | 995 NORTH SUNSET DR CAMANO ISLAND, WA 98282 | % Ownership: | 100.0000000000% |
| | | Exemptions: | |
Taxes and Assessment Details
Values
| (+) Improvement Homesite Value: | + | $0 | |
| (+) Improvement Non-Homesite Value: | + | $498,202 | |
| (+) Land Homesite Value: | + | $0 | |
| (+) Land Non-Homesite Value: | + | $410,000 | |
| (+) Curr Use (HS): | + | $0 | $0 |
| (+) Curr Use (NHS): | + | $0 | $0 |
| | | -------------------------- | |
| (=) Market Value: | = | $908,202 | |
| (–) Productivity Loss: | – | $0 | |
| | | -------------------------- | |
| (=) Subtotal: | = | $908,202 | |
| (+) Senior Appraised Value: | + | $0 | |
| (+) Non-Senior Appraised Value: | + | $908,202 | |
| | | -------------------------- | |
| (=) Total Appraised Value: | = | $908,202 | |
| (–) Senior Exemption Loss: | – | $0 | |
| (–) Exemption Loss: | – | $0 | |
| | | -------------------------- | |
| (=) Taxable Value: | = | $908,202 | |
Taxing Jurisdiction
| Owner: | GILES, KRISTI SUE | | |
| % Ownership: | 100.0000000000% | | |
| Total Value: | $908,202 | | |
| Tax Area: | 510 - APPRAISER-Stan/Cam Schl Dist, improved & 1 acre or less |
| CF | Conservation Futures | 0.0316035091 | $908,202 | $908,202 | $28.70 | | |
| EMS1 | Fire & Rescue Dist #1 Camano GEN (EMS) | 0.3677864386 | $908,202 | $908,202 | $334.02 | | |
| FIRE1 | Fire & Rescue Dist #1 Camano GEN | 1.2502910536 | $908,202 | $908,202 | $1,135.52 | | |
| FIRE1BOND | Fire & Rescue Dist #1 Camano BOND | 0.1570001679 | $908,202 | $908,202 | $142.59 | | |
| CE | County Current Expense | 0.3708482477 | $908,202 | $908,202 | $336.81 | | |
| CR | County Roads | 0.4584763726 | $908,202 | $908,202 | $416.39 | | |
| LCIB | Library Sno-Isle BOND (Camano Island) | 0.0396325772 | $908,202 | $908,202 | $35.99 | | |
| LIB | Library Sno-Isle GEN | 0.3153421757 | $908,202 | $908,202 | $286.39 | | |
| SCH205_401 | School 205-401 Enrichment | 1.2698420524 | $908,202 | $908,202 | $1,153.27 | | |
| SCH205BOND | School 205-401 BOND | 0.9396497583 | $908,202 | $908,202 | $853.39 | | |
| ST | State School | 1.3035497053 | $908,202 | $908,202 | $1,183.89 | | |
| ST2 | State School Part 2 | 0.8169543533 | $908,202 | $908,202 | $741.96 | | |
| | Total Tax Rate: | 7.3209764117 | | | | | |
| | | | | Taxes w/Current Exemptions: | $6,648.92 | | |
| | | | | Taxes w/o Exemptions: | $6,648.92 | | |
Improvement / Building
| Improvement #1: | RESIDENTIAL | State Code: | Y | 2601.0 sqft | Value: | $498,202 |
| Bathrooms: | 2.5 | Bedrooms: | 3 | | Ceiling: | DRYWALL PAINTED | Cooling: | HEAT PUMP/CONV/V | | Exterior Wall/Cover: | SHINGLE | Floor Covering: | HARDWOOD/CARP 20-80 | | Floor Structure: | WOOD W/SUBFLOOR | Foundation: | CONCRETE | | Interior Finish: | DRYWALL PAINT | Plumbing Fixture Cnt: | 13 | | Roof Slope: | 6" IN 12" | Roof Structure/Cover: | CJ ASPHALT |
|
| | Type | Description | Class CD | Sub Class CD | Year Built | Area |
| | BAS | BASE/MAIN FLOOR | 4 | 0 | 1995 | 1961.0 |
| | OP1 | OPEN PORCH SLAB | 4 | 0 | 1995 | 904.0 |
| | OP4 | OPEN PORCH W/CEILING-ROOF | 4 | 0 | 1995 | 36.0 |
| | AGR | ATTACHED GARAGE | 4 | 0 | 1995 | 460.0 |
| | OWP | OPEN WOOD PORCH W/STEPS | 4 | 0 | 1995 | 726.2 |
| | DWN | DOWNSTAIRS LIVING AREA | 4 | 0 | 1995 | 640.0 |
| | UB8 | BASEMENT UNFINISHED 8" | 4 | 0 | 1995 | 400.0 |
Sketch
Property Image
Land
| 1 | 14 | SQ (08001-12000) | 0.0000 | 0.00 | 0.00 | 0.00 | 1.00 | $410,000 | $0 |
Roll Value History
| 2026 | N/A | N/A | N/A | N/A | N/A |
| 2025 | $498,202 | $410,000 | $0 | $908,202 | $908,202 |
| 2024 | $504,047 | $390,000 | $0 | $894,047 | $894,047 |
| 2023 | $509,890 | $400,000 | $0 | $909,890 | $909,890 |
| 2022 | $442,999 | $350,000 | $0 | $792,999 | $792,999 |
| 2021 | $389,805 | $250,000 | $0 | $639,805 | $639,805 |
| 2020 | $380,082 | $220,000 | $0 | $600,082 | $600,082 |
| 2019 | $285,742 | $290,000 | $0 | $575,742 | $575,742 |
| 2018 | $283,230 | $250,000 | $0 | $533,230 | $533,230 |
| 2017 | $303,222 | $165,000 | $0 | $468,222 | $468,222 |
| 2016 | $267,259 | $135,000 | $0 | $402,259 | $402,259 |
| 2015 | $270,561 | $100,000 | $0 | $370,561 | $370,561 |
| 2014 | $273,857 | $100,000 | $0 | $373,857 | $373,857 |
| 2013 | $277,158 | $100,000 | $0 | $377,158 | $377,158 |
| 2012 | $280,455 | $108,000 | $0 | $388,455 | $388,455 |
| 2011 | $283,756 | $135,000 | $0 | $418,756 | $418,756 |
| 2010 | $290,728 | $135,000 | $0 | $425,728 | $425,728 |
| 2009 | $303,582 | $150,000 | $0 | $453,582 | $453,582 |
| 2008 | $318,537 | $150,000 | $0 | $468,537 | $468,537 |
| 2007 | $322,771 | $150,000 | $0 | $472,771 | $472,771 |
Deed and Sales History
| 1 | 06/14/2024 | QCD | Quit Claim Deed | ENGLE, DANIEL PAUL | GILES, KRISTI SUE | | | $0.00 | 60377 | 4573657 |
| 2 | 06/19/2020 | QCD | Quit Claim Deed | GILES, KRISTI S | GILES, KRISTI S | | | $0.00 | 43510 | 4489627 |
| 3 | 07/12/2017 | QCD | Quit Claim Deed | GILES, KRISTI S | GILES, KRISTI S | | | $250,000.00 | 30224 | 4426436 |
| 4 | 01/25/2017 | WD | Warranty Deed | FISCHER TTEE, SORELL H | GILES, KRISTI S | | | $469,000.00 | 27911 | 4416174 |
| 5 | 01/19/2007 | QCD | Quit Claim Deed | FISCHER, ROBERT C | FISCHER TTEE, SORELL H | | | $0.00 | 70319 | 4193005 |
| 6 | 10/17/2003 | WD | Warranty Deed | GRESLI, THOMAS A | FISCHER, ROBERT C | | | $395,000.00 | 34819 | 4080495 |
| 7 | 05/01/1991 | WD | Warranty Deed | MONSON, FRANCES M | GRESLI, THOMAS A | | | $54,950.00 | 11780 | 91007646 |
Payout Agreement
| No payout information available.. |