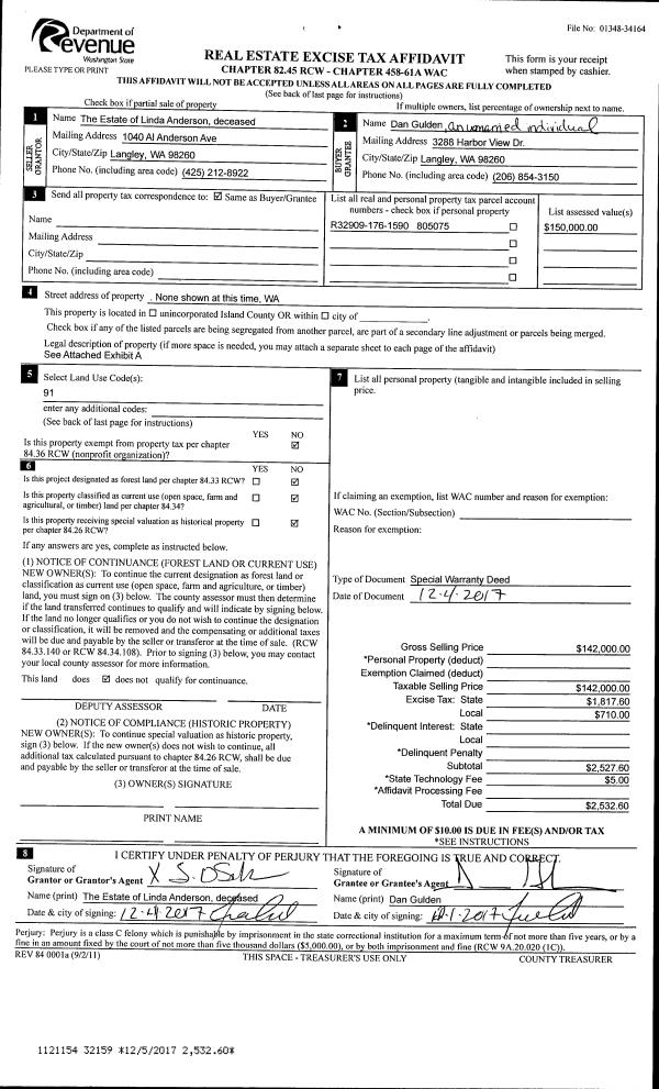
Property
Account |
| Property ID: | 359196 | Abbreviated Legal Description: | ROCKY PT TR 2 LOT 27 |
| Geographic ID: | S8035-02-00027-0 | Agent Code: | |
| Type: | Real | | |
| Tax Area: | 510 - APPRAISER-Stan/Cam Schl Dist, improved & 1 acre or less | Land Use Code | 11 |
| Open Space: | N | DFL | N |
| Historic Property: | N | Remodel Property: | N |
| Multi-Family Redevelopment: | N | | |
| Township: | | Section: | |
| Range: | |
Location |
| Address: | 770 GLADSTONE DR CAMANO ISLAND, WA 98282 | Mapsco: | |
| Neighborhood: | North Camano | Map ID: | 554 |
| Neighborhood CD: | 06-C |
Owner |
| Name: | CODDINGTON, JEFFREY DAY | Owner ID: | 282492 |
| Mailing Address: | JUDY L CODDINGTON 770 GLADSTONE DR CAMANO ISLAND, WA 98282 | % Ownership: | 100.0000000000% |
| | | Exemptions: | |
Taxes and Assessment Details
Values
| (+) Improvement Homesite Value: | + | $0 | |
| (+) Improvement Non-Homesite Value: | + | $406,868 | |
| (+) Land Homesite Value: | + | $0 | |
| (+) Land Non-Homesite Value: | + | $410,000 | |
| (+) Curr Use (HS): | + | $0 | $0 |
| (+) Curr Use (NHS): | + | $0 | $0 |
| | | -------------------------- | |
| (=) Market Value: | = | $816,868 | |
| (–) Productivity Loss: | – | $0 | |
| | | -------------------------- | |
| (=) Subtotal: | = | $816,868 | |
| (+) Senior Appraised Value: | + | $0 | |
| (+) Non-Senior Appraised Value: | + | $816,868 | |
| | | -------------------------- | |
| (=) Total Appraised Value: | = | $816,868 | |
| (–) Senior Exemption Loss: | – | $0 | |
| (–) Exemption Loss: | – | $0 | |
| | | -------------------------- | |
| (=) Taxable Value: | = | $816,868 | |
Taxing Jurisdiction
| Owner: | CODDINGTON, JEFFREY DAY | | |
| % Ownership: | 100.0000000000% | | |
| Total Value: | $816,868 | | |
| Tax Area: | 510 - APPRAISER-Stan/Cam Schl Dist, improved & 1 acre or less |
| CF | Conservation Futures | 0.0316035091 | $816,868 | $816,868 | $25.82 | | |
| EMS1 | Fire & Rescue Dist #1 Camano GEN (EMS) | 0.3677864386 | $816,868 | $816,868 | $300.43 | | |
| FIRE1 | Fire & Rescue Dist #1 Camano GEN | 1.2502910536 | $816,868 | $816,868 | $1,021.32 | | |
| FIRE1BOND | Fire & Rescue Dist #1 Camano BOND | 0.1570001679 | $816,868 | $816,868 | $128.25 | | |
| CE | County Current Expense | 0.3708482477 | $816,868 | $816,868 | $302.93 | | |
| CR | County Roads | 0.4584763726 | $816,868 | $816,868 | $374.51 | | |
| LCIB | Library Sno-Isle BOND (Camano Island) | 0.0396325772 | $816,868 | $816,868 | $32.37 | | |
| LIB | Library Sno-Isle GEN | 0.3153421757 | $816,868 | $816,868 | $257.59 | | |
| SCH205_401 | School 205-401 Enrichment | 1.2698420524 | $816,868 | $816,868 | $1,037.29 | | |
| SCH205BOND | School 205-401 BOND | 0.9396497583 | $816,868 | $816,868 | $767.57 | | |
| ST | State School | 1.3035497053 | $816,868 | $816,868 | $1,064.83 | | |
| ST2 | State School Part 2 | 0.8169543533 | $816,868 | $816,868 | $667.34 | | |
| | Total Tax Rate: | 7.3209764117 | | | | | |
| | | | | Taxes w/Current Exemptions: | $5,980.25 | | |
| | | | | Taxes w/o Exemptions: | $5,980.25 | | |
Improvement / Building
| Improvement #1: | RESIDENTIAL | State Code: | Y | 2556.0 sqft | Value: | $406,868 |
| Bathrooms: | 3 | Bedrooms: | 4 | | Ceiling: | DRYWALL PAINTED | Cooling: | HEAT PUMP/CONV/V | | Exterior Wall/Cover: | PLY/HARDBOARD T-111 | Floor Covering: | HARDWOOD/CARP 20-80 | | Floor Structure: | WOOD W/SUBFLOOR | Foundation: | CONCRETE | | Interior Finish: | DRYWALL PAINT | Plumbing Fixture Cnt: | 15 | | Roof Slope: | 4" IN 12" | Roof Structure/Cover: | CJ ASPHALT |
|
| | Type | Description | Class CD | Sub Class CD | Year Built | Area |
| | BAS | BASE/MAIN FLOOR | 3 | 0 | 1979 | 1278.0 |
| | OP1 | OPEN PORCH SLAB | 3 | 0 | 1979 | 480.0 |
| | OP3 | OPEN PORCH W/ROOF | 3 | 0 | 1979 | 70.0 |
| | AGR | ATTACHED GARAGE | 3 | 0 | 1979 | 576.0 |
| | DWN | DOWNSTAIRS LIVING AREA | 3 | 0 | 1979 | 1278.0 |
| | OWP | OPEN WOOD PORCH W/STEPS | 3 | 0 | 1979 | 712.0 |
Sketch
Property Image
Land
| 1 | 14 | SQ (08001-12000) | 0.0000 | 9583.20 | 0.00 | 0.00 | 1.00 | $410,000 | $0 |
Roll Value History
| 2026 | N/A | N/A | N/A | N/A | N/A |
| 2025 | $406,868 | $410,000 | $0 | $816,868 | $816,868 |
| 2024 | $411,640 | $390,000 | $0 | $801,640 | $801,640 |
| 2023 | $416,415 | $400,000 | $0 | $816,415 | $816,415 |
| 2022 | $353,188 | $350,000 | $0 | $703,188 | $703,188 |
| 2021 | $310,814 | $250,000 | $0 | $560,814 | $560,814 |
| 2020 | $302,816 | $220,000 | $0 | $522,816 | $522,816 |
| 2019 | $233,422 | $290,000 | $0 | $523,422 | $523,422 |
| 2018 | $234,098 | $250,000 | $0 | $484,098 | $484,098 |
| 2017 | $222,963 | $165,000 | $0 | $387,963 | $387,963 |
| 2016 | $220,310 | $135,000 | $0 | $355,310 | $355,310 |
| 2015 | $222,963 | $100,000 | $0 | $322,963 | $322,963 |
| 2014 | $225,617 | $100,000 | $0 | $325,617 | $325,617 |
| 2013 | $228,272 | $100,000 | $0 | $328,272 | $328,272 |
| 2012 | $230,926 | $108,000 | $0 | $338,926 | $338,926 |
| 2011 | $233,580 | $135,000 | $0 | $368,580 | $368,580 |
| 2010 | $234,466 | $135,000 | $0 | $369,466 | $369,466 |
| 2009 | $244,558 | $150,000 | $0 | $394,558 | $394,558 |
| 2008 | $247,668 | $150,000 | $0 | $397,668 | $397,668 |
| 2007 | $250,779 | $150,000 | $0 | $400,779 | $400,779 |
Deed and Sales History
| 1 | 10/10/2017 | WD | Warranty Deed | REYNOLDS, MARK A | CODDINGTON, JEFFREY DAY | | | $482,000.00 | 31562 | 4432339 |
| 2 | 10/08/2003 | WD | Warranty Deed | BROWN, LARRY D | REYNOLDS, MARK A | | | $255,000.00 | 34670 | 4079426 |
| 3 | 07/23/2002 | QCD | Quit Claim Deed | BROWN, FERRYL A | BROWN, LARRY D | | | $0.00 | 22855 | 4026485 |
| 4 | 09/01/1997 | WD | Warranty Deed | JOHNSON, TRUDY B | BROWN, FERRYL A | | | $228,000.00 | 73150 | 97014859 |
| 5 | 02/01/1992 | QCD | Quit Claim Deed | MADDY, TRUDY | JOHNSON, TRUDY B | | | $0.00 | 22024 | 92009692 |
| 6 | 10/01/1989 | WD | Warranty Deed | MCGARRY, DAVID C | MADDY, TRUDY | | | $120,000.00 | 94672 | 89015224 |
| 7 | 06/01/1989 | QCD | Quit Claim Deed | MCGARRY, DAVID C | MCGARRY, DAVID C | | | $0.00 | 92680 | 89009033 |
| 8 | 02/01/1983 | EXECUTORD | Executor Deed | MCGARRY, DAVID C | MCGARRY, DAVID C | | | $0.00 | 30309 | 405612 |
| 9 | 01/01/1900 | OTHER | Other - Misc. Documents | Unknown | MCGARRY, DAVID C | | | $0.00 | 0 | 0 |
Payout Agreement
| No payout information available.. |