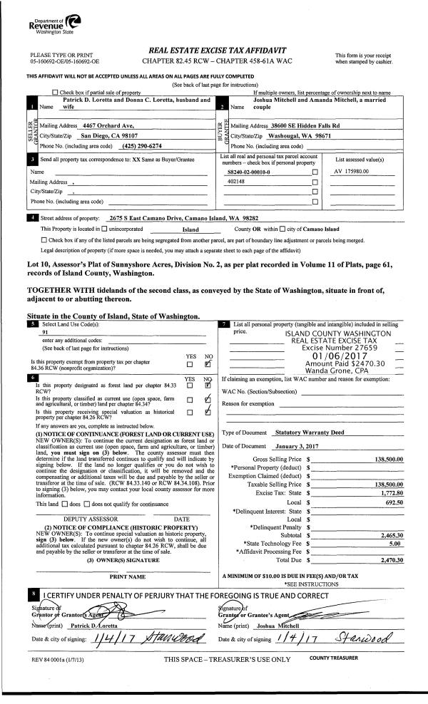
Property
Account |
| Property ID: | 359276 | Abbreviated Legal Description: | ROCKY PT TR 2 LOT 35 |
| Geographic ID: | S8035-02-00035-0 | Agent Code: | |
| Type: | Real | | |
| Tax Area: | 510 - APPRAISER-Stan/Cam Schl Dist, improved & 1 acre or less | Land Use Code | 11 |
| Open Space: | N | DFL | N |
| Historic Property: | N | Remodel Property: | N |
| Multi-Family Redevelopment: | N | | |
| Township: | | Section: | |
| Range: | |
Location |
| Address: | 712 GLADSTONE DR CAMANO ISLAND, WA 98282 | Mapsco: | |
| Neighborhood: | North Camano | Map ID: | 554 |
| Neighborhood CD: | 06-C |
Owner |
| Name: | VANDEPUTTE, CRAIG M | Owner ID: | 294192 |
| Mailing Address: | SHERIDAN L HUSTON 712 GLADSTONE DR CAMANO ISLAND, WA 98282 | % Ownership: | 100.0000000000% |
| | | Exemptions: | |
Taxes and Assessment Details
Values
| (+) Improvement Homesite Value: | + | $0 | |
| (+) Improvement Non-Homesite Value: | + | $303,249 | |
| (+) Land Homesite Value: | + | $0 | |
| (+) Land Non-Homesite Value: | + | $420,000 | |
| (+) Curr Use (HS): | + | $0 | $0 |
| (+) Curr Use (NHS): | + | $0 | $0 |
| | | -------------------------- | |
| (=) Market Value: | = | $723,249 | |
| (–) Productivity Loss: | – | $0 | |
| | | -------------------------- | |
| (=) Subtotal: | = | $723,249 | |
| (+) Senior Appraised Value: | + | $0 | |
| (+) Non-Senior Appraised Value: | + | $723,249 | |
| | | -------------------------- | |
| (=) Total Appraised Value: | = | $723,249 | |
| (–) Senior Exemption Loss: | – | $0 | |
| (–) Exemption Loss: | – | $0 | |
| | | -------------------------- | |
| (=) Taxable Value: | = | $723,249 | |
Taxing Jurisdiction
| Owner: | VANDEPUTTE, CRAIG M | | |
| % Ownership: | 100.0000000000% | | |
| Total Value: | $723,249 | | |
| Tax Area: | 510 - APPRAISER-Stan/Cam Schl Dist, improved & 1 acre or less |
| CF | Conservation Futures | 0.0316035091 | $723,249 | $723,249 | $22.86 | | |
| EMS1 | Fire & Rescue Dist #1 Camano GEN (EMS) | 0.3677864386 | $723,249 | $723,249 | $266.00 | | |
| FIRE1 | Fire & Rescue Dist #1 Camano GEN | 1.2502910536 | $723,249 | $723,249 | $904.27 | | |
| FIRE1BOND | Fire & Rescue Dist #1 Camano BOND | 0.1570001679 | $723,249 | $723,249 | $113.55 | | |
| CE | County Current Expense | 0.3708482477 | $723,249 | $723,249 | $268.22 | | |
| CR | County Roads | 0.4584763726 | $723,249 | $723,249 | $331.59 | | |
| LCIB | Library Sno-Isle BOND (Camano Island) | 0.0396325772 | $723,249 | $723,249 | $28.66 | | |
| LIB | Library Sno-Isle GEN | 0.3153421757 | $723,249 | $723,249 | $228.07 | | |
| SCH205_401 | School 205-401 Enrichment | 1.2698420524 | $723,249 | $723,249 | $918.41 | | |
| SCH205BOND | School 205-401 BOND | 0.9396497583 | $723,249 | $723,249 | $679.60 | | |
| ST | State School | 1.3035497053 | $723,249 | $723,249 | $942.79 | | |
| ST2 | State School Part 2 | 0.8169543533 | $723,249 | $723,249 | $590.86 | | |
| | Total Tax Rate: | 7.3209764117 | | | | | |
| | | | | Taxes w/Current Exemptions: | $5,294.88 | | |
| | | | | Taxes w/o Exemptions: | $5,294.88 | | |
Improvement / Building
| Improvement #1: | RESIDENTIAL | State Code: | Y | 2000.0 sqft | Value: | $303,249 |
| Bathrooms: | 2.75 | Bedrooms: | 3 | | Ceiling: | DRYWALL PAINTED | Cooling: | HEAT PUMP/CONV/V | | Exterior Wall/Cover: | WOOD SIDING | Floor Covering: | HARDWOOD/CARP 80-20 | | Floor Structure: | WOOD W/SUBFLOOR | Foundation: | CONCRETE | | Interior Finish: | DRYWALL PAINT | Plumbing Fixture Cnt: | 12 | | Roof Slope: | 4" IN 12" | Roof Structure/Cover: | CJ ASPHALT |
|
| | Type | Description | Class CD | Sub Class CD | Year Built | Area |
| | BAS | BASE/MAIN FLOOR | 3 | 0 | 1968 | 2000.0 |
| | OWP | OPEN WOOD PORCH W/STEPS | 3 | 0 | 1968 | 918.0 |
| | OP4 | OPEN PORCH W/CEILING-ROOF | 3 | 0 | 1968 | 54.0 |
Sketch
Property Image
Land
| 1 | 15 | SQ (12001-21780) | 0.0000 | 0.00 | 0.00 | 0.00 | 1.00 | $420,000 | $0 |
Roll Value History
| 2026 | N/A | N/A | N/A | N/A | N/A |
| 2025 | $303,249 | $420,000 | $0 | $723,249 | $723,249 |
| 2024 | $307,280 | $410,000 | $0 | $717,280 | $717,280 |
| 2023 | $311,311 | $400,000 | $0 | $711,311 | $711,311 |
| 2022 | $278,561 | $350,000 | $0 | $628,561 | $628,561 |
| 2021 | $245,396 | $250,000 | $0 | $495,396 | $495,396 |
| 2020 | $239,427 | $220,000 | $0 | $459,427 | $459,427 |
| 2019 | $182,267 | $290,000 | $0 | $472,267 | $472,267 |
| 2018 | $182,841 | $250,000 | $0 | $432,841 | $432,841 |
| 2017 | $174,762 | $165,000 | $0 | $339,762 | $339,762 |
| 2016 | $169,072 | $135,000 | $0 | $304,072 | $304,072 |
| 2015 | $171,239 | $100,000 | $0 | $271,239 | $271,239 |
| 2014 | $173,407 | $100,000 | $0 | $273,407 | $273,407 |
| 2013 | $175,576 | $100,000 | $0 | $275,576 | $275,576 |
| 2012 | $177,742 | $108,000 | $0 | $285,742 | $285,742 |
| 2011 | $179,911 | $135,000 | $0 | $314,911 | $314,911 |
| 2010 | $148,970 | $135,000 | $0 | $283,970 | $283,970 |
| 2009 | $155,583 | $150,000 | $0 | $305,583 | $305,583 |
| 2008 | $157,752 | $150,000 | $0 | $307,752 | $307,752 |
| 2007 | $159,903 | $150,000 | $0 | $309,903 | $309,903 |
Deed and Sales History
| 1 | 05/05/2020 | QCD | Quit Claim Deed | HUSTON JTWROS, SHERIDAN L | VANDEPUTTE, CRAIG M | | | $0.00 | 43001 | 4486531 |
| 2 | 02/03/2005 | QCD | Quit Claim Deed | HILL, SHERIDAN L | HUSTON JTWROS, SHERIDAN L | | | $41,803.00 | 50500 | 4125239 |
| 3 | 12/01/1994 | DECREE | Divorce Decree/Legal Separation | HILL, GREGORY C | HILL, SHERIDAN L | | | $0.00 | 50497 | 95002431 |
| 4 | 06/01/1993 | WD | Warranty Deed | MCCLAY, DARLENE J | HILL, GREGORY C | | | $147,950.00 | 32175 | 93011239 |
| 5 | 03/01/1993 | OTHER | Other - Misc. Documents | SHIM, DARLENE J | MCCLAY, DARLENE J | | | $0.00 | 65259 | 0 |
| 6 | 06/01/1979 | EZ | Easement | MCCLAY, DARLENE J | SHIM, DARLENE J | | | $0.00 | 58636 | 0 |
| 7 | 11/01/1977 | OTHER | Other - Misc. Documents | Unknown | MCCLAY, DARLENE J | | | $0.00 | 585480 | 0 |
Payout Agreement
| No payout information available.. |