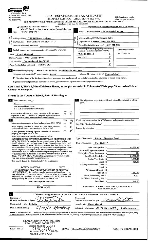
Property
Account |
| Property ID: | 360086 | Abbreviated Legal Description: | ROLL HILL LOT 4 BLK 1 |
| Geographic ID: | S8050-00-01004-0 | Agent Code: | |
| Type: | Real | | |
| Tax Area: | 330 - APPRAISER-Cpvl Schl Dist, Special Dist, improved & less than 1 acre | Land Use Code | 11 |
| Open Space: | N | DFL | N |
| Historic Property: | N | Remodel Property: | N |
| Multi-Family Redevelopment: | N | | |
| Township: | | Section: | |
| Range: | |
Location |
| Address: | 1143 SYDNEY ST OAK HARBOR, WA 98277 | Mapsco: | |
| Neighborhood: | Cycle 2 | Map ID: | 148 |
| Neighborhood CD: | 2 |
Owner |
| Name: | LAWSON, KENNETH M | Owner ID: | 294248 |
| Mailing Address: | ARLENE MARIE JONES 1143 SIDNEY ST OAK HARBOR, WA 98277 | % Ownership: | 100.0000000000% |
| | | Exemptions: | SNR/DSBL |
Taxes and Assessment Details
Values
| (+) Improvement Homesite Value: | + | $84,768 | |
| (+) Improvement Non-Homesite Value: | + | $84,767 | |
| (+) Land Homesite Value: | + | $110,000 | |
| (+) Land Non-Homesite Value: | + | $110,000 | |
| (+) Curr Use (HS): | + | $0 | $0 |
| (+) Curr Use (NHS): | + | $0 | $0 |
| | | -------------------------- | |
| (=) Market Value: | = | $389,535 | |
| (–) Productivity Loss: | – | $0 | |
| | | -------------------------- | |
| (=) Subtotal: | = | $389,535 | |
| (+) Senior Appraised Value: | + | $129,328 | |
| (+) Non-Senior Appraised Value: | + | $194,767 | |
| | | -------------------------- | |
| (=) Total Appraised Value: | = | $324,095 | |
| (–) Senior Exemption Loss: | – | $77,597 | |
| (–) Exemption Loss: | – | $0 | |
| | | -------------------------- | |
| (=) Taxable Value: | = | $246,498 | |
Taxing Jurisdiction
| Owner: | LAWSON, KENNETH M | | |
| % Ownership: | 100.0000000000% | | |
| Total Value: | $389,535 | | |
| Tax Area: | 330 - APPRAISER-Cpvl Schl Dist, Special Dist, improved & less than 1 acre |
| CF | Conservation Futures | 0.0316035091 | $389,535 | $246,498 | $7.79 | | |
| CEM2 | Cemetery #2 | 0.0095056933 | $389,535 | $246,498 | $2.34 | | |
| FIRE2 | Fire & Rescue Dist #2 N Whidbey GEN | 0.5475949600 | $389,535 | $246,498 | $134.98 | | |
| HOBOND | Hospital BOND | 0.0000000000 | $389,535 | $194,767 | $37.22 | | |
| HOGEN | Hospital GEN | 0.3902502903 | $389,535 | $246,498 | $96.20 | | |
| CE | County Current Expense | 0.3708482477 | $389,535 | $246,498 | $91.41 | | |
| CR | County Roads | 0.4584763726 | $389,535 | $246,498 | $113.01 | | |
| ISLANDEMS | Hospital GEN (EMS) | 0.5000000000 | $389,535 | $246,498 | $123.25 | | |
| LIB | Library Sno-Isle GEN | 0.3153421757 | $389,535 | $246,498 | $77.73 | | |
| LIBCAP | Library Sno-Isle BOND (Cap Fac Imp Area) | 0.0000000000 | $389,535 | $194,767 | $10.58 | | |
| POCOUP | Port of Coupeville GEN | 0.1093371703 | $389,535 | $246,498 | $26.95 | | |
| POCOUPIDD | Port of Coupeville IDD | 0.3409740022 | $389,535 | $246,498 | $84.05 | | |
| COUPSDTECH | School 204 CP (TECH) | 0.0000000000 | $389,535 | $194,767 | $146.96 | | |
| SCH204MO | School 204 Enrichment | 0.0000000000 | $389,535 | $194,767 | $130.81 | | |
| ST | State School | 1.3035497053 | $389,535 | $246,498 | $321.32 | | |
| ST2 | State School Part 2 | 0.0000000000 | $389,535 | $194,767 | $159.12 | | |
| | Total Tax Rate: | 4.3774821265 | | | | | |
| | | | | Taxes w/Current Exemptions: | $1,563.72 | | |
| | | | | Taxes w/o Exemptions: | $2,674.57 | | |
Improvement / Building
| Improvement #1: | MANUFACTURED HOME | State Code: | Y | 1414.0 sqft | Value: | $169,535 |
| Bathrooms: | 1 | Bedrooms: | 2 | | Ceiling: | PLASTER PAINTED | Cooling: | EVAP NO DUCT | | Exterior Wall/Cover: | VINYL | Floor Covering: | CARPET 100% | | Floor Structure: | SLAB ON GRADE | Foundation: | SLAB | | Heating: | FHA ELECTRIC | Interior Finish: | PLASTER | | Roof Slope: | FLAT | Roof Structure/Cover: | CJ ALUMINIUM HEAVY |
|
| | Type | Description | Class CD | Sub Class CD | Year Built | Area |
| | BAS | BASE/MAIN FLOOR | 4 | 0 | 2020 | 1414.0 |
| | OWP | OPEN WOOD PORCH W/STEPS | 4 | 0 | 2020 | 315.0 |
| | OWC | OPEN WOOD PORCH W/STEPS/ROOF/C | 4 | 0 | 2020 | 238.0 |
Sketch
Property Image
Land
| 1 | 16 | AC (00.51-01.00) | 0.7200 | 31363.20 | 0.00 | 0.00 | 1.00 | $220,000 | $0 |
Roll Value History
| 2026 | N/A | N/A | N/A | N/A | N/A |
| 2025 | $169,535 | $220,000 | $0 | $389,535 | $246,498 |
| 2024 | $173,142 | $210,000 | $0 | $383,142 | $243,302 |
| 2023 | $152,128 | $220,000 | $0 | $372,128 | $237,795 |
| 2022 | $139,173 | $220,000 | $0 | $359,173 | $231,317 |
| 2021 | $122,251 | $180,000 | $0 | $302,251 | $202,856 |
| 2020 | $118,655 | $140,000 | $0 | $258,655 | $181,058 |
| 2019 | $0 | $65,000 | $0 | $65,000 | $65,000 |
| 2018 | $0 | $7,000 | $0 | $7,000 | $7,000 |
| 2017 | $0 | $5,000 | $0 | $5,000 | $5,000 |
| 2016 | $0 | $5,000 | $0 | $5,000 | $5,000 |
| 2015 | $0 | $5,000 | $0 | $5,000 | $5,000 |
| 2014 | $0 | $5,000 | $0 | $5,000 | $5,000 |
| 2013 | $0 | $5,000 | $0 | $5,000 | $5,000 |
| 2012 | $0 | $6,800 | $0 | $6,800 | $6,800 |
| 2011 | $0 | $6,800 | $0 | $6,800 | $6,800 |
| 2010 | $0 | $6,800 | $0 | $6,800 | $6,800 |
| 2009 | $0 | $7,440 | $0 | $7,440 | $7,440 |
Deed and Sales History
| 1 | 05/14/2020 | QCD | Quit Claim Deed | LAWSON, KENNETH M | LAWSON, KENNETH M | | | $0.00 | 43065 | 4486878 |
| 2 | 05/01/2017 | WD | Warranty Deed | BLAKE, JEFFREY A | LAWSON, KENNETH M | | | $297,000.00 | 29136 | 4421815 |
|   | |
| 3 | 10/02/2009 | WD | Warranty Deed | WALLACE, CYNTHIA L | BLAKE, JEFFREY A | | | $7,526.00 | 92635 | 4262775 |
| 4 | 12/31/2007 | WD | Warranty Deed | ZACHAUKIRK, JOHN KIRK | WALLACE, CYNTHIA L | | | $7,880.00 | 80129 | 4219940 |
| 5 | 08/07/2003 | WD | Warranty Deed | GARDNER, JACK A | ZACHAUKIRK, JOHN KIRK | | | $5,000.00 | 34129 | 4075181 |
| 6 | 06/01/1989 | QCD | Quit Claim Deed | DRYDEN, RUSSELL T | GARDNER, JACK A | | | $0.00 | 92390 | 89008199 |
| 7 | 01/01/1900 | OTHER | Other - Misc. Documents | Unknown | DRYDEN, RUSSELL T | | | $0.00 | 0 | 0 |
Payout Agreement
| No payout information available.. |