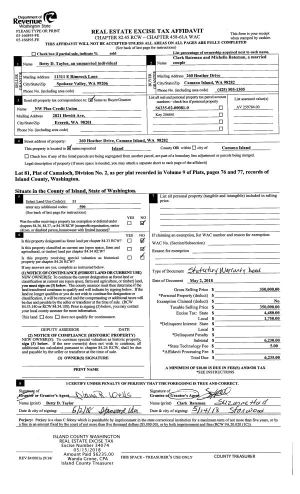
Property
Account |
| Property ID: | 360353 | Abbreviated Legal Description: | ROLL HILL S 66' OF LOT 19 BLK 1 TGW LOT 20 BLK 1 EX S66' |
| Geographic ID: | S8050-00-01019-2 | Agent Code: | |
| Type: | Real | | |
| Tax Area: | 339 - APPRAISER-Cpvl Schl Dist, Special Dist, vacant & 50 acres or less | Land Use Code | 99 |
| Open Space: | N | DFL | N |
| Historic Property: | N | Remodel Property: | N |
| Multi-Family Redevelopment: | N | | |
| Township: | | Section: | |
| Range: | |
Location |
| Address: | | Mapsco: | |
| Neighborhood: | Cycle 2 | Map ID: | 146 |
| Neighborhood CD: | 2 |
Owner |
| Name: | GONZALEZ, FROYLAN E | Owner ID: | 299144 |
| Mailing Address: | NORA E GONZALEZ 4116 PUEBLO HEIGHTS MOUNT VERNON, WA 98273 | % Ownership: | 100.0000000000% |
| | | Exemptions: | |
Taxes and Assessment Details
Values
| (+) Improvement Homesite Value: | + | $0 | |
| (+) Improvement Non-Homesite Value: | + | $0 | |
| (+) Land Homesite Value: | + | $0 | |
| (+) Land Non-Homesite Value: | + | $100,000 | |
| (+) Curr Use (HS): | + | $0 | $0 |
| (+) Curr Use (NHS): | + | $0 | $0 |
| | | -------------------------- | |
| (=) Market Value: | = | $100,000 | |
| (–) Productivity Loss: | – | $0 | |
| | | -------------------------- | |
| (=) Subtotal: | = | $100,000 | |
| (+) Senior Appraised Value: | + | $0 | |
| (+) Non-Senior Appraised Value: | + | $100,000 | |
| | | -------------------------- | |
| (=) Total Appraised Value: | = | $100,000 | |
| (–) Senior Exemption Loss: | – | $0 | |
| (–) Exemption Loss: | – | $0 | |
| | | -------------------------- | |
| (=) Taxable Value: | = | $100,000 | |
Taxing Jurisdiction
| Owner: | GONZALEZ, FROYLAN E | | |
| % Ownership: | 100.0000000000% | | |
| Total Value: | $100,000 | | |
| Tax Area: | 339 - APPRAISER-Cpvl Schl Dist, Special Dist, vacant & 50 acres or less |
| CF | Conservation Futures | 0.0316035091 | $100,000 | $100,000 | $3.16 | | |
| CEM2 | Cemetery #2 | 0.0095056933 | $100,000 | $100,000 | $0.95 | | |
| HOBOND | Hospital BOND | 0.1910887512 | $100,000 | $100,000 | $19.11 | | |
| HOGEN | Hospital GEN | 0.3902502903 | $100,000 | $100,000 | $39.03 | | |
| CE | County Current Expense | 0.3708482477 | $100,000 | $100,000 | $37.08 | | |
| CR | County Roads | 0.4584763726 | $100,000 | $100,000 | $45.85 | | |
| ISLANDEMS | Hospital GEN (EMS) | 0.5000000000 | $100,000 | $100,000 | $50.00 | | |
| LIB | Library Sno-Isle GEN | 0.3153421757 | $100,000 | $100,000 | $31.53 | | |
| LIBCAP | Library Sno-Isle BOND (Cap Fac Imp Area) | 0.0543427938 | $100,000 | $100,000 | $5.43 | | |
| POCOUP | Port of Coupeville GEN | 0.1093371703 | $100,000 | $100,000 | $10.93 | | |
| POCOUPIDD | Port of Coupeville IDD | 0.3409740022 | $100,000 | $100,000 | $34.10 | | |
| COUPSDTECH | School 204 CP (TECH) | 0.7545480007 | $100,000 | $100,000 | $75.45 | | |
| SCH204MO | School 204 Enrichment | 0.6716186034 | $100,000 | $100,000 | $67.16 | | |
| ST | State School | 1.3035497053 | $100,000 | $100,000 | $130.35 | | |
| ST2 | State School Part 2 | 0.8169543533 | $100,000 | $100,000 | $81.70 | | |
| | Total Tax Rate: | 6.3184396689 | | | | | |
| | | | | Taxes w/Current Exemptions: | $631.83 | | |
| | | | | Taxes w/o Exemptions: | $631.83 | | |
Improvement / Building
Sketch
| No sketches available for this property. |
Property Image
Land
| 1 | 16 | AC (00.51-01.00) | 0.9100 | 39639.60 | 0.00 | 0.00 | 1.00 | $100,000 | $0 |
Roll Value History
| 2026 | N/A | N/A | N/A | N/A | N/A |
| 2025 | $0 | $100,000 | $0 | $100,000 | $100,000 |
| 2024 | $0 | $100,000 | $0 | $100,000 | $100,000 |
| 2023 | $0 | $100,000 | $0 | $100,000 | $100,000 |
| 2022 | $0 | $80,000 | $0 | $80,000 | $80,000 |
| 2021 | $0 | $60,000 | $0 | $60,000 | $60,000 |
| 2020 | $0 | $60,000 | $0 | $60,000 | $60,000 |
| 2019 | $0 | $65,000 | $0 | $65,000 | $65,000 |
| 2018 | $0 | $67,000 | $0 | $67,000 | $67,000 |
| 2017 | $0 | $60,000 | $0 | $60,000 | $60,000 |
| 2016 | $0 | $40,000 | $0 | $40,000 | $40,000 |
| 2015 | $0 | $45,000 | $0 | $45,000 | $45,000 |
| 2014 | $0 | $55,000 | $0 | $55,000 | $55,000 |
| 2013 | $0 | $40,000 | $0 | $40,000 | $40,000 |
| 2012 | $0 | $46,240 | $0 | $46,240 | $46,240 |
| 2011 | $0 | $46,240 | $0 | $46,240 | $46,240 |
| 2010 | $0 | $46,240 | $0 | $46,240 | $46,240 |
| 2009 | $0 | $50,592 | $0 | $50,592 | $50,592 |
| 2008 | $0 | $40,920 | $0 | $40,920 | $40,920 |
| 2007 | $0 | $52,800 | $0 | $52,800 | $52,800 |
Deed and Sales History
| 1 | 04/22/2021 | WD | Warranty Deed | MOTTER, PAUL D | GONZALEZ, FROYLAN E | | | $26,500.00 | 48036 | 4517923 |
| 2 | 08/16/2018 | BARGSLD | Bargain And Sale Deed | KING, RICHARD A | MOTTER, PAUL D | | | $5,000.00 | 35541 | 4450232 |
| 3 | 01/01/1991 | QCD | Quit Claim Deed | LARSEN, EDWARD | KING, RICHARD A | | | $500.00 | 11148 | 91004817 |
| 4 | 01/01/1988 | QCD | Quit Claim Deed | LARSEN, ROBERT N | LARSEN, EDWARD | | | $0.00 | 80167 | 88001135 |
| 5 | 01/01/1900 | OTHER | Other - Misc. Documents | Unknown | LARSEN, ROBERT N | | | $0.00 | 0 | 0 |
Payout Agreement
| No payout information available.. |