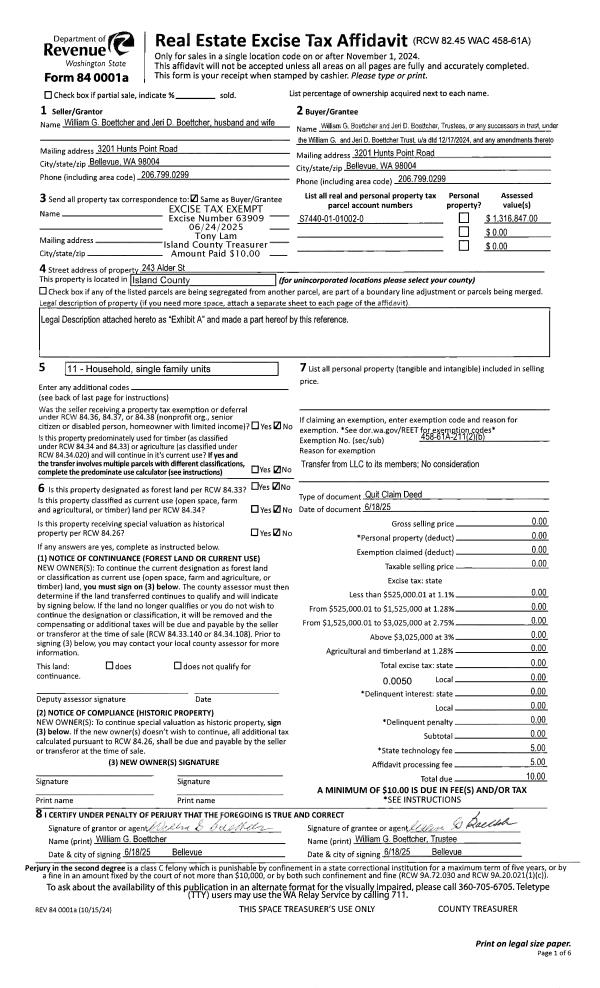
Property
Account |
| Property ID: | 360479 | Abbreviated Legal Description: | L26-1 ROLL HILL S70' OF LOT 25 BLK 1 TGW LOT 26 BLK 1 EX S65' |
| Geographic ID: | S8050-00-01025-2 | Agent Code: | |
| Type: | Real | | |
| Tax Area: | 332 - APPRAISER-Cpvl Schl Dist, Special Dist, improved, greater than 1 acre | Land Use Code | 11 |
| Open Space: | N | DFL | N |
| Historic Property: | N | Remodel Property: | N |
| Multi-Family Redevelopment: | N | | |
| Township: | | Section: | |
| Range: | |
Location |
| Address: | 939 RIEPMA AVE OAK HARBOR, WA 98277 | Mapsco: | |
| Neighborhood: | Cycle 2 | Map ID: | 146 |
| Neighborhood CD: | 2 |
Owner |
| Name: | O'RILEY, J R | Owner ID: | 55071 |
| Mailing Address: | 9323 MORRIS ST VALLEY VIEW MEADOWS, WA 98230-9257 | % Ownership: | 100.0000000000% |
| | | Exemptions: | |
Taxes and Assessment Details
Values
| (+) Improvement Homesite Value: | + | $0 | |
| (+) Improvement Non-Homesite Value: | + | $4,000 | |
| (+) Land Homesite Value: | + | $0 | |
| (+) Land Non-Homesite Value: | + | $110,000 | |
| (+) Curr Use (HS): | + | $0 | $0 |
| (+) Curr Use (NHS): | + | $0 | $0 |
| | | -------------------------- | |
| (=) Market Value: | = | $114,000 | |
| (–) Productivity Loss: | – | $0 | |
| | | -------------------------- | |
| (=) Subtotal: | = | $114,000 | |
| (+) Senior Appraised Value: | + | $0 | |
| (+) Non-Senior Appraised Value: | + | $114,000 | |
| | | -------------------------- | |
| (=) Total Appraised Value: | = | $114,000 | |
| (–) Senior Exemption Loss: | – | $0 | |
| (–) Exemption Loss: | – | $0 | |
| | | -------------------------- | |
| (=) Taxable Value: | = | $114,000 | |
Taxing Jurisdiction
| Owner: | O'RILEY, J R | | |
| % Ownership: | 100.0000000000% | | |
| Total Value: | $114,000 | | |
| Tax Area: | 332 - APPRAISER-Cpvl Schl Dist, Special Dist, improved, greater than 1 acre |
| CF | Conservation Futures | 0.0316035091 | $114,000 | $114,000 | $3.60 | | |
| CEM2 | Cemetery #2 | 0.0095056933 | $114,000 | $114,000 | $1.08 | | |
| FIRE2 | Fire & Rescue Dist #2 N Whidbey GEN | 0.5475949600 | $114,000 | $114,000 | $62.43 | | |
| HOBOND | Hospital BOND | 0.1910887512 | $114,000 | $114,000 | $21.78 | | |
| HOGEN | Hospital GEN | 0.3902502903 | $114,000 | $114,000 | $44.49 | | |
| CE | County Current Expense | 0.3708482477 | $114,000 | $114,000 | $42.28 | | |
| CR | County Roads | 0.4584763726 | $114,000 | $114,000 | $52.27 | | |
| ISLANDEMS | Hospital GEN (EMS) | 0.5000000000 | $114,000 | $114,000 | $57.00 | | |
| LIB | Library Sno-Isle GEN | 0.3153421757 | $114,000 | $114,000 | $35.95 | | |
| LIBCAP | Library Sno-Isle BOND (Cap Fac Imp Area) | 0.0543427938 | $114,000 | $114,000 | $6.20 | | |
| POCOUP | Port of Coupeville GEN | 0.1093371703 | $114,000 | $114,000 | $12.46 | | |
| POCOUPIDD | Port of Coupeville IDD | 0.3409740022 | $114,000 | $114,000 | $38.87 | | |
| COUPSDTECH | School 204 CP (TECH) | 0.7545480007 | $114,000 | $114,000 | $86.02 | | |
| SCH204MO | School 204 Enrichment | 0.6716186034 | $114,000 | $114,000 | $76.56 | | |
| ST | State School | 1.3035497053 | $114,000 | $114,000 | $148.60 | | |
| ST2 | State School Part 2 | 0.8169543533 | $114,000 | $114,000 | $93.13 | | |
| | Total Tax Rate: | 6.8660346289 | | | | | |
| | | | | Taxes w/Current Exemptions: | $782.72 | | |
| | | | | Taxes w/o Exemptions: | $782.72 | | |
Improvement / Building
| Improvement #1: | MANUFACTURED HOME | State Code: | Y | 0.0 sqft | Value: | $4,000 |
Sketch
Property Image
Land
| 1 | 17 | AC (01.01-02.00) | 1.0800 | 47044.80 | 0.00 | 0.00 | 1.00 | $110,000 | $0 |
Roll Value History
| 2026 | N/A | N/A | N/A | N/A | N/A |
| 2025 | $4,000 | $110,000 | $0 | $114,000 | $114,000 |
| 2024 | $4,000 | $110,000 | $0 | $114,000 | $114,000 |
| 2023 | $4,000 | $110,000 | $0 | $114,000 | $114,000 |
| 2022 | $4,000 | $110,000 | $0 | $114,000 | $114,000 |
| 2021 | $4,000 | $85,000 | $0 | $89,000 | $89,000 |
| 2020 | $4,000 | $85,000 | $0 | $89,000 | $89,000 |
| 2019 | $4,000 | $85,000 | $0 | $89,000 | $89,000 |
| 2018 | $12,424 | $135,000 | $0 | $147,424 | $147,424 |
| 2017 | $13,226 | $120,000 | $0 | $133,226 | $133,226 |
| 2016 | $14,027 | $100,000 | $0 | $114,027 | $114,027 |
| 2015 | $15,230 | $70,000 | $0 | $85,230 | $85,230 |
| 2014 | $16,031 | $60,000 | $0 | $76,031 | $76,031 |
| 2013 | $16,833 | $55,000 | $0 | $71,833 | $71,833 |
| 2012 | $21,634 | $57,800 | $0 | $79,434 | $79,434 |
| 2011 | $22,436 | $68,000 | $0 | $90,436 | $90,436 |
| 2010 | $22,023 | $68,000 | $0 | $90,023 | $90,023 |
| 2009 | $23,404 | $74,111 | $0 | $97,515 | $97,515 |
| 2008 | $38,726 | $75,600 | $0 | $114,326 | $114,326 |
| 2007 | $40,469 | $75,600 | $0 | $116,069 | $116,069 |
Deed and Sales History
| 1 | 08/01/1996 | OTHER | Other - Misc. Documents | O'RILEY, J R | O'RILEY, T L | | | $0.00 | 63050 | 0 |
| 2 | 03/01/1993 | OTHER | Other - Misc. Documents | O'RILEY, J R | O'RILEY, J R | | | $0.00 | 65282 | 93004549 |
| 3 | 11/01/1992 | WD | Warranty Deed | EBERLEIN, RUSSELL L | O'RILEY, J R | | | $1,000.00 | 24400 | 92021503 |
| 4 | 05/01/1991 | QCD | Quit Claim Deed | EBERLEIN, RUSSELL L | EBERLEIN, RUSSELL L | | | $0.00 | 11841 | 91007876 |
| 5 | 01/01/1900 | OTHER | Other - Misc. Documents | Unknown | EBERLEIN, RUSSELL L | | | $0.00 | 0 | 0 |
Payout Agreement
| No payout information available.. |