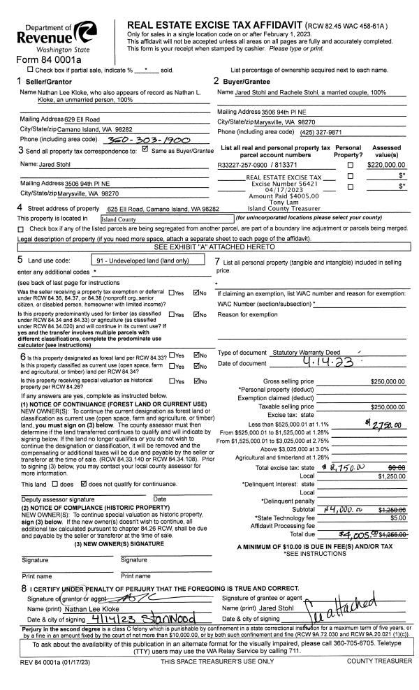
Property
Account |
| Property ID: | 36071 | Abbreviated Legal Description: | 24 - NE SW |
| Geographic ID: | R13324-237-1370 | Agent Code: | |
| Type: | Real | | |
| Tax Area: | 110 - APPRAISER-OH Schl Dist, outside OH, improved & 1 acre or less | Land Use Code | 67 |
| Open Space: | N | DFL | N |
| Historic Property: | N | Remodel Property: | N |
| Multi-Family Redevelopment: | N | | |
| Township: | 33 | Section: | 24 |
| Range: | R1 |
Location |
| Address: | | Mapsco: | |
| Neighborhood: | 62cRR-highway 20 | Map ID: | 222 |
| Neighborhood CD: | 62cRRhwy20 |
Owner |
| Name: | UNITED STATES OF AMERICA | Owner ID: | 5520 |
| Mailing Address: | | % Ownership: | 100.0000000000% |
| | | Exemptions: | EX |
Taxes and Assessment Details
Property Tax Information as of
10/22/2025
Click on "Statement Details" to expand or collapse a tax statement.
* Please enter a valid date ** Please enter a valid date *
Statement Details |
| 2025 | 2115 | ST - State School | $0.00 | $0.00 | $0.00 | $0.00 | $0.00 | $0.00 |
| 2025 | 2115 | Island County - Island County General Fund | $0.00 | $0.00 | $0.00 | $0.00 | $0.00 | $0.00 |
| 2025 | 2115 | ISLANDCORD - Island County Roads | $0.00 | $0.00 | $0.00 | $0.00 | $0.00 | $0.00 |
| 2025 | 2115 | PRKRECNWHDBY - Park & Recreation North Whidbey | $0.00 | $0.00 | $0.00 | $0.00 | $0.00 | $0.00 |
| 2025 | 2115 | SCH201 - School 201 Oak Harbor | $0.00 | $0.00 | $0.00 | $0.00 | $0.00 | $0.00 |
| 2025 | 2115 | CEM1 - Cemetery #1 North Whidbey | $0.00 | $0.00 | $0.00 | $0.00 | $0.00 | $0.00 |
| 2025 | 2115 | LIB - Library Sno-Isle Regional | $0.00 | $0.00 | $0.00 | $0.00 | $0.00 | $0.00 |
| 2025 | 2115 | HOSPEMS - Whidbey Health EMS Island County | $0.00 | $0.00 | $0.00 | $0.00 | $0.00 | $0.00 |
| 2025 | 2115 | HOSP - Whidbey Health | $0.00 | $0.00 | $0.00 | $0.00 | $0.00 | $0.00 |
| 2025 | 2115 | CF - Island County Conservation Futures | $0.00 | $0.00 | $0.00 | $0.00 | $0.00 | $0.00 |
| 2025 | 2115 | TOTAL: | $0.00 | $0.00 | $0.00 | $0.00 | $0.00 | $0.00 |
|
| 2025 | 2115 | $0.00 | $0.00 | $0.00 | $0.00 | $0.00 | $0.00 |
Statement Details |
| 2016 | 2137 | WDBYCNV - Whidbey Conservation District | $0.00 | $0.00 | $0.00 | $0.00 | $0.00 | $0.00 |
| 2016 | 2137 | TOTAL: | $0.00 | $0.00 | $0.00 | $0.00 | $0.00 | $0.00 |
|
| 2016 | 2137 | $0.00 | $0.00 | $0.00 | $0.00 | $0.00 | $0.00 |
Values
| (+) Improvement Homesite Value: | + | $0 | |
| (+) Improvement Non-Homesite Value: | + | $13,668 | |
| (+) Land Homesite Value: | + | $0 | |
| (+) Land Non-Homesite Value: | + | $80,000 | |
| (+) Curr Use (HS): | + | $0 | $0 |
| (+) Curr Use (NHS): | + | $0 | $0 |
| | | -------------------------- | |
| (=) Market Value: | = | $93,668 | |
| (–) Productivity Loss: | – | $0 | |
| | | -------------------------- | |
| (=) Subtotal: | = | $93,668 | |
| (+) Senior Appraised Value: | + | $0 | |
| (+) Non-Senior Appraised Value: | + | $93,668 | |
| | | -------------------------- | |
| (=) Total Appraised Value: | = | $93,668 | |
| (–) Senior Exemption Loss: | – | $0 | |
| (–) Exemption Loss: | – | $93,668 | |
| | | -------------------------- | |
| (=) Taxable Value: | = | $0 | |
Taxing Jurisdiction
| Owner: | UNITED STATES OF AMERICA | | |
| % Ownership: | 100.0000000000% | | |
| Total Value: | $93,668 | | |
| Tax Area: | 110 - APPRAISER-OH Schl Dist, outside OH, improved & 1 acre or less |
| CF | Conservation Futures | 0.0316035091 | $93,668 | $0 | $0.00 | | |
| CEM1 | Cemetery #1 | 0.0040320932 | $93,668 | $0 | $0.00 | | |
| FIRE2 | Fire & Rescue Dist #2 N Whidbey GEN | 0.5475949600 | $93,668 | $0 | $0.00 | | |
| HOBOND | Hospital BOND | 0.1910887512 | $93,668 | $0 | $0.00 | | |
| HOGEN | Hospital GEN | 0.3902502903 | $93,668 | $0 | $0.00 | | |
| CE | County Current Expense | 0.3708482477 | $93,668 | $0 | $0.00 | | |
| CR | County Roads | 0.4584763726 | $93,668 | $0 | $0.00 | | |
| ISLANDEMS | Hospital GEN (EMS) | 0.5000000000 | $93,668 | $0 | $0.00 | | |
| LIB | Library Sno-Isle GEN | 0.3153421757 | $93,668 | $0 | $0.00 | | |
| NWHIDPRMT | P & R N Whidbey GEN | 0.2004466701 | $93,668 | $0 | $0.00 | | |
| SCH201MO | School 201 Enrichment | 1.8559231640 | $93,668 | $0 | $0.00 | | |
| ST | State School | 1.3035497053 | $93,668 | $0 | $0.00 | | |
| ST2 | State School Part 2 | 0.8169543533 | $93,668 | $0 | $0.00 | | |
| | Total Tax Rate: | 6.9861102925 | | | | | |
| | | | | Taxes w/Current Exemptions: | $0.00 | | |
| | | | | Taxes w/o Exemptions: | $654.37 | | |
Improvement / Building
| Improvement #1: | RESIDENTIAL | State Code: | F1 | 0.0 sqft | Value: | $13,668 |
Sketch
| No sketches available for this property. |
Property Image
Land
| 1 | 77 | COMMUNITY | 0.8300 | 36154.80 | 0.00 | 0.00 | 1.00 | $80,000 | $0 |
Roll Value History
| 2026 | N/A | N/A | N/A | N/A | N/A |
| 2025 | $13,668 | $80,000 | $0 | $93,668 | $0 |
| 2024 | $13,668 | $80,000 | $0 | $93,668 | $0 |
| 2023 | $13,668 | $54,232 | $0 | $67,900 | $0 |
| 2022 | $13,668 | $54,232 | $0 | $67,900 | $0 |
| 2021 | $13,668 | $54,232 | $0 | $67,900 | $0 |
| 2020 | $13,668 | $54,232 | $0 | $67,900 | $0 |
| 2019 | $13,668 | $54,232 | $0 | $67,900 | $0 |
| 2018 | $13,668 | $54,232 | $0 | $67,900 | $0 |
| 2017 | $13,668 | $108,464 | $0 | $122,132 | $0 |
| 2016 | $14,570 | $108,464 | $0 | $123,034 | $0 |
| 2015 | $14,570 | $108,464 | $0 | $123,034 | $0 |
| 2014 | $14,570 | $108,464 | $0 | $123,034 | $0 |
| 2013 | $14,570 | $108,464 | $0 | $123,034 | $0 |
| 2012 | $14,570 | $106,123 | $0 | $120,693 | $0 |
| 2011 | $14,570 | $106,123 | $0 | $120,693 | $0 |
| 2010 | $14,570 | $106,123 | $0 | $120,693 | $0 |
| 2009 | $17,360 | $115,919 | $0 | $133,279 | $0 |
| 2008 | $20,615 | $121,905 | $0 | $142,520 | $0 |
| 2007 | $24,025 | $122,063 | $0 | $146,088 | $0 |
Deed and Sales History
| 1 | 01/01/1900 | OTHER | Other - Misc. Documents | UNITED, STATES O | , | | | $0.00 | 0 | 620191 |
| 2 | 01/01/1900 | OTHER | Other - Misc. Documents | Unknown | UNITED, STATES O | | | $0.00 | 0 | 61058500 |
Payout Agreement
| No payout information available.. |