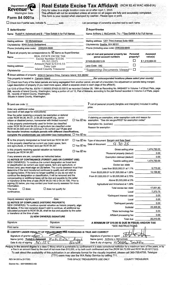
Property
Account |
| Property ID: | 360736 | Abbreviated Legal Description: | ROLL HILL LOT 21 BLK 2 |
| Geographic ID: | S8050-00-02021-0 | Agent Code: | |
| Type: | Real | | |
| Tax Area: | 330 - APPRAISER-Cpvl Schl Dist, Special Dist, improved & less than 1 acre | Land Use Code | 11 |
| Open Space: | N | DFL | N |
| Historic Property: | N | Remodel Property: | N |
| Multi-Family Redevelopment: | N | | |
| Township: | | Section: | |
| Range: | |
Location |
| Address: | 1700 PHILLIP ST OAK HARBOR, WA 98277 | Mapsco: | |
| Neighborhood: | Cycle 2 | Map ID: | 146 |
| Neighborhood CD: | 2 |
Owner |
| Name: | ALAFA, JACOB | Owner ID: | 315018 |
| Mailing Address: | MA TERESITA OROZCO ALAFA 1700 PHILLIP ST OAK HARBOR, WA 98277 | % Ownership: | 100.0000000000% |
| | | Exemptions: | |
Taxes and Assessment Details
Values
| (+) Improvement Homesite Value: | + | $0 | |
| (+) Improvement Non-Homesite Value: | + | $287,173 | |
| (+) Land Homesite Value: | + | $0 | |
| (+) Land Non-Homesite Value: | + | $220,000 | |
| (+) Curr Use (HS): | + | $0 | $0 |
| (+) Curr Use (NHS): | + | $0 | $0 |
| | | -------------------------- | |
| (=) Market Value: | = | $507,173 | |
| (–) Productivity Loss: | – | $0 | |
| | | -------------------------- | |
| (=) Subtotal: | = | $507,173 | |
| (+) Senior Appraised Value: | + | $0 | |
| (+) Non-Senior Appraised Value: | + | $507,173 | |
| | | -------------------------- | |
| (=) Total Appraised Value: | = | $507,173 | |
| (–) Senior Exemption Loss: | – | $0 | |
| (–) Exemption Loss: | – | $0 | |
| | | -------------------------- | |
| (=) Taxable Value: | = | $507,173 | |
Taxing Jurisdiction
| Owner: | ALAFA, JACOB | | |
| % Ownership: | 100.0000000000% | | |
| Total Value: | $507,173 | | |
| Tax Area: | 330 - APPRAISER-Cpvl Schl Dist, Special Dist, improved & less than 1 acre |
| CF | Conservation Futures | 0.0316035091 | $507,173 | $507,173 | $16.03 | | |
| CEM2 | Cemetery #2 | 0.0095056933 | $507,173 | $507,173 | $4.82 | | |
| FIRE2 | Fire & Rescue Dist #2 N Whidbey GEN | 0.5475949600 | $507,173 | $507,173 | $277.73 | | |
| HOBOND | Hospital BOND | 0.1910887512 | $507,173 | $507,173 | $96.92 | | |
| HOGEN | Hospital GEN | 0.3902502903 | $507,173 | $507,173 | $197.92 | | |
| CE | County Current Expense | 0.3708482477 | $507,173 | $507,173 | $188.08 | | |
| CR | County Roads | 0.4584763726 | $507,173 | $507,173 | $232.53 | | |
| ISLANDEMS | Hospital GEN (EMS) | 0.5000000000 | $507,173 | $507,173 | $253.59 | | |
| LIB | Library Sno-Isle GEN | 0.3153421757 | $507,173 | $507,173 | $159.93 | | |
| LIBCAP | Library Sno-Isle BOND (Cap Fac Imp Area) | 0.0543427938 | $507,173 | $507,173 | $27.56 | | |
| POCOUP | Port of Coupeville GEN | 0.1093371703 | $507,173 | $507,173 | $55.45 | | |
| POCOUPIDD | Port of Coupeville IDD | 0.3409740022 | $507,173 | $507,173 | $172.93 | | |
| COUPSDTECH | School 204 CP (TECH) | 0.7545480007 | $507,173 | $507,173 | $382.69 | | |
| SCH204MO | School 204 Enrichment | 0.6716186034 | $507,173 | $507,173 | $340.63 | | |
| ST | State School | 1.3035497053 | $507,173 | $507,173 | $661.13 | | |
| ST2 | State School Part 2 | 0.8169543533 | $507,173 | $507,173 | $414.34 | | |
| | Total Tax Rate: | 6.8660346289 | | | | | |
| | | | | Taxes w/Current Exemptions: | $3,482.28 | | |
| | | | | Taxes w/o Exemptions: | $3,482.28 | | |
Improvement / Building
| Improvement #1: | RESIDENTIAL | State Code: | Y | 1732.6 sqft | Value: | $287,173 |
| Bathrooms: | 2 | Bedrooms: | 2 | | Ceiling: | DRY WALL SPRAYED | Cooling: | HEAT PUMP/CONV/V | | Exterior Wall/Cover: | WOOD SIDING | Floor Covering: | CARPET/VINYL 60-40 | | Floor Structure: | WOOD W/SUBFLOOR | Foundation: | CONCRETE | | Interior Finish: | DRYWALL PAINT | Plumbing Fixture Cnt: | 10 | | Roof Slope: | 3" IN 12" | Roof Structure/Cover: | CJ ALUMINIUM HEAVY |
|
| | Type | Description | Class CD | Sub Class CD | Year Built | Area |
| | BAS | BASE/MAIN FLOOR | 3 | 0 | 1979 | 1368.6 |
| | DWN | DOWNSTAIRS LIVING AREA | 3 | 0 | 1979 | 364.0 |
| | DGR | DETACHED GARAGE | 3 | 0 | 1979 | 768.0 |
| | OWP | OPEN WOOD PORCH W/STEPS | 3 | 0 | 1979 | 287.8 |
| | OWP | OPEN WOOD PORCH W/STEPS | 3 | 0 | 1979 | 130.0 |
| | AGR | ATTACHED GARAGE | 3 | 0 | 1979 | 528.6 |
Sketch
Property Image
Land
| 1 | 15 | SQ (12001-21780) | 0.4800 | 20908.80 | 0.00 | 0.00 | 1.00 | $220,000 | $0 |
Roll Value History
| 2026 | N/A | N/A | N/A | N/A | N/A |
| 2025 | $287,173 | $220,000 | $0 | $507,173 | $507,173 |
| 2024 | $252,168 | $210,000 | $0 | $462,168 | $462,168 |
| 2023 | $255,564 | $220,000 | $0 | $475,564 | $475,564 |
| 2022 | $234,491 | $220,000 | $0 | $454,491 | $454,491 |
| 2021 | $206,574 | $180,000 | $0 | $386,574 | $386,574 |
| 2020 | $201,375 | $140,000 | $0 | $341,375 | $341,375 |
| 2019 | $145,416 | $170,000 | $0 | $315,416 | $315,416 |
| 2018 | $134,537 | $135,000 | $0 | $269,537 | $269,537 |
| 2017 | $135,421 | $120,000 | $0 | $255,421 | $255,421 |
| 2016 | $137,225 | $100,000 | $0 | $237,225 | $237,225 |
| 2015 | $139,032 | $70,000 | $0 | $209,032 | $209,032 |
| 2014 | $170,394 | $60,000 | $0 | $230,394 | $230,394 |
| 2013 | $173,026 | $55,000 | $0 | $228,026 | $113,991 |
| 2012 | $177,567 | $57,800 | $0 | $235,367 | $115,058 |
| 2011 | $179,700 | $68,000 | $0 | $247,700 | $115,558 |
| 2010 | $127,404 | $68,000 | $0 | $195,404 | $59,677 |
| 2009 | $124,584 | $74,400 | $0 | $198,984 | $53,210 |
| 2008 | $155,116 | $74,400 | $0 | $229,516 | $53,210 |
| 2007 | $157,419 | $74,080 | $0 | $231,499 | $53,210 |
Deed and Sales History
| 1 | 11/19/2024 | WD | Warranty Deed | PYLE, WILLIAM CODY | ALAFA, JACOB | | | $495,000.00 | 62219 | 4580865 |
| 2 | 11/24/2014 | WD | Warranty Deed | WOODFIN, JOYCE | PYLE, WILLIAM CODY | | | $263,000.00 | 17696 | 4369051 |
| 3 | 06/08/2004 | OTHER | Other - Misc. Documents | WOODFIN, DON A | WOODFIN, JOYCE | | | $0.00 | 80081 | 0 |
| 4 | 04/01/1979 | OTHER | Other - Misc. Documents | Unknown | WOODFIN, DON A | | | $8,000.00 | 91849 | 351260 |
Payout Agreement
| No payout information available.. |