Property
Account |
| Property ID: | 360807 | Abbreviated Legal Description: | ROLL HILL LOTS 27 & 28 BLK 2 EX S66 .67' OF LOT 27 TGW N66.67' OF LOT 28 COMB 8/92 |
| Geographic ID: | S8050-00-02027-2 | Agent Code: | |
| Type: | Real | | |
| Tax Area: | 330 - APPRAISER-Cpvl Schl Dist, Special Dist, improved & less than 1 acre | Land Use Code | 11 |
| Open Space: | N | DFL | N |
| Historic Property: | N | Remodel Property: | N |
| Multi-Family Redevelopment: | N | | |
| Township: | | Section: | |
| Range: | |
Location |
| Address: | 965 SHAWN AVE OAK HARBOR, WA 98277 | Mapsco: | |
| Neighborhood: | Cycle 2 | Map ID: | 146 |
| Neighborhood CD: | 2 |
Owner |
| Name: | BJORLING-EPPARD, SALLY K | Owner ID: | 284200 |
| Mailing Address: | 965 SHAWN AVE OAK HARBOR, WA 98277 | % Ownership: | 100.0000000000% |
| | | Exemptions: | SNR/DSBL |
Taxes and Assessment Details
Values
| (+) Improvement Homesite Value: | + | $126,018 | |
| (+) Improvement Non-Homesite Value: | + | $0 | |
| (+) Land Homesite Value: | + | $220,000 | |
| (+) Land Non-Homesite Value: | + | $0 | |
| (+) Curr Use (HS): | + | $0 | $0 |
| (+) Curr Use (NHS): | + | $0 | $0 |
| | | -------------------------- | |
| (=) Market Value: | = | $346,018 | |
| (–) Productivity Loss: | – | $0 | |
| | | -------------------------- | |
| (=) Subtotal: | = | $346,018 | |
| (+) Senior Appraised Value: | + | $251,632 | |
| (+) Non-Senior Appraised Value: | + | $0 | |
| | | -------------------------- | |
| (=) Total Appraised Value: | = | $251,632 | |
| (–) Senior Exemption Loss: | – | $150,979 | |
| (–) Exemption Loss: | – | $0 | |
| | | -------------------------- | |
| (=) Taxable Value: | = | $100,653 | |
Taxing Jurisdiction
| Owner: | BJORLING-EPPARD, SALLY K | | |
| % Ownership: | 100.0000000000% | | |
| Total Value: | $346,018 | | |
| Tax Area: | 330 - APPRAISER-Cpvl Schl Dist, Special Dist, improved & less than 1 acre |
| CF | Conservation Futures | 0.0316035091 | $346,018 | $100,653 | $3.18 | | |
| CEM2 | Cemetery #2 | 0.0095056933 | $346,018 | $100,653 | $0.96 | | |
| FIRE2 | Fire & Rescue Dist #2 N Whidbey GEN | 0.5475949600 | $346,018 | $100,653 | $55.12 | | |
| HOBOND | Hospital BOND | 0.0000000000 | $346,018 | $0 | $0.00 | | |
| HOGEN | Hospital GEN | 0.3902502903 | $346,018 | $100,653 | $39.28 | | |
| CE | County Current Expense | 0.3708482477 | $346,018 | $100,653 | $37.33 | | |
| CR | County Roads | 0.4584763726 | $346,018 | $100,653 | $46.15 | | |
| ISLANDEMS | Hospital GEN (EMS) | 0.5000000000 | $346,018 | $100,653 | $50.33 | | |
| LIB | Library Sno-Isle GEN | 0.3153421757 | $346,018 | $100,653 | $31.74 | | |
| LIBCAP | Library Sno-Isle BOND (Cap Fac Imp Area) | 0.0000000000 | $346,018 | $0 | $0.00 | | |
| POCOUP | Port of Coupeville GEN | 0.1093371703 | $346,018 | $100,653 | $11.01 | | |
| POCOUPIDD | Port of Coupeville IDD | 0.3409740022 | $346,018 | $100,653 | $34.32 | | |
| COUPSDTECH | School 204 CP (TECH) | 0.0000000000 | $346,018 | $0 | $0.00 | | |
| SCH204MO | School 204 Enrichment | 0.0000000000 | $346,018 | $0 | $0.00 | | |
| ST | State School | 1.3035497053 | $346,018 | $100,653 | $131.21 | | |
| ST2 | State School Part 2 | 0.0000000000 | $346,018 | $0 | $0.00 | | |
| | Total Tax Rate: | 4.3774821265 | | | | | |
| | | | | Taxes w/Current Exemptions: | $440.63 | | |
| | | | | Taxes w/o Exemptions: | $2,375.76 | | |
Improvement / Building
| Improvement #1: | MANUFACTURED HOME | State Code: | Y | 1495.6 sqft | Value: | $126,018 |
| Bathrooms: | 0 | Bedrooms: | 0 | | Ceiling: | PLASTER PAINTED | Cooling: | EVAP NO DUCT | | Exterior Wall/Cover: | VINYL | Floor Covering: | CARPET 100% | | Floor Structure: | SLAB ON GRADE | Foundation: | SLAB | | Heating: | FHA ELECTRIC | Interior Finish: | PLASTER | | Plumbing Fixture Cnt: | 1 | Roof Slope: | FLAT | | Roof Structure/Cover: | CJ ALUMINIUM HEAVY |   |   |
|
| | Type | Description | Class CD | Sub Class CD | Year Built | Area |
| | BAS | BASE/MAIN FLOOR | 4 | 0 | 1992 | 1495.6 |
| | OWC | OPEN WOOD PORCH W/STEPS/ROOF/C | 4 | 0 | 1992 | 49.3 |
| | oOBD | Out Buildings | 4 | 0 | 1992 | 576.0 |
Sketch
Property Image
Land
| 1 | 16 | AC (00.51-01.00) | 0.6100 | 26571.60 | 0.00 | 0.00 | 1.00 | $220,000 | $0 |
Roll Value History
| 2026 | N/A | N/A | N/A | N/A | N/A |
| 2025 | $126,018 | $220,000 | $0 | $346,018 | $100,653 |
| 2024 | $122,642 | $210,000 | $0 | $332,642 | $100,653 |
| 2023 | $111,932 | $220,000 | $0 | $331,932 | $100,653 |
| 2022 | $105,708 | $220,000 | $0 | $325,708 | $100,653 |
| 2021 | $96,581 | $180,000 | $0 | $276,581 | $100,653 |
| 2020 | $96,537 | $140,000 | $0 | $236,537 | $94,615 |
| 2019 | $81,632 | $170,000 | $0 | $251,632 | $100,653 |
| 2018 | $79,516 | $135,000 | $0 | $214,516 | $214,516 |
| 2017 | $81,268 | $120,000 | $0 | $201,268 | $201,268 |
| 2016 | $83,035 | $100,000 | $0 | $183,035 | $183,035 |
| 2015 | $84,803 | $70,000 | $0 | $154,803 | $154,803 |
| 2014 | $86,570 | $60,000 | $0 | $146,570 | $146,570 |
| 2013 | $88,337 | $55,000 | $0 | $143,337 | $143,337 |
| 2012 | $79,058 | $57,800 | $0 | $136,858 | $136,858 |
| 2011 | $80,513 | $68,000 | $0 | $148,513 | $148,513 |
| 2010 | $88,567 | $68,000 | $0 | $156,567 | $156,567 |
| 2009 | $92,088 | $74,400 | $0 | $166,488 | $166,488 |
| 2008 | $122,708 | $75,600 | $0 | $198,308 | $198,308 |
| 2007 | $126,385 | $75,600 | $0 | $201,985 | $201,985 |
Deed and Sales History
| 1 | 03/23/2018 | DECREE | Divorce Decree/Legal Separation | BJORLING-EPPARD, SALLY K | BJORLING-EPPARD, SALLY K | | | | 87761 | |
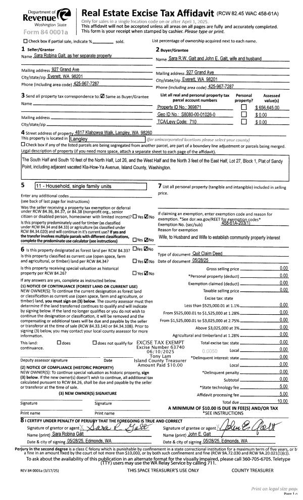
| 2 | 02/06/2002 | QCD | Quit Claim Deed | BJORLING, SALLY K | BJORLING-EPPARD, SALLY K | | | $0.00 | 21061 | 4014728 |
| 3 | 08/01/1995 | OTHER | Other - Misc. Documents | BJORLING, BERT W | BJORLING, SALLY K | | | $0.00 | 52813 | 0 |
| 4 | 08/01/1995 | QCD | Quit Claim Deed | BJORLING, SALLY K | BJORLING, SALLY K | | | $0.00 | 52812 | 95012978 |
| 5 | 08/01/1992 | OTHER | Other - Misc. Documents | BJORLING, BERT W | BJORLING, BERT W | | | $0.00 | 64983 | 92014493 |
| 6 | 07/01/1992 | WD | Warranty Deed | CLINE, SCOTT T | BJORLING, BERT W | | | $16,000.00 | 22728 | 92013170 |
| 7 | 06/01/1990 | WD | Warranty Deed | MASON, KEITH W | CLINE, SCOTT T | | | $5,250.00 | 3837 | 90012500 |
| 8 | 05/01/1980 | REC | Real Estate Contract | KNUDSON, ESTHER | MASON, KEITH W | | | $3,000.00 | 3861 | 376463 |
| 9 | 01/01/1900 | OTHER | Other - Misc. Documents | Unknown | KNUDSON, ESTHER | | | $0.00 | 0 | 0 |
Payout Agreement
| No payout information available.. |