Property
Account |
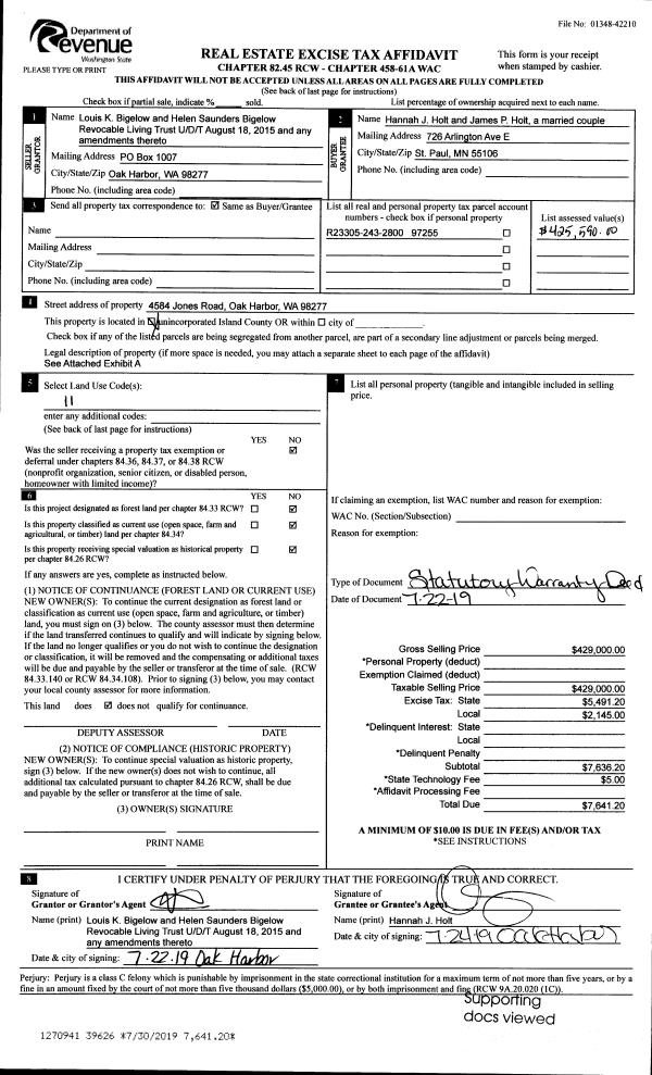
| Property ID: | 360950 | Abbreviated Legal Description: | ROLL HILL PT LOT 39 BLK 2;BG NW CR L39 S76*W226.92' TO WLN ST SLY ST 61.25' N82 *W212.5' TO WLN L39 ALG WLN L39 85.49' TPB |
| Geographic ID: | S8050-00-02039-0 | Agent Code: | |
| Type: | Real | | |
| Tax Area: | 330 - APPRAISER-Cpvl Schl Dist, Special Dist, improved & less than 1 acre | Land Use Code | 11 |
| Open Space: | N | DFL | N |
| Historic Property: | N | Remodel Property: | N |
| Multi-Family Redevelopment: | N | | |
| Township: | | Section: | |
| Range: | |
Location |
| Address: | | Mapsco: | |
| Neighborhood: | Cycle 2 | Map ID: | 148 |
| Neighborhood CD: | 2 |
Owner |
| Name: | BARINGER, BRIANNA LYNN | Owner ID: | 293985 |
| Mailing Address: | BENJAMIN LEIGH MAFRICI 1037 SHAWN AVE OAK HARBOR, WA 98277 | % Ownership: | 100.0000000000% |
| | | Exemptions: | |
Taxes and Assessment Details
Values
| (+) Improvement Homesite Value: | + | $0 | |
| (+) Improvement Non-Homesite Value: | + | $161,568 | |
| (+) Land Homesite Value: | + | $0 | |
| (+) Land Non-Homesite Value: | + | $220,000 | |
| (+) Curr Use (HS): | + | $0 | $0 |
| (+) Curr Use (NHS): | + | $0 | $0 |
| | | -------------------------- | |
| (=) Market Value: | = | $381,568 | |
| (–) Productivity Loss: | – | $0 | |
| | | -------------------------- | |
| (=) Subtotal: | = | $381,568 | |
| (+) Senior Appraised Value: | + | $0 | |
| (+) Non-Senior Appraised Value: | + | $381,568 | |
| | | -------------------------- | |
| (=) Total Appraised Value: | = | $381,568 | |
| (–) Senior Exemption Loss: | – | $0 | |
| (–) Exemption Loss: | – | $0 | |
| | | -------------------------- | |
| (=) Taxable Value: | = | $381,568 | |
Taxing Jurisdiction
| Owner: | BARINGER, BRIANNA LYNN | | |
| % Ownership: | 100.0000000000% | | |
| Total Value: | $381,568 | | |
| Tax Area: | 330 - APPRAISER-Cpvl Schl Dist, Special Dist, improved & less than 1 acre |
| CF | Conservation Futures | 0.0316035091 | $381,568 | $381,568 | $12.06 | | |
| CEM2 | Cemetery #2 | 0.0095056933 | $381,568 | $381,568 | $3.63 | | |
| FIRE2 | Fire & Rescue Dist #2 N Whidbey GEN | 0.5475949600 | $381,568 | $381,568 | $208.94 | | |
| HOBOND | Hospital BOND | 0.1910887512 | $381,568 | $381,568 | $72.91 | | |
| HOGEN | Hospital GEN | 0.3902502903 | $381,568 | $381,568 | $148.91 | | |
| CE | County Current Expense | 0.3708482477 | $381,568 | $381,568 | $141.50 | | |
| CR | County Roads | 0.4584763726 | $381,568 | $381,568 | $174.94 | | |
| ISLANDEMS | Hospital GEN (EMS) | 0.5000000000 | $381,568 | $381,568 | $190.78 | | |
| LIB | Library Sno-Isle GEN | 0.3153421757 | $381,568 | $381,568 | $120.32 | | |
| LIBCAP | Library Sno-Isle BOND (Cap Fac Imp Area) | 0.0543427938 | $381,568 | $381,568 | $20.74 | | |
| POCOUP | Port of Coupeville GEN | 0.1093371703 | $381,568 | $381,568 | $41.72 | | |
| POCOUPIDD | Port of Coupeville IDD | 0.3409740022 | $381,568 | $381,568 | $130.10 | | |
| COUPSDTECH | School 204 CP (TECH) | 0.7545480007 | $381,568 | $381,568 | $287.91 | | |
| SCH204MO | School 204 Enrichment | 0.6716186034 | $381,568 | $381,568 | $256.27 | | |
| ST | State School | 1.3035497053 | $381,568 | $381,568 | $497.39 | | |
| ST2 | State School Part 2 | 0.8169543533 | $381,568 | $381,568 | $311.72 | | |
| | Total Tax Rate: | 6.8660346289 | | | | | |
| | | | | Taxes w/Current Exemptions: | $2,619.84 | | |
| | | | | Taxes w/o Exemptions: | $2,619.84 | | |
Improvement / Building
| Improvement #1: | MANUFACTURED HOME | State Code: | Y | 1456.0 sqft | Value: | $161,568 |
| Bathrooms: | 1 | Bedrooms: | 2 | | Ceiling: | PLASTER PAINTED | Cooling: | EVAP NO DUCT | | Exterior Wall/Cover: | VINYL | Floor Covering: | CARPET 100% | | Floor Structure: | SLAB ON GRADE | Foundation: | SLAB | | Heating: | FHA ELECTRIC | Interior Finish: | PLASTER | | Roof Slope: | FLAT | Roof Structure/Cover: | CJ ALUMINIUM HEAVY |
|
Sketch
Property Image
Land
| 1 | 15 | SQ (12001-21780) | 0.3700 | 16117.20 | 0.00 | 0.00 | 1.00 | $220,000 | $0 |
Roll Value History
| 2026 | N/A | N/A | N/A | N/A | N/A |
| 2025 | $161,568 | $220,000 | $0 | $381,568 | $381,568 |
| 2024 | $165,006 | $210,000 | $0 | $375,006 | $375,006 |
| 2023 | $144,974 | $220,000 | $0 | $364,974 | $364,974 |
| 2022 | $132,628 | $220,000 | $0 | $352,628 | $352,628 |
| 2021 | $116,511 | $180,000 | $0 | $296,511 | $296,511 |
| 2020 | $113,081 | $140,000 | $0 | $253,081 | $253,081 |
| 2019 | $0 | $65,000 | $0 | $65,000 | $65,000 |
| 2018 | $0 | $60,000 | $0 | $60,000 | $60,000 |
| 2017 | $0 | $60,000 | $0 | $60,000 | $60,000 |
| 2016 | $0 | $40,000 | $0 | $40,000 | $40,000 |
| 2015 | $0 | $45,000 | $0 | $45,000 | $45,000 |
| 2014 | $0 | $55,000 | $0 | $55,000 | $55,000 |
| 2013 | $0 | $40,000 | $0 | $40,000 | $40,000 |
| 2012 | $0 | $42,240 | $0 | $42,240 | $42,240 |
| 2011 | $0 | $42,240 | $0 | $42,240 | $42,240 |
| 2010 | $0 | $42,240 | $0 | $42,240 | $42,240 |
| 2009 | $0 | $46,592 | $0 | $46,592 | $46,592 |
Deed and Sales History
| 1 | 04/17/2020 | MANHOME | Manufactured Home | HENLEY 11 WA, LLC | BARINGER, BRIANNA LYNN | | | $90,000.00 | 42679 | |
| 2 | 04/10/2020 | WD | Warranty Deed | HENLEY 11 WA, LLC | BARINGER, BRIANNA LYNN | | | $300,000.00 | 42678 | 4485000 |
| 3 | 08/02/2019 | WD | Warranty Deed | NIENHUIS, GARY J | HENLEY 11 WA, LLC | | | $59,500.00 | 39751 | 4468841 |
| 4 | 09/06/2002 | WD | Warranty Deed | VOGT, HARLEY & | NIENHUIS, GARY J | | | $29,000.00 | 23624 | 4031012 |
| 5 | 06/01/1993 | QCD | Quit Claim Deed | KIENS, DORTHA A | VOGT, HARLEY & | | | $200.00 | 32189 | 93011291 |
| 6 | 01/01/1900 | OTHER | Other - Misc. Documents | Unknown | KIENS, DORTHA A | | | $0.00 | 0 | 0 |
Payout Agreement
| No payout information available.. |