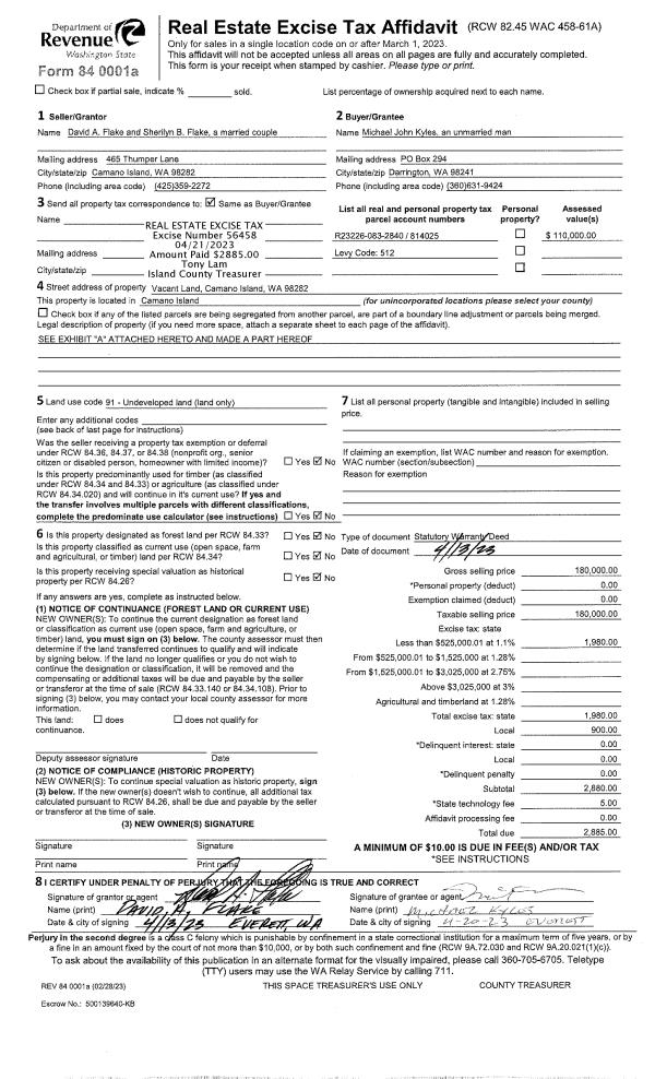
Property
Account |
| Property ID: | 36151 | Abbreviated Legal Description: | 12 - IN SE NW E OF HWY TGW EZ AF#87013467 |
| Geographic ID: | R13324-330-2180 | Agent Code: | |
| Type: | Real | | |
| Tax Area: | 119 - APPRAISER-OH Schl Dist, outside OH, vacant & 50 acres or less | Land Use Code | 85 |
| Open Space: | N | DFL | N |
| Historic Property: | N | Remodel Property: | N |
| Multi-Family Redevelopment: | N | | |
| Township: | 33 | Section: | 24 |
| Range: | R1 |
Location |
| Address: | | Mapsco: | |
| Neighborhood: | 62cRR-highway 20 | Map ID: | 224 |
| Neighborhood CD: | 62cRRhwy20 |
Owner |
| Name: | MILES SAND & GRAVEL CO | Owner ID: | 25166 |
| Mailing Address: | 400 VALLEY AVE NE PUYALLUP, WA 98372-2516 | % Ownership: | 100.0000000000% |
| | | Exemptions: | |
Taxes and Assessment Details
Values
| (+) Improvement Homesite Value: | + | $0 | |
| (+) Improvement Non-Homesite Value: | + | $0 | |
| (+) Land Homesite Value: | + | $0 | |
| (+) Land Non-Homesite Value: | + | $234,353 | |
| (+) Curr Use (HS): | + | $0 | $0 |
| (+) Curr Use (NHS): | + | $0 | $0 |
| | | -------------------------- | |
| (=) Market Value: | = | $234,353 | |
| (–) Productivity Loss: | – | $0 | |
| | | -------------------------- | |
| (=) Subtotal: | = | $234,353 | |
| (+) Senior Appraised Value: | + | $0 | |
| (+) Non-Senior Appraised Value: | + | $234,353 | |
| | | -------------------------- | |
| (=) Total Appraised Value: | = | $234,353 | |
| (–) Senior Exemption Loss: | – | $0 | |
| (–) Exemption Loss: | – | $0 | |
| | | -------------------------- | |
| (=) Taxable Value: | = | $234,353 | |
Taxing Jurisdiction
| Owner: | MILES SAND & GRAVEL CO | | |
| % Ownership: | 100.0000000000% | | |
| Total Value: | $234,353 | | |
| Tax Area: | 119 - APPRAISER-OH Schl Dist, outside OH, vacant & 50 acres or less |
| CF | Conservation Futures | 0.0316035091 | $234,353 | $234,353 | $7.41 | | |
| CEM1 | Cemetery #1 | 0.0040320932 | $234,353 | $234,353 | $0.94 | | |
| HOBOND | Hospital BOND | 0.1910887512 | $234,353 | $234,353 | $44.78 | | |
| HOGEN | Hospital GEN | 0.3902502903 | $234,353 | $234,353 | $91.46 | | |
| CE | County Current Expense | 0.3708482477 | $234,353 | $234,353 | $86.91 | | |
| CR | County Roads | 0.4584763726 | $234,353 | $234,353 | $107.45 | | |
| ISLANDEMS | Hospital GEN (EMS) | 0.5000000000 | $234,353 | $234,353 | $117.18 | | |
| LIB | Library Sno-Isle GEN | 0.3153421757 | $234,353 | $234,353 | $73.90 | | |
| NWHIDPRMT | P & R N Whidbey GEN | 0.2004466701 | $234,353 | $234,353 | $46.98 | | |
| SCH201MO | School 201 Enrichment | 1.8559231640 | $234,353 | $234,353 | $434.94 | | |
| ST | State School | 1.3035497053 | $234,353 | $234,353 | $305.49 | | |
| ST2 | State School Part 2 | 0.8169543533 | $234,353 | $234,353 | $191.46 | | |
| | Total Tax Rate: | 6.4385153325 | | | | | |
| | | | | Taxes w/Current Exemptions: | $1,508.90 | | |
| | | | | Taxes w/o Exemptions: | $1,508.90 | | |
Improvement / Building
Sketch
| No sketches available for this property. |
Property Image
Land
| 1 | 71 | INDUSTRIAL MANUFACTURING | 26.9000 | 1171764.00 | 0.00 | 0.00 | 1.00 | $234,353 | $0 |
Roll Value History
| 2026 | N/A | N/A | N/A | N/A | N/A |
| 2025 | $0 | $234,353 | $0 | $234,353 | $234,353 |
| 2024 | $0 | $234,353 | $0 | $234,353 | $234,353 |
| 2023 | $0 | $234,353 | $0 | $234,353 | $234,353 |
| 2022 | $0 | $234,353 | $0 | $234,353 | $234,353 |
| 2021 | $0 | $234,353 | $0 | $234,353 | $234,353 |
| 2020 | $0 | $234,353 | $0 | $234,353 | $234,353 |
| 2019 | $0 | $234,353 | $0 | $234,353 | $234,353 |
| 2018 | $0 | $234,353 | $0 | $234,353 | $234,353 |
| 2017 | $0 | $242,100 | $0 | $242,100 | $242,100 |
| 2016 | $0 | $242,100 | $0 | $242,100 | $242,100 |
| 2015 | $0 | $242,100 | $0 | $242,100 | $242,100 |
| 2014 | $0 | $242,100 | $0 | $242,100 | $242,100 |
| 2013 | $0 | $242,100 | $0 | $242,100 | $242,100 |
| 2012 | $0 | $242,100 | $0 | $242,100 | $242,100 |
| 2011 | $0 | $242,100 | $0 | $242,100 | $242,100 |
| 2010 | $0 | $242,100 | $0 | $242,100 | $242,100 |
| 2009 | $0 | $242,100 | $0 | $242,100 | $242,100 |
| 2008 | $0 | $726,300 | $0 | $726,300 | $726,300 |
| 2007 | $0 | $681,073 | $0 | $681,073 | $681,073 |
Deed and Sales History
| 1 | 10/01/1979 | WD | Warranty Deed | MOUNT, VERNON S | MILES, SAND & | | | $46,134.00 | 94958 | 360081 |
| 2 | 01/01/1900 | OTHER | Other - Misc. Documents | Unknown | MOUNT, VERNON S | | | $0.00 | 0 | 0 |
Payout Agreement
| No payout information available.. |