Property
Account |
| Property ID: | 361548 | Abbreviated Legal Description: | ROLL HILL LOT 21 BLK 5 |
| Geographic ID: | S8050-00-05021-0 | Agent Code: | |
| Type: | Real | | |
| Tax Area: | 330 - APPRAISER-Cpvl Schl Dist, Special Dist, improved & less than 1 acre | Land Use Code | 11 |
| Open Space: | N | DFL | N |
| Historic Property: | N | Remodel Property: | N |
| Multi-Family Redevelopment: | N | | |
| Township: | | Section: | |
| Range: | |
Location |
| Address: | 1594 DOUGLAS ST OAK HARBOR, WA 98277 | Mapsco: | |
| Neighborhood: | Cycle 2 | Map ID: | 149 |
| Neighborhood CD: | 2 |
Owner |
| Name: | VLASKAMP, ERIK | Owner ID: | 313034 |
| Mailing Address: | TANIA VLASKAMP 1594 DOUGLAS ST OAK HARBOR, WA 98277 | % Ownership: | 100.0000000000% |
| | | Exemptions: | |
Taxes and Assessment Details
Values
| (+) Improvement Homesite Value: | + | $0 | |
| (+) Improvement Non-Homesite Value: | + | $232,963 | |
| (+) Land Homesite Value: | + | $0 | |
| (+) Land Non-Homesite Value: | + | $220,000 | |
| (+) Curr Use (HS): | + | $0 | $0 |
| (+) Curr Use (NHS): | + | $0 | $0 |
| | | -------------------------- | |
| (=) Market Value: | = | $452,963 | |
| (–) Productivity Loss: | – | $0 | |
| | | -------------------------- | |
| (=) Subtotal: | = | $452,963 | |
| (+) Senior Appraised Value: | + | $0 | |
| (+) Non-Senior Appraised Value: | + | $452,963 | |
| | | -------------------------- | |
| (=) Total Appraised Value: | = | $452,963 | |
| (–) Senior Exemption Loss: | – | $0 | |
| (–) Exemption Loss: | – | $0 | |
| | | -------------------------- | |
| (=) Taxable Value: | = | $452,963 | |
Taxing Jurisdiction
| Owner: | VLASKAMP, ERIK | | |
| % Ownership: | 100.0000000000% | | |
| Total Value: | $452,963 | | |
| Tax Area: | 330 - APPRAISER-Cpvl Schl Dist, Special Dist, improved & less than 1 acre |
| CF | Conservation Futures | 0.0316035091 | $452,963 | $452,963 | $14.32 | | |
| CEM2 | Cemetery #2 | 0.0095056933 | $452,963 | $452,963 | $4.31 | | |
| FIRE2 | Fire & Rescue Dist #2 N Whidbey GEN | 0.5475949600 | $452,963 | $452,963 | $248.04 | | |
| HOBOND | Hospital BOND | 0.1910887512 | $452,963 | $452,963 | $86.56 | | |
| HOGEN | Hospital GEN | 0.3902502903 | $452,963 | $452,963 | $176.77 | | |
| CE | County Current Expense | 0.3708482477 | $452,963 | $452,963 | $167.98 | | |
| CR | County Roads | 0.4584763726 | $452,963 | $452,963 | $207.67 | | |
| ISLANDEMS | Hospital GEN (EMS) | 0.5000000000 | $452,963 | $452,963 | $226.48 | | |
| LIB | Library Sno-Isle GEN | 0.3153421757 | $452,963 | $452,963 | $142.84 | | |
| LIBCAP | Library Sno-Isle BOND (Cap Fac Imp Area) | 0.0543427938 | $452,963 | $452,963 | $24.62 | | |
| POCOUP | Port of Coupeville GEN | 0.1093371703 | $452,963 | $452,963 | $49.53 | | |
| POCOUPIDD | Port of Coupeville IDD | 0.3409740022 | $452,963 | $452,963 | $154.45 | | |
| COUPSDTECH | School 204 CP (TECH) | 0.7545480007 | $452,963 | $452,963 | $341.78 | | |
| SCH204MO | School 204 Enrichment | 0.6716186034 | $452,963 | $452,963 | $304.22 | | |
| ST | State School | 1.3035497053 | $452,963 | $452,963 | $590.46 | | |
| ST2 | State School Part 2 | 0.8169543533 | $452,963 | $452,963 | $370.05 | | |
| | Total Tax Rate: | 6.8660346289 | | | | | |
| | | | | Taxes w/Current Exemptions: | $3,110.08 | | |
| | | | | Taxes w/o Exemptions: | $3,110.08 | | |
Improvement / Building
| Improvement #1: | RESIDENTIAL | State Code: | Y | 1312.8 sqft | Value: | $232,963 |
| Bathrooms: | 3 | Bedrooms: | 3 | | Ceiling: | DRY WALL SPRAYED | Exterior Wall/Cover: | PLY/HARDBOARD T-111 | | Floor Covering: | VINYL 100% | Floor Structure: | WOOD W/SUBFLOOR | | Foundation: | CONCRETE | Heating: | BASEBOARD ELECTRIC | | Interior Finish: | DRYWALL PAINT | Plumbing Fixture Cnt: | 11 | | Roof Slope: | 5" IN 12" | Roof Structure/Cover: | CJ ASPHALT |
|
| | Type | Description | Class CD | Sub Class CD | Year Built | Area |
| | BAS | BASE/MAIN FLOOR | 3 | 0 | 1978 | 875.5 |
| | BIG | BUILT IN GARAGE | 3 | 0 | 1978 | 377.4 |
| | OWP | OPEN WOOD PORCH W/STEPS | 3 | 0 | 1978 | 63.0 |
| | OWR | OPEN WOOD PORCH W/STEPS/ROOF | 3 | 0 | 1978 | 264.0 |
| | DWN | DOWNSTAIRS LIVING AREA | 3 | 0 | 1978 | 437.3 |
Sketch
Property Image
Land
| 1 | 15 | SQ (12001-21780) | 0.3942 | 17171.35 | 0.00 | 0.00 | 1.00 | $220,000 | $0 |
Roll Value History
| 2026 | N/A | N/A | N/A | N/A | N/A |
| 2025 | $232,963 | $220,000 | $0 | $452,963 | $452,963 |
| 2024 | $200,817 | $210,000 | $0 | $410,817 | $410,817 |
| 2023 | $203,674 | $220,000 | $0 | $423,674 | $423,674 |
| 2022 | $187,027 | $220,000 | $0 | $407,027 | $407,027 |
| 2021 | $164,877 | $180,000 | $0 | $344,877 | $344,877 |
| 2020 | $160,420 | $140,000 | $0 | $300,420 | $300,420 |
| 2019 | $113,678 | $170,000 | $0 | $283,678 | $283,678 |
| 2018 | $116,249 | $135,000 | $0 | $251,249 | $251,249 |
| 2017 | $116,986 | $120,000 | $0 | $236,986 | $236,986 |
| 2016 | $118,540 | $100,000 | $0 | $218,540 | $218,540 |
| 2015 | $120,092 | $70,000 | $0 | $190,092 | $190,092 |
| 2014 | $121,646 | $60,000 | $0 | $181,646 | $181,646 |
| 2013 | $123,197 | $55,000 | $0 | $178,197 | $178,197 |
| 2012 | $128,384 | $57,800 | $0 | $186,184 | $186,184 |
| 2011 | $129,943 | $68,000 | $0 | $197,943 | $197,943 |
| 2010 | $135,921 | $68,000 | $0 | $203,921 | $203,921 |
| 2009 | $141,918 | $74,400 | $0 | $216,318 | $216,318 |
| 2008 | $144,121 | $74,400 | $0 | $218,521 | $218,521 |
| 2007 | $129,177 | $74,400 | $0 | $203,577 | $203,577 |
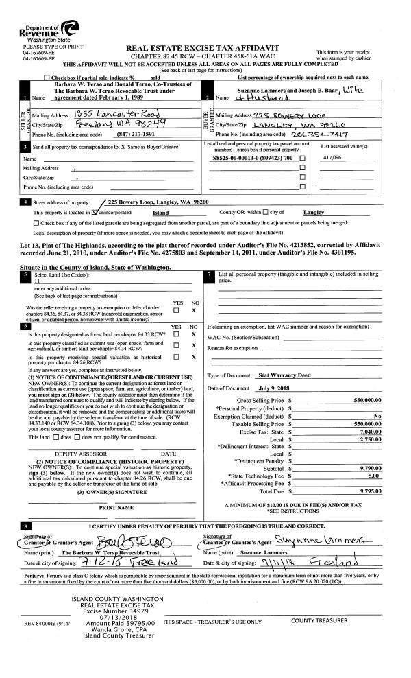
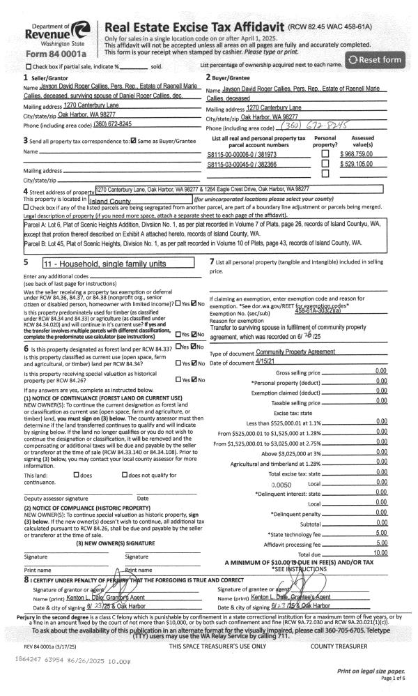
Deed and Sales History
| 1 | 06/28/2024 | WD | Warranty Deed | FARLEY TTEE, SANDRA J | VLASKAMP, ERIK | | | $449,000.00 | 60551 | 4574212 |
| 2 | 01/28/2022 | QCD | Quit Claim Deed | FARLEY, SANDRA J | FARLEY TTEE, SANDRA J | | | $0.00 | 51882 | 4539265 |
| 3 | 06/28/2018 | WD | Warranty Deed | WEDDEL, ADRIAN S | FARLEY, SANDRA J | | | $285,000.00 | 34820 | 4447294 |
| 4 | 12/01/1978 | OTHER | Other - Misc. Documents | Unknown | WEDDEL, ADRIAN S | | | $47,500.00 | 86239 | 345154 |
Payout Agreement
| No payout information available.. |