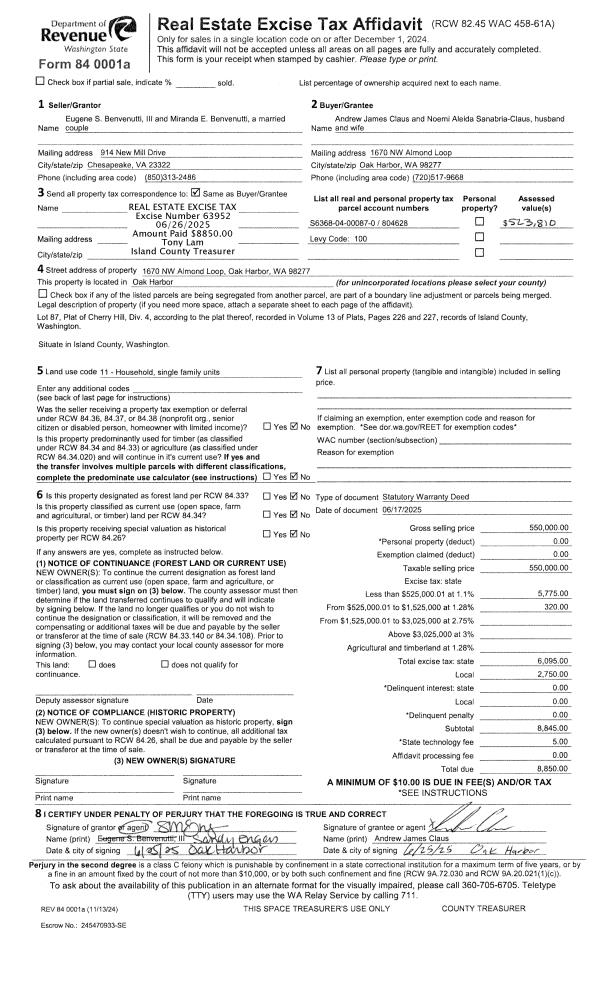
Property
Account |
| Property ID: | 361628 | Abbreviated Legal Description: | ROLL HILL LOT 29 BLK 5 |
| Geographic ID: | S8050-00-05029-0 | Agent Code: | |
| Type: | Real | | |
| Tax Area: | 330 - APPRAISER-Cpvl Schl Dist, Special Dist, improved & less than 1 acre | Land Use Code | 11 |
| Open Space: | N | DFL | N |
| Historic Property: | N | Remodel Property: | N |
| Multi-Family Redevelopment: | N | | |
| Township: | | Section: | |
| Range: | |
Location |
| Address: | 1658 DOUGLAS ST OAK HARBOR, WA 98277 | Mapsco: | |
| Neighborhood: | Cycle 2 | Map ID: | 146 |
| Neighborhood CD: | 2 |
Owner |
| Name: | ALVAREZ, JUAN R | Owner ID: | 256204 |
| Mailing Address: | JULIE A ALVAREZ 1658 DOUGLAS ST OAK HARBOR, WA 98277-7688 | % Ownership: | 100.0000000000% |
| | | Exemptions: | |
Taxes and Assessment Details
Values
| (+) Improvement Homesite Value: | + | $0 | |
| (+) Improvement Non-Homesite Value: | + | $177,097 | |
| (+) Land Homesite Value: | + | $0 | |
| (+) Land Non-Homesite Value: | + | $220,000 | |
| (+) Curr Use (HS): | + | $0 | $0 |
| (+) Curr Use (NHS): | + | $0 | $0 |
| | | -------------------------- | |
| (=) Market Value: | = | $397,097 | |
| (–) Productivity Loss: | – | $0 | |
| | | -------------------------- | |
| (=) Subtotal: | = | $397,097 | |
| (+) Senior Appraised Value: | + | $0 | |
| (+) Non-Senior Appraised Value: | + | $397,097 | |
| | | -------------------------- | |
| (=) Total Appraised Value: | = | $397,097 | |
| (–) Senior Exemption Loss: | – | $0 | |
| (–) Exemption Loss: | – | $0 | |
| | | -------------------------- | |
| (=) Taxable Value: | = | $397,097 | |
Taxing Jurisdiction
| Owner: | ALVAREZ, JUAN R | | |
| % Ownership: | 100.0000000000% | | |
| Total Value: | $397,097 | | |
| Tax Area: | 330 - APPRAISER-Cpvl Schl Dist, Special Dist, improved & less than 1 acre |
| CF | Conservation Futures | 0.0316035091 | $397,097 | $397,097 | $12.55 | | |
| CEM2 | Cemetery #2 | 0.0095056933 | $397,097 | $397,097 | $3.77 | | |
| FIRE2 | Fire & Rescue Dist #2 N Whidbey GEN | 0.5475949600 | $397,097 | $397,097 | $217.45 | | |
| HOBOND | Hospital BOND | 0.1910887512 | $397,097 | $397,097 | $75.88 | | |
| HOGEN | Hospital GEN | 0.3902502903 | $397,097 | $397,097 | $154.97 | | |
| CE | County Current Expense | 0.3708482477 | $397,097 | $397,097 | $147.26 | | |
| CR | County Roads | 0.4584763726 | $397,097 | $397,097 | $182.06 | | |
| ISLANDEMS | Hospital GEN (EMS) | 0.5000000000 | $397,097 | $397,097 | $198.55 | | |
| LIB | Library Sno-Isle GEN | 0.3153421757 | $397,097 | $397,097 | $125.22 | | |
| LIBCAP | Library Sno-Isle BOND (Cap Fac Imp Area) | 0.0543427938 | $397,097 | $397,097 | $21.58 | | |
| POCOUP | Port of Coupeville GEN | 0.1093371703 | $397,097 | $397,097 | $43.42 | | |
| POCOUPIDD | Port of Coupeville IDD | 0.3409740022 | $397,097 | $397,097 | $135.40 | | |
| COUPSDTECH | School 204 CP (TECH) | 0.7545480007 | $397,097 | $397,097 | $299.63 | | |
| SCH204MO | School 204 Enrichment | 0.6716186034 | $397,097 | $397,097 | $266.70 | | |
| ST | State School | 1.3035497053 | $397,097 | $397,097 | $517.64 | | |
| ST2 | State School Part 2 | 0.8169543533 | $397,097 | $397,097 | $324.41 | | |
| | Total Tax Rate: | 6.8660346289 | | | | | |
| | | | | Taxes w/Current Exemptions: | $2,726.49 | | |
| | | | | Taxes w/o Exemptions: | $2,726.49 | | |
Improvement / Building
| Improvement #1: | MANUFACTURED HOME | State Code: | Y | 1588.0 sqft | Value: | $177,097 |
| Bathrooms: | 2 | Bedrooms: | 3 | | Ceiling: | PLASTER PAINTED | Cooling: | EVAP NO DUCT | | Exterior Wall/Cover: | VINYL | Floor Covering: | CARPET 100% | | Floor Structure: | SLAB ON GRADE | Foundation: | SLAB | | Heating: | FHA ELECTRIC | Interior Finish: | PLASTER | | Roof Slope: | FLAT | Roof Structure/Cover: | CJ ALUMINIUM HEAVY |
|
| | Type | Description | Class CD | Sub Class CD | Year Built | Area |
| | BAS | BASE/MAIN FLOOR | 5 | 0 | 2011 | 1588.0 |
| | OCP | OPEN CARPORT | 5 | 0 | 2011 | 702.0 |
| | OWC | OPEN WOOD PORCH W/STEPS/ROOF/C | 5 | 0 | 2011 | 138.0 |
| | OWP | OPEN WOOD PORCH W/STEPS | 5 | 0 | 2011 | 480.0 |
Sketch
Property Image
Land
| 1 | 15 | SQ (12001-21780) | 0.4443 | 19353.71 | 0.00 | 0.00 | 1.00 | $220,000 | $0 |
Roll Value History
| 2026 | N/A | N/A | N/A | N/A | N/A |
| 2025 | $177,097 | $220,000 | $0 | $397,097 | $397,097 |
| 2024 | $165,338 | $210,000 | $0 | $375,338 | $375,338 |
| 2023 | $145,455 | $220,000 | $0 | $365,455 | $365,455 |
| 2022 | $134,738 | $220,000 | $0 | $354,738 | $354,738 |
| 2021 | $118,478 | $180,000 | $0 | $298,478 | $298,478 |
| 2020 | $117,542 | $140,000 | $0 | $257,542 | $257,542 |
| 2019 | $93,642 | $170,000 | $0 | $263,642 | $263,642 |
| 2018 | $95,261 | $135,000 | $0 | $230,261 | $230,261 |
| 2017 | $96,295 | $120,000 | $0 | $216,295 | $216,295 |
| 2016 | $97,331 | $100,000 | $0 | $197,331 | $197,331 |
| 2015 | $99,402 | $70,000 | $0 | $169,402 | $169,402 |
| 2014 | $100,437 | $60,000 | $0 | $160,437 | $160,437 |
| 2013 | $101,473 | $55,000 | $0 | $156,473 | $156,473 |
| 2012 | $89,694 | $57,800 | $0 | $147,494 | $147,494 |
| 2011 | $0 | $6,800 | $0 | $6,800 | $6,800 |
| 2010 | $0 | $6,800 | $0 | $6,800 | $6,800 |
| 2009 | $0 | $7,440 | $0 | $7,440 | $7,440 |
| 2008 | $0 | $7,440 | $0 | $7,440 | $7,440 |
| 2007 | $0 | $7,440 | $0 | $7,440 | $7,440 |
Deed and Sales History
| 1 | 11/21/2011 | WD | Warranty Deed | WESTGATE MOBILE HOMES INC | ALVAREZ, JUAN R | | | $129,500.00 | 6203 | 435189 |
| 2 | 09/27/2010 | WD | Warranty Deed | LYNN, JUDITH A | WESTGATE MOBILE HOMES INC | | | $15,000.00 | 1890 | 4278057 |
| 3 | 12/06/2006 | PRD | Personal Representatives Deed | ARNOLD, VALERIE E | LYNN, JUDITH A | | | $0.00 | 65099 | 4188607 |
| 4 | 11/16/1998 | WD | Warranty Deed | ISLAND, COUNTY | ARNOLD, VALERIE E | | | $5,000.00 | 84679 | 98025567 |
| 5 | 11/01/1998 | WD | Warranty Deed | Unknown | ARNOLD, VALERIE | | | $5,000.00 | 84679 | 98025567 |
| 6 | 08/01/1994 | WD | Warranty Deed | REISWIG, HENRY M | ISLAND, COUNTY | | | $0.00 | 43345 | 94017847 |
| 7 | 03/01/1989 | OTHER | Other - Misc. Documents | REISWIG, HENRY M | REISWIG, HENRY M | | | $0.00 | 63060 | 412364 |
| 8 | 06/01/1983 | QCD | Quit Claim Deed | REISWIG, HENRY M | REISWIG, HENRY M | | | $0.00 | 31798 | 411608 |
| 9 | 06/01/1983 | QCD | Quit Claim Deed | REISWIG, LENORE A | REISWIG, HENRY M | | | $4,200.00 | 32015 | 412364 |
| 10 | 01/01/1982 | REC | Real Estate Contract | REISWIG, ALEXANDER R | REISWIG, LENORE A | | | $1.00 | 59370 | 392520 |
| 11 | 01/01/1900 | OTHER | Other - Misc. Documents | ARNOLD, VALERIE | REISWIG, ALEXANDER R | | | $0.00 | 0 | 0 |
Payout Agreement
| No payout information available.. |