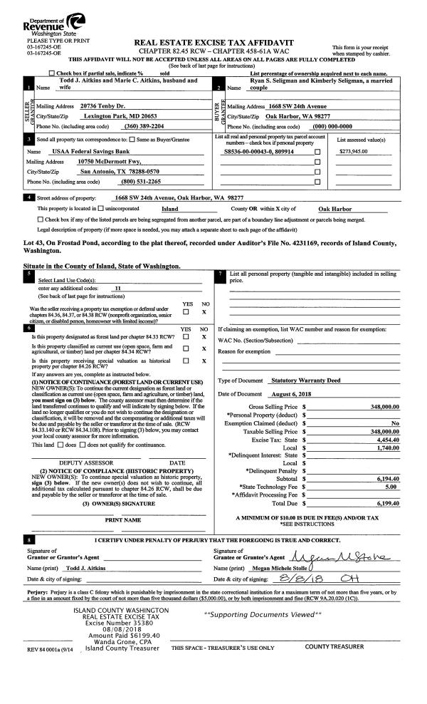
Property
Account |
| Property ID: | 361851 | Abbreviated Legal Description: | ROLL HILL LOT 18 BLK 6 |
| Geographic ID: | S8050-00-06018-0 | Agent Code: | |
| Type: | Real | | |
| Tax Area: | 330 - APPRAISER-Cpvl Schl Dist, Special Dist, improved & less than 1 acre | Land Use Code | 11 |
| Open Space: | N | DFL | N |
| Historic Property: | N | Remodel Property: | N |
| Multi-Family Redevelopment: | N | | |
| Township: | | Section: | |
| Range: | |
Location |
| Address: | 898 DONALD AVE OAK HARBOR, WA 98277 | Mapsco: | |
| Neighborhood: | Cycle 2 | Map ID: | 149 |
| Neighborhood CD: | 2 |
Owner |
| Name: | ENGELKE, FREDRICK A | Owner ID: | 286374 |
| Mailing Address: | TAMMY CHOON MEI LEONG-ENGELKE 898 DONALD AVE OAK HARBOR, WA 98277 | % Ownership: | 100.0000000000% |
| | | Exemptions: | |
Taxes and Assessment Details
Values
| (+) Improvement Homesite Value: | + | $0 | |
| (+) Improvement Non-Homesite Value: | + | $150,704 | |
| (+) Land Homesite Value: | + | $0 | |
| (+) Land Non-Homesite Value: | + | $220,000 | |
| (+) Curr Use (HS): | + | $0 | $0 |
| (+) Curr Use (NHS): | + | $0 | $0 |
| | | -------------------------- | |
| (=) Market Value: | = | $370,704 | |
| (–) Productivity Loss: | – | $0 | |
| | | -------------------------- | |
| (=) Subtotal: | = | $370,704 | |
| (+) Senior Appraised Value: | + | $0 | |
| (+) Non-Senior Appraised Value: | + | $370,704 | |
| | | -------------------------- | |
| (=) Total Appraised Value: | = | $370,704 | |
| (–) Senior Exemption Loss: | – | $0 | |
| (–) Exemption Loss: | – | $0 | |
| | | -------------------------- | |
| (=) Taxable Value: | = | $370,704 | |
Taxing Jurisdiction
| Owner: | ENGELKE, FREDRICK A | | |
| % Ownership: | 100.0000000000% | | |
| Total Value: | $370,704 | | |
| Tax Area: | 330 - APPRAISER-Cpvl Schl Dist, Special Dist, improved & less than 1 acre |
| CF | Conservation Futures | 0.0316035091 | $370,704 | $370,704 | $11.72 | | |
| CEM2 | Cemetery #2 | 0.0095056933 | $370,704 | $370,704 | $3.52 | | |
| FIRE2 | Fire & Rescue Dist #2 N Whidbey GEN | 0.5475949600 | $370,704 | $370,704 | $203.00 | | |
| HOBOND | Hospital BOND | 0.1910887512 | $370,704 | $370,704 | $70.84 | | |
| HOGEN | Hospital GEN | 0.3902502903 | $370,704 | $370,704 | $144.67 | | |
| CE | County Current Expense | 0.3708482477 | $370,704 | $370,704 | $137.47 | | |
| CR | County Roads | 0.4584763726 | $370,704 | $370,704 | $169.96 | | |
| ISLANDEMS | Hospital GEN (EMS) | 0.5000000000 | $370,704 | $370,704 | $185.35 | | |
| LIB | Library Sno-Isle GEN | 0.3153421757 | $370,704 | $370,704 | $116.90 | | |
| LIBCAP | Library Sno-Isle BOND (Cap Fac Imp Area) | 0.0543427938 | $370,704 | $370,704 | $20.15 | | |
| POCOUP | Port of Coupeville GEN | 0.1093371703 | $370,704 | $370,704 | $40.53 | | |
| POCOUPIDD | Port of Coupeville IDD | 0.3409740022 | $370,704 | $370,704 | $126.40 | | |
| COUPSDTECH | School 204 CP (TECH) | 0.7545480007 | $370,704 | $370,704 | $279.71 | | |
| SCH204MO | School 204 Enrichment | 0.6716186034 | $370,704 | $370,704 | $248.97 | | |
| ST | State School | 1.3035497053 | $370,704 | $370,704 | $483.23 | | |
| ST2 | State School Part 2 | 0.8169543533 | $370,704 | $370,704 | $302.85 | | |
| | Total Tax Rate: | 6.8660346289 | | | | | |
| | | | | Taxes w/Current Exemptions: | $2,545.27 | | |
| | | | | Taxes w/o Exemptions: | $2,545.27 | | |
Improvement / Building
| Improvement #1: | MANUFACTURED HOME | State Code: | Y | 1404.0 sqft | Value: | $150,704 |
| Bathrooms: | 2 | Bedrooms: | 3 | | Ceiling: | PLASTER PAINTED | Cooling: | EVAP NO DUCT | | Exterior Wall/Cover: | VINYL | Floor Covering: | CARPET 100% | | Floor Structure: | SLAB ON GRADE | Foundation: | SLAB | | Heating: | FHA ELECTRIC | Interior Finish: | PLASTER | | Plumbing Fixture Cnt: | 1 | Roof Slope: | FLAT | | Roof Structure/Cover: | CJ ALUMINIUM HEAVY |   |   |
|
| | Type | Description | Class CD | Sub Class CD | Year Built | Area |
| | BAS | BASE/MAIN FLOOR | 4 | 0 | 2002 | 1404.0 |
| | OWP | OPEN WOOD PORCH W/STEPS | 4 | 0 | 2002 | 160.0 |
| | UTY | STORAGE/UTILITY | 4 | 0 | 2002 | 120.0 |
| | OWP | OPEN WOOD PORCH W/STEPS | 4 | 0 | 2002 | 252.0 |
Sketch
| No sketches available for this property. |
Property Image
Land
| 1 | 15 | SQ (12001-21780) | 0.4400 | 19166.40 | 0.00 | 0.00 | 1.00 | $220,000 | $0 |
Roll Value History
| 2026 | N/A | N/A | N/A | N/A | N/A |
| 2025 | $150,704 | $220,000 | $0 | $370,704 | $370,704 |
| 2024 | $121,793 | $210,000 | $0 | $331,793 | $331,793 |
| 2023 | $108,929 | $220,000 | $0 | $328,929 | $328,929 |
| 2022 | $100,008 | $220,000 | $0 | $320,008 | $320,008 |
| 2021 | $89,346 | $180,000 | $0 | $269,346 | $269,346 |
| 2020 | $89,054 | $140,000 | $0 | $229,054 | $229,054 |
| 2019 | $71,975 | $170,000 | $0 | $241,975 | $241,975 |
| 2018 | $78,218 | $135,000 | $0 | $213,218 | $213,218 |
| 2017 | $78,611 | $120,000 | $0 | $198,611 | $198,611 |
| 2016 | $78,627 | $100,000 | $0 | $178,627 | $178,627 |
| 2015 | $78,642 | $70,000 | $0 | $148,642 | $148,642 |
| 2014 | $78,658 | $60,000 | $0 | $138,658 | $138,658 |
| 2013 | $78,666 | $55,000 | $0 | $133,666 | $133,666 |
| 2012 | $75,714 | $57,800 | $0 | $133,514 | $133,514 |
| 2011 | $77,276 | $68,000 | $0 | $145,276 | $145,276 |
| 2010 | $83,003 | $68,000 | $0 | $151,003 | $151,003 |
| 2009 | $86,412 | $74,400 | $0 | $160,812 | $160,812 |
| 2008 | $116,308 | $74,400 | $0 | $190,708 | $190,708 |
| 2007 | $117,644 | $74,400 | $0 | $192,044 | $192,044 |
Deed and Sales History
| 1 | 08/02/2018 | WD | Warranty Deed | ENGELKE, FREDRICK A | ENGELKE, FREDRICK A | | | $0.00 | 35499 | 4450052 |
| 2 | 08/02/2018 | WD | Warranty Deed | GOSSON, BRADLEY J | ENGELKE, FREDRICK A | | | $265,000.00 | 35385 | 4449632 |
| 3 | 08/26/2015 | WD | Warranty Deed | GRIGSBY, RODNEY B | GOSSON, BRADLEY J | | | $191,000.00 | 21164 | 43850378 |
| 4 | 05/26/2005 | WD | Warranty Deed | LEMBKE, ERIC D | GRIGSBY, RODNEY B | | | $163,000.00 | 52487 | 4135979 |
| 5 | 07/03/2002 | WD | Warranty Deed | OAKWOOD MOBILE HOMES INC, | LEMBKE, ERIC D | | | $119,900.00 | 22604 | 4024895 |
| 6 | 01/07/2002 | WD | Warranty Deed | ROLLING, HILLS - | OAKWOOD MOBILE HOMES INC, | | | $27,500.00 | 20142 | 4008127 |
| 7 | 02/01/1996 | SHERIFFD | Sheriff Deed | WRIGHT, RUTH A | ROLLING, HILLS - | | | $0.00 | 66768 | 96001310 |
| 8 | 01/01/1996 | QCD | Quit Claim Deed | PILLER, JOHN J | WRIGHT, RUTH A | | | $2,025.00 | 60218 | 96002946 |
| 9 | 08/01/1990 | QCD | Quit Claim Deed | PILLER, BETTY A | PILLER, JOHN J | | | $0.00 | 5081 | 90016870 |
| 10 | 01/01/1973 | TRUSTEED | Trustee's Deed | Unknown | PILLER, BETTY A | | | $0.00 | 45968 | 257985 |
Payout Agreement
| No payout information available.. |