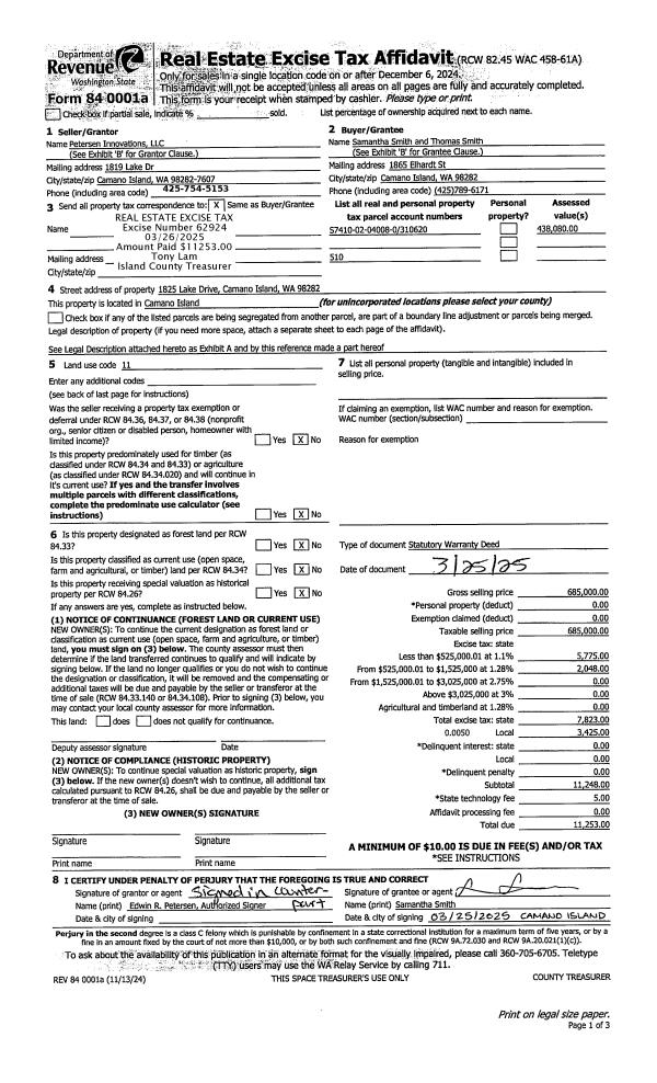
Property
Account |
| Property ID: | 362128 | Abbreviated Legal Description: | ROLL HILL LOT 21 BLK 7 |
| Geographic ID: | S8050-00-07021-0 | Agent Code: | |
| Type: | Real | | |
| Tax Area: | 330 - APPRAISER-Cpvl Schl Dist, Special Dist, improved & less than 1 acre | Land Use Code | 11 |
| Open Space: | N | DFL | N |
| Historic Property: | N | Remodel Property: | N |
| Multi-Family Redevelopment: | N | | |
| Township: | | Section: | |
| Range: | |
Location |
| Address: | 915 DONALD AVE OAK HARBOR, WA 98277 | Mapsco: | |
| Neighborhood: | Cycle 2 | Map ID: | 149 |
| Neighborhood CD: | 2 |
Owner |
| Name: | WALLS, FRANKLIN E | Owner ID: | 11491 |
| Mailing Address: | 915 DONALD AVE OAK HARBOR, WA 98277-8297 | % Ownership: | 100.0000000000% |
| | | Exemptions: | |
Taxes and Assessment Details
Values
| (+) Improvement Homesite Value: | + | $0 | |
| (+) Improvement Non-Homesite Value: | + | $19,492 | |
| (+) Land Homesite Value: | + | $0 | |
| (+) Land Non-Homesite Value: | + | $220,000 | |
| (+) Curr Use (HS): | + | $0 | $0 |
| (+) Curr Use (NHS): | + | $0 | $0 |
| | | -------------------------- | |
| (=) Market Value: | = | $239,492 | |
| (–) Productivity Loss: | – | $0 | |
| | | -------------------------- | |
| (=) Subtotal: | = | $239,492 | |
| (+) Senior Appraised Value: | + | $0 | |
| (+) Non-Senior Appraised Value: | + | $239,492 | |
| | | -------------------------- | |
| (=) Total Appraised Value: | = | $239,492 | |
| (–) Senior Exemption Loss: | – | $0 | |
| (–) Exemption Loss: | – | $0 | |
| | | -------------------------- | |
| (=) Taxable Value: | = | $239,492 | |
Taxing Jurisdiction
| Owner: | WALLS, FRANKLIN E | | |
| % Ownership: | 100.0000000000% | | |
| Total Value: | $239,492 | | |
| Tax Area: | 330 - APPRAISER-Cpvl Schl Dist, Special Dist, improved & less than 1 acre |
| CF | Conservation Futures | 0.0316035091 | $239,492 | $239,492 | $7.57 | | |
| CEM2 | Cemetery #2 | 0.0095056933 | $239,492 | $239,492 | $2.28 | | |
| FIRE2 | Fire & Rescue Dist #2 N Whidbey GEN | 0.5475949600 | $239,492 | $239,492 | $131.14 | | |
| HOBOND | Hospital BOND | 0.1910887512 | $239,492 | $239,492 | $45.76 | | |
| HOGEN | Hospital GEN | 0.3902502903 | $239,492 | $239,492 | $93.46 | | |
| CE | County Current Expense | 0.3708482477 | $239,492 | $239,492 | $88.82 | | |
| CR | County Roads | 0.4584763726 | $239,492 | $239,492 | $109.80 | | |
| ISLANDEMS | Hospital GEN (EMS) | 0.5000000000 | $239,492 | $239,492 | $119.75 | | |
| LIB | Library Sno-Isle GEN | 0.3153421757 | $239,492 | $239,492 | $75.52 | | |
| LIBCAP | Library Sno-Isle BOND (Cap Fac Imp Area) | 0.0543427938 | $239,492 | $239,492 | $13.01 | | |
| POCOUP | Port of Coupeville GEN | 0.1093371703 | $239,492 | $239,492 | $26.19 | | |
| POCOUPIDD | Port of Coupeville IDD | 0.3409740022 | $239,492 | $239,492 | $81.66 | | |
| COUPSDTECH | School 204 CP (TECH) | 0.7545480007 | $239,492 | $239,492 | $180.71 | | |
| SCH204MO | School 204 Enrichment | 0.6716186034 | $239,492 | $239,492 | $160.85 | | |
| ST | State School | 1.3035497053 | $239,492 | $239,492 | $312.19 | | |
| ST2 | State School Part 2 | 0.8169543533 | $239,492 | $239,492 | $195.65 | | |
| | Total Tax Rate: | 6.8660346289 | | | | | |
| | | | | Taxes w/Current Exemptions: | $1,644.36 | | |
| | | | | Taxes w/o Exemptions: | $1,644.36 | | |
Improvement / Building
| Improvement #1: | MANUFACTURED HOME | State Code: | Y | 1080.0 sqft | Value: | $19,492 |
| Bathrooms: | 0 | Bedrooms: | 0 | | Ceiling: | PLASTER PAINTED | Cooling: | EVAP NO DUCT | | Exterior Wall/Cover: | VINYL | Floor Covering: | CARPET 100% | | Floor Structure: | SLAB ON GRADE | Foundation: | SLAB | | Heating: | FHA ELECTRIC | Interior Finish: | PLASTER | | Plumbing Fixture Cnt: | 1 | Roof Slope: | FLAT | | Roof Structure/Cover: | CJ ALUMINIUM HEAVY |   |   |
|
Sketch
Property Image
Land
| 1 | 15 | SQ (12001-21780) | 0.4600 | 20037.60 | 0.00 | 0.00 | 1.00 | $220,000 | $0 |
Roll Value History
| 2026 | N/A | N/A | N/A | N/A | N/A |
| 2025 | $19,492 | $220,000 | $0 | $239,492 | $239,492 |
| 2024 | $21,441 | $210,000 | $0 | $231,441 | $231,441 |
| 2023 | $23,390 | $220,000 | $0 | $243,390 | $243,390 |
| 2022 | $22,062 | $220,000 | $0 | $242,062 | $242,062 |
| 2021 | $20,721 | $180,000 | $0 | $200,721 | $200,721 |
| 2020 | $20,859 | $140,000 | $0 | $160,859 | $160,859 |
| 2019 | $17,606 | $170,000 | $0 | $187,606 | $187,606 |
| 2018 | $16,887 | $135,000 | $0 | $151,887 | $151,887 |
| 2017 | $17,396 | $120,000 | $0 | $137,396 | $137,396 |
| 2016 | $18,416 | $100,000 | $0 | $118,416 | $118,416 |
| 2015 | $18,925 | $70,000 | $0 | $88,925 | $88,925 |
| 2014 | $19,945 | $60,000 | $0 | $79,945 | $79,945 |
| 2013 | $20,455 | $55,000 | $0 | $75,455 | $75,455 |
| 2012 | $36,301 | $57,800 | $0 | $94,101 | $94,101 |
| 2011 | $37,321 | $68,000 | $0 | $105,321 | $105,321 |
| 2010 | $37,989 | $68,000 | $0 | $105,989 | $105,989 |
| 2009 | $39,076 | $74,400 | $0 | $113,476 | $113,476 |
| 2008 | $39,573 | $74,400 | $0 | $113,973 | $113,973 |
| 2007 | $69,020 | $74,772 | $0 | $143,792 | $143,792 |
Deed and Sales History
| 1 | 03/01/1995 | QCD | Quit Claim Deed | DECKER, PAULINE | WALLS, FRANKLIN E | | | $0.00 | 50892 | 95004302 |
| 2 | 04/01/1986 | OTHER | Other - Misc. Documents | WALLS, FRANKLIN E | DECKER, PAULINE | | | $0.00 | 60737 | 0 |
| 3 | 04/01/1986 | OTHER | Other - Misc. Documents | WALLS, FRANKLIN E | WALLS, FRANKLIN E | | | $15,000.00 | 60736 | 0 |
| 4 | 03/01/1986 | WD | Warranty Deed | DECKER, PAULINE | WALLS, FRANKLIN E | | | $18,000.00 | 60723 | 86003427 |
| 5 | 10/01/1985 | QCD | Quit Claim Deed | TSCHERNICH, ANTON | DECKER, PAULINE | | | $0.00 | 53356 | 85013248 |
| 6 | 01/01/1900 | OTHER | Other - Misc. Documents | Unknown | TSCHERNICH, ANTON | | | $0.00 | 0 | 0 |
Payout Agreement
| No payout information available.. |