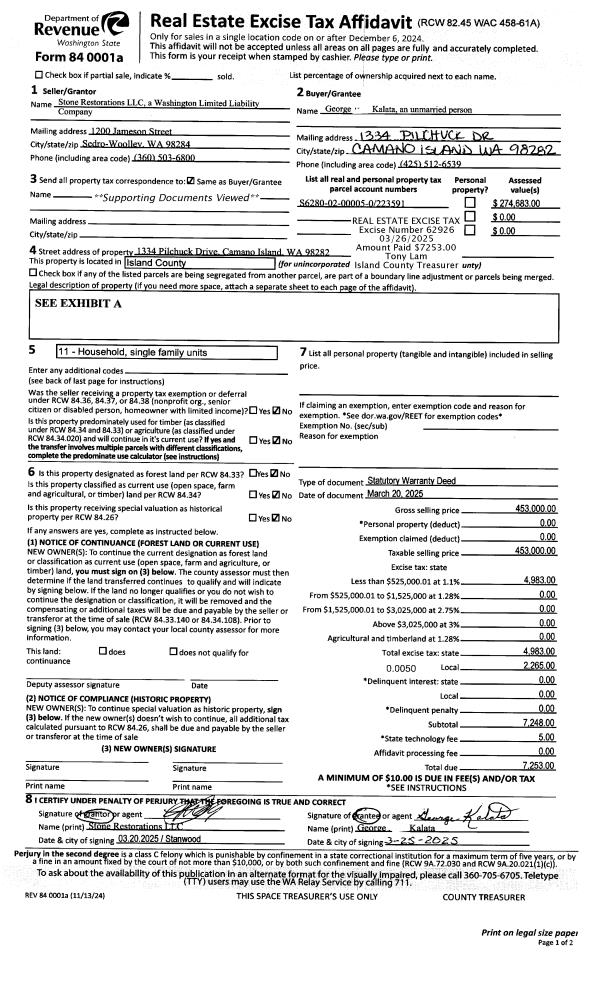
Property
Account |
| Property ID: | 362155 | Abbreviated Legal Description: | ROLL HILL LOT 24 BLK 7 |
| Geographic ID: | S8050-00-07024-0 | Agent Code: | |
| Type: | Real | | |
| Tax Area: | 330 - APPRAISER-Cpvl Schl Dist, Special Dist, improved & less than 1 acre | Land Use Code | 11 |
| Open Space: | N | DFL | N |
| Historic Property: | N | Remodel Property: | N |
| Multi-Family Redevelopment: | N | | |
| Township: | | Section: | |
| Range: | |
Location |
| Address: | 931 DONALD AVE OAK HARBOR, WA 98277 | Mapsco: | |
| Neighborhood: | Cycle 2 | Map ID: | 149 |
| Neighborhood CD: | 2 |
Owner |
| Name: | WALCUTT, ALOYSIUS CLIFFORD | Owner ID: | 301850 |
| Mailing Address: | TABITHA D'ANN WALCUTT 931 DONALD AVE OAK HARBOR, WA 98277 | % Ownership: | 100.0000000000% |
| | | Exemptions: | |
Taxes and Assessment Details
Values
| (+) Improvement Homesite Value: | + | $0 | |
| (+) Improvement Non-Homesite Value: | + | $303,364 | |
| (+) Land Homesite Value: | + | $0 | |
| (+) Land Non-Homesite Value: | + | $220,000 | |
| (+) Curr Use (HS): | + | $0 | $0 |
| (+) Curr Use (NHS): | + | $0 | $0 |
| | | -------------------------- | |
| (=) Market Value: | = | $523,364 | |
| (–) Productivity Loss: | – | $0 | |
| | | -------------------------- | |
| (=) Subtotal: | = | $523,364 | |
| (+) Senior Appraised Value: | + | $0 | |
| (+) Non-Senior Appraised Value: | + | $523,364 | |
| | | -------------------------- | |
| (=) Total Appraised Value: | = | $523,364 | |
| (–) Senior Exemption Loss: | – | $0 | |
| (–) Exemption Loss: | – | $0 | |
| | | -------------------------- | |
| (=) Taxable Value: | = | $523,364 | |
Taxing Jurisdiction
| Owner: | WALCUTT, ALOYSIUS CLIFFORD | | |
| % Ownership: | 100.0000000000% | | |
| Total Value: | $523,364 | | |
| Tax Area: | 330 - APPRAISER-Cpvl Schl Dist, Special Dist, improved & less than 1 acre |
| CF | Conservation Futures | 0.0316035091 | $523,364 | $523,364 | $16.54 | | |
| CEM2 | Cemetery #2 | 0.0095056933 | $523,364 | $523,364 | $4.97 | | |
| FIRE2 | Fire & Rescue Dist #2 N Whidbey GEN | 0.5475949600 | $523,364 | $523,364 | $286.59 | | |
| HOBOND | Hospital BOND | 0.1910887512 | $523,364 | $523,364 | $100.01 | | |
| HOGEN | Hospital GEN | 0.3902502903 | $523,364 | $523,364 | $204.24 | | |
| CE | County Current Expense | 0.3708482477 | $523,364 | $523,364 | $194.09 | | |
| CR | County Roads | 0.4584763726 | $523,364 | $523,364 | $239.95 | | |
| ISLANDEMS | Hospital GEN (EMS) | 0.5000000000 | $523,364 | $523,364 | $261.68 | | |
| LIB | Library Sno-Isle GEN | 0.3153421757 | $523,364 | $523,364 | $165.04 | | |
| LIBCAP | Library Sno-Isle BOND (Cap Fac Imp Area) | 0.0543427938 | $523,364 | $523,364 | $28.44 | | |
| POCOUP | Port of Coupeville GEN | 0.1093371703 | $523,364 | $523,364 | $57.22 | | |
| POCOUPIDD | Port of Coupeville IDD | 0.3409740022 | $523,364 | $523,364 | $178.45 | | |
| COUPSDTECH | School 204 CP (TECH) | 0.7545480007 | $523,364 | $523,364 | $394.90 | | |
| SCH204MO | School 204 Enrichment | 0.6716186034 | $523,364 | $523,364 | $351.50 | | |
| ST | State School | 1.3035497053 | $523,364 | $523,364 | $682.23 | | |
| ST2 | State School Part 2 | 0.8169543533 | $523,364 | $523,364 | $427.56 | | |
| | Total Tax Rate: | 6.8660346289 | | | | | |
| | | | | Taxes w/Current Exemptions: | $3,593.41 | | |
| | | | | Taxes w/o Exemptions: | $3,593.41 | | |
Improvement / Building
| Improvement #1: | RESIDENTIAL | State Code: | Y | 1629.2 sqft | Value: | $303,364 |
| Bathrooms: | 2.5 | Bedrooms: | 2 | | Ceiling: | DRYWALL PAINTED | Exterior Wall/Cover: | CEMENT FIBER | | Floor Covering: | CARPET/VINYL 80-20 | Floor Structure: | WOOD W/SUBFLOOR | | Foundation: | CONCRETE | Heating: | FHA GAS | | Interior Finish: | DRYWALL PAINT | Plumbing Fixture Cnt: | 12 | | Roof Slope: | 6" IN 12" | Roof Structure/Cover: | CJ ASPHALT |
|
| | Type | Description | Class CD | Sub Class CD | Year Built | Area |
| | BAS | BASE/MAIN FLOOR | 3 | 0 | 2006 | 754.2 |
| | AGR | ATTACHED GARAGE | 3 | 0 | 2006 | 597.8 |
| | UPS | UPPER STORY | 3 | 0 | 2006 | 875.0 |
| | OWP | OPEN WOOD PORCH W/STEPS | 3 | 0 | 2006 | 130.8 |
| | OWC | OPEN WOOD PORCH W/STEPS/ROOF/C | 3 | 0 | 2006 | 45.3 |
Sketch
| No sketches available for this property. |
Property Image
Land
| 1 | 15 | SQ (12001-21780) | 0.4600 | 20037.60 | 0.00 | 0.00 | 1.00 | $220,000 | $0 |
Roll Value History
| 2026 | N/A | N/A | N/A | N/A | N/A |
| 2025 | $303,364 | $220,000 | $0 | $523,364 | $523,364 |
| 2024 | $307,008 | $210,000 | $0 | $517,008 | $517,008 |
| 2023 | $310,652 | $220,000 | $0 | $530,652 | $530,652 |
| 2022 | $284,600 | $220,000 | $0 | $504,600 | $504,600 |
| 2021 | $250,348 | $180,000 | $0 | $430,348 | $430,348 |
| 2020 | $243,391 | $140,000 | $0 | $383,391 | $383,391 |
| 2019 | $175,756 | $170,000 | $0 | $345,756 | $345,756 |
| 2018 | $170,935 | $135,000 | $0 | $305,935 | $305,935 |
| 2017 | $171,860 | $120,000 | $0 | $291,860 | $291,860 |
| 2016 | $173,796 | $100,000 | $0 | $273,796 | $273,796 |
| 2015 | $175,733 | $70,000 | $0 | $245,733 | $245,733 |
| 2014 | $177,671 | $60,000 | $0 | $237,671 | $237,671 |
| 2013 | $179,605 | $55,000 | $0 | $234,605 | $234,605 |
| 2012 | $181,920 | $57,800 | $0 | $239,720 | $239,720 |
| 2011 | $183,861 | $68,000 | $0 | $251,861 | $251,861 |
| 2010 | $186,806 | $68,000 | $0 | $254,806 | $254,806 |
| 2009 | $194,562 | $74,400 | $0 | $268,962 | $268,962 |
| 2008 | $196,594 | $74,400 | $0 | $270,994 | $270,994 |
| 2007 | $196,687 | $74,400 | $0 | $271,087 | $271,087 |
Deed and Sales History
| 1 | 10/20/2021 | WD | Warranty Deed | ALLEN, KIMBERLY A | WALCUTT, ALOYSIUS CLIFFORD | | | $479,000.00 | 50745 | 4533073 |
| 2 | 03/13/2017 | QCD | Quit Claim Deed | KRIBBLE, KIMBERLY A | ALLEN, KIMBERLY A | | | $0.00 | 28524 | 4419264 |
| 3 | 06/15/2007 | WD | Warranty Deed | INFINITY REALTY LLC, | KRIBBLE, KIMBERLY A | | | $295,000.00 | 72175 | 4205783 |
| 4 | 04/19/2005 | WD | Warranty Deed | WHITESIDE, OTIS H | INFINITY REALTY LLC, | | | $24,250.00 | 51725 | 4132115 |
| 5 | 01/01/1900 | OTHER | Other - Misc. Documents | Unknown | WHITESIDE, OTIS H | | | $0.00 | 0 | 0 |
Payout Agreement
| No payout information available.. |