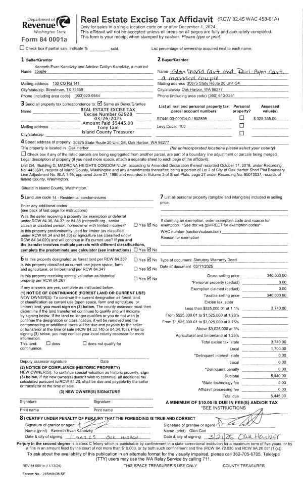
Property
Account |
| Property ID: | 362173 | Abbreviated Legal Description: | ROLL HILL LOTS 25, 26 & 27 BLK 7 |
| Geographic ID: | S8050-00-07026-0 | Agent Code: | |
| Type: | Real | | |
| Tax Area: | 332 - APPRAISER-Cpvl Schl Dist, Special Dist, improved, greater than 1 acre | Land Use Code | 11 |
| Open Space: | N | DFL | N |
| Historic Property: | N | Remodel Property: | N |
| Multi-Family Redevelopment: | N | | |
| Township: | | Section: | |
| Range: | |
Location |
| Address: | 945 DONALD AVE OAK HARBOR, WA 98277 | Mapsco: | |
| Neighborhood: | Cycle 2 | Map ID: | 149 |
| Neighborhood CD: | 2 |
Owner |
| Name: | TJMMPMD LLC | Owner ID: | 255451 |
| Mailing Address: | 31908 NE 114TH PLACE CARNATION, WA 98014 | % Ownership: | 100.0000000000% |
| | | Exemptions: | |
Taxes and Assessment Details
Values
| (+) Improvement Homesite Value: | + | $0 | |
| (+) Improvement Non-Homesite Value: | + | $150,985 | |
| (+) Land Homesite Value: | + | $0 | |
| (+) Land Non-Homesite Value: | + | $220,000 | |
| (+) Curr Use (HS): | + | $0 | $0 |
| (+) Curr Use (NHS): | + | $0 | $0 |
| | | -------------------------- | |
| (=) Market Value: | = | $370,985 | |
| (–) Productivity Loss: | – | $0 | |
| | | -------------------------- | |
| (=) Subtotal: | = | $370,985 | |
| (+) Senior Appraised Value: | + | $0 | |
| (+) Non-Senior Appraised Value: | + | $370,985 | |
| | | -------------------------- | |
| (=) Total Appraised Value: | = | $370,985 | |
| (–) Senior Exemption Loss: | – | $0 | |
| (–) Exemption Loss: | – | $0 | |
| | | -------------------------- | |
| (=) Taxable Value: | = | $370,985 | |
Taxing Jurisdiction
| Owner: | TJMMPMD LLC | | |
| % Ownership: | 100.0000000000% | | |
| Total Value: | $370,985 | | |
| Tax Area: | 332 - APPRAISER-Cpvl Schl Dist, Special Dist, improved, greater than 1 acre |
| CF | Conservation Futures | 0.0316035091 | $370,985 | $370,985 | $11.72 | | |
| CEM2 | Cemetery #2 | 0.0095056933 | $370,985 | $370,985 | $3.53 | | |
| FIRE2 | Fire & Rescue Dist #2 N Whidbey GEN | 0.5475949600 | $370,985 | $370,985 | $203.15 | | |
| HOBOND | Hospital BOND | 0.1910887512 | $370,985 | $370,985 | $70.89 | | |
| HOGEN | Hospital GEN | 0.3902502903 | $370,985 | $370,985 | $144.78 | | |
| CE | County Current Expense | 0.3708482477 | $370,985 | $370,985 | $137.58 | | |
| CR | County Roads | 0.4584763726 | $370,985 | $370,985 | $170.09 | | |
| ISLANDEMS | Hospital GEN (EMS) | 0.5000000000 | $370,985 | $370,985 | $185.49 | | |
| LIB | Library Sno-Isle GEN | 0.3153421757 | $370,985 | $370,985 | $116.99 | | |
| LIBCAP | Library Sno-Isle BOND (Cap Fac Imp Area) | 0.0543427938 | $370,985 | $370,985 | $20.16 | | |
| POCOUP | Port of Coupeville GEN | 0.1093371703 | $370,985 | $370,985 | $40.56 | | |
| POCOUPIDD | Port of Coupeville IDD | 0.3409740022 | $370,985 | $370,985 | $126.50 | | |
| COUPSDTECH | School 204 CP (TECH) | 0.7545480007 | $370,985 | $370,985 | $279.93 | | |
| SCH204MO | School 204 Enrichment | 0.6716186034 | $370,985 | $370,985 | $249.16 | | |
| ST | State School | 1.3035497053 | $370,985 | $370,985 | $483.60 | | |
| ST2 | State School Part 2 | 0.8169543533 | $370,985 | $370,985 | $303.08 | | |
| | Total Tax Rate: | 6.8660346289 | | | | | |
| | | | | Taxes w/Current Exemptions: | $2,547.21 | | |
| | | | | Taxes w/o Exemptions: | $2,547.21 | | |
Improvement / Building
| Improvement #1: | RESIDENTIAL | State Code: | Y | 896.0 sqft | Value: | $150,985 |
| Bathrooms: | 1 | Bedrooms: | 2 | | Ceiling: | DRYWALL PAINTED | Exterior Wall/Cover: | PLY/HARDBOARD T-111 | | Floor Covering: | VINYL 100% | Floor Structure: | WOOD W/SUBFLOOR | | Foundation: | WOOD BLOCKS | Interior Finish: | DRYWALL PAINT | | Plumbing Fixture Cnt: | 6 | Roof Slope: | 3" IN 12" | | Roof Structure/Cover: | CJ COMP ROLL |   |   |
|
| | Type | Description | Class CD | Sub Class CD | Year Built | Area |
| | BAS | BASE/MAIN FLOOR | 3 | 0 | 1961 | 896.0 |
| | UTY | STORAGE/UTILITY | 3 | 0 | 1961 | 1260.0 |
| | OWP | OPEN WOOD PORCH W/STEPS | 3 | 0 | 1961 | 0.0 |
| | CPD | OPEN CARPORT DIRT FLOOR | 3 | 0 | 1961 | 0.0 |
Sketch
| No sketches available for this property. |
Property Image
Land
| 1 | 17 | AC (01.01-02.00) | 1.3700 | 59677.20 | 0.00 | 0.00 | 1.00 | $220,000 | $0 |
Roll Value History
| 2026 | N/A | N/A | N/A | N/A | N/A |
| 2025 | $150,985 | $220,000 | $0 | $370,985 | $370,985 |
| 2024 | $149,334 | $210,000 | $0 | $359,334 | $359,334 |
| 2023 | $151,598 | $220,000 | $0 | $371,598 | $371,598 |
| 2022 | $139,470 | $220,000 | $0 | $359,470 | $359,470 |
| 2021 | $123,275 | $180,000 | $0 | $303,275 | $303,275 |
| 2020 | $120,212 | $140,000 | $0 | $260,212 | $260,212 |
| 2019 | $84,739 | $170,000 | $0 | $254,739 | $254,739 |
| 2018 | $55,072 | $135,000 | $0 | $190,072 | $190,072 |
| 2017 | $56,003 | $120,000 | $0 | $176,003 | $176,003 |
| 2016 | $54,599 | $100,000 | $0 | $154,599 | $154,599 |
| 2015 | $55,179 | $70,000 | $0 | $125,179 | $125,179 |
| 2014 | $55,759 | $60,000 | $0 | $115,759 | $115,759 |
| 2013 | $56,339 | $55,000 | $0 | $111,339 | $111,339 |
| 2012 | $57,508 | $57,800 | $0 | $115,308 | $115,308 |
| 2011 | $58,099 | $68,000 | $0 | $126,099 | $126,099 |
| 2010 | $59,935 | $68,000 | $0 | $127,935 | $127,935 |
| 2009 | $62,577 | $74,400 | $0 | $136,977 | $136,977 |
| 2008 | $64,197 | $75,600 | $0 | $139,797 | $139,797 |
| 2007 | $65,502 | $75,600 | $0 | $141,102 | $141,102 |
Deed and Sales History
| 1 | 08/30/2011 | QCD | Quit Claim Deed | YOUNG, J E | TJMMPMD LLC | | | $0.00 | 5460 | 4300759 |
| 2 | 04/12/2011 | EZ | Easement | YOUNG, J E | YOUNG, J E | | | $1,500.00 | 4447 | 4295335 |
| 3 | 01/25/2006 | BLA | DNU - Boundary Line Adjustment | YOUNG, JOSEPH E | YOUNG, J E | | | $0.00 | 70802 | 4126172 |
| 4 | 03/01/1998 | BLA | DNU - Boundary Line Adjustment | YOUNG, JOSEPH E | YOUNG, JOSEPH E | | | $0.00 | 67829 | 98004254 |
| 5 | 01/01/1900 | OTHER | Other - Misc. Documents | Unknown | YOUNG, JOSEPH E | | | $0.00 | 0 | 0 |
Payout Agreement
| No payout information available.. |