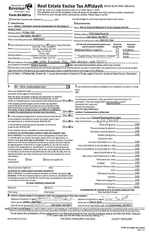
Property
Account |
| Property ID: | 362388 | Abbreviated Legal Description: | ROLL HILL LOT 12 BLK 8 |
| Geographic ID: | S8050-00-08012-0 | Agent Code: | |
| Type: | Real | | |
| Tax Area: | 330 - APPRAISER-Cpvl Schl Dist, Special Dist, improved & less than 1 acre | Land Use Code | 11 |
| Open Space: | N | DFL | N |
| Historic Property: | N | Remodel Property: | N |
| Multi-Family Redevelopment: | N | | |
| Township: | | Section: | |
| Range: | |
Location |
| Address: | 984 DIANE AVE OAK HARBOR, WA 98277 | Mapsco: | |
| Neighborhood: | Cycle 2 | Map ID: | 146 |
| Neighborhood CD: | 2 |
Owner |
| Name: | HANSEN, MARY B | Owner ID: | 88742 |
| Mailing Address: | 984 DIANE AVE OAK HARBOR, WA 98277-8224 | % Ownership: | 100.0000000000% |
| | | Exemptions: | SNR/DSBL |
Taxes and Assessment Details
Values
| (+) Improvement Homesite Value: | + | $165,203 | |
| (+) Improvement Non-Homesite Value: | + | $0 | |
| (+) Land Homesite Value: | + | $220,000 | |
| (+) Land Non-Homesite Value: | + | $0 | |
| (+) Curr Use (HS): | + | $0 | $0 |
| (+) Curr Use (NHS): | + | $0 | $0 |
| | | -------------------------- | |
| (=) Market Value: | = | $385,203 | |
| (–) Productivity Loss: | – | $0 | |
| | | -------------------------- | |
| (=) Subtotal: | = | $385,203 | |
| (+) Senior Appraised Value: | + | $147,773 | |
| (+) Non-Senior Appraised Value: | + | $0 | |
| | | -------------------------- | |
| (=) Total Appraised Value: | = | $147,773 | |
| (–) Senior Exemption Loss: | – | $88,664 | |
| (–) Exemption Loss: | – | $0 | |
| | | -------------------------- | |
| (=) Taxable Value: | = | $59,109 | |
Taxing Jurisdiction
| Owner: | HANSEN, MARY B | | |
| % Ownership: | 100.0000000000% | | |
| Total Value: | $385,203 | | |
| Tax Area: | 330 - APPRAISER-Cpvl Schl Dist, Special Dist, improved & less than 1 acre |
| CF | Conservation Futures | 0.0316035091 | $385,203 | $59,109 | $1.87 | | |
| CEM2 | Cemetery #2 | 0.0095056933 | $385,203 | $59,109 | $0.56 | | |
| FIRE2 | Fire & Rescue Dist #2 N Whidbey GEN | 0.5475949600 | $385,203 | $59,109 | $32.37 | | |
| HOBOND | Hospital BOND | 0.0000000000 | $385,203 | $0 | $0.00 | | |
| HOGEN | Hospital GEN | 0.3902502903 | $385,203 | $59,109 | $23.07 | | |
| CE | County Current Expense | 0.3708482477 | $385,203 | $59,109 | $21.92 | | |
| CR | County Roads | 0.4584763726 | $385,203 | $59,109 | $27.10 | | |
| ISLANDEMS | Hospital GEN (EMS) | 0.5000000000 | $385,203 | $59,109 | $29.55 | | |
| LIB | Library Sno-Isle GEN | 0.3153421757 | $385,203 | $59,109 | $18.64 | | |
| LIBCAP | Library Sno-Isle BOND (Cap Fac Imp Area) | 0.0000000000 | $385,203 | $0 | $0.00 | | |
| POCOUP | Port of Coupeville GEN | 0.1093371703 | $385,203 | $59,109 | $6.46 | | |
| POCOUPIDD | Port of Coupeville IDD | 0.3409740022 | $385,203 | $59,109 | $20.15 | | |
| COUPSDTECH | School 204 CP (TECH) | 0.0000000000 | $385,203 | $0 | $0.00 | | |
| SCH204MO | School 204 Enrichment | 0.0000000000 | $385,203 | $0 | $0.00 | | |
| ST | State School | 1.3035497053 | $385,203 | $59,109 | $77.05 | | |
| ST2 | State School Part 2 | 0.0000000000 | $385,203 | $0 | $0.00 | | |
| | Total Tax Rate: | 4.3774821265 | | | | | |
| | | | | Taxes w/Current Exemptions: | $258.74 | | |
| | | | | Taxes w/o Exemptions: | $2,644.81 | | |
Improvement / Building
| Improvement #1: | RESIDENTIAL | State Code: | Y | 934.3 sqft | Value: | $165,203 |
| Bathrooms: | 1 | Bedrooms: | 2 | | Ceiling: | DRYWALL PAINTED | Exterior Wall/Cover: | CEMENT FIBER | | Floor Covering: | CARPET/VINYL 80-20 | Floor Structure: | WOOD W/SUBFLOOR | | Foundation: | CONCRETE | Heating: | FHA ELECTRIC | | Interior Finish: | DRYWALL PAINT | Plumbing Fixture Cnt: | 6 | | Roof Slope: | 4" IN 12" | Roof Structure/Cover: | CJ ASPHALT |
|
| | Type | Description | Class CD | Sub Class CD | Year Built | Area |
| | BAS | BASE/MAIN FLOOR | 3 | 0 | 1991 | 934.3 |
| | AGR | ATTACHED GARAGE | 3 | 0 | 1991 | 408.0 |
| | OWP | OPEN WOOD PORCH W/STEPS | 3 | 0 | 1991 | 35.5 |
| | OWP | OPEN WOOD PORCH W/STEPS | 3 | 0 | 1991 | 21.0 |
Sketch
Property Image
Land
| 1 | 15 | SQ (12001-21780) | 0.3700 | 16117.20 | 0.00 | 0.00 | 1.00 | $220,000 | $0 |
Roll Value History
| 2026 | N/A | N/A | N/A | N/A | N/A |
| 2025 | $165,203 | $220,000 | $0 | $385,203 | $59,109 |
| 2024 | $158,788 | $210,000 | $0 | $368,788 | $59,109 |
| 2023 | $160,926 | $220,000 | $0 | $380,926 | $59,109 |
| 2022 | $147,659 | $220,000 | $0 | $367,659 | $59,109 |
| 2021 | $130,080 | $180,000 | $0 | $310,080 | $59,109 |
| 2020 | $126,777 | $140,000 | $0 | $266,777 | $59,109 |
| 2019 | $89,675 | $170,000 | $0 | $259,675 | $59,109 |
| 2018 | $85,852 | $135,000 | $0 | $220,852 | $59,109 |
| 2017 | $86,407 | $120,000 | $0 | $206,407 | $59,109 |
| 2016 | $87,558 | $100,000 | $0 | $187,558 | $59,109 |
| 2015 | $88,710 | $70,000 | $0 | $158,710 | $59,109 |
| 2014 | $89,862 | $60,000 | $0 | $149,862 | $59,109 |
| 2013 | $91,014 | $55,000 | $0 | $146,014 | $58,406 |
| 2012 | $89,973 | $57,800 | $0 | $147,773 | $59,109 |
| 2011 | $91,126 | $68,000 | $0 | $159,126 | $159,126 |
| 2010 | $93,750 | $68,000 | $0 | $161,750 | $161,750 |
| 2009 | $97,803 | $74,400 | $0 | $172,203 | $172,203 |
| 2008 | $98,974 | $76,800 | $0 | $175,774 | $175,774 |
| 2007 | $100,144 | $76,800 | $0 | $176,944 | $176,944 |
Deed and Sales History
| 1 | 08/20/2009 | WD | Warranty Deed | DYKES, JEREMY L | HANSEN, MARY B | | | $214,000.00 | 92008 | 4259175 |
| 2 | 08/01/2006 | WD | Warranty Deed | SMITH, ROBERT | DYKES, JEREMY L | | | $195,500.00 | 63566 | 4179332 |
| 3 | 07/05/2005 | WD | Warranty Deed | DOMINGUEZ, DELIO | SMITH, ROBERT | | | $169,658.00 | 53233 | 4139962 |
| 4 | 07/13/2001 | WD | Warranty Deed | BURNS, JOHN A | DOMINGUEZ, DELIO | | | $105,000.00 | 12750 | 20037825 |
| 5 | 05/01/1992 | WD | Warranty Deed | AINSWORTH, JAMES T | BURNS, JOHN A | | | $76,000.00 | 22030 | 92009659 |
| 6 | 11/01/1990 | WD | Warranty Deed | CAVE, KENNETH L | AINSWORTH, JAMES T | | | $69,000.00 | 6276 | 90021634 |
| 7 | 04/01/1990 | WD | Warranty Deed | SAXHAUG, ROBERT L | CAVE, KENNETH L | | | $7,500.00 | 2528 | 90008148 |
| 8 | 01/01/1900 | OTHER | Other - Misc. Documents | Unknown | SAXHAUG, ROBERT L | | | $0.00 | 0 | 0 |
Payout Agreement
| No payout information available.. |