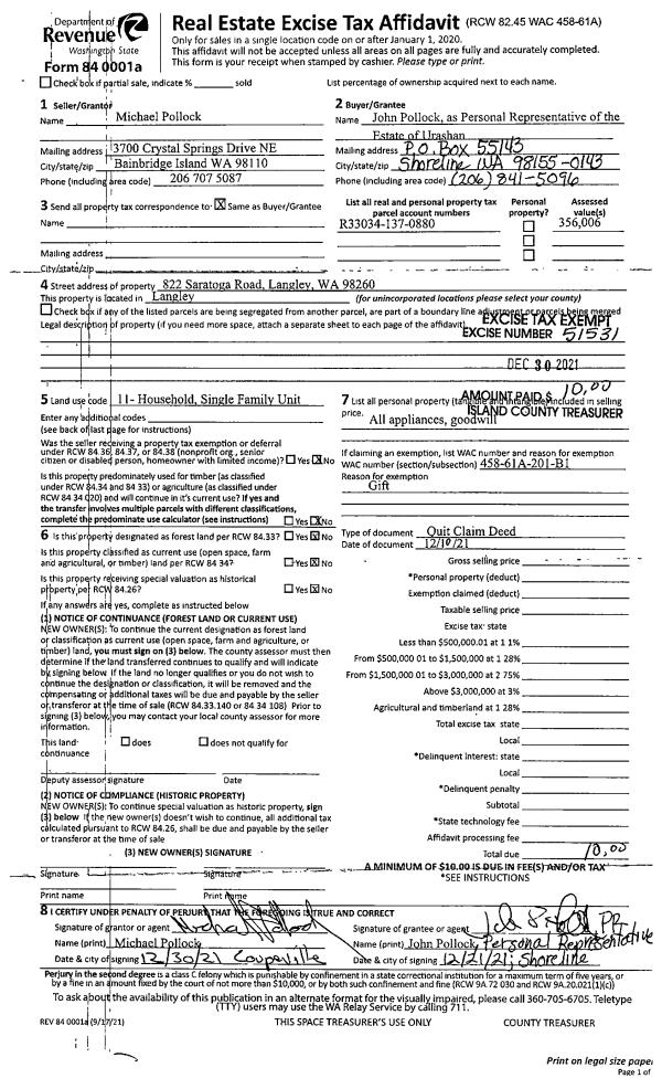
Property
Account |
| Property ID: | 362431 | Abbreviated Legal Description: | ROLL HILL LOT 17 BLK 8 S |
| Geographic ID: | S8050-00-08017-0 | Agent Code: | |
| Type: | Real | | |
| Tax Area: | 330 - APPRAISER-Cpvl Schl Dist, Special Dist, improved & less than 1 acre | Land Use Code | 11 |
| Open Space: | N | DFL | N |
| Historic Property: | N | Remodel Property: | N |
| Multi-Family Redevelopment: | N | | |
| Township: | | Section: | |
| Range: | |
Location |
| Address: | 944 DIANE AVE OAK HARBOR, WA 98277 | Mapsco: | |
| Neighborhood: | Cycle 2 | Map ID: | 146 |
| Neighborhood CD: | 2 |
Owner |
| Name: | VOGT, ELIZABETH ANN | Owner ID: | 300895 |
| Mailing Address: | 944 DIANE AVE OAK HARBOR, WA 98277 | % Ownership: | 100.0000000000% |
| | | Exemptions: | |
Taxes and Assessment Details
Values
| (+) Improvement Homesite Value: | + | $0 | |
| (+) Improvement Non-Homesite Value: | + | $70,833 | |
| (+) Land Homesite Value: | + | $0 | |
| (+) Land Non-Homesite Value: | + | $220,000 | |
| (+) Curr Use (HS): | + | $0 | $0 |
| (+) Curr Use (NHS): | + | $0 | $0 |
| | | -------------------------- | |
| (=) Market Value: | = | $290,833 | |
| (–) Productivity Loss: | – | $0 | |
| | | -------------------------- | |
| (=) Subtotal: | = | $290,833 | |
| (+) Senior Appraised Value: | + | $0 | |
| (+) Non-Senior Appraised Value: | + | $290,833 | |
| | | -------------------------- | |
| (=) Total Appraised Value: | = | $290,833 | |
| (–) Senior Exemption Loss: | – | $0 | |
| (–) Exemption Loss: | – | $0 | |
| | | -------------------------- | |
| (=) Taxable Value: | = | $290,833 | |
Taxing Jurisdiction
| Owner: | VOGT, ELIZABETH ANN | | |
| % Ownership: | 100.0000000000% | | |
| Total Value: | $290,833 | | |
| Tax Area: | 330 - APPRAISER-Cpvl Schl Dist, Special Dist, improved & less than 1 acre |
| CF | Conservation Futures | 0.0316035091 | $290,833 | $290,833 | $9.19 | | |
| CEM2 | Cemetery #2 | 0.0095056933 | $290,833 | $290,833 | $2.76 | | |
| FIRE2 | Fire & Rescue Dist #2 N Whidbey GEN | 0.5475949600 | $290,833 | $290,833 | $159.26 | | |
| HOBOND | Hospital BOND | 0.1910887512 | $290,833 | $290,833 | $55.57 | | |
| HOGEN | Hospital GEN | 0.3902502903 | $290,833 | $290,833 | $113.50 | | |
| CE | County Current Expense | 0.3708482477 | $290,833 | $290,833 | $107.85 | | |
| CR | County Roads | 0.4584763726 | $290,833 | $290,833 | $133.34 | | |
| ISLANDEMS | Hospital GEN (EMS) | 0.5000000000 | $290,833 | $290,833 | $145.42 | | |
| LIB | Library Sno-Isle GEN | 0.3153421757 | $290,833 | $290,833 | $91.71 | | |
| LIBCAP | Library Sno-Isle BOND (Cap Fac Imp Area) | 0.0543427938 | $290,833 | $290,833 | $15.80 | | |
| POCOUP | Port of Coupeville GEN | 0.1093371703 | $290,833 | $290,833 | $31.80 | | |
| POCOUPIDD | Port of Coupeville IDD | 0.3409740022 | $290,833 | $290,833 | $99.17 | | |
| COUPSDTECH | School 204 CP (TECH) | 0.7545480007 | $290,833 | $290,833 | $219.45 | | |
| SCH204MO | School 204 Enrichment | 0.6716186034 | $290,833 | $290,833 | $195.33 | | |
| ST | State School | 1.3035497053 | $290,833 | $290,833 | $379.12 | | |
| ST2 | State School Part 2 | 0.8169543533 | $290,833 | $290,833 | $237.60 | | |
| | Total Tax Rate: | 6.8660346289 | | | | | |
| | | | | Taxes w/Current Exemptions: | $1,996.87 | | |
| | | | | Taxes w/o Exemptions: | $1,996.87 | | |
Improvement / Building
| Improvement #1: | MANUFACTURED HOME | State Code: | Y | 1137.9 sqft | Value: | $70,833 |
| Bathrooms: | 0 | Bedrooms: | 0 | | Ceiling: | PLASTER PAINTED | Cooling: | EVAP NO DUCT | | Exterior Wall/Cover: | VINYL | Floor Covering: | CARPET 100% | | Floor Structure: | SLAB ON GRADE | Foundation: | SLAB | | Heating: | FHA ELECTRIC | Interior Finish: | PLASTER | | Plumbing Fixture Cnt: | 1 | Roof Slope: | FLAT | | Roof Structure/Cover: | CJ ALUMINIUM HEAVY |   |   |
|
| | Type | Description | Class CD | Sub Class CD | Year Built | Area |
| | BAS | BASE/MAIN FLOOR | 4 | 0 | 1977 | 1137.9 |
| | OWR | OPEN WOOD PORCH W/STEPS/ROOF | 4 | 0 | 1977 | 252.0 |
Sketch
Property Image
Land
| 1 | 15 | SQ (12001-21780) | 0.3700 | 16117.20 | 0.00 | 0.00 | 1.00 | $220,000 | $0 |
Roll Value History
| 2026 | N/A | N/A | N/A | N/A | N/A |
| 2025 | $70,833 | $220,000 | $0 | $290,833 | $290,833 |
| 2024 | $62,728 | $210,000 | $0 | $272,728 | $272,728 |
| 2023 | $65,095 | $220,000 | $0 | $285,095 | $285,095 |
| 2022 | $61,089 | $220,000 | $0 | $281,089 | $281,089 |
| 2021 | $55,916 | $180,000 | $0 | $235,916 | $235,916 |
| 2020 | $56,090 | $140,000 | $0 | $196,090 | $196,090 |
| 2019 | $45,607 | $170,000 | $0 | $215,607 | $215,607 |
| 2018 | $40,619 | $135,000 | $0 | $175,619 | $175,619 |
| 2017 | $42,739 | $120,000 | $0 | $162,739 | $162,739 |
| 2016 | $37,169 | $100,000 | $0 | $137,169 | $137,169 |
| 2015 | $37,774 | $70,000 | $0 | $107,774 | $107,774 |
| 2014 | $38,985 | $60,000 | $0 | $98,985 | $98,985 |
| 2013 | $40,195 | $55,000 | $0 | $95,195 | $95,195 |
| 2012 | $35,979 | $57,800 | $0 | $93,779 | $93,779 |
| 2011 | $37,189 | $68,000 | $0 | $105,189 | $105,189 |
| 2010 | $39,422 | $68,000 | $0 | $107,422 | $107,422 |
| 2009 | $41,428 | $74,400 | $0 | $115,828 | $115,828 |
| 2008 | $72,183 | $74,400 | $0 | $146,583 | $146,583 |
| 2007 | $74,518 | $74,400 | $0 | $148,918 | $148,918 |
Deed and Sales History
| 1 | 08/19/2021 | WD | Warranty Deed | DONNELLY, MARY E | VOGT, ELIZABETH ANN | | | $335,000.00 | 49779 | 4527630 |
| 2 | 08/21/2021 | QCD | Quit Claim Deed | ELLIFF, SHAWN LESLIE | DONNELLY, MARY E | | | $0.00 | 49778 | 4527629 |
| 3 | 07/29/2016 | WD | Warranty Deed | FOLKESTAD, BRIAN | DONNELLY, MARY E | | | $189,500.00 | 25426 | 4404028 |
| 4 | 02/11/2016 | BARGSLD | Bargain And Sale Deed | BANK OF AMERICA | FOLKESTAD, BRIAN | | | $51,350.00 | 23134 | 4394007 |
| 5 | 10/12/2015 | TRUSTEED | Trustee's Deed | TRASK, PATRICIA M | BANK OF AMERICA | | | $0.00 | 21734 | 4387719 |
| 6 | 05/09/2005 | WD | Warranty Deed | FAKKEMA, ROBERT J | TRASK, PATRICIA M | | | $129,500.00 | 52006 | 4133531 |
| 7 | 04/28/2005 | ESTSEPPROP | Establish Separate Property | TRASK, PATRICIA M | TRASK, PATRICIA M | | | $0.00 | 52011 | 4133532 |
| 8 | 10/01/1993 | OTHER | Other - Misc. Documents | FAKKEMA, ROBERT J | FAKKEMA, ROBERT J | | | $28,000.00 | 34049 | 0 |
| 9 | 10/01/1993 | WD | Warranty Deed | ANDERSON, JAMES H | FAKKEMA, ROBERT J | | | $40,000.00 | 34048 | 93021110 |
| 10 | 06/01/1993 | OTHER | Other - Misc. Documents | ANDERSON, JAMES H | ANDERSON, JAMES H | | | $0.00 | 65428 | 0 |
| 11 | 06/01/1990 | QCD | Quit Claim Deed | REYNOLDS, THOMAS A | ANDERSON, JAMES H | | | $32,500.00 | 3822 | 90012411 |
| 12 | 11/01/1984 | QCD | Quit Claim Deed | , | REYNOLDS, THOMAS A | | | $0.00 | 43348 | 84005726 |
| 13 | 01/01/1900 | OTHER | Other - Misc. Documents | REYNOLDS, THOMAS A | , | | | $0.00 | 62403 | 0 |
| 14 | 01/01/1900 | OTHER | Other - Misc. Documents | Unknown | REYNOLDS, THOMAS A | | | $0.00 | 20012 | 0 |
Payout Agreement
| No payout information available.. |