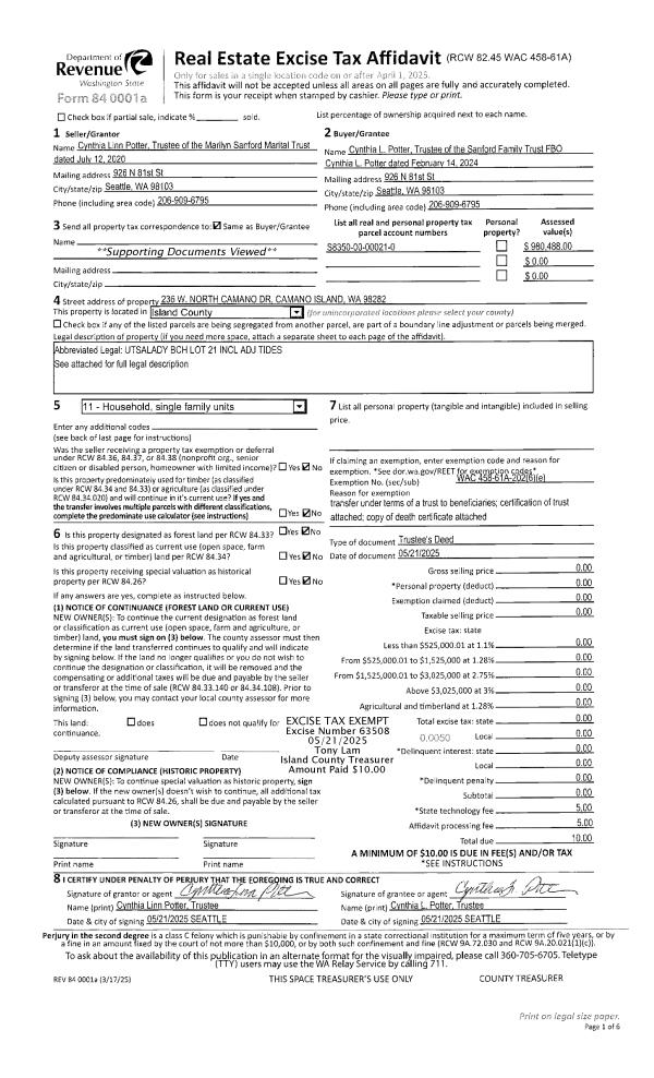
Property
Account |
| Property ID: | 362716 | Abbreviated Legal Description: | ROLL HILL RESERVE 1, RESERVE 2, LOTS 48 & 49 BLK 9 |
| Geographic ID: | S8050-00-09001-0 | Agent Code: | |
| Type: | Real | | |
| Tax Area: | 330 - APPRAISER-Cpvl Schl Dist, Special Dist, improved & less than 1 acre | Land Use Code | 74 |
| Open Space: | N | DFL | N |
| Historic Property: | N | Remodel Property: | N |
| Multi-Family Redevelopment: | N | | |
| Township: | | Section: | |
| Range: | |
Location |
| Address: | 1093 SHAWN AVE OAK HARBOR, WA 98277 | Mapsco: | |
| Neighborhood: | Cycle 2 | Map ID: | 148 |
| Neighborhood CD: | 2 |
Owner |
| Name: | ROLLING HILLS-GLENCAIRN COM | Owner ID: | 11548 |
| Mailing Address: | 1126 SIDNEY ST OAK HARBOR, WA 98277-8216 | % Ownership: | 100.0000000000% |
| | | Exemptions: | EX |
Taxes and Assessment Details
Values
| (+) Improvement Homesite Value: | + | $0 | |
| (+) Improvement Non-Homesite Value: | + | $197,336 | |
| (+) Land Homesite Value: | + | $0 | |
| (+) Land Non-Homesite Value: | + | $280,000 | |
| (+) Curr Use (HS): | + | $0 | $0 |
| (+) Curr Use (NHS): | + | $0 | $0 |
| | | -------------------------- | |
| (=) Market Value: | = | $477,336 | |
| (–) Productivity Loss: | – | $0 | |
| | | -------------------------- | |
| (=) Subtotal: | = | $477,336 | |
| (+) Senior Appraised Value: | + | $0 | |
| (+) Non-Senior Appraised Value: | + | $477,336 | |
| | | -------------------------- | |
| (=) Total Appraised Value: | = | $477,336 | |
| (–) Senior Exemption Loss: | – | $0 | |
| (–) Exemption Loss: | – | $477,336 | |
| | | -------------------------- | |
| (=) Taxable Value: | = | $0 | |
Taxing Jurisdiction
| Owner: | ROLLING HILLS-GLENCAIRN COM | | |
| % Ownership: | 100.0000000000% | | |
| Total Value: | $477,336 | | |
| Tax Area: | 330 - APPRAISER-Cpvl Schl Dist, Special Dist, improved & less than 1 acre |
| CF | Conservation Futures | 0.0316035091 | $477,336 | $0 | $0.00 | | |
| CEM2 | Cemetery #2 | 0.0095056933 | $477,336 | $0 | $0.00 | | |
| FIRE2 | Fire & Rescue Dist #2 N Whidbey GEN | 0.5475949600 | $477,336 | $0 | $0.00 | | |
| HOBOND | Hospital BOND | 0.1910887512 | $477,336 | $0 | $0.00 | | |
| HOGEN | Hospital GEN | 0.3902502903 | $477,336 | $0 | $0.00 | | |
| CE | County Current Expense | 0.3708482477 | $477,336 | $0 | $0.00 | | |
| CR | County Roads | 0.4584763726 | $477,336 | $0 | $0.00 | | |
| ISLANDEMS | Hospital GEN (EMS) | 0.5000000000 | $477,336 | $0 | $0.00 | | |
| LIB | Library Sno-Isle GEN | 0.3153421757 | $477,336 | $0 | $0.00 | | |
| LIBCAP | Library Sno-Isle BOND (Cap Fac Imp Area) | 0.0543427938 | $477,336 | $0 | $0.00 | | |
| POCOUP | Port of Coupeville GEN | 0.1093371703 | $477,336 | $0 | $0.00 | | |
| POCOUPIDD | Port of Coupeville IDD | 0.3409740022 | $477,336 | $0 | $0.00 | | |
| COUPSDTECH | School 204 CP (TECH) | 0.7545480007 | $477,336 | $0 | $0.00 | | |
| SCH204MO | School 204 Enrichment | 0.6716186034 | $477,336 | $0 | $0.00 | | |
| ST | State School | 1.3035497053 | $477,336 | $0 | $0.00 | | |
| ST2 | State School Part 2 | 0.8169543533 | $477,336 | $0 | $0.00 | | |
| | Total Tax Rate: | 6.8660346289 | | | | | |
| | | | | Taxes w/Current Exemptions: | $0.00 | | |
| | | | | Taxes w/o Exemptions: | $3,277.41 | | |
Improvement / Building
| Improvement #1: | COMMERCIAL | State Code: | F1 | 1472.0 sqft | Value: | $197,336 |
| Bathrooms: | 0 | Bedrooms: | 0 | | Ceiling: | PAINT OPEN FLOOR BAS | Exterior Wall/Cover: | WD/WD OR STEEL STUDS | | Floor Covering: | CONCRETE SEALER | Floor Structure: | CONCRETE ON GROUND | | Foundation: | SLAB | Heating: | SPACE HEATERS | | Interior Finish: | FRATERNAL | Plumbing Fixture Cnt: | 1 | | Roof Structure/Cover: | BEAM BUILT-UP ROCK |   |   |
|
| | Type | Description | Class CD | Sub Class CD | Year Built | Area |
| | BAS | BASE/MAIN FLOOR | 3 | 0 | 1965 | 1472.0 |
| | oSP5 | P/GN 20X40 | 3 | 0 | 1965 | 1056.0 |
| | OP1 | OPEN PORCH SLAB | 3 | 0 | 1965 | 2840.0 |
| | OCP | OPEN CARPORT | 3 | 0 | 1965 | 320.0 |
| | oSTR | STRUCTURE/OTHER FEAT | 3 | 0 | 1965 | 2475.0 |
| | oFN1 | WD FNC 6' | 3 | 0 | 1965 | 180.0 |
Sketch
Property Image
Land
| 1 | 17 | AC (01.01-02.00) | 1.6431 | 71573.44 | 0.00 | 0.00 | 1.00 | $280,000 | $0 |
Roll Value History
| 2026 | N/A | N/A | N/A | N/A | N/A |
| 2025 | $197,336 | $280,000 | $0 | $477,336 | $0 |
| 2024 | $192,349 | $220,000 | $0 | $412,349 | $0 |
| 2023 | $197,336 | $220,000 | $0 | $417,336 | $0 |
| 2022 | $183,220 | $180,000 | $0 | $363,220 | $0 |
| 2021 | $179,093 | $180,000 | $0 | $359,093 | $0 |
| 2020 | $178,596 | $140,000 | $0 | $318,596 | $0 |
| 2019 | $167,724 | $170,000 | $0 | $337,724 | $0 |
| 2018 | $75,669 | $135,000 | $0 | $210,669 | $0 |
| 2017 | $75,669 | $70,000 | $0 | $145,669 | $0 |
| 2016 | $75,669 | $70,000 | $0 | $145,669 | $0 |
| 2015 | $80,545 | $68,000 | $0 | $148,545 | $0 |
| 2014 | $83,690 | $68,000 | $0 | $151,690 | $0 |
| 2013 | $82,482 | $68,000 | $0 | $150,482 | $0 |
| 2012 | $133,432 | $67,704 | $0 | $201,136 | $0 |
| 2011 | $113,010 | $67,704 | $0 | $180,714 | $0 |
| 2010 | $107,506 | $67,704 | $0 | $175,210 | $0 |
| 2009 | $110,214 | $74,400 | $0 | $184,614 | $0 |
| 2008 | $116,568 | $89,900 | $0 | $206,468 | $0 |
| 2007 | $120,454 | $90,000 | $0 | $210,454 | $0 |
Deed and Sales History
| 1 | 08/29/2006 | BLA | DNU - Boundary Line Adjustment | ROLLING HILLS-GLENCAIRN COM, | ROLLING HILLS-GLENCAIRN COM, | | | $0.00 | 80000 | 4131888 |
| 2 | 01/01/1900 | OTHER | Other - Misc. Documents | Unknown | ROLLING HILLS-GLENCAIRN COM, | | | $0.00 | 0 | 0 |
Payout Agreement
| No payout information available.. |