Property
Account |
| Property ID: | 362805 | Abbreviated Legal Description: | ROLL HILL N68.25' OF LOT 10 BLK 9 |
| Geographic ID: | S8050-00-09010-1 | Agent Code: | |
| Type: | Real | | |
| Tax Area: | 330 - APPRAISER-Cpvl Schl Dist, Special Dist, improved & less than 1 acre | Land Use Code | 11 |
| Open Space: | N | DFL | N |
| Historic Property: | N | Remodel Property: | N |
| Multi-Family Redevelopment: | N | | |
| Township: | | Section: | |
| Range: | |
Location |
| Address: | 1022 SHAWN AVE OAK HARBOR, WA 98277 | Mapsco: | |
| Neighborhood: | Cycle 2 | Map ID: | 148 |
| Neighborhood CD: | 2 |
Owner |
| Name: | RIBBLE, MARY | Owner ID: | 294515 |
| Mailing Address: | 1022 SHAWN AVE OAK HARBOR, WA 98277 | % Ownership: | 100.0000000000% |
| | | Exemptions: | |
Taxes and Assessment Details
Values
| (+) Improvement Homesite Value: | + | $134,791 | |
| (+) Improvement Non-Homesite Value: | + | $0 | |
| (+) Land Homesite Value: | + | $220,000 | |
| (+) Land Non-Homesite Value: | + | $0 | |
| (+) Curr Use (HS): | + | $0 | $0 |
| (+) Curr Use (NHS): | + | $0 | $0 |
| | | -------------------------- | |
| (=) Market Value: | = | $354,791 | |
| (–) Productivity Loss: | – | $0 | |
| | | -------------------------- | |
| (=) Subtotal: | = | $354,791 | |
| (+) Senior Appraised Value: | + | $0 | |
| (+) Non-Senior Appraised Value: | + | $354,791 | |
| | | -------------------------- | |
| (=) Total Appraised Value: | = | $354,791 | |
| (–) Senior Exemption Loss: | – | $0 | |
| (–) Exemption Loss: | – | $0 | |
| | | -------------------------- | |
| (=) Taxable Value: | = | $354,791 | |
Taxing Jurisdiction
| Owner: | RIBBLE, MARY | | |
| % Ownership: | 100.0000000000% | | |
| Total Value: | $354,791 | | |
| Tax Area: | 330 - APPRAISER-Cpvl Schl Dist, Special Dist, improved & less than 1 acre |
| CF | Conservation Futures | 0.0316035091 | $354,791 | $354,791 | $11.21 | | |
| CEM2 | Cemetery #2 | 0.0095056933 | $354,791 | $354,791 | $3.37 | | |
| FIRE2 | Fire & Rescue Dist #2 N Whidbey GEN | 0.5475949600 | $354,791 | $354,791 | $194.28 | | |
| HOBOND | Hospital BOND | 0.1910887512 | $354,791 | $354,791 | $67.80 | | |
| HOGEN | Hospital GEN | 0.3902502903 | $354,791 | $354,791 | $138.46 | | |
| CE | County Current Expense | 0.3708482477 | $354,791 | $354,791 | $131.57 | | |
| CR | County Roads | 0.4584763726 | $354,791 | $354,791 | $162.66 | | |
| ISLANDEMS | Hospital GEN (EMS) | 0.5000000000 | $354,791 | $354,791 | $177.40 | | |
| LIB | Library Sno-Isle GEN | 0.3153421757 | $354,791 | $354,791 | $111.88 | | |
| LIBCAP | Library Sno-Isle BOND (Cap Fac Imp Area) | 0.0543427938 | $354,791 | $354,791 | $19.28 | | |
| POCOUP | Port of Coupeville GEN | 0.1093371703 | $354,791 | $354,791 | $38.79 | | |
| POCOUPIDD | Port of Coupeville IDD | 0.3409740022 | $354,791 | $354,791 | $120.97 | | |
| COUPSDTECH | School 204 CP (TECH) | 0.7545480007 | $354,791 | $354,791 | $267.71 | | |
| SCH204MO | School 204 Enrichment | 0.6716186034 | $354,791 | $354,791 | $238.28 | | |
| ST | State School | 1.3035497053 | $354,791 | $354,791 | $462.49 | | |
| ST2 | State School Part 2 | 0.8169543533 | $354,791 | $354,791 | $289.85 | | |
| | Total Tax Rate: | 6.8660346289 | | | | | |
| | | | | Taxes w/Current Exemptions: | $2,436.00 | | |
| | | | | Taxes w/o Exemptions: | $2,436.00 | | |
Improvement / Building
| Improvement #1: | MANUFACTURED HOME | State Code: | Y | 1313.0 sqft | Value: | $134,791 |
| Bathrooms: | 1 | Bedrooms: | 2 | | Ceiling: | PLASTER PAINTED | Exterior Wall/Cover: | VINYL | | Floor Covering: | CARPET 100% | Floor Structure: | SLAB ON GRADE | | Foundation: | SLAB | Heating: | FHA ELECTRIC | | Interior Finish: | PLASTER | Plumbing Fixture Cnt: | 1 | | Roof Slope: | FLAT | Roof Structure/Cover: | CJ ALUMINIUM HEAVY |
|
| | Type | Description | Class CD | Sub Class CD | Year Built | Area |
| | BAS | BASE/MAIN FLOOR | 4 | 0 | 2015 | 1313.0 |
| | OWC | OPEN WOOD PORCH W/STEPS/ROOF/C | 4 | 0 | 2015 | 208.0 |
Sketch
Property Image
Land
| 1 | 15 | SQ (12001-21780) | 0.3122 | 13599.43 | 0.00 | 0.00 | 1.00 | $220,000 | $0 |
Roll Value History
| 2026 | N/A | N/A | N/A | N/A | N/A |
| 2025 | $134,791 | $220,000 | $0 | $354,791 | $354,791 |
| 2024 | $137,890 | $210,000 | $0 | $347,890 | $347,890 |
| 2023 | $121,252 | $220,000 | $0 | $341,252 | $341,252 |
| 2022 | $112,238 | $220,000 | $0 | $332,238 | $332,238 |
| 2021 | $98,660 | $180,000 | $0 | $278,660 | $278,660 |
| 2020 | $96,817 | $140,000 | $0 | $236,817 | $236,817 |
| 2019 | $77,877 | $170,000 | $0 | $247,877 | $55,800 |
| 2018 | $78,689 | $135,000 | $0 | $213,689 | $55,800 |
| 2017 | $79,500 | $60,000 | $0 | $139,500 | $55,800 |
| 2016 | $0 | $40,000 | $0 | $40,000 | $40,000 |
| 2015 | $0 | $5,000 | $0 | $5,000 | $5,000 |
| 2014 | $0 | $5,000 | $0 | $5,000 | $5,000 |
| 2013 | $0 | $5,000 | $0 | $5,000 | $5,000 |
| 2012 | $0 | $6,800 | $0 | $6,800 | $6,800 |
| 2011 | $0 | $6,800 | $0 | $6,800 | $6,800 |
| 2010 | $0 | $6,800 | $0 | $6,800 | $6,800 |
| 2009 | $0 | $7,440 | $0 | $7,440 | $7,440 |
| 2008 | $0 | $7,440 | $0 | $7,440 | $7,440 |
| 2007 | $0 | $7,440 | $0 | $7,440 | $7,440 |
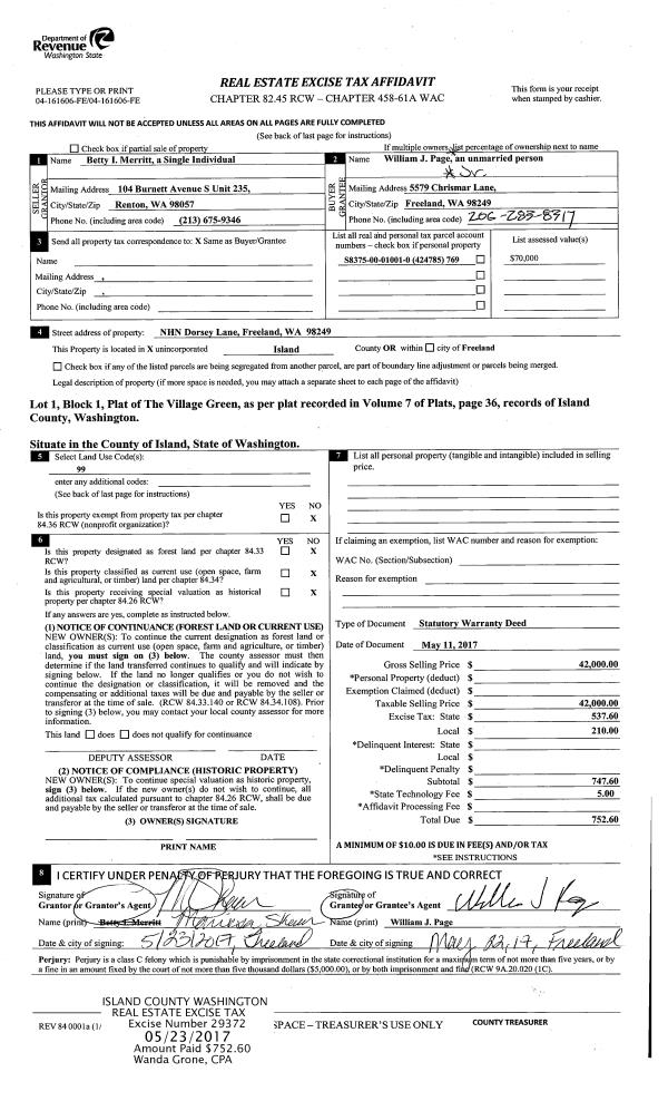
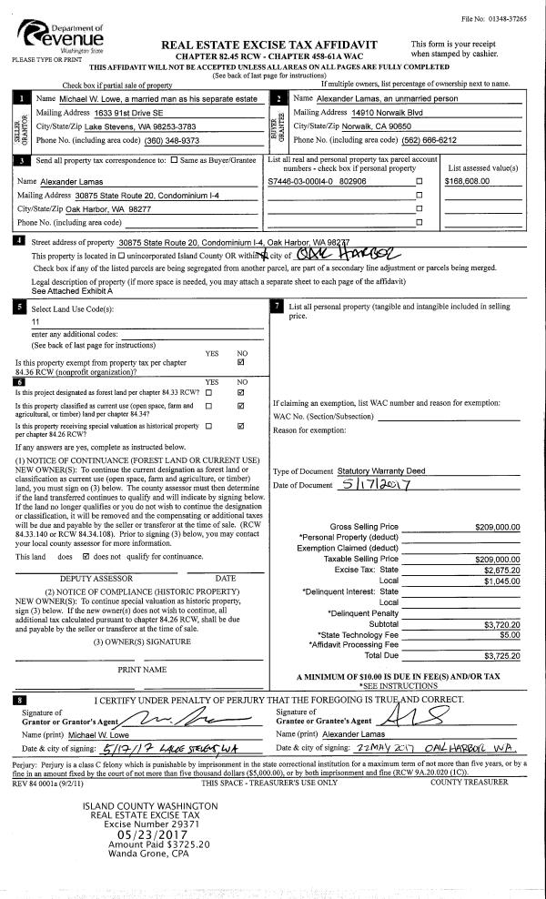
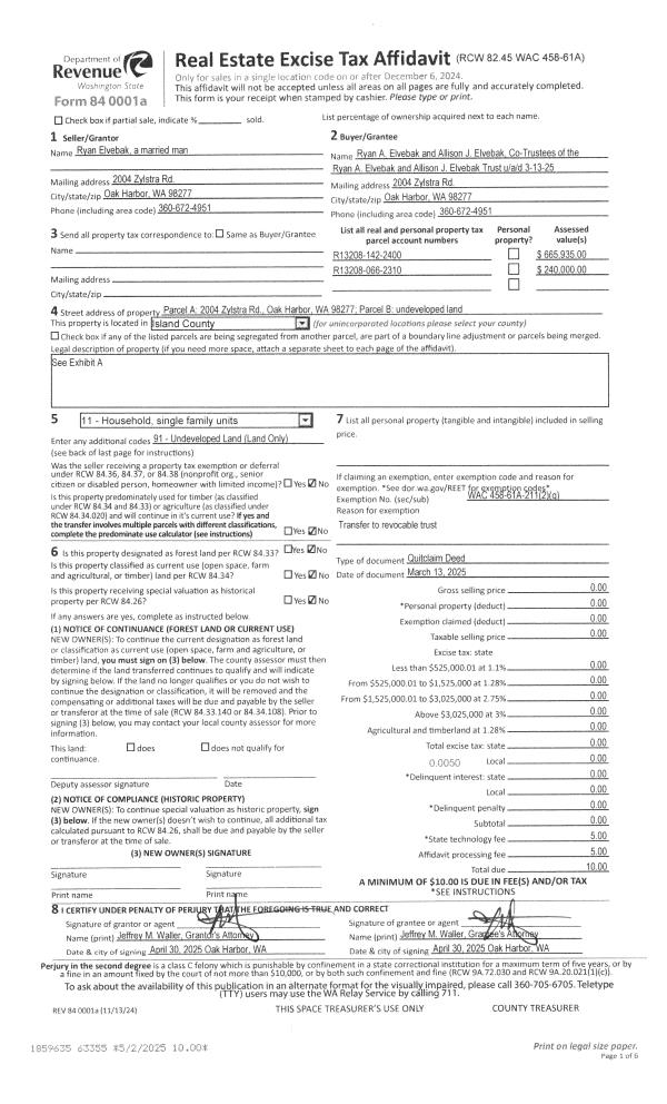
Deed and Sales History
| 1 | 06/04/2020 | WD | Warranty Deed | GOTH, LINDA | RIBBLE, MARY | | | $297,000.00 | 43244 | 4488250 |
| 2 | 01/30/2017 | WD | Warranty Deed | WESTGATE MOBILE HOMES, INC. | GOTH, LINDA | | | $225,000.00 | 27936 | 4416279 |
| 3 | 01/30/2017 | QCD | Quit Claim Deed | WOESSNER, JIM | WESTGATE MOBILE HOMES, INC. | | | $0.00 | 27927 | 4416215 |
| 4 | 04/13/2012 | QCD | Quit Claim Deed | WOESSNER, JIM | WOESSNER, JIM | | | $0.00 | 20838 | 4383774 |
| 5 | 07/22/2015 | WD | Warranty Deed | HELGESON, ROGER W | WOESSNER, JIM | | | $48,000.00 | 20591 | 4382702 |
|   | |
| 6 | 04/13/2012 | DECREE | Divorce Decree/Legal Separation | HELGESON, ROGER W / DIANE | HELGESON, ROGER W | | | $0.00 | 7481 | 4314278 |
| 7 | 07/01/2005 | WD | Warranty Deed | BIGGERSTAFF, ANNA M | HELGESON, ROGER W | | | $4,500.00 | 53236 | 4139940 |
| 8 | 03/01/1993 | OTHER | Other - Misc. Documents | HELGESON, CAROL | BIGGERSTAFF, ANNA M | | | $0.00 | 65308 | 0 |
| 9 | 10/01/1988 | EXECUTORD | Executor Deed | BIGGERSTAFF, CARROLL C | HELGESON, CAROL | | | $0.00 | 83553 | 88013304 |
| 10 | 12/01/1960 | TRUSTEED | Trustee's Deed | EASTVOLD, & S | BIGGERSTAFF, CARROLL C | | | $0.00 | 8963 | 0 |
Payout Agreement
| No payout information available.. |