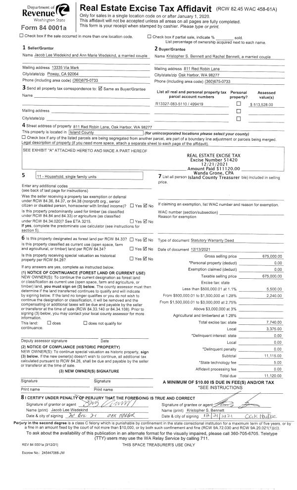
Property
Account |
| Property ID: | 362903 | Abbreviated Legal Description: | ROLL HILL LOT 19 BLK 9 |
| Geographic ID: | S8050-00-09019-0 | Agent Code: | |
| Type: | Real | | |
| Tax Area: | 330 - APPRAISER-Cpvl Schl Dist, Special Dist, improved & less than 1 acre | Land Use Code | 11 |
| Open Space: | N | DFL | N |
| Historic Property: | N | Remodel Property: | N |
| Multi-Family Redevelopment: | N | | |
| Township: | | Section: | |
| Range: | |
Location |
| Address: | 966 SHAWN AVE OAK HARBOR, WA 98277 | Mapsco: | |
| Neighborhood: | Cycle 2 | Map ID: | 146 |
| Neighborhood CD: | 2 |
Owner |
| Name: | WAGONER, THOR BRANNIN | Owner ID: | 307943 |
| Mailing Address: | STEPHANIE LYNN WAGONER 966 SHAWN AVE OAK HARBOR, WA 98277 | % Ownership: | 100.0000000000% |
| | | Exemptions: | |
Taxes and Assessment Details
Values
| (+) Improvement Homesite Value: | + | $0 | |
| (+) Improvement Non-Homesite Value: | + | $331,264 | |
| (+) Land Homesite Value: | + | $0 | |
| (+) Land Non-Homesite Value: | + | $220,000 | |
| (+) Curr Use (HS): | + | $0 | $0 |
| (+) Curr Use (NHS): | + | $0 | $0 |
| | | -------------------------- | |
| (=) Market Value: | = | $551,264 | |
| (–) Productivity Loss: | – | $0 | |
| | | -------------------------- | |
| (=) Subtotal: | = | $551,264 | |
| (+) Senior Appraised Value: | + | $0 | |
| (+) Non-Senior Appraised Value: | + | $551,264 | |
| | | -------------------------- | |
| (=) Total Appraised Value: | = | $551,264 | |
| (–) Senior Exemption Loss: | – | $0 | |
| (–) Exemption Loss: | – | $0 | |
| | | -------------------------- | |
| (=) Taxable Value: | = | $551,264 | |
Taxing Jurisdiction
| Owner: | WAGONER, THOR BRANNIN | | |
| % Ownership: | 100.0000000000% | | |
| Total Value: | $551,264 | | |
| Tax Area: | 330 - APPRAISER-Cpvl Schl Dist, Special Dist, improved & less than 1 acre |
| CF | Conservation Futures | 0.0316035091 | $551,264 | $551,264 | $17.42 | | |
| CEM2 | Cemetery #2 | 0.0095056933 | $551,264 | $551,264 | $5.24 | | |
| FIRE2 | Fire & Rescue Dist #2 N Whidbey GEN | 0.5475949600 | $551,264 | $551,264 | $301.87 | | |
| HOBOND | Hospital BOND | 0.1910887512 | $551,264 | $551,264 | $105.34 | | |
| HOGEN | Hospital GEN | 0.3902502903 | $551,264 | $551,264 | $215.13 | | |
| CE | County Current Expense | 0.3708482477 | $551,264 | $551,264 | $204.44 | | |
| CR | County Roads | 0.4584763726 | $551,264 | $551,264 | $252.74 | | |
| ISLANDEMS | Hospital GEN (EMS) | 0.5000000000 | $551,264 | $551,264 | $275.63 | | |
| LIB | Library Sno-Isle GEN | 0.3153421757 | $551,264 | $551,264 | $173.84 | | |
| LIBCAP | Library Sno-Isle BOND (Cap Fac Imp Area) | 0.0543427938 | $551,264 | $551,264 | $29.96 | | |
| POCOUP | Port of Coupeville GEN | 0.1093371703 | $551,264 | $551,264 | $60.27 | | |
| POCOUPIDD | Port of Coupeville IDD | 0.3409740022 | $551,264 | $551,264 | $187.97 | | |
| COUPSDTECH | School 204 CP (TECH) | 0.7545480007 | $551,264 | $551,264 | $415.96 | | |
| SCH204MO | School 204 Enrichment | 0.6716186034 | $551,264 | $551,264 | $370.24 | | |
| ST | State School | 1.3035497053 | $551,264 | $551,264 | $718.60 | | |
| ST2 | State School Part 2 | 0.8169543533 | $551,264 | $551,264 | $450.36 | | |
| | Total Tax Rate: | 6.8660346289 | | | | | |
| | | | | Taxes w/Current Exemptions: | $3,785.01 | | |
| | | | | Taxes w/o Exemptions: | $3,785.01 | | |
Improvement / Building
| Improvement #1: | RESIDENTIAL | State Code: | Y | 1792.0 sqft | Value: | $331,264 |
| Bathrooms: | 1.75 | Bedrooms: | 2 | | Ceiling: | DRYWALL PAINTED | Exterior Wall/Cover: | CEMENT FIBER | | Floor Covering: | CERAMIC TILE/CPT 40-60 | Floor Structure: | WOOD W/SUBFLOOR | | Foundation: | CONCRETE | Heating: | WALL HEAT ELECTRIC | | Interior Finish: | DRYWALL PAINT | Plumbing Fixture Cnt: | 12 | | Roof Slope: | 6" IN 12" | Roof Structure/Cover: | CJ ASPHALT |
|
| | Type | Description | Class CD | Sub Class CD | Year Built | Area |
| | BAS | BASE/MAIN FLOOR | 3 | 0 | 2009 | 896.0 |
| | UPS | UPPER STORY | 3 | 0 | 2009 | 896.0 |
| | OWP | OPEN WOOD PORCH W/STEPS | 3 | 0 | 2009 | 462.0 |
| | OWP | OPEN WOOD PORCH W/STEPS | 3 | 0 | 2009 | 72.0 |
| | DGR | DETACHED GARAGE | 3 | 0 | 2009 | 600.0 |
| | CPD | OPEN CARPORT DIRT FLOOR | 3 | 0 | 2009 | 336.0 |
Sketch
Property Image
Land
| 1 | 15 | SQ (12001-21780) | 0.4200 | 18295.20 | 0.00 | 0.00 | 1.00 | $220,000 | $0 |
Roll Value History
| 2026 | N/A | N/A | N/A | N/A | N/A |
| 2025 | $331,264 | $220,000 | $0 | $551,264 | $551,264 |
| 2024 | $335,195 | $210,000 | $0 | $545,195 | $545,195 |
| 2023 | $339,128 | $220,000 | $0 | $559,128 | $559,128 |
| 2022 | $310,649 | $220,000 | $0 | $530,649 | $530,649 |
| 2021 | $273,218 | $180,000 | $0 | $453,218 | $453,218 |
| 2020 | $265,820 | $140,000 | $0 | $405,820 | $405,820 |
| 2019 | $195,573 | $170,000 | $0 | $365,573 | $365,573 |
| 2018 | $190,007 | $135,000 | $0 | $325,007 | $325,007 |
| 2017 | $190,955 | $120,000 | $0 | $310,955 | $310,955 |
| 2016 | $192,850 | $100,000 | $0 | $292,850 | $292,850 |
| 2015 | $194,743 | $70,000 | $0 | $264,743 | $264,743 |
| 2014 | $196,638 | $60,000 | $0 | $256,638 | $256,638 |
| 2013 | $198,532 | $55,000 | $0 | $253,532 | $253,532 |
| 2012 | $207,531 | $57,800 | $0 | $265,331 | $265,331 |
| 2011 | $209,456 | $68,000 | $0 | $277,456 | $277,456 |
| 2010 | $210,656 | $68,000 | $0 | $278,656 | $278,656 |
| 2009 | $117,821 | $46,592 | $0 | $164,413 | $164,413 |
| 2008 | $23,862 | $35,792 | $0 | $59,654 | $59,654 |
| 2007 | $0 | $68,820 | $0 | $68,820 | $68,820 |
Deed and Sales History
| 1 | 03/08/2023 | WD | Warranty Deed | YAZZOLINO, AARON THOMAS | WAGONER, THOR BRANNIN | | | $560,000.00 | 56080 | 4557625 |
| 2 | 06/22/2021 | WD | Warranty Deed | BOZEMAN JR, COY D | YAZZOLINO, AARON THOMAS | | | $510,000.00 | 48870 | 4522802 |
| 3 | 06/22/2021 | QCD | Quit Claim Deed | BOZEMAN, DENISE | BOZEMAN JR, COY D | | | $0.00 | 48869 | 4522801 |
| 4 | 03/25/2016 | WD | Warranty Deed | FLANAGAN, KEEGAN S | BOZEMAN JR, COY D | | | $287,000.00 | 23706 | 4396649 |
| 5 | 06/06/2011 | QCD | Quit Claim Deed | FLANAGAN, KEEGAN S | FLANAGAN, KEEGAN S | | | $0.00 | 4622 | 4296314 |
| 6 | 06/06/2011 | WD | Warranty Deed | ZAHORODNI, JOSIP | FLANAGAN, KEEGAN S | | | $259,900.00 | 4621 | 4296313 |
| 7 | 05/31/2007 | WD | Warranty Deed | SUTTORP, RENATE | ZAHORODNI, JOSIP | | | $72,000.00 | 71896 | 4204044 |
| 8 | 05/30/2007 | ESTSEPPROP | Establish Separate Property | SUTTORP, RENATE | SUTTORP, RENATE | | | $0.00 | 71895 | 4204043 |
| 9 | 03/01/1994 | WD | Warranty Deed | GINNETT, ELLEN M | SUTTORP, RENATE | | | $5,000.00 | 40973 | 94006328 |
| 10 | 05/01/1991 | QCD | Quit Claim Deed | GINNETT, ELLEN M | GINNETT, ELLEN M | | | $0.00 | 11840 | 91007875 |
| 11 | 10/01/1960 | EXECUTORD | Executor Deed | EASTVOLD, & S | GINNETT, ELLEN M | | | $0.00 | 8772 | 0 |
| 12 | 01/01/1900 | OTHER | Other - Misc. Documents | Unknown | EASTVOLD, & S | | | $0.00 | 0 | 0 |
Payout Agreement
| No payout information available.. |