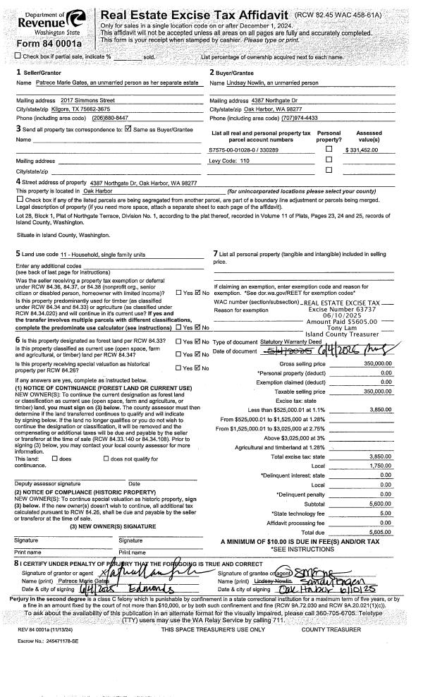
Property
Account |
| Property ID: | 362921 | Abbreviated Legal Description: | ROLL HILL LOT 21 BLK 9 |
| Geographic ID: | S8050-00-09021-0 | Agent Code: | |
| Type: | Real | | |
| Tax Area: | 330 - APPRAISER-Cpvl Schl Dist, Special Dist, improved & less than 1 acre | Land Use Code | 11 |
| Open Space: | N | DFL | N |
| Historic Property: | N | Remodel Property: | N |
| Multi-Family Redevelopment: | N | | |
| Township: | | Section: | |
| Range: | |
Location |
| Address: | | Mapsco: | |
| Neighborhood: | Cycle 2 | Map ID: | 146 |
| Neighborhood CD: | 2 |
Owner |
| Name: | ARNOLD, LAMONT | Owner ID: | 305927 |
| Mailing Address: | ALEXANDRIA ARNOLD 940 SHAWN AVE OAK HARBOR, WA 98277 | % Ownership: | 100.0000000000% |
| | | Exemptions: | |
Taxes and Assessment Details
Values
| (+) Improvement Homesite Value: | + | $0 | |
| (+) Improvement Non-Homesite Value: | + | $315,689 | |
| (+) Land Homesite Value: | + | $0 | |
| (+) Land Non-Homesite Value: | + | $220,000 | |
| (+) Curr Use (HS): | + | $0 | $0 |
| (+) Curr Use (NHS): | + | $0 | $0 |
| | | -------------------------- | |
| (=) Market Value: | = | $535,689 | |
| (–) Productivity Loss: | – | $0 | |
| | | -------------------------- | |
| (=) Subtotal: | = | $535,689 | |
| (+) Senior Appraised Value: | + | $0 | |
| (+) Non-Senior Appraised Value: | + | $535,689 | |
| | | -------------------------- | |
| (=) Total Appraised Value: | = | $535,689 | |
| (–) Senior Exemption Loss: | – | $0 | |
| (–) Exemption Loss: | – | $0 | |
| | | -------------------------- | |
| (=) Taxable Value: | = | $535,689 | |
Taxing Jurisdiction
| Owner: | ARNOLD, LAMONT | | |
| % Ownership: | 100.0000000000% | | |
| Total Value: | $535,689 | | |
| Tax Area: | 330 - APPRAISER-Cpvl Schl Dist, Special Dist, improved & less than 1 acre |
| CF | Conservation Futures | 0.0316035091 | $535,689 | $535,689 | $16.93 | | |
| CEM2 | Cemetery #2 | 0.0095056933 | $535,689 | $535,689 | $5.09 | | |
| FIRE2 | Fire & Rescue Dist #2 N Whidbey GEN | 0.5475949600 | $535,689 | $535,689 | $293.34 | | |
| HOBOND | Hospital BOND | 0.1910887512 | $535,689 | $535,689 | $102.36 | | |
| HOGEN | Hospital GEN | 0.3902502903 | $535,689 | $535,689 | $209.05 | | |
| CE | County Current Expense | 0.3708482477 | $535,689 | $535,689 | $198.66 | | |
| CR | County Roads | 0.4584763726 | $535,689 | $535,689 | $245.60 | | |
| ISLANDEMS | Hospital GEN (EMS) | 0.5000000000 | $535,689 | $535,689 | $267.84 | | |
| LIB | Library Sno-Isle GEN | 0.3153421757 | $535,689 | $535,689 | $168.93 | | |
| LIBCAP | Library Sno-Isle BOND (Cap Fac Imp Area) | 0.0543427938 | $535,689 | $535,689 | $29.11 | | |
| POCOUP | Port of Coupeville GEN | 0.1093371703 | $535,689 | $535,689 | $58.57 | | |
| POCOUPIDD | Port of Coupeville IDD | 0.3409740022 | $535,689 | $535,689 | $182.66 | | |
| COUPSDTECH | School 204 CP (TECH) | 0.7545480007 | $535,689 | $535,689 | $404.20 | | |
| SCH204MO | School 204 Enrichment | 0.6716186034 | $535,689 | $535,689 | $359.78 | | |
| ST | State School | 1.3035497053 | $535,689 | $535,689 | $698.30 | | |
| ST2 | State School Part 2 | 0.8169543533 | $535,689 | $535,689 | $437.63 | | |
| | Total Tax Rate: | 6.8660346289 | | | | | |
| | | | | Taxes w/Current Exemptions: | $3,678.05 | | |
| | | | | Taxes w/o Exemptions: | $3,678.05 | | |
Improvement / Building
| Improvement #1: | RESIDENTIAL | State Code: | Y | 1706.0 sqft | Value: | $315,689 |
| Bathrooms: | 2 | Bedrooms: | 3 | | Ceiling: | DRYWALL PAINTED | Cooling: | HEAT PUMP/CONV/V | | Exterior Wall/Cover: | CEMENT FIBER | Floor Covering: | CARPET/VINYL 60-40 | | Floor Structure: | WOOD W/SUBFLOOR | Foundation: | CONCRETE | | Interior Finish: | DRYWALL PAINT | Plumbing Fixture Cnt: | 9 | | Roof Slope: | 6" IN 12" | Roof Structure/Cover: | CJ ASPHALT |
|
| | Type | Description | Class CD | Sub Class CD | Year Built | Area |
| | BAS | BASE/MAIN FLOOR | 3 | 0 | 2014 | 1706.0 |
| | AGR | ATTACHED GARAGE | 3 | 0 | 2014 | 484.0 |
| | OWC | OPEN WOOD PORCH W/STEPS/ROOF/C | 3 | 0 | 2014 | 32.0 |
| | OWP | OPEN WOOD PORCH W/STEPS | 3 | 0 | 2014 | 32.0 |
| | OWP | OPEN WOOD PORCH W/STEPS | 3 | 0 | 2014 | 192.0 |
Sketch
Property Image
Land
| 1 | 15 | SQ (12001-21780) | 0.4178 | 18199.37 | 0.00 | 0.00 | 1.00 | $220,000 | $0 |
Roll Value History
| 2026 | N/A | N/A | N/A | N/A | N/A |
| 2025 | $315,689 | $220,000 | $0 | $535,689 | $535,689 |
| 2024 | $318,342 | $210,000 | $0 | $528,342 | $528,342 |
| 2023 | $321,170 | $220,000 | $0 | $541,170 | $541,170 |
| 2022 | $293,057 | $220,000 | $0 | $513,057 | $513,057 |
| 2021 | $256,913 | $180,000 | $0 | $436,913 | $436,913 |
| 2020 | $249,584 | $140,000 | $0 | $389,584 | $389,584 |
| 2019 | $186,231 | $170,000 | $0 | $356,231 | $356,231 |
| 2018 | $196,176 | $135,000 | $0 | $331,176 | $331,176 |
| 2017 | $197,202 | $120,000 | $0 | $317,202 | $317,202 |
| 2016 | $199,258 | $100,000 | $0 | $299,258 | $299,258 |
| 2015 | $201,312 | $70,000 | $0 | $271,312 | $271,312 |
| 2014 | $171,801 | $5,000 | $0 | $176,801 | $176,801 |
| 2013 | $0 | $5,000 | $0 | $5,000 | $5,000 |
| 2012 | $0 | $6,800 | $0 | $6,800 | $6,800 |
| 2011 | $0 | $6,800 | $0 | $6,800 | $6,800 |
| 2010 | $0 | $6,800 | $0 | $6,800 | $6,800 |
| 2009 | $0 | $7,440 | $0 | $7,440 | $7,440 |
| 2008 | $0 | $7,440 | $0 | $7,440 | $7,440 |
| 2007 | $0 | $7,440 | $0 | $7,440 | $7,440 |
Deed and Sales History
| 1 | 09/08/2022 | WD | Warranty Deed | FOLKESTAD, BRIAN | ARNOLD, LAMONT | | | $499,999.00 | 54489 | 4550995 |
| 2 | 04/20/2011 | WD | Warranty Deed | NEUMILLER, PAUL | FOLKESTAD, BRIAN | | | $6,800.00 | 4181 | 4293973 |
| 3 | 04/20/2011 | ESTSEPPROP | Establish Separate Property | NEUMILLER, PAUL | NEUMILLER, PAUL | | | $0.00 | 4180 | 4293972 |
| 4 | 04/09/2011 | WD | Warranty Deed | ADSIT, BETTIE L | NEUMILLER, PAUL | | | $6,800.00 | 4179 | 4293971 |
| 5 | 10/24/2001 | 5 | DNU - Marriage License/Name Change | Unknown | ADSIT, BETTIE L | | | $0.00 | 69157 | 0 |
Payout Agreement
| No payout information available.. |