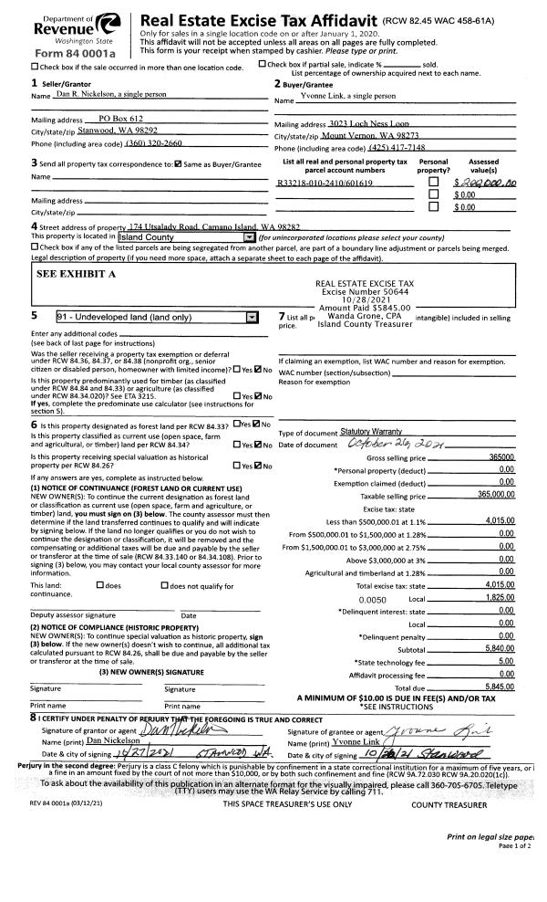
Property
Account |
| Property ID: | 363118 | Abbreviated Legal Description: | ROLL HILL LOT 39 BLK 9 |
| Geographic ID: | S8050-00-09039-0 | Agent Code: | |
| Type: | Real | | |
| Tax Area: | 330 - APPRAISER-Cpvl Schl Dist, Special Dist, improved & less than 1 acre | Land Use Code | 11 |
| Open Space: | N | DFL | N |
| Historic Property: | N | Remodel Property: | N |
| Multi-Family Redevelopment: | N | | |
| Township: | | Section: | |
| Range: | |
Location |
| Address: | 1019 DIANE AVE OAK HARBOR, WA 98277 | Mapsco: | |
| Neighborhood: | Cycle 2 | Map ID: | 148 |
| Neighborhood CD: | 2 |
Owner |
| Name: | NELLIST, ROBIN L | Owner ID: | 305136 |
| Mailing Address: | PETER M. PARIS 1019 DIANE AVE OAK HARBOR, WA 98277 | % Ownership: | 100.0000000000% |
| | | Exemptions: | |
Taxes and Assessment Details
Values
| (+) Improvement Homesite Value: | + | $0 | |
| (+) Improvement Non-Homesite Value: | + | $95,315 | |
| (+) Land Homesite Value: | + | $0 | |
| (+) Land Non-Homesite Value: | + | $220,000 | |
| (+) Curr Use (HS): | + | $0 | $0 |
| (+) Curr Use (NHS): | + | $0 | $0 |
| | | -------------------------- | |
| (=) Market Value: | = | $315,315 | |
| (–) Productivity Loss: | – | $0 | |
| | | -------------------------- | |
| (=) Subtotal: | = | $315,315 | |
| (+) Senior Appraised Value: | + | $0 | |
| (+) Non-Senior Appraised Value: | + | $315,315 | |
| | | -------------------------- | |
| (=) Total Appraised Value: | = | $315,315 | |
| (–) Senior Exemption Loss: | – | $0 | |
| (–) Exemption Loss: | – | $0 | |
| | | -------------------------- | |
| (=) Taxable Value: | = | $315,315 | |
Taxing Jurisdiction
| Owner: | NELLIST, ROBIN L | | |
| % Ownership: | 100.0000000000% | | |
| Total Value: | $315,315 | | |
| Tax Area: | 330 - APPRAISER-Cpvl Schl Dist, Special Dist, improved & less than 1 acre |
| CF | Conservation Futures | 0.0316035091 | $315,315 | $315,315 | $9.97 | | |
| CEM2 | Cemetery #2 | 0.0095056933 | $315,315 | $315,315 | $3.00 | | |
| FIRE2 | Fire & Rescue Dist #2 N Whidbey GEN | 0.5475949600 | $315,315 | $315,315 | $172.66 | | |
| HOBOND | Hospital BOND | 0.1910887512 | $315,315 | $315,315 | $60.25 | | |
| HOGEN | Hospital GEN | 0.3902502903 | $315,315 | $315,315 | $123.05 | | |
| CE | County Current Expense | 0.3708482477 | $315,315 | $315,315 | $116.93 | | |
| CR | County Roads | 0.4584763726 | $315,315 | $315,315 | $144.56 | | |
| ISLANDEMS | Hospital GEN (EMS) | 0.5000000000 | $315,315 | $315,315 | $157.66 | | |
| LIB | Library Sno-Isle GEN | 0.3153421757 | $315,315 | $315,315 | $99.43 | | |
| LIBCAP | Library Sno-Isle BOND (Cap Fac Imp Area) | 0.0543427938 | $315,315 | $315,315 | $17.14 | | |
| POCOUP | Port of Coupeville GEN | 0.1093371703 | $315,315 | $315,315 | $34.48 | | |
| POCOUPIDD | Port of Coupeville IDD | 0.3409740022 | $315,315 | $315,315 | $107.51 | | |
| COUPSDTECH | School 204 CP (TECH) | 0.7545480007 | $315,315 | $315,315 | $237.92 | | |
| SCH204MO | School 204 Enrichment | 0.6716186034 | $315,315 | $315,315 | $211.77 | | |
| ST | State School | 1.3035497053 | $315,315 | $315,315 | $411.03 | | |
| ST2 | State School Part 2 | 0.8169543533 | $315,315 | $315,315 | $257.60 | | |
| | Total Tax Rate: | 6.8660346289 | | | | | |
| | | | | Taxes w/Current Exemptions: | $2,164.96 | | |
| | | | | Taxes w/o Exemptions: | $2,164.96 | | |
Improvement / Building
| Improvement #1: | MANUFACTURED HOME | State Code: | Y | 1136.0 sqft | Value: | $95,315 |
| Bathrooms: | 0 | Bedrooms: | 0 | | Ceiling: | PLASTER PAINTED | Cooling: | EVAP NO DUCT | | Exterior Wall/Cover: | VINYL | Floor Covering: | CARPET 100% | | Floor Structure: | SLAB ON GRADE | Foundation: | SLAB | | Heating: | FHA ELECTRIC | Interior Finish: | PLASTER | | Plumbing Fixture Cnt: | 1 | Roof Slope: | FLAT | | Roof Structure/Cover: | CJ ALUMINIUM HEAVY |   |   |
|
| | Type | Description | Class CD | Sub Class CD | Year Built | Area |
| | BAS | BASE/MAIN FLOOR | 4 | 0 | 1974 | 1136.0 |
| | OWP | OPEN WOOD PORCH W/STEPS | 4 | 0 | 1974 | 704.0 |
Sketch
Property Image
Land
| 1 | 15 | SQ (12001-21780) | 0.4263 | 18569.63 | 0.00 | 0.00 | 1.00 | $220,000 | $0 |
Roll Value History
| 2026 | N/A | N/A | N/A | N/A | N/A |
| 2025 | $95,315 | $220,000 | $0 | $315,315 | $315,315 |
| 2024 | $84,195 | $210,000 | $0 | $294,195 | $294,195 |
| 2023 | $75,979 | $220,000 | $0 | $295,979 | $295,979 |
| 2022 | $71,301 | $220,000 | $0 | $291,301 | $291,301 |
| 2021 | $65,260 | $180,000 | $0 | $245,260 | $245,260 |
| 2020 | $50,686 | $140,000 | $0 | $190,686 | $190,686 |
| 2019 | $42,420 | $170,000 | $0 | $212,420 | $212,420 |
| 2018 | $31,814 | $135,000 | $0 | $166,814 | $166,814 |
| 2017 | $31,974 | $120,000 | $0 | $151,974 | $151,974 |
| 2016 | $33,522 | $100,000 | $0 | $133,522 | $133,522 |
| 2015 | $35,072 | $70,000 | $0 | $105,072 | $105,072 |
| 2014 | $36,620 | $60,000 | $0 | $96,620 | $96,620 |
| 2013 | $38,168 | $55,000 | $0 | $93,168 | $93,168 |
| 2012 | $28,025 | $57,800 | $0 | $85,825 | $85,825 |
| 2011 | $29,044 | $68,000 | $0 | $97,044 | $97,044 |
| 2010 | $31,734 | $68,000 | $0 | $99,734 | $99,734 |
| 2009 | $32,578 | $74,400 | $0 | $106,978 | $106,978 |
| 2008 | $32,870 | $74,400 | $0 | $107,270 | $107,270 |
| 2007 | $62,147 | $74,400 | $0 | $136,547 | $136,547 |
Deed and Sales History
| 1 | 07/07/2022 | WD | Warranty Deed | GIBSON, HARRY R | NELLIST, ROBIN L | | | $305,000.00 | 53880 | 4548652 |
| 2 | 10/14/2020 | WD | Warranty Deed | BANKSON, ZACHARY KYLE | GIBSON, HARRY R | | | $260,000.00 | 45414 | 4500533 |
| 3 | 09/11/2018 | WD | Warranty Deed | BINDER, JANEY L | BANKSON, ZACHARY KYLE | | | $212,000.00 | 36092 | 4452532 |
| 4 | 06/01/1995 | OTHER | Other - Misc. Documents | BINDER, JANEY L | BINDER, JANEY L | | | $0.00 | 51863 | |
| 5 | 02/01/1995 | QCD | Quit Claim Deed | Unknown | BINDER, JANEY L | | | $0.00 | 50648 | 95007598 |
| 6 | 07/01/1980 | WD | Warranty Deed | JORDAN, MARK A | MCCRACKEN, MICHAEL J | | | $27,000.00 | 2499 | 371611 |
| 7 | 01/01/1900 | OTHER | Other - Misc. Documents | Unknown | JORDAN, MARK A | | | $0.00 | 0 | 0 |
Payout Agreement
| No payout information available.. |