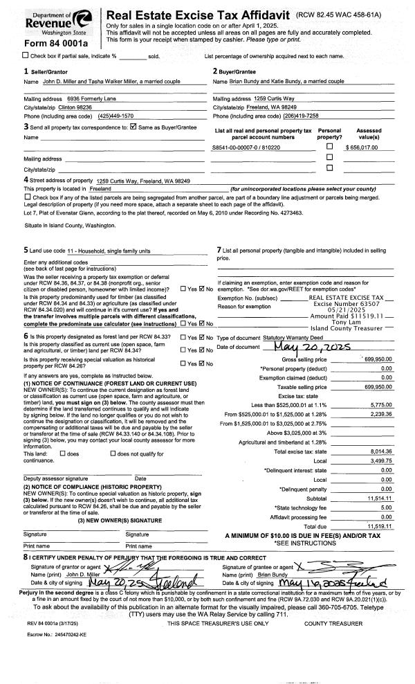
Property
Account |
| Property ID: | 363225 | Abbreviated Legal Description: | ROLL HILL RESERVE ADJ TO LOT 1 & 2 BLK 10 ASSESSED W/LOTS |
| Geographic ID: | S8050-00-1000A-0 | Agent Code: | |
| Type: | Real | | |
| Tax Area: | 330 - APPRAISER-Cpvl Schl Dist, Special Dist, improved & less than 1 acre | Land Use Code | 74 |
| Open Space: | N | DFL | N |
| Historic Property: | N | Remodel Property: | N |
| Multi-Family Redevelopment: | N | | |
| Township: | | Section: | |
| Range: | |
Location |
| Address: | 1126 SIDNEY ST OAK HARBOR, WA 98277 | Mapsco: | |
| Neighborhood: | Cycle 2 | Map ID: | 148 |
| Neighborhood CD: | 2 |
Owner |
| Name: | ROLLING HILLS-GLENCAIRN COM | Owner ID: | 11548 |
| Mailing Address: | 1126 SIDNEY ST OAK HARBOR, WA 98277-8216 | % Ownership: | 100.0000000000% |
| | | Exemptions: | EX |
Taxes and Assessment Details
Values
| (+) Improvement Homesite Value: | + | $0 | |
| (+) Improvement Non-Homesite Value: | + | $253,399 | |
| (+) Land Homesite Value: | + | $0 | |
| (+) Land Non-Homesite Value: | + | $220,000 | |
| (+) Curr Use (HS): | + | $0 | $0 |
| (+) Curr Use (NHS): | + | $0 | $0 |
| | | -------------------------- | |
| (=) Market Value: | = | $473,399 | |
| (–) Productivity Loss: | – | $0 | |
| | | -------------------------- | |
| (=) Subtotal: | = | $473,399 | |
| (+) Senior Appraised Value: | + | $0 | |
| (+) Non-Senior Appraised Value: | + | $473,399 | |
| | | -------------------------- | |
| (=) Total Appraised Value: | = | $473,399 | |
| (–) Senior Exemption Loss: | – | $0 | |
| (–) Exemption Loss: | – | $473,399 | |
| | | -------------------------- | |
| (=) Taxable Value: | = | $0 | |
Taxing Jurisdiction
| Owner: | ROLLING HILLS-GLENCAIRN COM | | |
| % Ownership: | 100.0000000000% | | |
| Total Value: | $473,399 | | |
| Tax Area: | 330 - APPRAISER-Cpvl Schl Dist, Special Dist, improved & less than 1 acre |
| CF | Conservation Futures | 0.0316035091 | $473,399 | $0 | $0.00 | | |
| CEM2 | Cemetery #2 | 0.0095056933 | $473,399 | $0 | $0.00 | | |
| FIRE2 | Fire & Rescue Dist #2 N Whidbey GEN | 0.5475949600 | $473,399 | $0 | $0.00 | | |
| HOBOND | Hospital BOND | 0.1910887512 | $473,399 | $0 | $0.00 | | |
| HOGEN | Hospital GEN | 0.3902502903 | $473,399 | $0 | $0.00 | | |
| CE | County Current Expense | 0.3708482477 | $473,399 | $0 | $0.00 | | |
| CR | County Roads | 0.4584763726 | $473,399 | $0 | $0.00 | | |
| ISLANDEMS | Hospital GEN (EMS) | 0.5000000000 | $473,399 | $0 | $0.00 | | |
| LIB | Library Sno-Isle GEN | 0.3153421757 | $473,399 | $0 | $0.00 | | |
| LIBCAP | Library Sno-Isle BOND (Cap Fac Imp Area) | 0.0543427938 | $473,399 | $0 | $0.00 | | |
| POCOUP | Port of Coupeville GEN | 0.1093371703 | $473,399 | $0 | $0.00 | | |
| POCOUPIDD | Port of Coupeville IDD | 0.3409740022 | $473,399 | $0 | $0.00 | | |
| COUPSDTECH | School 204 CP (TECH) | 0.7545480007 | $473,399 | $0 | $0.00 | | |
| SCH204MO | School 204 Enrichment | 0.6716186034 | $473,399 | $0 | $0.00 | | |
| ST | State School | 1.3035497053 | $473,399 | $0 | $0.00 | | |
| ST2 | State School Part 2 | 0.8169543533 | $473,399 | $0 | $0.00 | | |
| | Total Tax Rate: | 6.8660346289 | | | | | |
| | | | | Taxes w/Current Exemptions: | $0.00 | | |
| | | | | Taxes w/o Exemptions: | $3,250.37 | | |
Improvement / Building
| Improvement #1: | COMMERCIAL | State Code: | F1 | 1980.0 sqft | Value: | $253,399 |
| Bathrooms: | 0 | Bedrooms: | 0 | | Ceiling: | PAINT OPEN FLOOR BAS | Exterior Wall/Cover: | WD SIDING/WOOD FRAME | | Floor Covering: | CONCRETE SEALER | Floor Structure: | CONCRETE ON GROUND | | Foundation: | SLAB | Interior Finish: | WAREHOUSE STORAGE | | Plumbing Fixture Cnt: | 1 | Roof Structure/Cover: | ALUM LIGHT |
|
| | Type | Description | Class CD | Sub Class CD | Year Built | Area |
| | BAS | BASE/MAIN FLOOR | 3 | 0 | 1976 | 1980.0 |
| | OP1 | OPEN PORCH SLAB | 3 | 0 | 1976 | 100.0 |
| | UTY | STORAGE/UTILITY | 3 | 0 | 1976 | 100.0 |
| | oWT0 | 100K GALLON TANK | 3 | 0 | 1976 | 1395.4 |
Sketch
Property Image
Land
| 1 | 15 | SQ (12001-21780) | 0.3843 | 16740.11 | 0.00 | 0.00 | 1.00 | $220,000 | $0 |
Roll Value History
| 2026 | N/A | N/A | N/A | N/A | N/A |
| 2025 | $253,399 | $220,000 | $0 | $473,399 | $0 |
| 2024 | $312,758 | $220,000 | $0 | $532,758 | $0 |
| 2023 | $319,399 | $220,000 | $0 | $539,399 | $0 |
| 2022 | $293,113 | $180,000 | $0 | $473,113 | $0 |
| 2021 | $292,871 | $180,000 | $0 | $472,871 | $0 |
| 2020 | $292,841 | $140,000 | $0 | $432,841 | $0 |
| 2019 | $286,929 | $170,000 | $0 | $456,929 | $0 |
| 2018 | $72,355 | $60,000 | $0 | $132,355 | $0 |
| 2017 | $72,355 | $70,000 | $0 | $142,355 | $0 |
| 2016 | $72,355 | $70,000 | $0 | $142,355 | $0 |
| 2015 | $75,048 | $68,000 | $0 | $143,048 | $0 |
| 2014 | $76,472 | $68,000 | $0 | $144,472 | $0 |
| 2013 | $76,553 | $68,000 | $0 | $144,553 | $0 |
| 2012 | $122,013 | $67,704 | $0 | $189,717 | $0 |
| 2011 | $121,176 | $67,704 | $0 | $188,880 | $0 |
| 2010 | $111,844 | $67,704 | $0 | $179,548 | $0 |
| 2009 | $114,045 | $74,400 | $0 | $188,445 | $0 |
| 2008 | $117,391 | $75,958 | $0 | $193,349 | $0 |
| 2007 | $119,898 | $76,656 | $0 | $196,554 | $0 |
Deed and Sales History
Payout Agreement
| No payout information available.. |