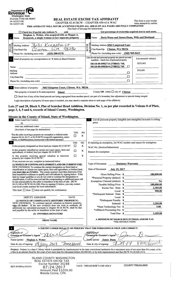
Property
Account |
| Property ID: | 363369 | Abbreviated Legal Description: | ROLL HILL LOT 14 BLK 10 |
| Geographic ID: | S8050-00-10014-0 | Agent Code: | |
| Type: | Real | | |
| Tax Area: | 330 - APPRAISER-Cpvl Schl Dist, Special Dist, improved & less than 1 acre | Land Use Code | 11 |
| Open Space: | N | DFL | N |
| Historic Property: | N | Remodel Property: | N |
| Multi-Family Redevelopment: | N | | |
| Township: | | Section: | |
| Range: | |
Location |
| Address: | 1060 SIDNEY ST OAK HARBOR, WA 98277 | Mapsco: | |
| Neighborhood: | Cycle 2 | Map ID: | 148 |
| Neighborhood CD: | 2 |
Owner |
| Name: | HORNER, BRANDON | Owner ID: | 302721 |
| Mailing Address: | 1060 SIDNEY ST OAK HARBOR, WA 98277 | % Ownership: | 100.0000000000% |
| | | Exemptions: | |
Taxes and Assessment Details
Values
| (+) Improvement Homesite Value: | + | $0 | |
| (+) Improvement Non-Homesite Value: | + | $142,385 | |
| (+) Land Homesite Value: | + | $0 | |
| (+) Land Non-Homesite Value: | + | $220,000 | |
| (+) Curr Use (HS): | + | $0 | $0 |
| (+) Curr Use (NHS): | + | $0 | $0 |
| | | -------------------------- | |
| (=) Market Value: | = | $362,385 | |
| (–) Productivity Loss: | – | $0 | |
| | | -------------------------- | |
| (=) Subtotal: | = | $362,385 | |
| (+) Senior Appraised Value: | + | $0 | |
| (+) Non-Senior Appraised Value: | + | $362,385 | |
| | | -------------------------- | |
| (=) Total Appraised Value: | = | $362,385 | |
| (–) Senior Exemption Loss: | – | $0 | |
| (–) Exemption Loss: | – | $0 | |
| | | -------------------------- | |
| (=) Taxable Value: | = | $362,385 | |
Taxing Jurisdiction
| Owner: | HORNER, BRANDON | | |
| % Ownership: | 100.0000000000% | | |
| Total Value: | $362,385 | | |
| Tax Area: | 330 - APPRAISER-Cpvl Schl Dist, Special Dist, improved & less than 1 acre |
| CF | Conservation Futures | 0.0316035091 | $362,385 | $362,385 | $11.45 | | |
| CEM2 | Cemetery #2 | 0.0095056933 | $362,385 | $362,385 | $3.44 | | |
| FIRE2 | Fire & Rescue Dist #2 N Whidbey GEN | 0.5475949600 | $362,385 | $362,385 | $198.44 | | |
| HOBOND | Hospital BOND | 0.1910887512 | $362,385 | $362,385 | $69.25 | | |
| HOGEN | Hospital GEN | 0.3902502903 | $362,385 | $362,385 | $141.42 | | |
| CE | County Current Expense | 0.3708482477 | $362,385 | $362,385 | $134.39 | | |
| CR | County Roads | 0.4584763726 | $362,385 | $362,385 | $166.14 | | |
| ISLANDEMS | Hospital GEN (EMS) | 0.5000000000 | $362,385 | $362,385 | $181.19 | | |
| LIB | Library Sno-Isle GEN | 0.3153421757 | $362,385 | $362,385 | $114.28 | | |
| LIBCAP | Library Sno-Isle BOND (Cap Fac Imp Area) | 0.0543427938 | $362,385 | $362,385 | $19.69 | | |
| POCOUP | Port of Coupeville GEN | 0.1093371703 | $362,385 | $362,385 | $39.62 | | |
| POCOUPIDD | Port of Coupeville IDD | 0.3409740022 | $362,385 | $362,385 | $123.56 | | |
| COUPSDTECH | School 204 CP (TECH) | 0.7545480007 | $362,385 | $362,385 | $273.44 | | |
| SCH204MO | School 204 Enrichment | 0.6716186034 | $362,385 | $362,385 | $243.38 | | |
| ST | State School | 1.3035497053 | $362,385 | $362,385 | $472.39 | | |
| ST2 | State School Part 2 | 0.8169543533 | $362,385 | $362,385 | $296.05 | | |
| | Total Tax Rate: | 6.8660346289 | | | | | |
| | | | | Taxes w/Current Exemptions: | $2,488.13 | | |
| | | | | Taxes w/o Exemptions: | $2,488.13 | | |
Improvement / Building
| Improvement #1: | MANUFACTURED HOME | State Code: | Y | 1404.0 sqft | Value: | $142,385 |
| Bathrooms: | 0 | Bedrooms: | 0 | | Ceiling: | PLASTER PAINTED | Cooling: | EVAP NO DUCT | | Exterior Wall/Cover: | VINYL | Floor Covering: | CARPET 100% | | Floor Structure: | SLAB ON GRADE | Foundation: | SLAB | | Heating: | FHA ELECTRIC | Interior Finish: | PLASTER | | Plumbing Fixture Cnt: | 1 | Roof Slope: | FLAT | | Roof Structure/Cover: | CJ ALUMINIUM HEAVY |   |   |
|
| | Type | Description | Class CD | Sub Class CD | Year Built | Area |
| | BAS | BASE/MAIN FLOOR | 4 | 0 | 2005 | 1404.0 |
| | OWP | OPEN WOOD PORCH W/STEPS | 4 | 0 | 2005 | 184.0 |
| | OWP | OPEN WOOD PORCH W/STEPS | 4 | 0 | 2005 | 100.0 |
Sketch
Property Image
Land
| 1 | 15 | SQ (12001-21780) | 0.4800 | 20908.80 | 0.00 | 0.00 | 1.00 | $220,000 | $0 |
Roll Value History
| 2026 | N/A | N/A | N/A | N/A | N/A |
| 2025 | $142,385 | $220,000 | $0 | $362,385 | $362,385 |
| 2024 | $145,773 | $210,000 | $0 | $355,773 | $355,773 |
| 2023 | $129,703 | $220,000 | $0 | $349,703 | $349,703 |
| 2022 | $120,118 | $220,000 | $0 | $340,118 | $340,118 |
| 2021 | $89,308 | $180,000 | $0 | $269,308 | $269,308 |
| 2020 | $88,955 | $140,000 | $0 | $228,955 | $228,955 |
| 2019 | $71,840 | $170,000 | $0 | $241,840 | $241,840 |
| 2018 | $73,614 | $135,000 | $0 | $208,614 | $208,614 |
| 2017 | $59,579 | $120,000 | $0 | $179,579 | $179,579 |
| 2016 | $60,272 | $100,000 | $0 | $160,272 | $160,272 |
| 2015 | $60,965 | $70,000 | $0 | $130,965 | $130,965 |
| 2014 | $62,350 | $60,000 | $0 | $122,350 | $122,350 |
| 2013 | $63,043 | $55,000 | $0 | $118,043 | $118,043 |
| 2012 | $72,996 | $57,800 | $0 | $130,796 | $130,796 |
| 2011 | $73,689 | $68,000 | $0 | $141,689 | $141,689 |
| 2010 | $74,568 | $68,000 | $0 | $142,568 | $142,568 |
| 2009 | $78,406 | $74,400 | $0 | $152,806 | $152,806 |
| 2008 | $109,025 | $74,400 | $0 | $183,425 | $183,425 |
| 2007 | $111,091 | $74,400 | $0 | $185,491 | $185,491 |
Deed and Sales History
| 1 | 12/29/2021 | QCD | Quit Claim Deed | HORNER, CHELSEA ANNE | HORNER, BRANDON | | | $0.00 | 51742 | 4538415 |
| 2 | 01/11/2022 | WD | Warranty Deed | COX, DEAN | HORNER, BRANDON | | | $377,001.00 | 51741 | 4538414 |
| 3 | 05/11/2018 | WD | Warranty Deed | JENNINGS, DANIEL DWIGHT | COX, DEAN | | | $263,000.00 | 34073 | 4444290 |
| 4 | 07/03/2017 | WD | Warranty Deed | MIRAMON, MARIA JESSICA | JENNINGS, DANIEL DWIGHT | | | $230,000.00 | 30126 | 4425905 |
| 5 | 07/09/2013 | WD | Warranty Deed | BURMESTER, DENIS | MIRAMON, MARIA JESSICA | | | $160,000.00 | 12006 | 4344034 |
| 6 | 01/30/2006 | WD | Warranty Deed | WESTGATE MOBILE HOMES INC, | BURMESTER, DENIS | | | $155,776.00 | 60413 | 4161188 |
| 7 | 11/01/2004 | WD | Warranty Deed | MURPHY, KAREN A | WESTGATE MOBILE HOMES INC, | | | $14,000.00 | 45441 | 4118525 |
| 8 | 09/28/2000 | PRD | Personal Representatives Deed | PARSON, DEREK | MURPHY, KAREN A | | | $0.00 | 4404 | 20020227 |
| 9 | 10/01/1997 | WD | Warranty Deed | MURPHY, TERENCE | PARSON, DEREK | | | $5,000.00 | 73727 | 97017822 |
| 10 | 10/01/1997 | WD | Warranty Deed | OVENELL, STANLEY R | MURPHY, TERENCE | | | $6,603.00 | 73830 | 97018296 |
| 11 | 03/01/1989 | QCD | Quit Claim Deed | ROLLING, HILLS-GLENCARIN | OVENELL, STANLEY R | | | $2,000.00 | 90790 | 89002668 |
| 12 | 07/01/1988 | QCD | Quit Claim Deed | SHELTON, ROBERT H | ROLLING, HILLS-GLENCARIN | | | $100.00 | 82917 | 88010883 |
| 13 | 10/01/1982 | CD | DNU - Correction Deed | SHELTON, IRENE H | SHELTON, ROBERT H | | | $0.00 | 22495 | 401784 |
| 14 | 01/01/1900 | OTHER | Other - Misc. Documents | Unknown | SHELTON, IRENE H | | | $0.00 | 0 | 0 |
Payout Agreement
| No payout information available.. |